9 fotos



Obra nueva Mirador del Sol en San Miguel de Salinas (Revista)
desde 1 000 000 €
desde 4 219 € / m²Alicante, San Miguel de Salinas
Ref: 67783
Inmuebles en Mirador del Sol
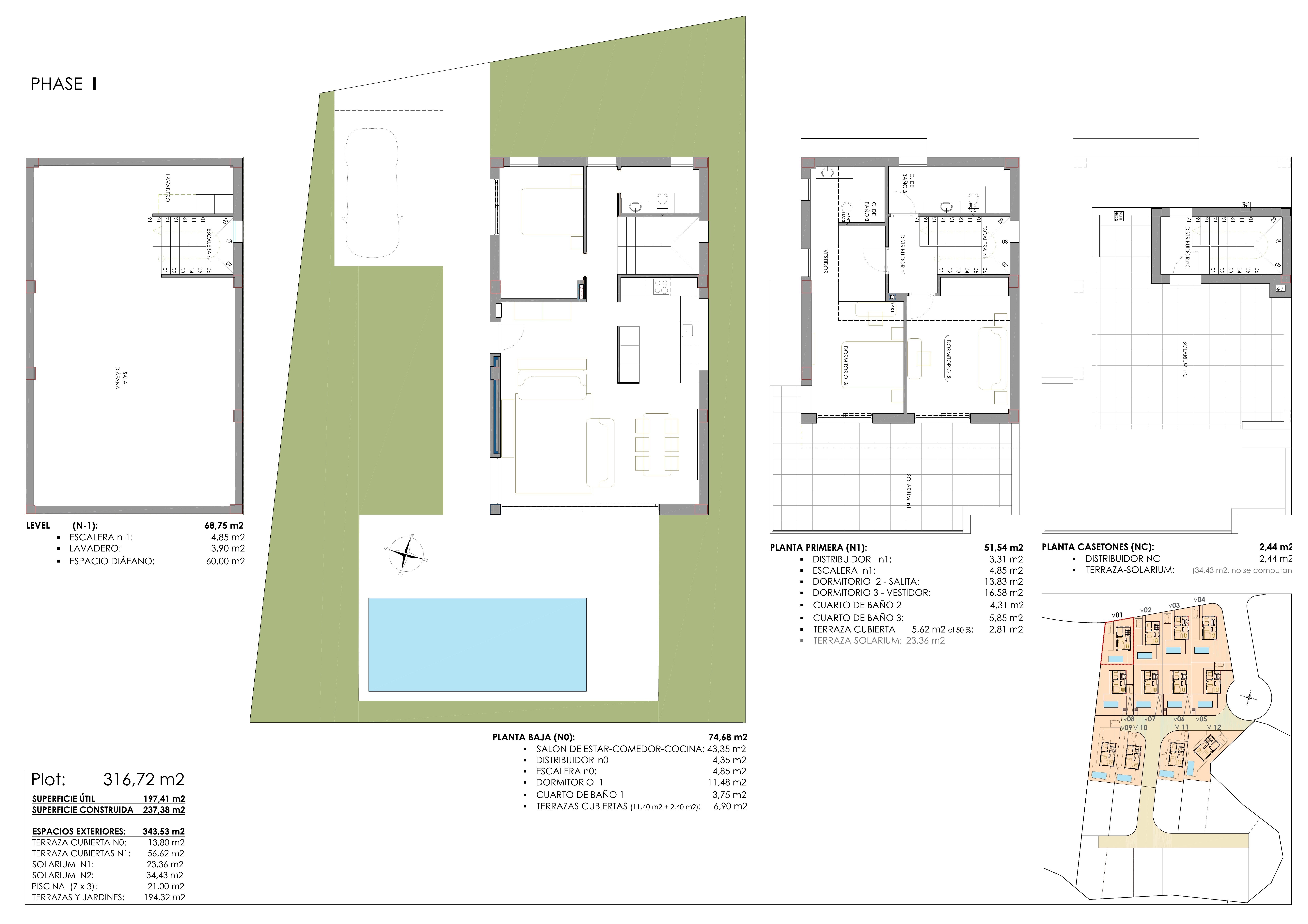
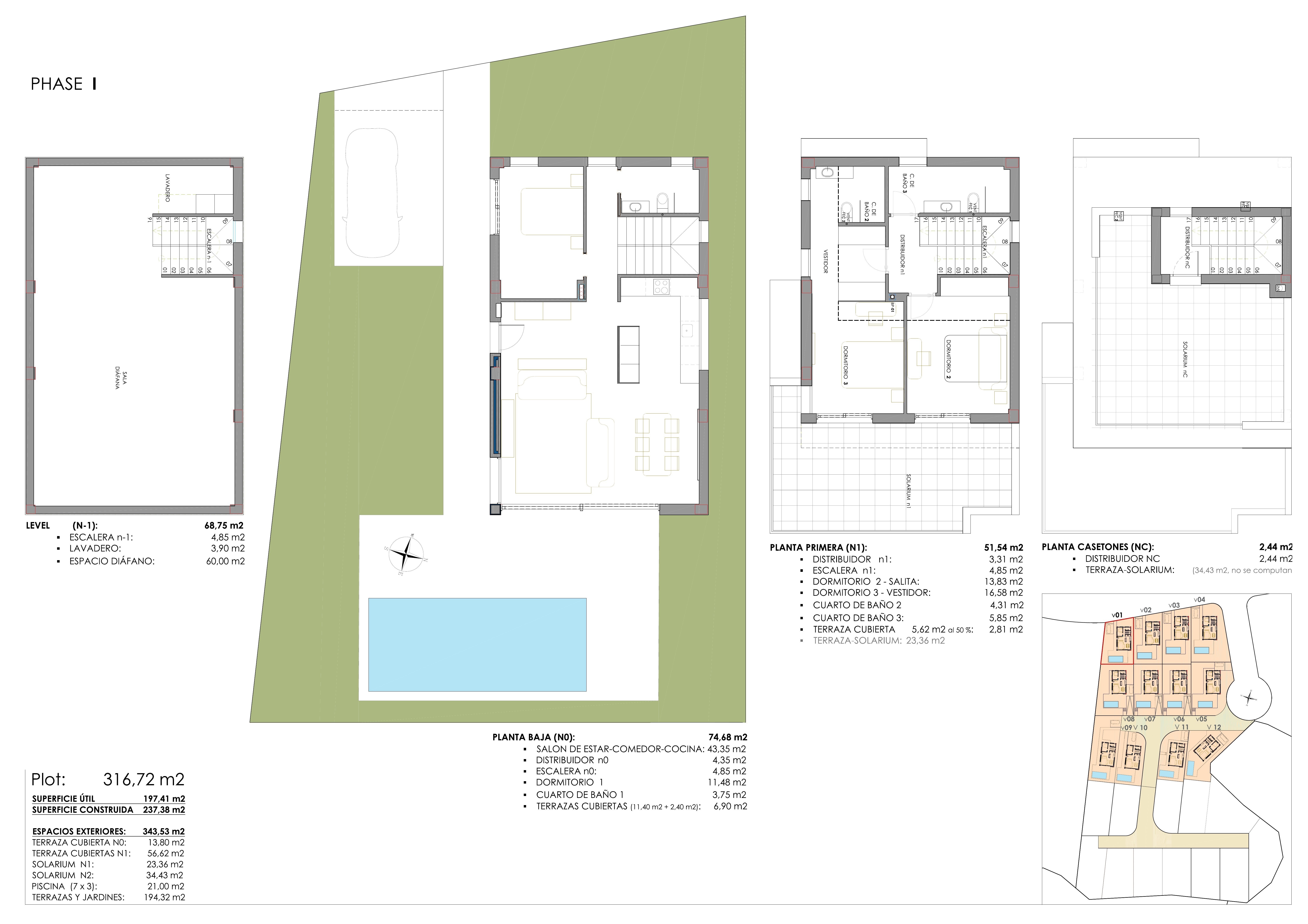
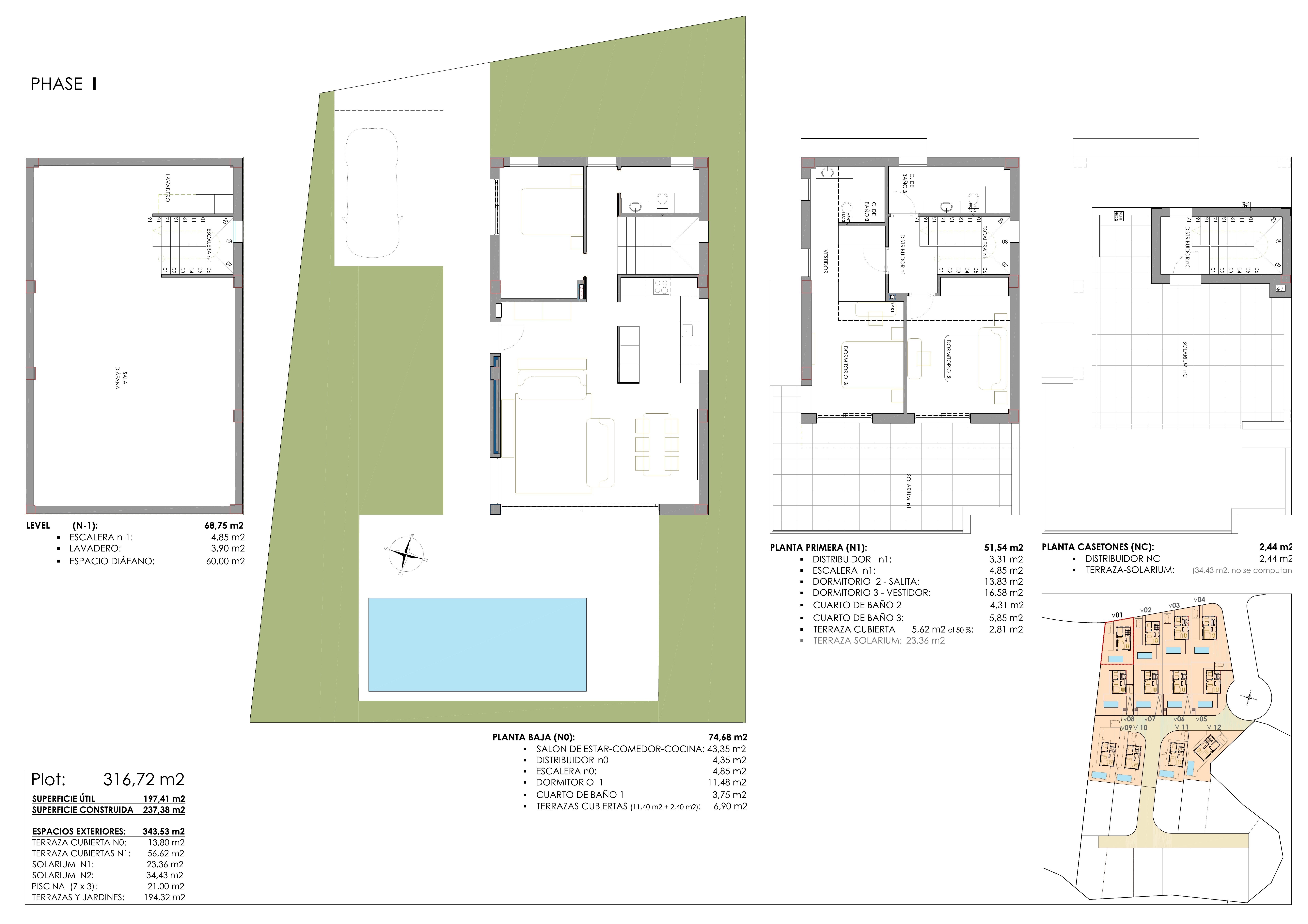
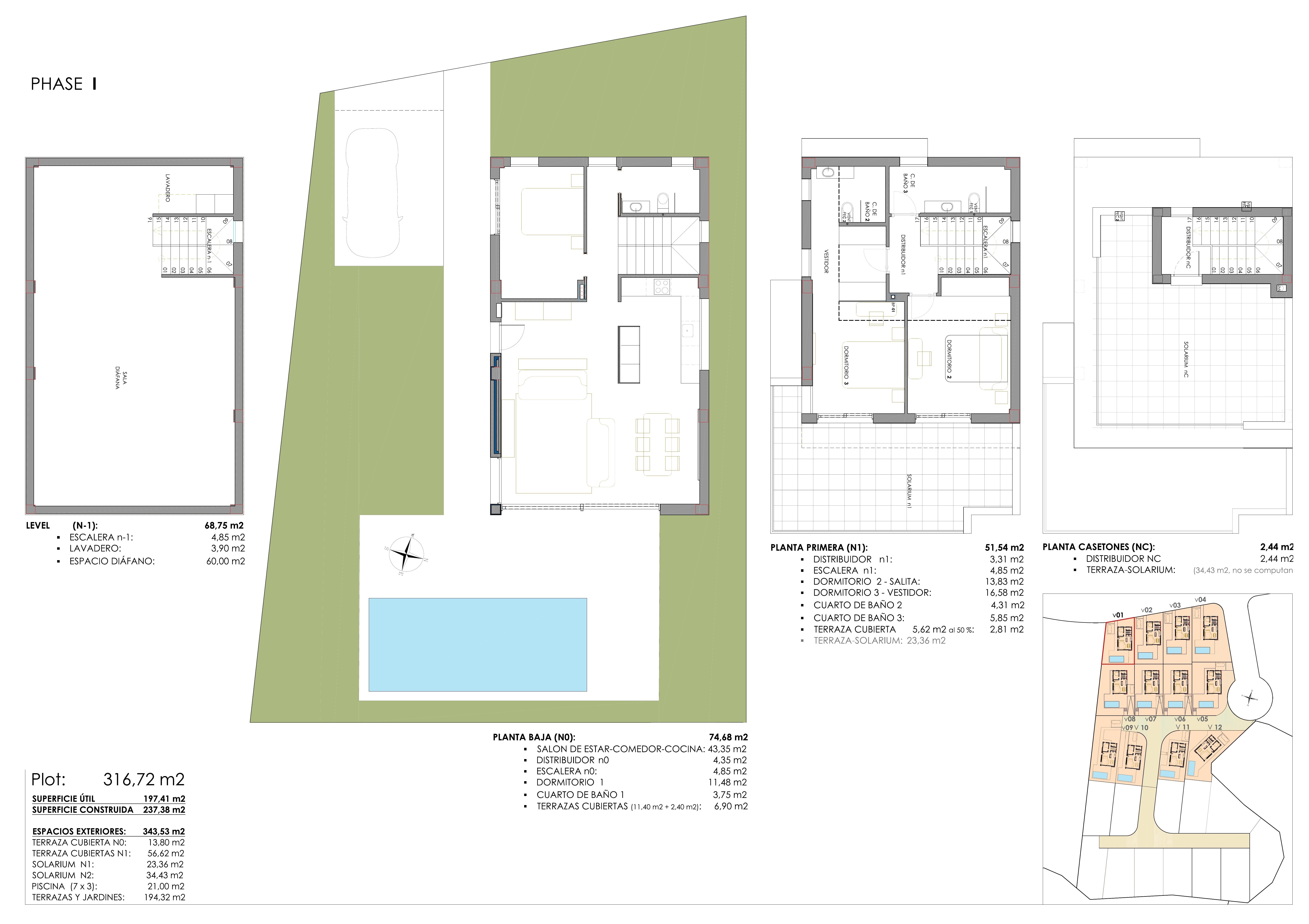
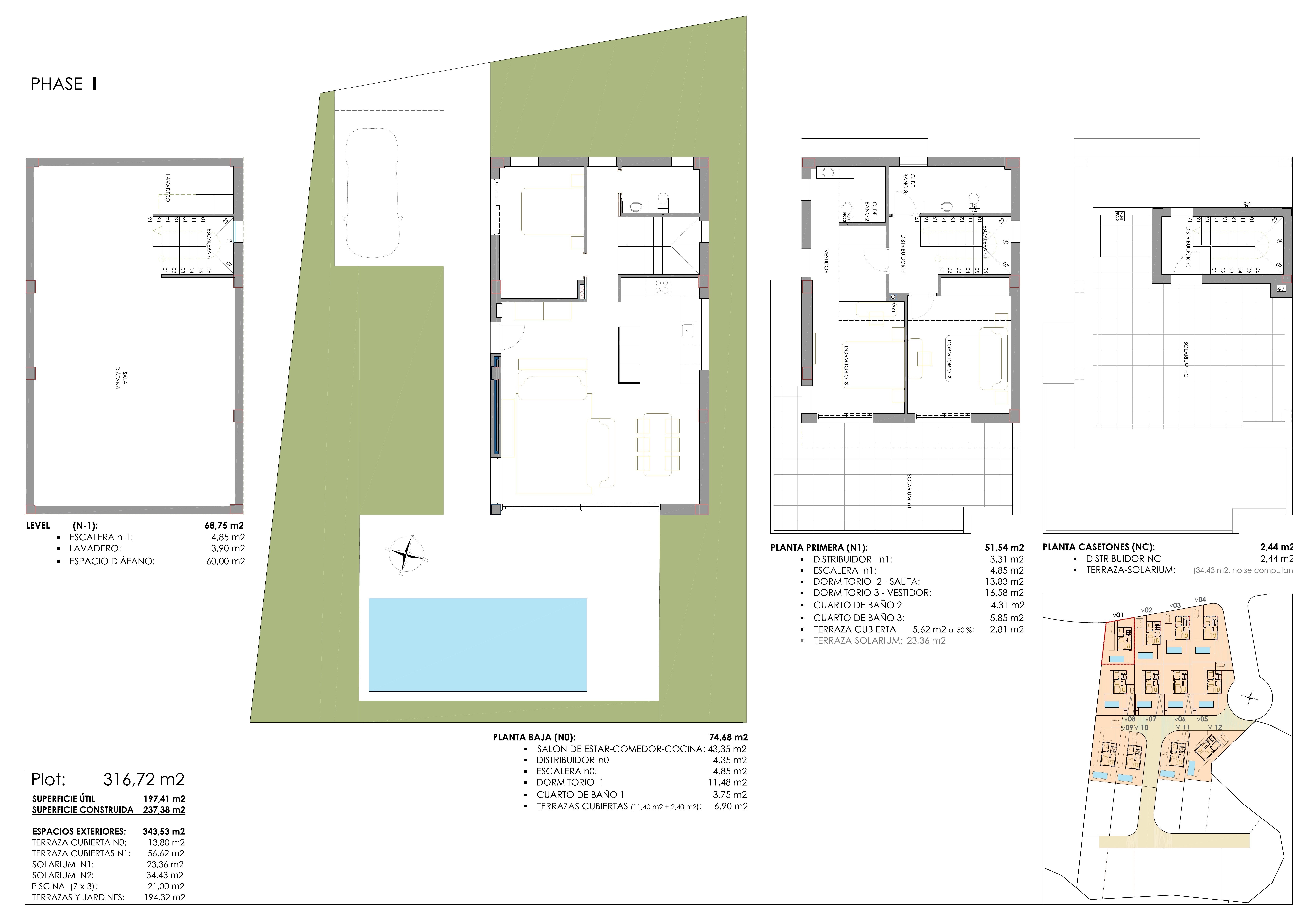
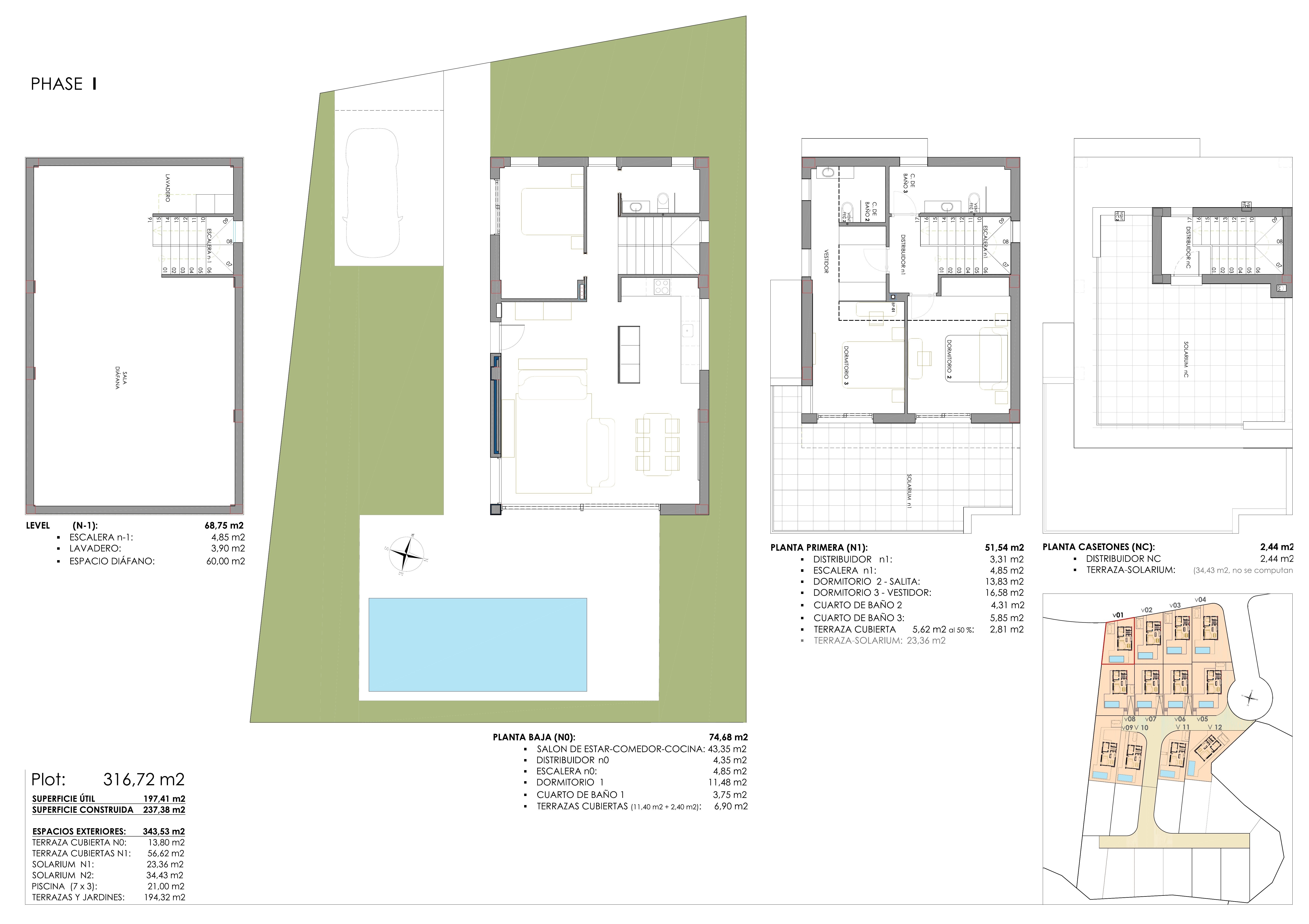
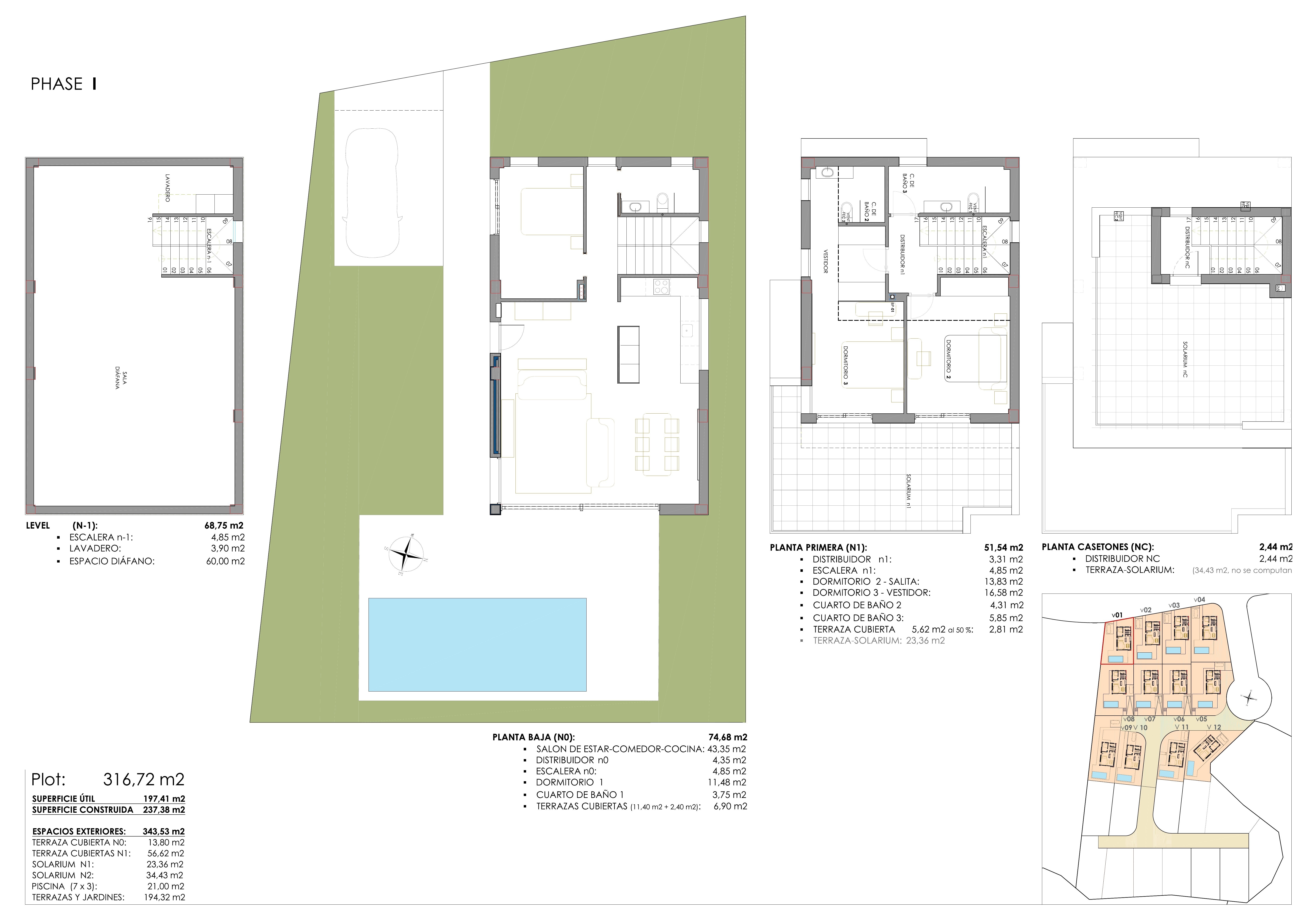
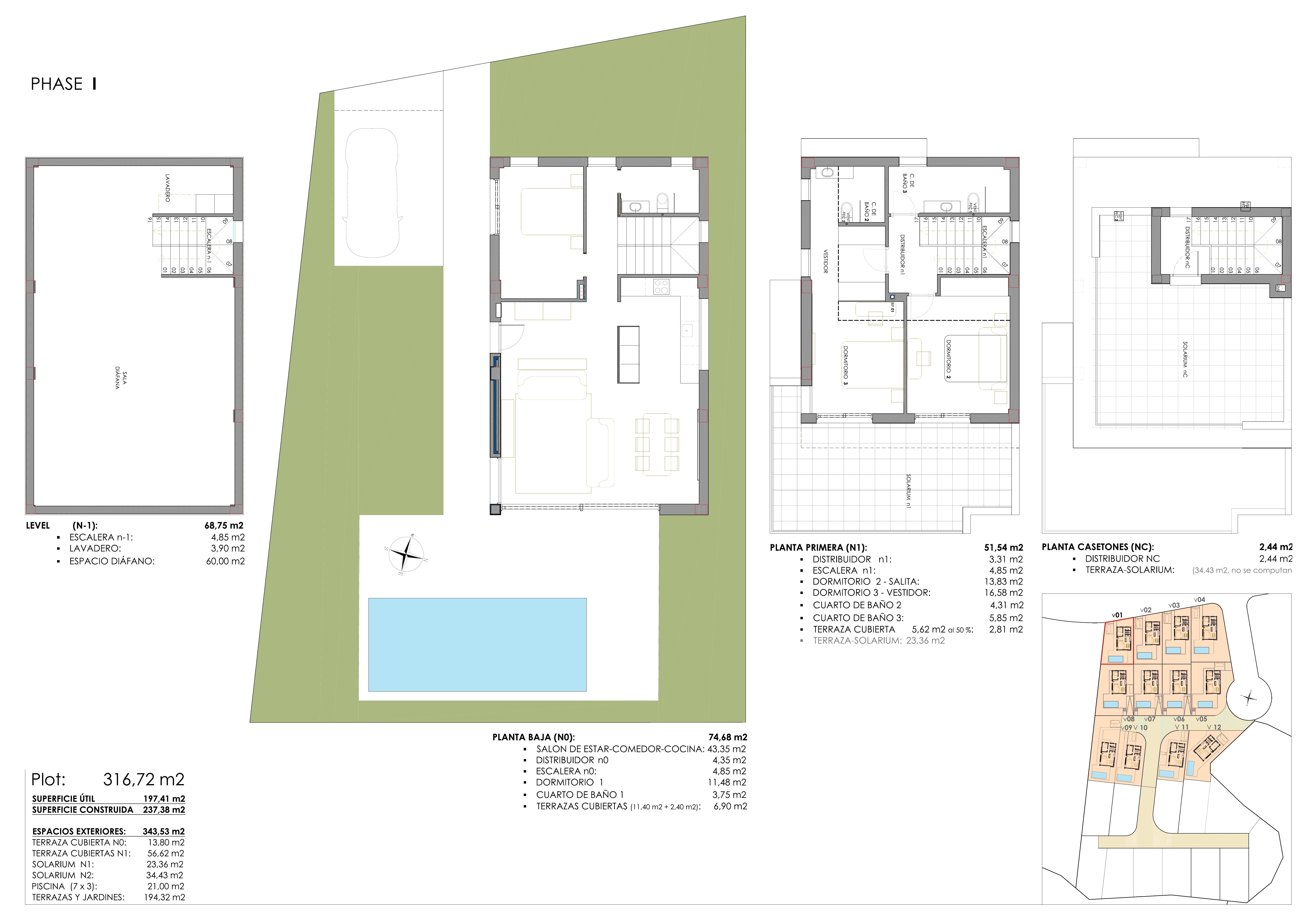
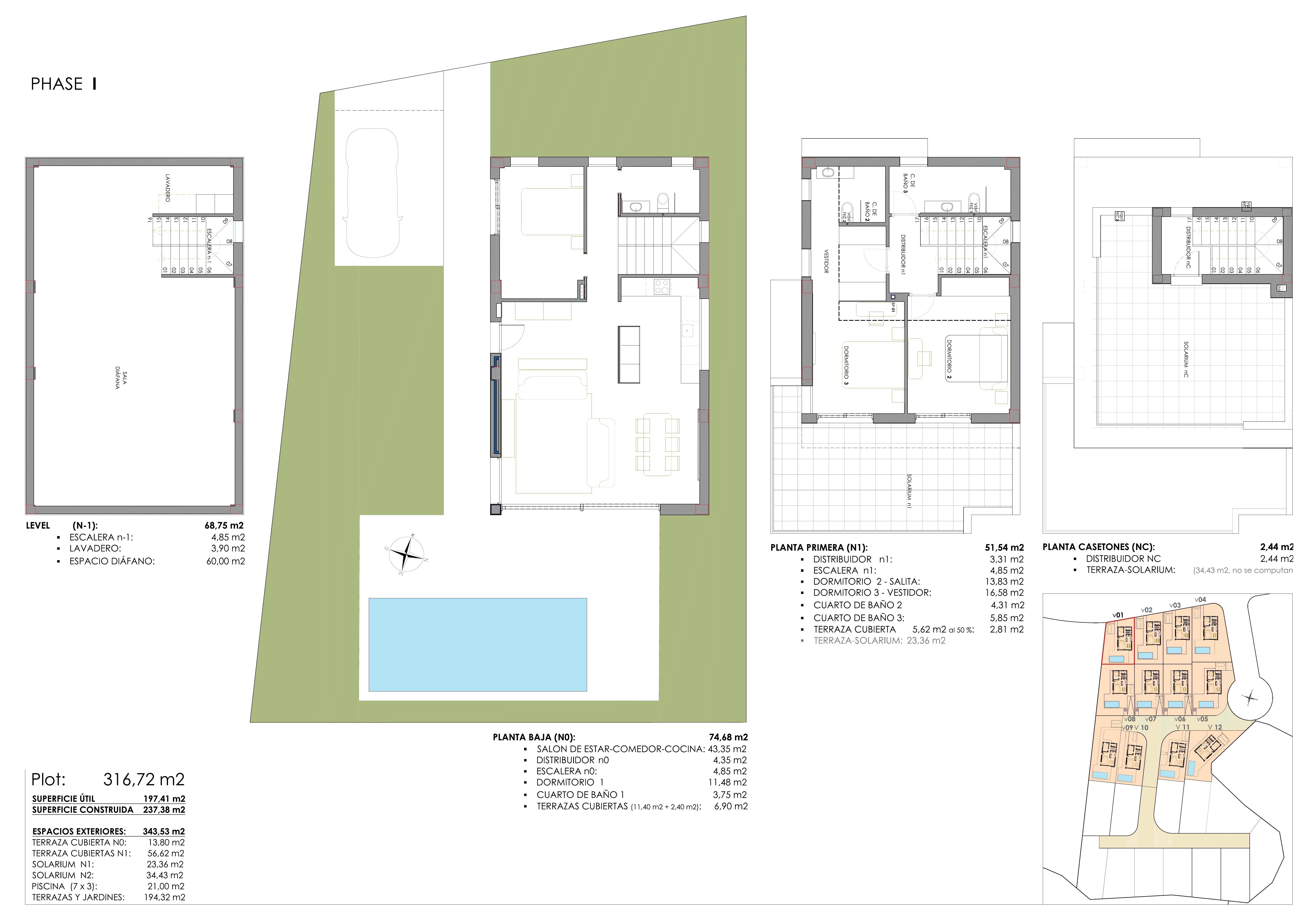
Explora un desarrollo residencial excepcional compuesto por 24 exclusivas villas de nueva construcción. Aquí, los futuros propietarios tienen la oportunidad de seleccionar entre modelos destacables y personalizar su hogar según sus preferencias y necesidades específicas.
Cada villa ofrece un diseño estándar con una superficie de 339 m², distribuidos en tres niveles, con parcelas que van de 304 m² a 357 m². En la planta baja, disfrutarás de un amplio salón con cocina americana, un dormitorio principal con armario empotrado y un baño completo. Tanto el salón como el dormitorio tienen acceso directo al jardín y a una espléndida piscina.
En la planta superior, encontrarás dos dormitorios adicionales, uno equipado con armarios empotrados y otro con un vestidor y baño en suite. Además, se incluye un tercer baño completo. Ambos dormitorios tienen salida a una amplia terraza soleada que ofrece vistas impresionantes del entorno natural y del mar Mediterráneo.
Ventajas de una nueva construcción en Mirador del Sol
Los propietarios cuentan con la opción de ampliar su villa con un espacioso sótano, que puede transformarse en sala de estar adicional, dormitorio, gimnasio, bodega, o un amplio garaje para varios vehículos. Además, es posible añadir un solárium en la cubierta, ideal para instalar tumbonas, un jacuzzi, y una zona chill-out, maximizando así las impresionantes vistas en un entorno privilegiado.
Estas villas exclusivas incluyen característicos como mamparas de ducha, calefacción por suelo radiante en los baños, un moderno sistema de aerotermia para agua caliente, aire acondicionado, y una puerta motorizada para el acceso a aparcamiento privado. Actualmente, cada villa está en construcción con fecha de finalización para el primer trimestre de 2025.
Vida en la ciudad San Miguel de Salinas
Situado cerca del encantador municipio de San Miguel de Salinas, este enclave residencial brinda acceso a una amplia variedad de servicios, como supermercados, tiendas especializadas, restaurantes de calidad, y escuelas. Además, se encuentra estratégicamente ubicado cerca de prestigiosos campos de golf y de las impresionantes playas de arena dorada de la región. Este entorno ofrece un equilibrio perfecto entre la serenidad del paisaje y la cercanía de todo lo necesario para disfrutar de una vida cómoda y sofisticada.
Propiedades
La información aportada de precios, especificaciones y detalles de esta promoción es susceptible de posibles variaciones y cambios según el fuente. Por lo que no dispone de un valor comercial en sí misma, sino que es meramente informativa y orientativa. Esta web no comercializa este proyecto o inmueble.
No se encontraron resultados.
Cambie la configuración del filtro.
Complex information
- Número de unidades6
- Rango de precios1 000 000 € - 1 000 000 €
- Cantidad de dormitorios2
- Superficie237 m² - 237 m²
- Tipos de inmueblesVillas
Para agentes y agencias
Información del proyecto / Estado de obra
- Año de entrega2026
- Estado PromociónEn construcción
- Licencia de obraConcedida
- Formato de la promociónLibre
Memoria de Calidades
- PavimentoGres porcelánico
- CarpinteríaAluminio Rotura Puente Térmico
- CalefacciónSuelo Radiante
- Agua calienteAerotermia
Datos de la propiedad
- Tipo de cocinaCocina americana
- Equipamiento de cocinaCon muebles
- m2 construidos237 m²
- Tipo de la propiedadObra nueva
Cerca de:
- Distancia Aeropuerto56 km
- Distancia Hospital11.1 m
- Distancia al mar7000 m
Base
- Total inmuebles24
- Total plantas3
Certificación energética
- Consumo energético A
- CEE EmisiónA
Promociones destacadas en España
Facilidades
Comodidades de la vivienda
- Aire acondicionado
- Armarios empotrados
En edificio
- Piscina
- Ascensor
- Gimnasio
- Videoportero
- Zonas verdes
- Solárium
- Jardin
- Parking privado
- Sótano
Tipo de cocina
- Cocina con Isla
Documentos
Planos
Dirección
Alicante, San Miguel de Salinas
Going to this location!Informe sobre la calidad
Estructura y Aislamiento
- Estructura de hormigón armado antisísmica.
- Aislamiento térmico y acústico en toda la vivienda.
- Revestimiento exterior en piedra mampostería y morteros suaves.
Pavimentos y Escaleras
- Solado de gres porcelánico o pasta en toda la vivienda.
- Escalera interior en mármol o porcelánico.
- Barandilla metálica o de cristal.
Acabados Interiores
- Pintura interior en tonos suaves a elegir.
Cocina
- Muebles altos y bajos.
- Encimera de granito o Silestone.
- Electrodomésticos incluidos.
Baños
- Sanitarios suspendidos de porcelana vitrificada.
- Grifería de diseño.
- Muebles de baño suspendidos.
- Suelo radiante en los baños.
Carpintería Interior y Exterior
- Puertas de paso en color blanco (80 x 210 cm) con cierre magnético.
- Armarios empotrados con iluminación interior.
- Puerta de entrada acorazada.
- Ventanas de aluminio con rotura de puente térmico.
- Acristalamiento térmico y acústico.
- Persianas motorizadas.
- Puerta de entrada y parking paneladas.
Instalaciones
- Instalación eléctrica Niessen o similar.
- Telecomunicaciones con fibra óptica.
- Agua caliente sanitaria por aerotermia con depósito de 190 litros.
- Preinstalación de climatización por conductos en toda la vivienda.
- Máquinas de aire acondicionado incluidas.
- Videoportero en la entrada de la parcela.
Exteriores
- Acerado perimetral, acceso peatonal y de vehículos pavimentado.
- Solárium y vallado de parcela.
- Iluminación exterior LED.
- Iluminación en la piscina.
Opciones (ver tarifas)
- Vivienda totalmente amueblada, con iluminación y decoración.
- Sistema de alarma.
- SPA jacuzzi integrado en la piscina.
- Suelo radiante en toda la vivienda.
