Terreno en calle Granxa s/n

A Coruña, Cedeira, Calle Granxa s/n
20 000 €
Leave review
Urbanizable Property type
824 m² Land area
Zoned Developable land
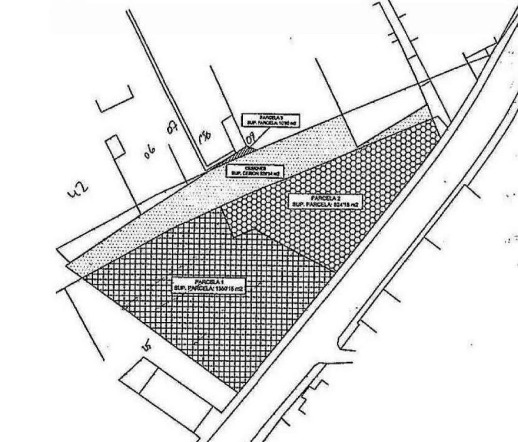
Este inmueble está sujeto al periodo de oferta+. Tienes hasta el 22/12/2024 para presentar tu mejor oferta sobre el precio de salida publicado. La oferta más alta gana. Suelo urbanizable programado situado en el camino Xunqueira, concretamente en la calle Granxa, situado en el municipio de Cedeira. La parcela tiene una superficie adoptada de 824,15 m², incluidos en el ámbito URME 2. La edificabilidad que tiene la parcela es para vivienda libre 441,33 m² y para vivienda protegida 189,41 m², 4 viviendas libres y 2 viviendas de VPO. Solicita información sin compromiso!

Property characteristics

Complex information

  • Property type
    Urbanizable

Property data

  • Property type
    Second hand

Surfaces

  • Land area
    824 m²

Base

  • Non-developable land
    Protected
  • Developable land
    Zoned

Facilities

Additional Features:

Building plot

Plans

Market price statistics for Terreno en calle Granxa s/n

Map

A Coruña, Cedeira, Calle Granxa s/n Going to this location!
Leave a review about Terreno en calle Granxa s/n
0
0 reviews
1
0% (0)
2
0% (0)
3
0% (0)
4
0% (0)
5
0% (0)
Cisbar Inmobiliaria
20 000 €
Contact advertiser

For more information contact the platform

REF: 348315

Reviews about Terreno en calle Granxa s/n
Loading...

No reviews have been left for this object yet

Nearest properties

Explore nearby properties we've discovered in close proximity to this location

Terreno en Valdoviño

A Coruña, Valdoviño, Valdoviño
110 000 €

Finca con vistas al mar en Pantín: naturaleza, proyecto y futuro en un mismo lug...

0
0 reviews

Terreno en Lugar Lamelas, 6

A Coruña, Cedeira, Lugar Lamelas, 6
89 000 €

Finca Lugar Lamelas, es una fantástica finca urbanizable ubicada en la parte alt...

0
0 reviews

Terreno en Lugar Pereira, 17

A Coruña, Valdoviño, Lugar Pereira, 17
110 000 €

Se vende terreno edificable con vistas privilegiadas a la playa de Pantín (Valdo...

0
0 reviews

Terreno en Lg a Trabe

A Coruña, Cedeira, Lg A Trabe
60 000 €

**Terreno en Venta en A Trabe, Cedeira - ¡Tu oportunidad de construir el hogar d...

0
0 reviews

Terreno en Cedeira

A Coruña, Cedeira, Cedeira
90 000 €

Se vende parcela urbanizable a la entrada de cedeira. Dispone de todos los servi...

0
0 reviews

Terreno en camino Logueirido

A Coruña, Cedeira, Camino Logueirido
92 000 €

Se venden terrenos urbanos NO CONSOLIDADOS, zona 1 de baja densidad, en Cedeira...

0
0 reviews

Terreno en Lagares s/n sn

A Coruña, Valdoviño, Lagares s/n sn
145 000 €

Finca con vistas al mar. A 5 min de la playas de Pantín y Baleo. Precio negociab...

0
0 reviews

Terreno en Vila Do Rio

A Coruña, Cedeira, VILA DO RIO
32 000 €

� ¡EXCLUSIVO TERRENO EN VENTA EN CEDEIRA! � Si buscas el lugar PERFECTO para con...

0
0 reviews

Terreno en Valdoviño

A Coruña, Valdoviño, Valdoviño
66 000 €

Descubre esta impresionante parcela de 965 m² en Valdoviño, ubicada en la TRANQU...

0
0 reviews
Call

We use our own and third-party cookies to analyze website usage and show you advertisements related to your preferences based on a profile created from your browsing habits (e.g., pages visited). More information. Do you accept cookies?