Terreno en calle Santa Rosa, 34

Alicante, Alcoy, Barri Santa Rosa, Calle Santa Rosa, 34
1 500 000 €
Leave review
Urbanizable Property type
900 m² Land area
7 Buildable plots
900 m² Buildability
Urban access Access type
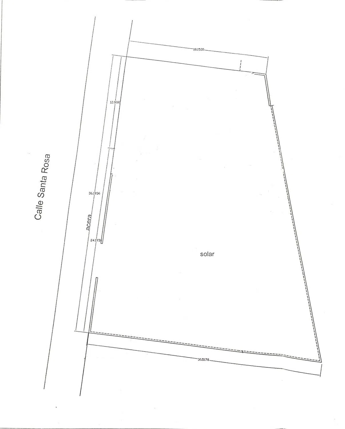
Solar urbano en pleno corazón del barrio de Santa Rosa, una de las principales avenidas de la ciudad de Alcoy, sobre el cual hay un proyecto redactado de 35 viviendas, 3 locales comerciales y 3 plantas de garaje. El solar está destinado para uso residencial, ubicado a 64 km de Alicante. Esta parcela urbanizable que cuenta con un amplio abanico de servicios comerciales a su alrededor tales como, restaurantes, supermercados, bancos, centro comercial, colegios, parque tecnológico urbano de Rodes, etc, sin duda, siendo el único solar disponible en toda la calle de santa Rosa, es una excelente oportunidad para la construcción de un edificio de obra nueva con buenas calidades. Esta parcela urbanizable tiene una superficie de 900 m², de uso residencial C-2 para la construcción de viviendas en bloque. Con condiciones ventajosas de permuta.

Property characteristics

Complex information

  • Property type
    Urbanizable

Property data

  • Property type
    Second hand

Surfaces

  • Land area
    900 m²

Base

  • Minimum sale plot
    900 m²
  • Possibility of building
    High-rise residential (blocks)
  • Buildable plots
    7
  • Buildability
    900 m²
  • Access type
    Urban access

Market price statistics for Terreno en calle Santa Rosa, 34

Map

Alicante, Alcoy, Barri Santa Rosa, Calle Santa Rosa, 34 Going to this location!
Leave a review about Terreno en calle Santa Rosa, 34
0
0 reviews
1
0% (0)
2
0% (0)
3
0% (0)
4
0% (0)
5
0% (0)
Inmobiliaria carbonell
1 500 000 €
Contact advertiser

For more information contact the platform

REF: 400383

Reviews about Terreno en calle Santa Rosa, 34
Loading...

No reviews have been left for this object yet

Nearest properties

Explore nearby properties we've discovered in close proximity to this location

Terreno en Cocentaina

Alicante, Cocentaina
100 000 €

A la venta, parcela urbanizable en urbanización Gormaig, 1221 m². Superficie edi...

0
0 reviews

Terreno en calle Metge Goncal Salvador, 9 -5

Alicante, Alcoy, Center - High Zone, Calle Metge Goncal Salvador, 9 -5
12 000 €

SegundoB Real Estate comercializa en exclusiva este solar de 166 m2 de superfici...

0
0 reviews

Terreno en Barchell - Heredad De Don Paco

Alicante, Alcoy, Barri Batoi - Sargento - Baradello, BARCHELL - HEREDAD DE DON PACO
220 000 €

Parcelas de suelo rústico y suelo urbanizable situadas en Alcoy. Cuentan con una...

0
0 reviews

Terreno en calle Beniasent

Alicante, Cocentaina
29 000 €

Suelo urbanizable delimitado de 2.887 m² y de 2.243 m² de uso residencial, en ve...

0
0 reviews

Terreno en calle Beniasent

Alicante, Cocentaina
49 000 €

Suelo urbanizable delimitado de 2.887 m² y de 2.243 m² de uso residencial, en ve...

0
0 reviews

Terreno en Pt Cotes Altes, Sc Solana i

Alicante, Alcoy, Barri Zona Nord, Pt Cotes Altes, Sc Solana I
1 518 000 €

Parcela de terreno con una superficie de 10127,18 m² situado en la localidad de...

0
0 reviews

Terreno en calle Almudaina s/n sn

Alicante, Cocentaina
43 950 €

¿VIVES FUSTRADO EN UNA CARCEL DE 4 PAREDES? ¡CONSTRUYE TU PROPIA CASA CON ZONA J...

0
0 reviews

Terreno en Urbanització l'Estepar s/n

Alicante, Alcoy, Center - High Zone, Urbanització l'Estepar s/n
45 000 €

Se está tramitando el programa de gestión que dotará al sector de servicios y co...

0
0 reviews

Terreno en Sc Sunp-4 el Sargento, 89

Alicante, Alcoy, Barri Batoi - Sargento - Baradello, Sc SUNP-4 el Sargento, 89
85 000 €

Estupenda parcela de 2600 m2, ubicada en El Sargento, a menos de 5 km. de Alcoy....

0
0 reviews
Call

We use our own and third-party cookies to analyze website usage and show you advertisements related to your preferences based on a profile created from your browsing habits (e.g., pages visited). More information. Do you accept cookies?