Spain Residential Spain Residential Alicante Residential Alicante Edificio en Barrio Ensanche-Diputación

Edificio en Barrio Ensanche-Diputación

Alicante, Alicante, Center, Barrio Ensanche-Diputación
1 800 000 €
1 268 € / m2
Leave review
Residential Property type
1 419 m² built square meters
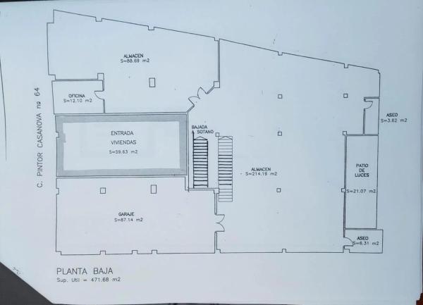
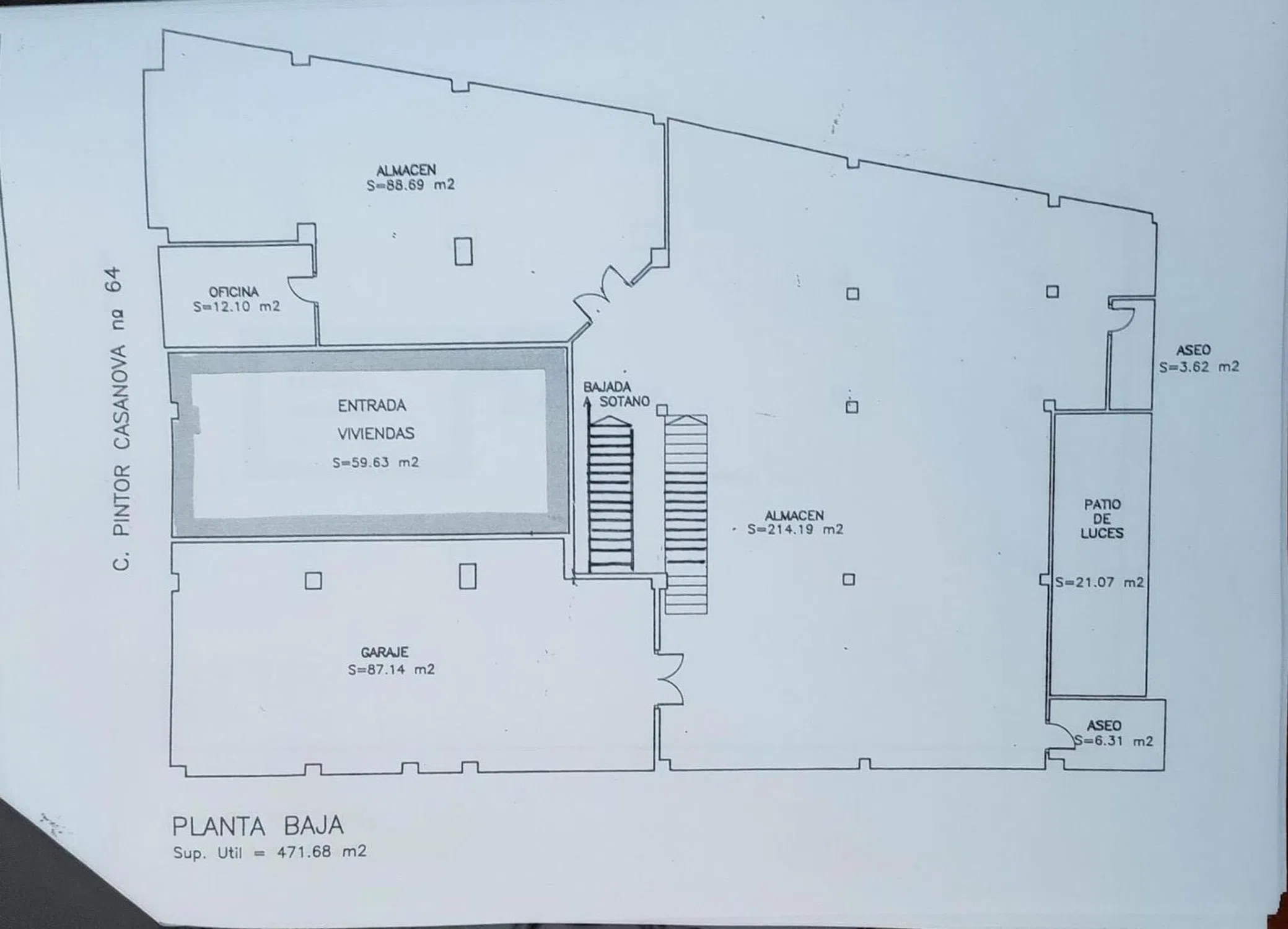
Se pone a la venta un activo ubicado en una zona de alto potencial turístico, que consta de una entreplanta de 462 m², una planta baja y un sótano de 962 m², lo que ofrece un total de 1.424 m² de superficie útil. Este inmueble está diseñado para la conversión en entre 15 y 20 apartamentos turísticos de una habitación, tipo hotel, con una distribución que maximiza el aprovechamiento del espacio para ofrecer comodidad y funcionalidad. Además, cuenta con 80 trasteros, lo que agrega un valor adicional a la oferta, atendiendo a una creciente demanda de espacios de almacenamiento en la zona. El inmueble dispone de un certificado del ayuntamiento que garantiza la compatibilidad del uso como Pensión o Hostal, lo que abre múltiples posibilidades para su explotación en el sector turístico. Asimismo, existe un proyecto técnico ya elaborado, que detalla la transformación del espacio en apartamentos turísticos y trasteros, lo que facilita y acelera la ejecución del proyecto sin necesidad de comenzar desde cero. Con una ubicación privilegiada, ideal para aprovechar el flujo de turistas, esta propiedad representa una oportunidad única de inversión en el sector del alojamiento turístico. El precio de venta es de 1.800. 000 euros, ofreciendo un atractivo potencial de rentabilidad a corto y medio plazo.

Property characteristics

Complex information

  • Property type
    Residential

Property data

  • built square meters
    1 419 m²
  • Property type
    Second hand

Plans

Market price statistics for Edificio en Barrio Ensanche-Diputación

Map

Alicante, Alicante, Center, Barrio Ensanche-Diputación Going to this location!
Leave a review about Edificio en Barrio Ensanche-Diputación
0
0 reviews
1
0% (0)
2
0% (0)
3
0% (0)
4
0% (0)
5
0% (0)
MartínezRincón
1 800 000 €
from 1 268 € / m2
Contact advertiser

For more information contact the platform

REF: 248699

Reviews about Edificio en Barrio Ensanche-Diputación
Loading...

No reviews have been left for this object yet

Nearest properties

Explore nearby properties we've discovered in close proximity to this location

Edificio residencial en venta en campoamor s/n

Alicante, Alicante, Campoamor-Carolinas-Altozano, Campoamor s/n
380 000 €

¡Gran oportunidad de inversión en venta! Este espectacular edificio de tres plan...

0
0 reviews

Edificio residencial

Alicante, Alicante, Los Angeles-Tombola-San Nicolás, Barrio Los Ángeles
430 000 €

EL ANGEL INMOBILIARIA ofrece en venta Local comercial muy bien situad para cambi...

0
0 reviews

Edificio en Barrio Ciudad de Asís - Font-Calent - El Bacarot

Alicante, Alicante, Los Angeles-Tombola-San Nicolás, Barrio Ciudad de Asís - Font-Calent - El Bacarot
4 000 000 €

CAVALIER VENDE. Edificio de oficinas de 3200 m2 construidos con 3 plantas y 1 ga...

0
0 reviews

Edificio en Barrio La Albufereta

Alicante, Alicante, San Juan-El Cabo Beach, Barrio La Albufereta
598 900 €

¡Atención Inversores! Oportunidad Única de Alta Rentabilidad en Alicante - Edifi...

0
0 reviews

Edificio de uso mixto en calle Navas s/n

Alicante, Alicante, Center, Calle Navas s/n
780 000 €

! Edificio en venta en el centro Alicante! Se vende edificio completo de tres p...

0
0 reviews

Edificio en calle Jacinto Maltés

Alicante, Alicante, Campoamor-Carolinas-Altozano, Calle Jacinto Maltés
850 000 €

COMPLEJO TURÍSTICO céntrico, a 20 minutos de la Playa del Postiguet, cercano a t...

0
0 reviews

Edificio hotelero

Alicante, Alicante, San Juan-El Cabo Beach, Barrio Cabo de las Huertas
2 100 000 €

* OPORTUNIDAD INVERSORES * *** PRECIOSO HOSTAL A 700 METROS DEL MAR *** Se vende...

0
0 reviews

Edificio en Barrio Raval Roig-Virgen del Socorro

Alicante, Alicante, Plà del Bon Repòs-La Goteta-San Antón, Barrio Raval Roig-Virgen del Socorro
680 000 €

En una de las zonas más exclusivas de Alicante, se encuentra este espectacular e...

0
0 reviews

Edificio hotelero

Alicante, San Vicente del Raspeig, Mayor Felipe Mallol, Alcalde Felipe Mallol
1 750 000 €

Desde ôkhome ofrecemos a la venta este edificio completo ubicado en Calle Lillo...

0
0 reviews
Call

We use our own and third-party cookies to analyze website usage and show you advertisements related to your preferences based on a profile created from your browsing habits (e.g., pages visited). More information. Do you accept cookies?