Edificio en Barrio Mercado

Alicante, Alicante, Center, Barrio Mercado
930 000 €
1 637 € / m2
Leave review
Residential Property type
568 m² built square meters
1 Floor
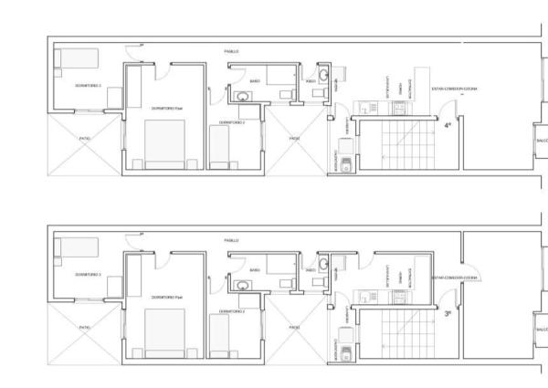
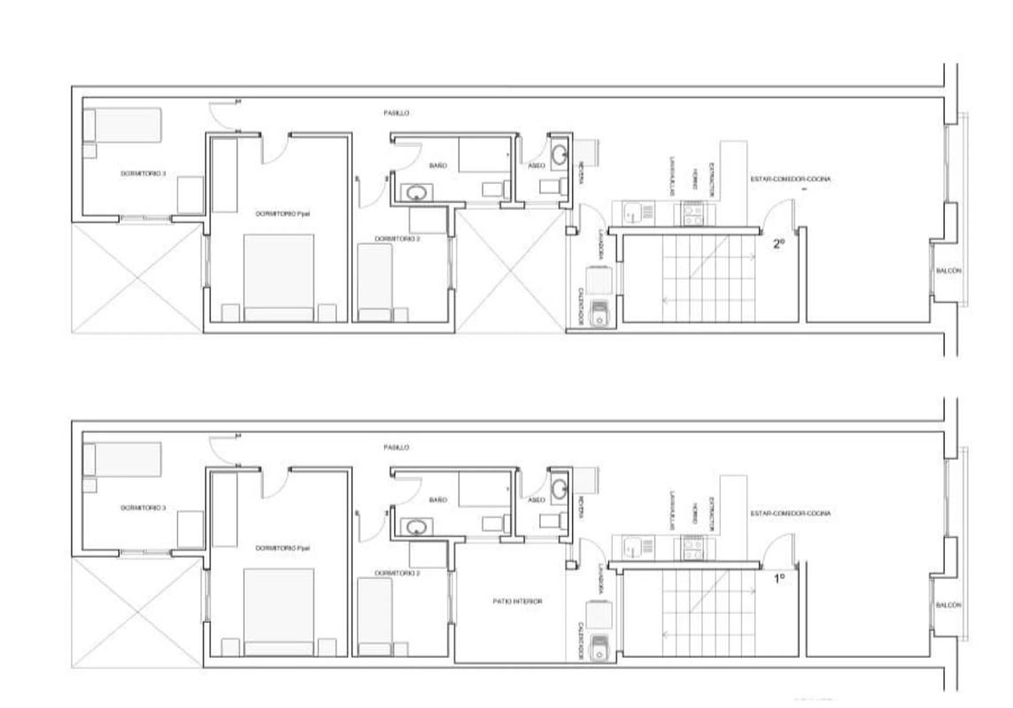
� Edificio Residencial en el Centro Urbano – Oportunidad de Inversión Única � Se pone a la venta un edificio completo entre medianeras, construido en 1976, con gran potencial de rehabilitación y rentabilidad. Situado en una ubicación estratégica, este inmueble destaca por su distribución funcional y por su excelente orientación y ventilación natural. � Distribución del edificio: Planta baja con local comercial Cuatro plantas con una vivienda por planta Última planta destinada a castillete de escalera y acceso a cubierta Superficie de solar: 114,55 m² Altura libre interior de 2,65 m Cada vivienda ofrece un diseño abierto con espacios bien iluminados gracias a dos patios interiores, y detalles diferenciados que aportan valor añadido: Primera planta con patio de uso privativo Tercera planta con cocina independiente del salón-comedor ✨ Ideal para inversión como edificio residencial, alquiler turístico o apartamentos por planta. Aunque no dispone de ascensor, el edificio se encuentra en buen estado estructural y permite adecuaciones conforme a normativa actual en accesibilidad y protección contraincendios. � Una oportunidad perfecta para promotores, inversores o familias que buscan un proyecto con carácter y ubicación. � Contacta ahora para más información o agendar una visita.

Property characteristics

Complex information

  • Property type
    Residential

Property data

  • Floor
    1
  • built square meters
    568 m²
  • Property type
    Second hand

Plans

Market price statistics for Edificio en Barrio Mercado

Map

Alicante, Alicante, Center, Barrio Mercado Going to this location!
Leave a review about Edificio en Barrio Mercado
0
0 reviews
1
0% (0)
2
0% (0)
3
0% (0)
4
0% (0)
5
0% (0)
Inmo Mash Alicante
930 000 €
from 1 637 € / m2
Contact advertiser

For more information contact the platform

REF: 248686

Reviews about Edificio en Barrio Mercado
Loading...

No reviews have been left for this object yet

Nearest properties

Explore nearby properties we've discovered in close proximity to this location

Edificio residencial en venta en campoamor s/n

Alicante, Alicante, Campoamor-Carolinas-Altozano, Campoamor s/n
380 000 €

¡Gran oportunidad de inversión en venta! Este espectacular edificio de tres plan...

0
0 reviews

Edificio residencial

Alicante, Alicante, Los Angeles-Tombola-San Nicolás, Barrio Los Ángeles
430 000 €

EL ANGEL INMOBILIARIA ofrece en venta Local comercial muy bien situad para cambi...

0
0 reviews

Edificio en Barrio Ciudad de Asís - Font-Calent - El Bacarot

Alicante, Alicante, Los Angeles-Tombola-San Nicolás, Barrio Ciudad de Asís - Font-Calent - El Bacarot
4 000 000 €

CAVALIER VENDE. Edificio de oficinas de 3200 m2 construidos con 3 plantas y 1 ga...

0
0 reviews

Edificio en Barrio La Albufereta

Alicante, Alicante, San Juan-El Cabo Beach, Barrio La Albufereta
598 900 €

¡Atención Inversores! Oportunidad Única de Alta Rentabilidad en Alicante - Edifi...

0
0 reviews

Edificio de uso mixto en calle Navas s/n

Alicante, Alicante, Center, Calle Navas s/n
780 000 €

! Edificio en venta en el centro Alicante! Se vende edificio completo de tres p...

0
0 reviews

Edificio en Alcalde Felipe Mallol

Alicante, San Vicente del Raspeig, Mayor Felipe Mallol, Alcalde Felipe Mallol
495 000 €

Edificio en excelente estado en el centro de San Vicente del Raspeig Se vende ma...

0
0 reviews

Edificio en calle Jacinto Maltés

Alicante, Alicante, Campoamor-Carolinas-Altozano, Calle Jacinto Maltés
850 000 €

COMPLEJO TURÍSTICO céntrico, a 20 minutos de la Playa del Postiguet, cercano a t...

0
0 reviews

Edificio hotelero

Alicante, Alicante, San Juan-El Cabo Beach, Barrio Cabo de las Huertas
2 100 000 €

* OPORTUNIDAD INVERSORES * *** PRECIOSO HOSTAL A 700 METROS DEL MAR *** Se vende...

0
0 reviews

Edificio en Barrio Raval Roig-Virgen del Socorro

Alicante, Alicante, Plà del Bon Repòs-La Goteta-San Antón, Barrio Raval Roig-Virgen del Socorro
680 000 €

En una de las zonas más exclusivas de Alicante, se encuentra este espectacular e...

0
0 reviews
Call

We use our own and third-party cookies to analyze website usage and show you advertisements related to your preferences based on a profile created from your browsing habits (e.g., pages visited). More information. Do you accept cookies?