Sale of ground in Benalúa-La Florida-Babel-San Gabriel, Alicante

Alicante, Alicante, Benalúa-La Florida-Babel-San Gabriel
Sold out
Leave review
Ground floors Property type
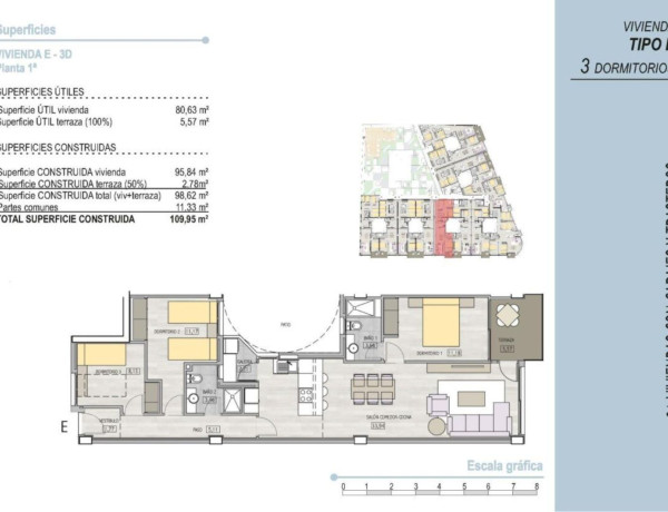
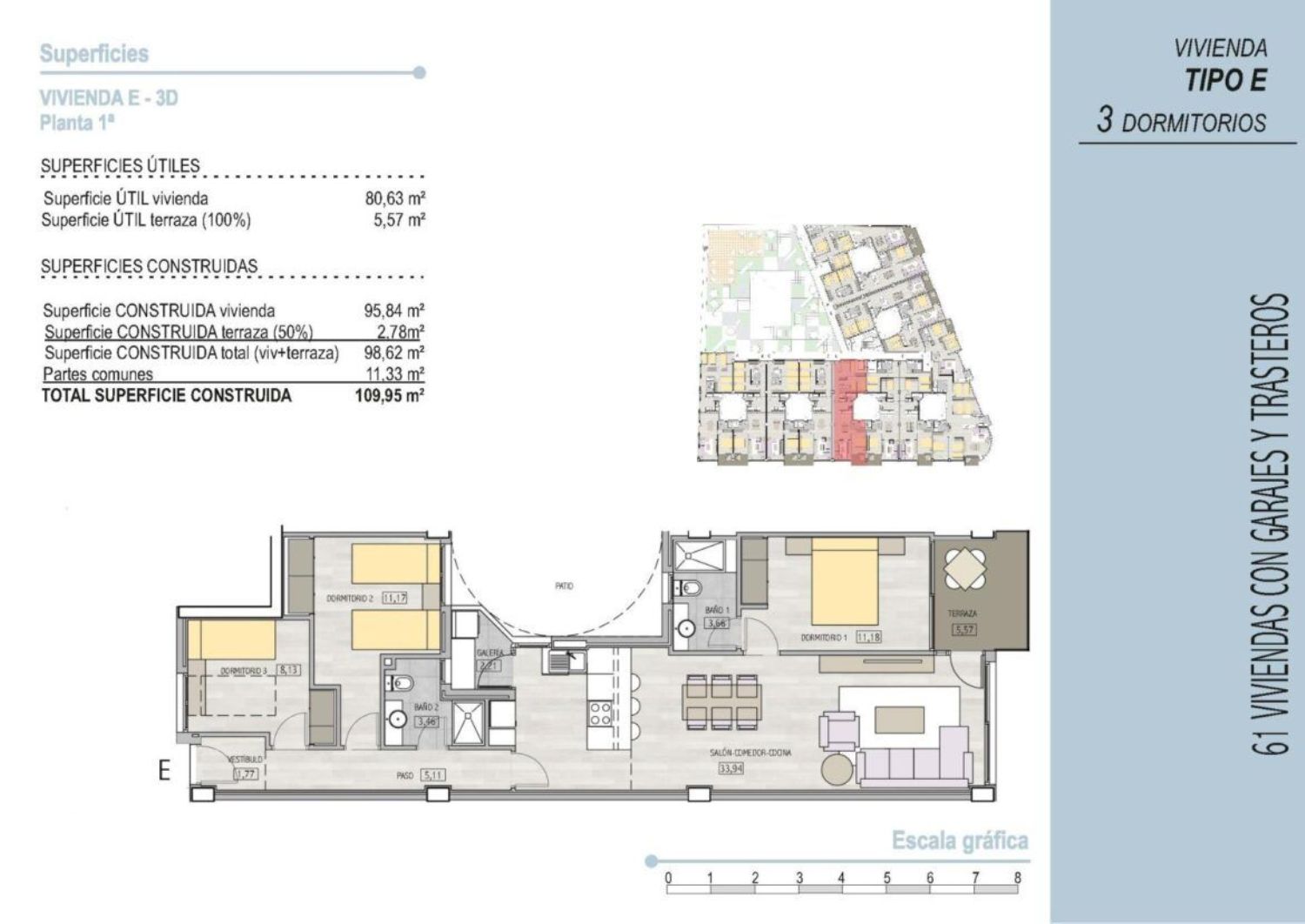
3 Bedrooms
109 m² built square meters
2 Bathrooms
It has no heating. Heating
Exterior Window distribution
COMPLEJO RESIDENCIAL DE OBRA NUEVA EN ALICANTE Complejo residencial de obra nueva de 61 apartamentos y áticos de 2, 3 y 4 dormitorios en el barrio de La Florida, Alicante. El residencial dispone de solarium comunitario en azotea con piscinas para adultos y niños, zonas verdes y chill-out y jardín comunitario con parque infantil en planta baja. El complejo se beneficia de la luz de la ciudad y de su clima privilegiado. Además, su avanzado sistema de eficiencia energética A+ lo hace totalmente sostenible. El barrio de La Florida es uno de los barrios más emblemáticos de la capital alicantina, un distrito caracterizado por su hábil combinación de calles estrechas con amplias avenidas y plazas con encanto, todas ellas llenas de vida vecinal, donde las fiestas y tradiciones locales son muy populares, y donde conviven los comercios tradicionales con tiendas innovadoras y todo tipo de servicios. Así, el barrio está perfectamente comunicado con los accesos a la autovía. Además, varias líneas de autobús permiten llegar al centro de la ciudad en no más de 10-15 minutos. A lo largo de las calles que conforman el distrito, se puede disfrutar de la más amplia oferta de ocio y restauración. Tomar un café, elegir un restaurante, tomar una copa o realizar todo tipo de compras está al alcance de la mano en cualquier momento. Desde pequeños comercios locales, pasando por mercados de abastos, hasta grandes cadenas de supermercados e hipermercados, los vecinos de La Florida tienen a su disposición una amplia variedad de establecimientos donde llenar su cesta de la compra con los productos de mejor calidad, todo ello con la comodidad de estar cerca de casa. Además, todos los jueves y sábados, el barrio colindante de Florida-Babel, a pocos minutos a pie, ofrece un mercadillo tradicional. Florida ofrece a sus residentes centros educativos para todas las edades. Guarderías y jardines de infancia, escuelas primarias y secundarias, y varios institutos de enseñanza media hacen posible que todos los padres tengan suficiente con que sus hijos estudien en el barrio. Además, una línea especial de autobús conecta diariamente el barrio con la Universidad de Alicante.

Property characteristics

Complex information

  • Property type
    Ground floors

Quality Report

  • Heating
    It has no heating.

Property data

  • Bedrooms
    3
  • Bathrooms
    2
  • built square meters
    109 m²
  • Property type
    Second hand

Base

  • Window distribution
    Exterior

Facilities

Housing Amenities:

Heating
Exterior window

In building:

Swimming Pool
Elevator
Bar
Children's area
Garden Zones
Green Areas
Solarium
Garden

State:

Good condition
New construction

Market price statistics for Piso en venta en La Florida

268 000 € (2 809 €/m2)
Average price of primary Ground floors in city Alicante

Map

Alicante, Alicante, Benalúa-La Florida-Babel-San Gabriel Going to this location!
Leave a review about Piso en venta en La Florida
0
0 reviews
1
0% (0)
2
0% (0)
3
0% (0)
4
0% (0)
5
0% (0)
Mivo Business Centre
Sold out
Contact advertiser

For more information contact the platform

REF: 45572

Reviews about Piso en venta en La Florida
Loading...

No reviews have been left for this object yet

Nearest properties

Explore nearby properties we've discovered in close proximity to this location

Piso en venta en avenida d'Elx

Alicante, Alicante, Benalúa-La Florida-Babel-San Gabriel, Avenida d'Elx
359 000 €

Fantástica vivienda en planta baja con unas estupendas vistas al mar. Cuenta con...

0
0 reviews

Piso en venta en calle Ceuta

Alicante, Alicante, San Blas-Pau, Calle Ceuta
149 000 €

Vivienda semi-amueblada y con electrodomésticos en la población de Alicante capi...

0
0 reviews

Piso en venta en calle Murcia, 8

Alicante, Alicante, San Blas-Pau, Calle Murcia, 8
159 900 €

Vivienda en planta baja lista para entrar a vivir.

0
0 reviews

Estudio en venta en La Florida

Alicante, Alicante, Benalúa-La Florida-Babel-San Gabriel
115 000 €

Este espectacular local reformado, anteriormente un taller de chapa y pintura, s...

0
0 reviews

Dúplex en venta en La Florida

Alicante, Alicante, Benalúa-La Florida-Babel-San Gabriel
115 000 €

INMOREFOR LES PRESENTA amplia VIVIENDA - LOFT. 120 m2 de planta baja le permite...

0
0 reviews

Piso en venta en La Florida

Alicante, Alicante, Benalúa-La Florida-Babel-San Gabriel
189 000 €

COMPLEJO RESIDENCIAL DE OBRA NUEVA EN ALICANTE Complejo residencial de obra nuev...

0
0 reviews

Piso en venta en calle Ciudad Jardín, 17

Alicante, San Vicente del Raspeig, Center, Calle Ciudad Jardín, 17
97 800 €

Welcome to your new home in San Vicente del Raspeig. Explore our newly developed...

0
0 reviews

Piso en venta en Benalúa

Alicante, Alicante, Benalúa-La Florida-Babel-San Gabriel
397 000 €

APARTAMENTOS DE OBRA NUEVA EN ALICANTE CIUDAD Promoción de 53 apartamentos de ob...

0
0 reviews

Piso en venta en Benalúa

Alicante, Alicante, Benalúa-La Florida-Babel-San Gabriel
273 000 €

APARTAMENTOS DE OBRA NUEVA EN ALICANTE CIUDAD Promoción de 53 apartamentos de ob...

0
0 reviews
Call

We use our own and third-party cookies to analyze website usage and show you advertisements related to your preferences based on a profile created from your browsing habits (e.g., pages visited). More information. Do you accept cookies?