Terreno en calle Colon

Alicante, Alicante, center, Calle Colón
650 000 €
Leave review
Urban Property type
116 m² Land area
3 Buildable plots
561 Buildability
Residential Use of lot
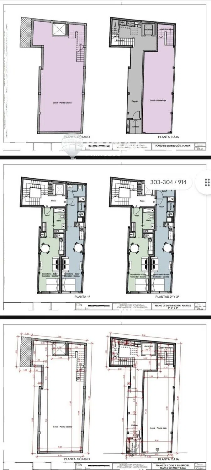
� Solar Centro de Alicante ¡Aprovecha esta increíble oportunidad! Se vende el último solar urbano disponible en pleno corazón de Alicante. Este espacio no solo es único, sino que ya cuenta con un proyecto listo para empezar a construir. Perfecto para promotores o inversores, este solar es tu puerta de entrada a un proyecto con gran potencial. �️ Documentación y licencias al día No te preocupes por la burocracia, todo está listo para que inicies tu proyecto: Licencia de edificación concedida Proyecto de ejecución completo Proyecto ICT (Infraestructura Común de Telecomunicaciones) Proyecto IEBT (Instalaciones de Edificación de Baja Tensión) Estudio geotécnico Estudio de gestión de residuos �️ Edificación proyectada El proyecto incluye la construcción de 6 viviendas de 40 m² y 46 m², además de un local comercial en planta baja de 166 m². Las viviendas están pensadas para su uso residencial, con posibilidad de adaptarse a diferentes perfiles de ocupación según normativa vigente. Una excelente opción para quienes buscan invertir en vivienda urbana en una de las zonas con mayor demanda de Alicante. � Ubicación inmejorable Ubicado a pocos pasos de la Rambla y del casco histórico, estarás rodeado de comercios, restaurantes y transporte público. Es una zona consolidada, con un alto valor y un crecimiento constante, lo que la convierte en un lugar ideal para invertir. Este solar no solo es una inversión, es una oportunidad excepcional para comenzar la construcción sin retrasos. Todo está listo para que te pongas manos a la obra y aproveches al máximo el potencial de Alicante. La combinación de su ubicación estratégica, las licencias disponibles y la demanda de vivienda en la zona son factores que aseguran el éxito de tu proyecto. Si estás buscando un inmueble donde el tiempo de espera sea mínimo y las oportunidades máximas, este solar es tu opción ideal. ¡No dejes pasar esta ocasión! Ofrecido por: RE/MAX PRINCESS Contáctanos para más información y ven a descubrir todo lo que este solar tiene para ofrecerte. ¡No esperes más, el futuro de tu inversión comienza aquí! La información aquí proporcionada en este documento tiene un carácter meramente informativo y orientativo, y no establece ningún tipo de compromiso contractual. Este material se ofrece únicamente con fines comerciales y no debe considerarse vinculante. Cualquier decisión basada en esta información debe ser verificada de manera independiente, y se recomienda consultar con profesionales del sector inmobiliario antes de tomar decisiones definitivas.

Property characteristics

Complex information

  • Property type
    Urban

Property data

  • Property type
    Second hand

Surfaces

  • Land area
    116 m²

Base

  • Minimum sale plot
    116 m²
  • Urban land
    Consolidated (Land)
  • Buildable plots
    3
  • Buildability
    561
  • Use of lot
    Residential

Market price statistics for Terreno en calle Colon

Map

Alicante, Alicante, center, Calle Colón Going to this location!
Leave a review about Terreno en calle Colon
0
0 reviews
1
0% (0)
2
0% (0)
3
0% (0)
4
0% (0)
5
0% (0)
RE/MAX Princess
650 000 €
Contact advertiser

For more information contact the platform

REF: 366026

Reviews about Terreno en calle Colon
Loading...

No reviews have been left for this object yet

Nearest properties

Explore nearby properties we've discovered in close proximity to this location

Terreno en venta en carretera Villafranqueza

Alicante, Alicante, Villafranqueza-Santa Faz-Monegre, Carretera Villafranqueza
1 350 000 €

Suelo urbano consolidado formado por 2 solares situados en la localidad de Villa...

0
0 reviews

Urban land For sell in Alicante in Alicante

Alicante, Alicante
206 000 €

Terreno urbano de 178 m2 donde podrás construir rápidamente ya que el terreno es...

0
0 reviews

Terreno en calle Diputado José Luis Barceló

Alicante, Alicante, Avenues Park - Vistahermosa, Calle Diputado José Luis Barceló
14 000 €

Parcelas de terreno clasificadas como suelo urbano con unas superficies desde 43...

0
0 reviews

Terreno en calle Diputado José Luis Barceló

Alicante, Alicante, Avenues Park - Vistahermosa, Calle Diputado José Luis Barceló
14 000 €

Parcelas de terreno clasificadas como suelo urbano con unas superficies desde 43...

0
0 reviews

Terreno en Barrio Mercado

Alicante, Alicante, Center, Barrio Mercado
1 800 000 €

Solar de 1200 m2 de techo, planta baja + 4, ubicado en la zona Benito Perez Gald...

0
0 reviews

Terreno en calle Pérez Galdós, 44

Alicante, San Vicente del Raspeig, Mayor Felipe Mallol, Calle Pérez Galdós, 44
195 000 €

Terreno en venta, edificable PB+IV El terreno es apto para vivienda unifamiliar...

0
0 reviews

Terreno en avenida de Alcalde Lorenzo Carbonell

Alicante, Alicante, Benalúa-La Florida-Babel-San Gabriel, Avenida de Alcalde Lorenzo Carbonell
1 500 000 €

OPORTUNIDAD ÚNICA: PARCELAS PRIME FRENTE AL CENTRO COMERCIAL PUERTA DE ALICANTE...

0
0 reviews

Terreno en calle Joaquín Blume

Alicante, San Vicente del Raspeig, Mayor Felipe Mallol, Calle Joaquín Blume
378 000 €

Solar de uso residencial en San Vicente del Raspeig, provincia de Alicante, de t...

0
0 reviews

Terreno en paseo Ermita

Alicante, Alicante, Villafranqueza-Santa Faz-Monegre, Paseo Ermita
1 010 000 €

¡LIBRE DE COMISIÓN! Suelo urbano de 2.652 m², de uso residencial, en venta en Al...

0
0 reviews
Call

We use our own and third-party cookies to analyze website usage and show you advertisements related to your preferences based on a profile created from your browsing habits (e.g., pages visited). More information. Do you accept cookies?