Local en Barrio Benalúa

Alicante, Alicante, Benalúa-La Florida-Babel-San Gabriel, Barrio Benalúa
179 900 €
708 € / m2
Leave review
Commercial premises Property type
254 m² built square meters
1 Bathrooms
Good condition Property status
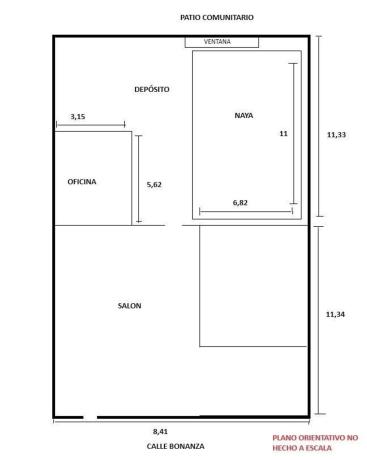
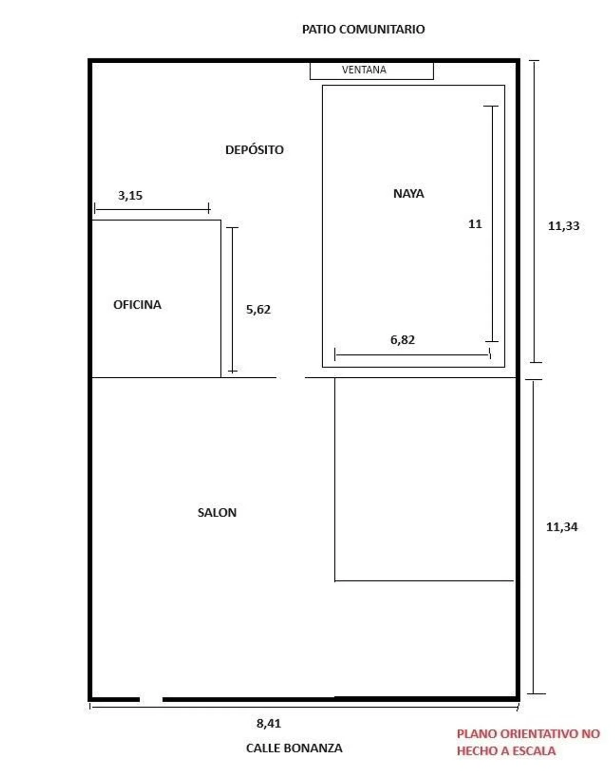
¡Oportunidad única para inversores y empresarios! Se vende local comercial en plena actividad en el dinámico barrio de Benalúa, a solo diez minutos del corazón de la ciudad. Este espacioso establecimiento cuenta con un salón de ventas bien iluminado y un amplio escaparate de 8,41 metros que garantiza una visibilidad excepcional. Además, dispone de un depósito de 162m2, perfecto para almacenar mercancía en volumen, y una naya de 77m2, ideal para almacenaje o un área de descanso para el personal. La propiedad incluye también una oficina privada y un baño, asegurando la comodidad tanto para empleados como para clientes. En el depósito encontramos una ventana con acceso al patio comunitario que nos garantiza entrada de luz y aire constante. ENLACE AL TOUR VIRTUAL No deje pasar la oportunidad de invertir en un local con todas las comodidades y en una ubicación estratégica. ¡Contacte para más información y agende su visita hoy mismo!.

Property characteristics

Complex information

  • Property type
    Commercial premises

Project information / Work status

  • Property status
    Good condition

Property data

  • Bathrooms
    1
  • built square meters
    254 m²
  • Property type
    Second hand

Facilities

Housing Amenities:

Air conditioning

State:

Good condition

Plans

Market price statistics for Local en Barrio Benalúa

Map

Alicante, Alicante, Benalúa-La Florida-Babel-San Gabriel, Barrio Benalúa Going to this location!
Leave a review about Local en Barrio Benalúa
0
0 reviews
1
0% (0)
2
0% (0)
3
0% (0)
4
0% (0)
5
0% (0)
Habitalia Alicante, servicios inmobiliarios
179 900 €
from 708 € / m2
Contact advertiser

For more information contact the platform

REF: 322391

Reviews about Local en Barrio Benalúa
Loading...

No reviews have been left for this object yet

Nearest properties

Explore nearby properties we've discovered in close proximity to this location

Locales comerciales en Venta en Calle San Vicente, 3, Alicante / Alacant

Alicante, Alicante, Center, Calle San Vicente, 3
1 550 000 €

Local de 700m2 en venta muy próximo al Mercado Central y la Rambla, y junto a un...

0
0 reviews

Obra nueva Oficinas, Urb.El Parque - Alicante en Alicante / Alacant

Alicante, Alicante, Center, Carrer Arquebisbe Loaces
231 000 €

Promoción de oficinas y locales comerciales en venta en Alicante. ¿Buscas un inm...

0
0 reviews

Obra nueva Irala en Alicante / Alacant

Alicante, Alicante, San Blas-Pau, Plaza Juan Pablo II s/n
140 000 €

La promoción , compuesta por 173 viviendas de 1, 2, 3 y 4 dormitorios con plaza...

0
0 reviews

Obra nueva Irala en Alicante / Alacant

Alicante, Alicante, San Blas-Pau, Plaza Juan Pablo II s/n
145 000 €

La promoción , compuesta por 173 viviendas de 1, 2, 3 y 4 dormitorios con plaza...

0
0 reviews

Obra nueva Irala en Alicante / Alacant

Alicante, Alicante, San Blas-Pau, Plaza Juan Pablo II s/n
155 000 €

La promoción , compuesta por 173 viviendas de 1, 2, 3 y 4 dormitorios con plaza...

0
0 reviews

Obra nueva Irala en Alicante / Alacant

Alicante, Alicante, San Blas-Pau, Plaza Juan Pablo II s/n
165 000 €

La promoción , compuesta por 173 viviendas de 1, 2, 3 y 4 dormitorios con plaza...

0
0 reviews

Obra nueva Irala en Alicante / Alacant

Alicante, Alicante, San Blas-Pau, Plaza Juan Pablo II s/n
170 000 €

La promoción , compuesta por 173 viviendas de 1, 2, 3 y 4 dormitorios con plaza...

0
0 reviews

Locales comerciales en Venta en Avenida Catedratico Soler, 5 M5, Alicante / Alacant

Alicante, Alicante, Benalúa-La Florida-Babel-San Gabriel, Avenida Catedratico Soler, 5 M5
131 000 €

Metrovacesa te presenta Thalassa, promoción de 47 viviendas con 2, 3 y 4 habitac...

0
0 reviews

Local en venta en Benalúa

Alicante, Alicante, Benalúa-La Florida-Babel-San Gabriel
372 600 €

Este local comercial en venta, con una superficie de 256 m², se encuentra en una...

0
0 reviews
Call

We use our own and third-party cookies to analyze website usage and show you advertisements related to your preferences based on a profile created from your browsing habits (e.g., pages visited). More information. Do you accept cookies?