Spain New construction Spain New construction Alicante New construction Altea Infinity Villas Altea Hills Casa o chalet independiente en venta en calle Costa del Azahar Altea Hills s/n

Sale of independent chalet in Calle Costa del Azahar Altea Hills s/n, Altea

Alicante, Altea, Altea la Vella, Calle Costa del Azahar Altea Hills s/n
Sold out
Leave review
Detached chalet Property type
2024 Year of delivery
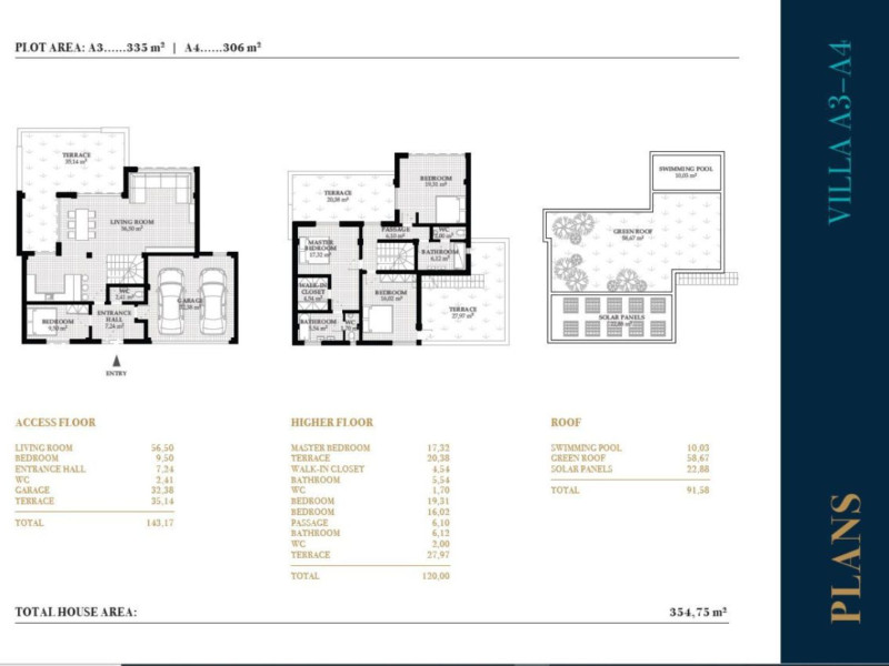
355 m² built square meters
3 Bathrooms
4 Bedrooms
2 Floor
La nueva promoción INFINITY VILLAS, en Altea Hills, está compuesta por 14 villas independientes, cada una con piscina al aire libre y terraza solárium, Además de piscina social.Las villas cuentan con más de 200 m2 construidos, (En la primera planta cuenta con aproximadamente 140 m2 con algunas distinciones por tipología) Se distribuyen en dos plantas sobre rasante, el semisótano y, además, la terraza solárium con vistas panorámicas al mar y la montaña.En la planta baja encontramos un bonito Hall con acceso al garaje, un amplio salón comedor con cocina tipo americana totalmente abierta con acceso a la terraza principal, un dormitorio y un baño social.En la primera planta se hallan 3 dormitorios dobles y 2 baños (uno de ellos en-suite). El dormitorio principal dispone de un amplio vestidor y acceso a una terraza de entre 10 a 20 m2 aproximadamente (según tipología), a la cual también puede acceder la segunda habitación, las 3 habitaciones son exteriores con grandes ventanales que permiten ver la montaña y el mar.Esta moderna villa se encuentra en una área prestigiosa, cerca del casco antiguo de Altea, parques acuáticos, playas, puerto deportivo, club de Golf. Etc.. .Todas las villas cuentan con las mejores calidades y materiales.Entrega de llaves estimada para Junio de 2024.

Property characteristics

Complex information

  • Residential complex
    Infinity Villas Altea Hills
  • Property type
    Detached chalet

Project information / Work status

  • Year of delivery
    2024

Property data

  • Floor
    2
  • Bedrooms
    4
  • Bathrooms
    3
  • built square meters
    355 m²
  • Property type
    New construction

Facilities

Housing Amenities:

Exterior window
Terrace

In building:

Swimming Pool
Golf course
Garden Zones
Green Areas

Market price statistics for Casa o chalet independiente en venta en calle Costa del Azahar Altea Hills s/n

1 321 714 € (3 541 €/m2)
Average price of primary Detached chalet in city Altea
1 765 568 € (4 022 €/m2)
Average price of secondary Detached chalet in city Altea
1 287 000 € (3 483 €/m2)
Average price of primary Detached chalet in district Altea la Vella
1 673 765 € (3 644 €/m2)
Average price of secondary Detached chalet in district Altea la Vella

Map

Alicante, Altea, Altea la Vella, Calle Costa del Azahar Altea Hills s/n Going to this location!
Leave a review about Casa o chalet independiente en venta en calle Costa del Azahar Altea Hills s/n
0
0 reviews
1
0% (0)
2
0% (0)
3
0% (0)
4
0% (0)
5
0% (0)
Infinity Villas Altea Hills
Residential complex
Sold out
Contact advertiser

For more information contact the platform

REF: 9638

Reviews about Casa o chalet independiente en venta en calle Costa del Azahar Altea Hills s/n
Loading...

No reviews have been left for this object yet

Nearest properties

Explore nearby properties we've discovered in close proximity to this location

Chalet independiente en Venta en Calle Munich s/n, Altea

Alicante, Altea, Altea Hills, Calle Munich s/n
3 500 000 €

Disfrute de la vida de lujo en esta impresionante villa con magníficas vistas al...

0
0 reviews

Chalet independiente en Venta, Altea

Alicante, Altea, Altea la Vella
1 908 000 €

Villas con personalidad propia, diseños exclusivos y personalizados para que la...

0
0 reviews

Chalet independiente en Venta, Altea

Alicante, Altea, Altea la Vella
2 044 000 €

Villas con personalidad propia, diseños exclusivos y personalizados para que la...

0
0 reviews

Newly constructed luxury villas located in the prestigious hill region of Altea offer an exquisite living experience.

Alicante, Altea, Altea la Vella, Calle Costa del Azahar Altea Hills s/n
1 386 000 €

Nestled in a picturesque location, these newly developed villas in Altea Hills...

0
0 reviews

Newly constructed luxury villas located in the prestigious hill region of Altea offer an exquisite living experience.

Alicante, Altea, Altea la Vella, Calle Costa del Azahar Altea Hills s/n
1 112 400 €

Nestled in a picturesque location, these newly developed villas in Altea Hills...

0
0 reviews

Chalet independiente en Venta en Calle Costa del Azahar Altea Hills s/n, Altea

Alicante, Altea, Altea la Vella, Calle Costa del Azahar Altea Hills s/n
1 150 000 €

La nueva promoción INFINITY VILLAS, en Altea Hills, está compuesta por 14 villas...

0
0 reviews

Newly constructed luxury villas located in the prestigious hill region of Altea offer an exquisite living experience.

Alicante, Altea, Altea la Vella, Calle Costa del Azahar Altea Hills s/n
1 170 000 €

Nestled in a picturesque location, these newly developed villas in Altea Hills...

0
0 reviews

Newly constructed luxury villas located in the prestigious hill region of Altea offer an exquisite living experience.

Alicante, Altea, Altea la Vella, Calle Costa del Azahar Altea Hills s/n
1 182 000 €

Nestled in a picturesque location, these newly developed villas in Altea Hills...

0
0 reviews

Chalet independiente en Venta en Calle Costa del Azahar Altea Hills s/n, Altea

Alicante, Altea, Altea la Vella, Calle Costa del Azahar Altea Hills s/n
1 107 600 €

La nueva promoción INFINITY VILLAS, en Altea Hills, está compuesta por 14 villas...

0
0 reviews

We use our own and third-party cookies to analyze website usage and show you advertisements related to your preferences based on a profile created from your browsing habits (e.g., pages visited). More information. Do you accept cookies?