Apartamentos en Venta en Avenida Republica Argentina s/n, Benidorm

Alicante, Benidorm, Poniente Beach, Avenida Republica Argentina s/n
Sold out
Leave review
Flats Property type
2025 Year of delivery
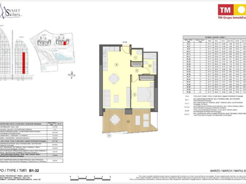
78 m² built square meters
1 Bathrooms
1 Bedrooms
Este es un nuevo y proyecto de un muy conocido y respetado constructor que consta de 286 departamentos de 1, 2, 3, 4 dormitorios ubicados en 2 torres (una de 30 y otra de 40 pisos) con amplias terrazas con vista al mar y a la Isla de Benidorm y ubicado a escasos metros de la emblemática Playa de Poniente.Una vez más tendrá un diseño moderno que mantiene la temática del mar y para su construcción se utilizarán materiales de alta gama. Esta urbanización también busca la sostenibilidad al incorporar paneles solares para soporte de energía y puntos de carga para coches eléctricos.Gracias a sus amplios ventanales, su principal protagonista es la luz natural y las vistas. Sus áticos tienen acceso a un solárium privado desde el interior del apartamento, un gran espacio con jacuzzi, ducha exterior, zona de barra con encimera y pérgola. Su inmejorable ubicación, y la altura de sus apartamentos hacen posible tener magníficas vistas al mar. Además de diferentes tamaños y números de dormitorios o baños, también podrá elegir entre diferentes equipamientos y acabados. En esta etapa, aún puede elegir entre diferentes opciones de materiales, colores o acabados que le gustaría tener en su casa.Sunset Sailors cuenta con más de 11.400 m² de zonas comunes, distribuidas en diferentes alturas, asegurando vistas al mar desde todos los puntos. Dispone de piscina climatizada, otra piscina comunitaria, piscina infantil con zonas de juegos incorporada, gimnasio panorámico, jacuzzis, zonas chill-out, sala Kid’s Club, sala de videojuegos y diferentes zonas deportivas. Una urbanización única diseñada para disfrutar de la vida en el Mediterráneo sin límites.Fecha de entrega: junio de 2025¡CONTACTE CON FASTIGHETSBYRÅN PARA MÁS INFORMACIÓN SOBRE DISPONIBILIDAD Y PRECIOS!

Property characteristics

Complex information

  • Residential complex
    Sunset Sailors
  • Property type
    Flats

Project information / Work status

  • Year of delivery
    2025

Property data

  • Type of kitchen
    Open kitchen
  • Bedrooms
    1
  • Bathrooms
    1
  • built square meters
    78 m²
  • Design type
    Modern
  • Property type
    New construction

Facilities

Housing Amenities:

Jacuzzi
Bathroom cabin
Interior Windows
Exterior window
Terrace

In building:

Swimming Pool
Elevator
Gymnasium
Bar
Jacuzzi
Spa
Children's area
Garden Zones
Green Areas
Heated pool

Views:

Sea Views

Market price statistics for Piso en venta en avenida Republica Argentina s/n

838 807 € (6 790 €/m2)
Average price of primary Flats in city Benidorm
370 239 € (3 884 €/m2)
Average price of secondary Flats in city Benidorm
975 278 € (5 944 €/m2)
Average price of primary Flats in district Poniente Beach
585 175 € (5 002 €/m2)
Average price of secondary Flats in district Poniente Beach

Map

Alicante, Benidorm, Poniente Beach, Avenida Republica Argentina s/n Going to this location!
Leave a review about Piso en venta en avenida Republica Argentina s/n
0
0 reviews
1
0% (0)
2
0% (0)
3
0% (0)
4
0% (0)
5
0% (0)
Sunset Sailors
Residential complex
Sold out
Contact advertiser

For more information contact the platform

REF: 3873

Reviews about Piso en venta en avenida Republica Argentina s/n
Loading...

No reviews have been left for this object yet

Nearest properties

Explore nearby properties we've discovered in close proximity to this location

Apartamentos en Venta en Calle de Bolivia s/n, Finestrat

Alicante, Finestrat, Balcón de Finestrat-Terra Marina, Calle de Bolivia s/n
370 000 €

El apartamento está en planta baja tiene 38 m2 de terraza, tiene 2 habitaciones...

0
0 reviews

Apartamentos en Venta en Calle de Bolivia s/n, Finestrat

Alicante, Finestrat, Balcón de Finestrat-Terra Marina, Calle de Bolivia s/n
380 000 €

Estos apartamentos está nen 1ª, 2ª, 3ª y 4ª planta. Tienen 115 m2, 2 habitacione...

0
0 reviews

Apartamentos en Venta en Calle de Bolivia s/n, Finestrat

Alicante, Finestrat, Balcón de Finestrat-Terra Marina, Calle de Bolivia s/n
410 000 €

El conjunto residencial camporosso Serpentine se distribuye en dos parcelas line...

0
0 reviews

Apartamentos en Venta en Calle de Bolivia s/n, Finestrat

Alicante, Finestrat, Balcón de Finestrat-Terra Marina, Calle de Bolivia s/n
410 000 €

Este apartamento está en 3ª planta, tiene 3 habitaciones y un jardín de 70 m2.El...

0
0 reviews

Apartamentos en Venta en Calle de Bolivia s/n, Finestrat

Alicante, Finestrat, Balcón de Finestrat-Terra Marina, Calle de Bolivia s/n
445 000 €

Estos apartamentos están en 3ª y 4ª planta. Tienen 145 m2, 3 habitaciones y una...

0
0 reviews

Newly constructed residential tower in Benidorm.

Alicante, Benidorm, West Town, Calle Calle Pdte. Adolfo Suárez s/n
395 000 €

Real estate in Eagle Tower by Tm Discover a new residential oasis with breathtak...

0
0 reviews

Newly constructed residential tower in Benidorm.

Alicante, Benidorm, West Town, Calle Calle Pdte. Adolfo Suárez s/n
348 000 €

Real estate in Eagle Tower by Tm Discover a new residential oasis with breathtak...

0
0 reviews

Newly constructed residential tower in Benidorm.

Alicante, Benidorm, West Town, Calle Calle Pdte. Adolfo Suárez s/n
298 000 €

Real estate in Eagle Tower by Tm Discover a new residential oasis with breathtak...

0
0 reviews

Newly constructed residential tower in Benidorm.

Alicante, Benidorm, West Town, Calle Calle Pdte. Adolfo Suárez s/n
308 000 €

Real estate in Eagle Tower by Tm Discover a new residential oasis with breathtak...

0
0 reviews

We use our own and third-party cookies to analyze website usage and show you advertisements related to your preferences based on a profile created from your browsing habits (e.g., pages visited). More information. Do you accept cookies?