Spain Detached chalet Spain Detached chalet Alicante Detached chalet Bigastro Chalet en plaza Sector D-6 Edificacion Aa, 50

Sale of independent chalet in Plaza Sector D-6 Edificacion Aa, 50, Bigastro

Alicante, Bigastro, Plaza Sector D-6 Edificacion Aa, 50
249 900 €
2 100 € / m2
Leave review
Detached chalet Property type
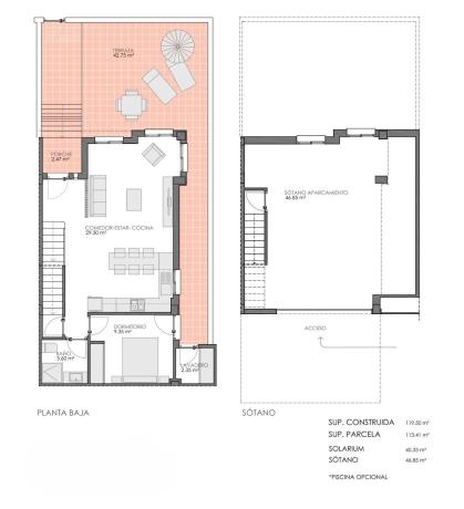
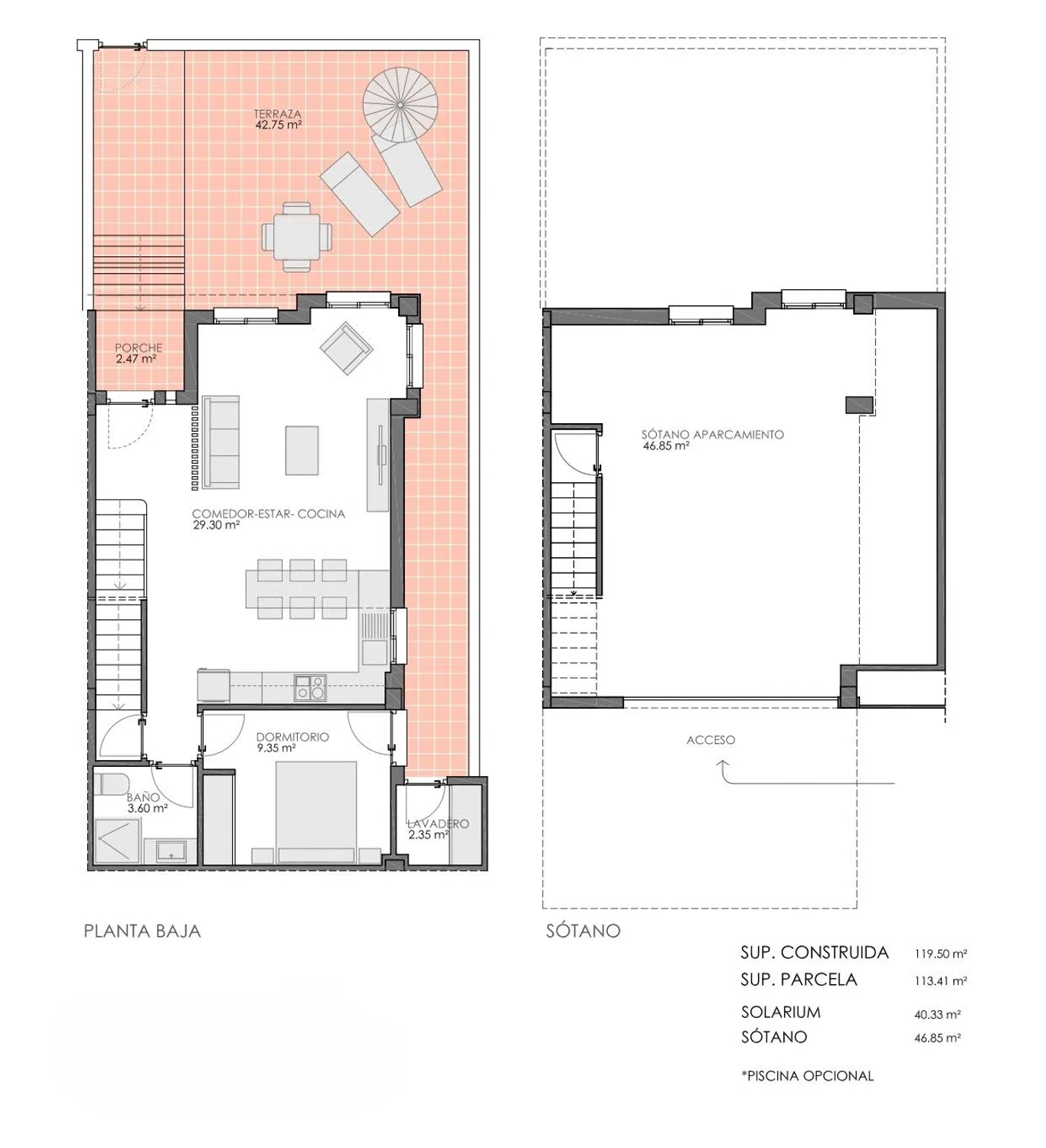
119 m² built square meters
3 Bathrooms
4 Bedrooms
Included in the price Garage
Good condition Property status
Espectacular Villa Independienteen venta, en las afueras de Bigastro, municipio asentado en pleno corazón de la Vega Baja, con todos los servicios básicos que una ciudad puede ofrecer, tales como tiendas, supermercados, centro médico, farmacias, colegios, bares y restaurantes. La vivienda esta ubicada en una zona residencial muy tranquila a 200m del Colegio San Joséde Calasanz y a 300m de tiendas, bares y restaurantes. Buenas comunicaciones con la Carretera Nacional CV - 95 que te permite desplazarte con facilidad a otras grandes Ciudades como Orihuela, Torrevieja, etc. Amplia Villa dedos plantassituada en una parcela de 113.41m²con bonitas zonas verdes ajardinadas, plaza de aparcamiento cubierta en sótano de 76.00m. Interior se distribuye en la planta baja cuenta conun amplio salón comedor unido a una cocina americana, un dormitorio doble y un baño independiente con ducha y además cuenta con un lavadero de 2.35m². En la planta alta cuenta con tresdormitorios uno de elloscon bañoen suite con plato de ducha y un baño independiente. La villa cuenta con armariosincorporados en todas las habitaciones. En la planta cubierta cuenta con un solárium de 40.33m² donde disfrutar de los días soleados que nos ofrece el mediterráneo. Con posibilidad de hacerle una piscinadado el espacio de la parcela.

Property characteristics

Complex information

  • Property type
    Detached chalet

Project information / Work status

  • Property status
    Good condition

Property data

  • Garage
    Included in the price
  • Bedrooms
    4
  • Bathrooms
    3
  • built square meters
    119 m²
  • Property type
    Second hand

Facilities

Housing Amenities:

Air conditioning
Storage room
Terrace

In building:

Garden
Private parking

State:

Good condition

Plans

Market price statistics for Chalet en plaza Sector D-6 Edificacion Aa, 50

Map

Alicante, Bigastro, Plaza Sector D-6 Edificacion Aa, 50 Going to this location!
Leave a review about Chalet en plaza Sector D-6 Edificacion Aa, 50
0
0 reviews
1
0% (0)
2
0% (0)
3
0% (0)
4
0% (0)
5
0% (0)
Sol y Costa Mediterránea
249 900 €
from 2 100 € / m2
Contact advertiser

For more information contact the platform

REF: 353716

Reviews about Chalet en plaza Sector D-6 Edificacion Aa, 50
Loading...

No reviews have been left for this object yet

Nearest properties

Explore nearby properties we've discovered in close proximity to this location

Casa o chalet independiente en venta en calle Tosca

Alicante, Orihuela, Orihuela Costa, Calle Tosca
140 000 €

-salón con cocina abierta todo amueblado-dos dormitorios, uno de ellos con baño...

0
0 reviews

Casa o chalet independiente en venta en calle José Maria Sicilia, 1

Alicante, Orihuela, Orihuela Costa, Calle José Maria Sicilia, 1
499 000 €

Impresionante villa ubicada en la prestigiosa zona de Playa Flamenca, Orihuela C...

0
0 reviews

Casa o chalet independiente en venta en Orihuela Ciudad

Alicante, Orihuela, Orihuela City
170 000 €

Esta descripción ha sido traducida automáticamente y puede que no sea muy precis...

0
0 reviews

Casa o chalet independiente en venta en Bigastro

Alicante, Bigastro
140 000 €

Hand-over-ready semi-detached homes available in a charming locality, built in 2...

0
0 reviews

Casa o chalet independiente en venta en Bigastro

Alicante, Bigastro
124 000 €

Discover a remarkable opportunity to own modern, turn-key semi-detached homes de...

0
0 reviews

Casa o chalet independiente en venta en Jacarilla

Alicante, Jacarilla
1 350 000 €

This exquisite villa is situated in the charming town of Jacarilla, nestled in t...

0
0 reviews

Casa o chalet independiente en venta en Bigastro

Alicante, Bigastro
175 000 €

This description has been automatically translated and may not be entirely accur...

0
0 reviews

Casa o chalet independiente en venta en Bigastro

Alicante, Bigastro
175 000 €

This description has been translated automatically and may not be entirely preci...

0
0 reviews

Casa o chalet independiente en venta en Bigastro

Alicante, Bigastro
280 000 €

This description has been automatically translated and may not be entirely accur...

0
0 reviews
Call

We use our own and third-party cookies to analyze website usage and show you advertisements related to your preferences based on a profile created from your browsing habits (e.g., pages visited). More information. Do you accept cookies?