Spain Urban Spain Urban Alicante Urban Calpe Terreno en Cometa-Carrió

Terreno en Cometa-Carrió

Alicante, Calpe, Cometa-Carrió, Cometa-Carrió
750 000 €
Leave review
Urban Property type
4 322 m² Land area
Residential Use of lot
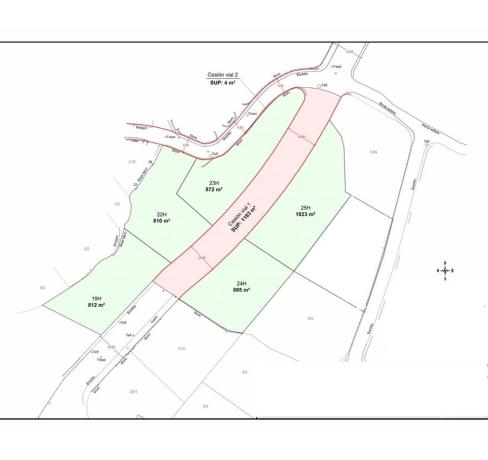
Oportunidad de inversión excepcional: cinco parcelas de terreno urbano en venta en la prestigiosa zona residencial de Gran Sol, en Calpe, uno de los lugares más cotizados de la Costa Blanca. Estas parcelas edificables (19H: 812 m², 22H: 810 m², 23H: 872 m², 24H: 805 m² y 25H: 1.023 m²) se ofrecen en conjunto —no se venden por separado—, sumando una superficie total de 4.322 metros cuadrados. El terreno está parcialmente urbanizado y se ofrece la posibilidad de gestionar la finalización del proceso de urbanización si el comprador así lo desea. A tan solo 1,5 km de las parcelas se encuentra la Playa de la Fustera, una playa con Bandera Azul, reconocida por la calidad de sus aguas y sus excelentes servicios, como paseo marítimo, acceso para personas con movilidad reducida, áreas de juegos infantiles, socorristas, aparcamiento, cafeterías, restaurantes y más. Desde esta playa se accede al Pintoresco Paseo Ecológico de Benissa, un recorrido costero de casi 2 km que discurre entre calas y acantilados de gran belleza. La ubicación es tanto tranquila como estratégica, a solo 2,5 km del centro de Calpe y a 9 km de Moraira. Para los amantes del deporte, el Club de Golf Ifach se encuentra a solo 6,5 km, y el Club Náutico Les Basetes a tan solo 2,3 km de distancia. Entre los servicios cercanos destacan colegios como el CEIP Mediterrani en Calpe (a 3 km) y el colegio internacional Lady Elizabeth School en Benitachell (a 15 km), así como centros sanitarios como el centro de salud de Calpe (a 4 km) y el Hospital Clínica Benidorm (a 24 km). Además, el Aeropuerto de Alicante se encuentra a 81 km y el de Valencia a 128 km, lo que convierte esta ubicación en un entorno bien conectado y a la vez tranquilo. En definitiva, una oportunidad inmejorable para inversores que buscan desarrollar un proyecto residencial en un entorno mediterráneo privilegiado, rodeado de naturaleza, costa y todos los servicios esenciales.

Property characteristics

Complex information

  • Property type
    Urban

Property data

  • Property type
    Second hand

Surfaces

  • Land area
    4 322 m²

Base

  • Use of lot
    Residential

Facilities

Additional Features:

Building plot

Market price statistics for Terreno en Cometa-Carrió

Map

Alicante, Calpe, Cometa-Carrió, Cometa-Carrió Going to this location!
Leave a review about Terreno en Cometa-Carrió
0
0 reviews
1
0% (0)
2
0% (0)
3
0% (0)
4
0% (0)
5
0% (0)
Hispania homes by Keller Williams
750 000 €
Contact advertiser

For more information contact the platform

REF: 335378

Reviews about Terreno en Cometa-Carrió
Loading...

No reviews have been left for this object yet

Nearest properties

Explore nearby properties we've discovered in close proximity to this location

Terreno en venta en Grupo Pinos los Urban

Alicante, Calpe, Cometa-Carrió, Grupo Pinos los Urban
149 000 €

Descubre una oportunidad única para construir la casa de tus sueños en una parce...

0
0 reviews

Terreno en venta en Benissa pueblo

Alicante, Benissa, Benissa village
180 000 €

Descubre 15,000 m2 de paraíso en la codiciada costa de Benissa, a solo 7 minutos...

0
0 reviews

Terreno en venta en Partida Empedrola II

Alicante, Calpe, Cometa-Carrió, Partida Empedrola II
145 000 €

Calpe Urb Empedrola II. Parcela de 1. 000 m2, apta para construir una vivienda u...

0
0 reviews

Urban land For sell in Benissa in Alicante

Alicante, Benissa
184 000 €

The 1350m2 plot is located in a quiet area, and offers electricity and water con...

0
0 reviews

Urban land For sell in Benissa in Alicante

Alicante, Benissa
175 000 €

The 1350m2 plot is located in a quiet area, and offers electricity and water con...

0
0 reviews

Terreno en Benissa pueblo

Alicante, Benissa, Benissa village, Benissa pueblo
90 000 €

Esta espaciosa parcela rural de poco más de 8000 m² ofrece un remanso de paz y m...

0
0 reviews

Terreno en Teulada

Alicante, Teulada
275 000 €

Esta impresionante parcela de terreno rústico tiene una extensión de 10.400 metr...

0
0 reviews

Terreno en Cometa-Carrió

Alicante, Calpe, Cometa-Carrió, Cometa-Carrió
1 100 000 €

Oportunidad de Inversión, 856 m2 parcela para la construcción de un chalet de lu...

0
0 reviews

Terreno en Teulada

Alicante, Teulada
2 000 000 €

Parcela a la venta con fantásticas vistas abiertas al mar Mediterráeno y a la si...

0
0 reviews

We use our own and third-party cookies to analyze website usage and show you advertisements related to your preferences based on a profile created from your browsing habits (e.g., pages visited). More information. Do you accept cookies?