Spain Urban Spain Urban Alicante Urban Calpe Terreno en Cometa-Carrió

Terreno en Cometa-Carrió

Alicante, Calpe, Cometa-Carrió, Cometa-Carrió
750 000 €
Leave review
Urban Property type
4 322 m² Land area
Residential Use of lot
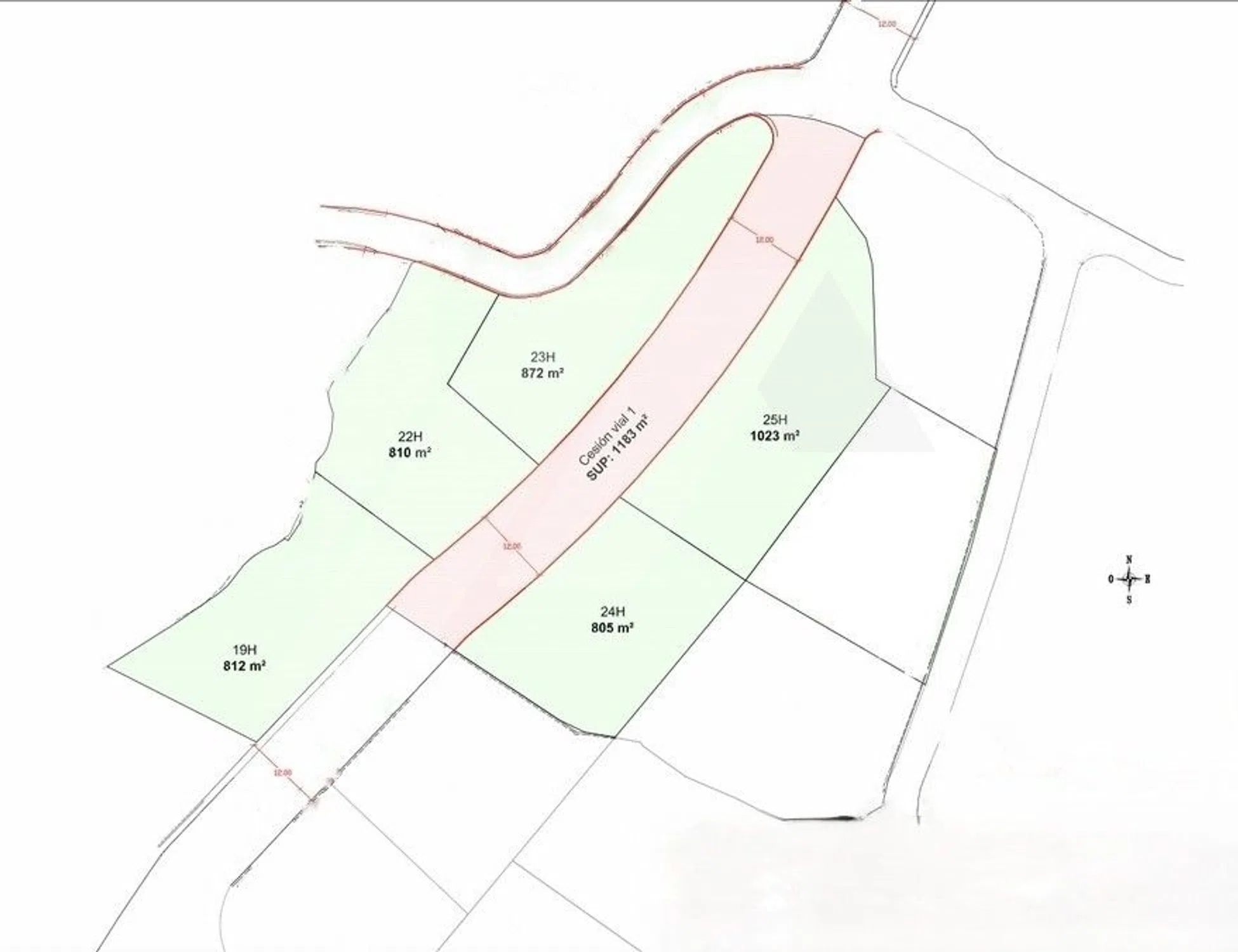
Potencial y Ubicación – Venta Conjunta de 5 Parcelas en Gran Sol, Calpe. Como inversión con visión a medio y largo plazo, oportunidad estratégica para el desarrollo residencial exclusivo en uno de los enclaves más atractivos de la Costa Blanca. Las 5 parcelas ofertadas —19H (812 m²), 22H (810 m²), 23H (872 m²), 24H (805 m²) y 25H (1.023 m²)— suman un total aproximado de 4.322 m², lo que permite la construcción de cinco viviendas unifamiliares independientes de alta calidad. Ubicación privilegiadaSituadas en la urbanización Gran Sol de Calpe, estas parcelas se ubican en un entorno residencial consolidado y de alto nivel, conocido por su tranquilidad, privacidad y vistas abiertas. La zona está rodeada de naturaleza mediterránea, con vistas potenciales al mar y al paisaje montañoso del interior, en función del diseño de las viviendas. Entorno natural y accesibilidadA tan solo 1,5 km se encuentra la Playa de la Fustera, una de las más valoradas de la zona, galardonada con Bandera Azul. Esta playa ofrece servicios completos y acceso al Paseo Ecológico de Benissa, que refuerza el atractivo turístico y la calidad de vida de la zona. Además, a 2,5 km está la popular Playa de la Fossa en Calpe, y a 9 km, el encantador núcleo costero de Moraira, lo que amplía el abanico de actividades culturales, gastronómicas y recreativas para los futuros residentes. Oferta de ocio y deportesLa ubicación se complementa con acceso cercano a instalaciones deportivas premium, como el Club Náutico Les Basetes (2,3 km) para actividades náuticas y el Club de Golf Ifach (6,5 km), que refuerzan el perfil de un cliente final con alto poder adquisitivo y estilo de vida activo. Potencial de desarrolloEl mercado inmobiliario en Calpe y alrededores muestra una demanda sólida de viviendas modernas, sostenibles y bien ubicadas, tanto para residencia permanente como segunda vivienda. La posibilidad de desarrollar cinco villas independientes de lujo en una zona tan demandada ofrece un alto retorno sobre la inversión (ROI). La venta conjunta de estas parcelas permite una planificación urbanística integral, lo que facilita el diseño coherente de un conjunto residencial homogéneo y exclusivo. Esto representa una ventaja competitiva frente a promociones fragmentadas.

Property characteristics

Complex information

  • Property type
    Urban

Property data

  • Property type
    Second hand

Surfaces

  • Land area
    4 322 m²

Base

  • Use of lot
    Residential

Market price statistics for Terreno en Cometa-Carrió

Map

Alicante, Calpe, Cometa-Carrió, Cometa-Carrió Going to this location!
Leave a review about Terreno en Cometa-Carrió
0
0 reviews
1
0% (0)
2
0% (0)
3
0% (0)
4
0% (0)
5
0% (0)
Bindley Properties
750 000 €
Contact advertiser

For more information contact the platform

REF: 366322

Reviews about Terreno en Cometa-Carrió
Loading...

No reviews have been left for this object yet

Nearest properties

Explore nearby properties we've discovered in close proximity to this location

Terreno en venta en Grupo Pinos los Urban

Alicante, Calpe, Cometa-Carrió, Grupo Pinos los Urban
149 000 €

Descubre una oportunidad única para construir la casa de tus sueños en una parce...

0
0 reviews

Terreno en venta en Benissa pueblo

Alicante, Benissa, Benissa village
180 000 €

Descubre 15,000 m2 de paraíso en la codiciada costa de Benissa, a solo 7 minutos...

0
0 reviews

Terreno en venta en Partida Empedrola II

Alicante, Calpe, Cometa-Carrió, Partida Empedrola II
145 000 €

Calpe Urb Empedrola II. Parcela de 1. 000 m2, apta para construir una vivienda u...

0
0 reviews

Urban land For sell in Benissa in Alicante

Alicante, Benissa
184 000 €

The 1350m2 plot is located in a quiet area, and offers electricity and water con...

0
0 reviews

Urban land For sell in Benissa in Alicante

Alicante, Benissa
175 000 €

The 1350m2 plot is located in a quiet area, and offers electricity and water con...

0
0 reviews

Terreno en Benissa pueblo

Alicante, Benissa, Benissa village, Benissa pueblo
90 000 €

Esta espaciosa parcela rural de poco más de 8000 m² ofrece un remanso de paz y m...

0
0 reviews

Terreno en Teulada

Alicante, Teulada
275 000 €

Esta impresionante parcela de terreno rústico tiene una extensión de 10.400 metr...

0
0 reviews

Terreno en Cometa-Carrió

Alicante, Calpe, Cometa-Carrió, Cometa-Carrió
1 100 000 €

Oportunidad de Inversión, 856 m2 parcela para la construcción de un chalet de lu...

0
0 reviews

Terreno en Teulada

Alicante, Teulada
2 000 000 €

Parcela a la venta con fantásticas vistas abiertas al mar Mediterráeno y a la si...

0
0 reviews
Call

We use our own and third-party cookies to analyze website usage and show you advertisements related to your preferences based on a profile created from your browsing habits (e.g., pages visited). More information. Do you accept cookies?