Terreno en calle Marbella

Alicante, El Campello, Spanish Town - Coveta Fumá, Calle Marbella
388 000 €
Leave review
Urban Property type
1 284 m² Land area
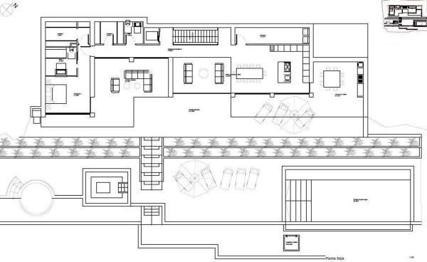
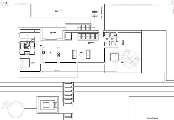
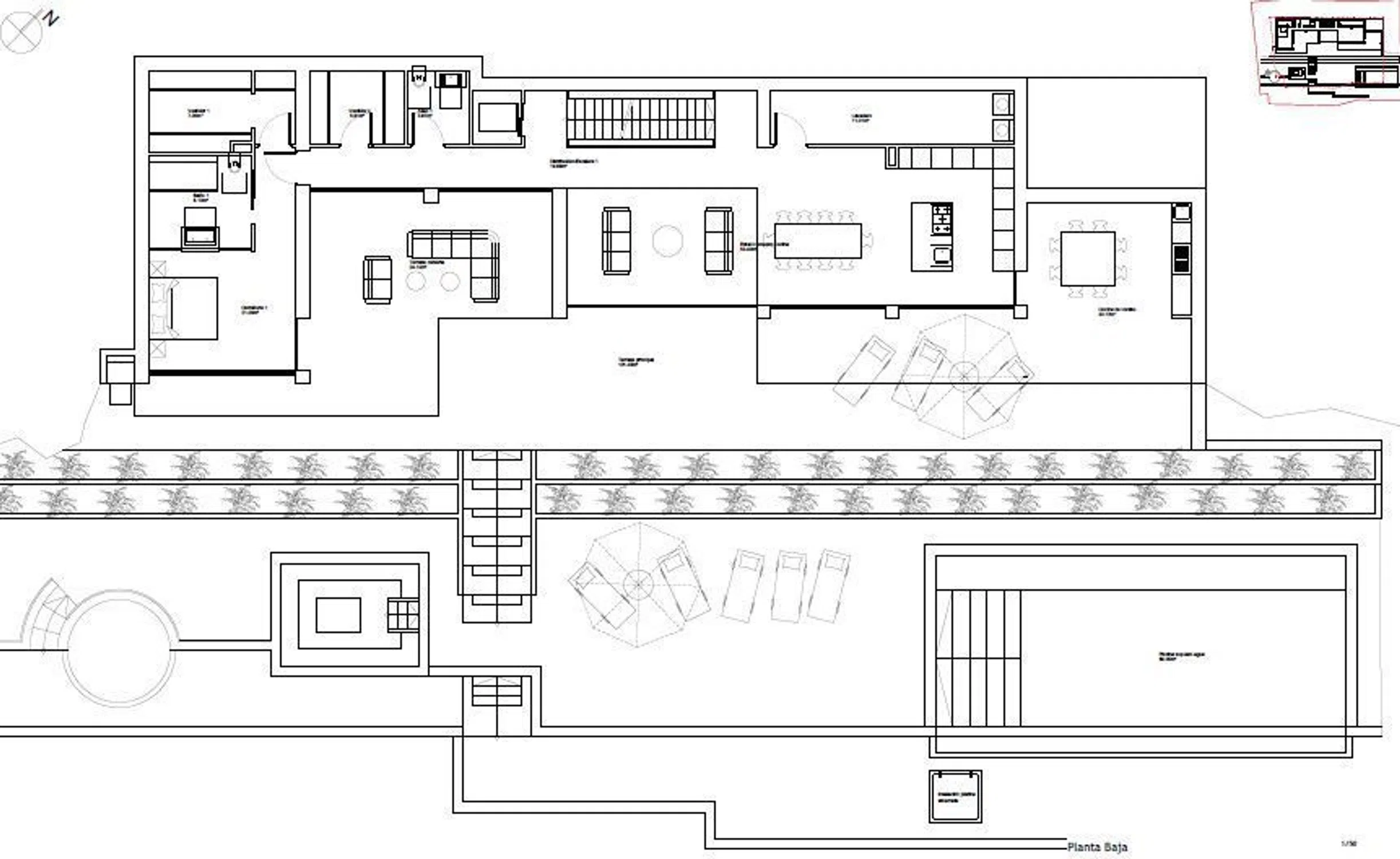
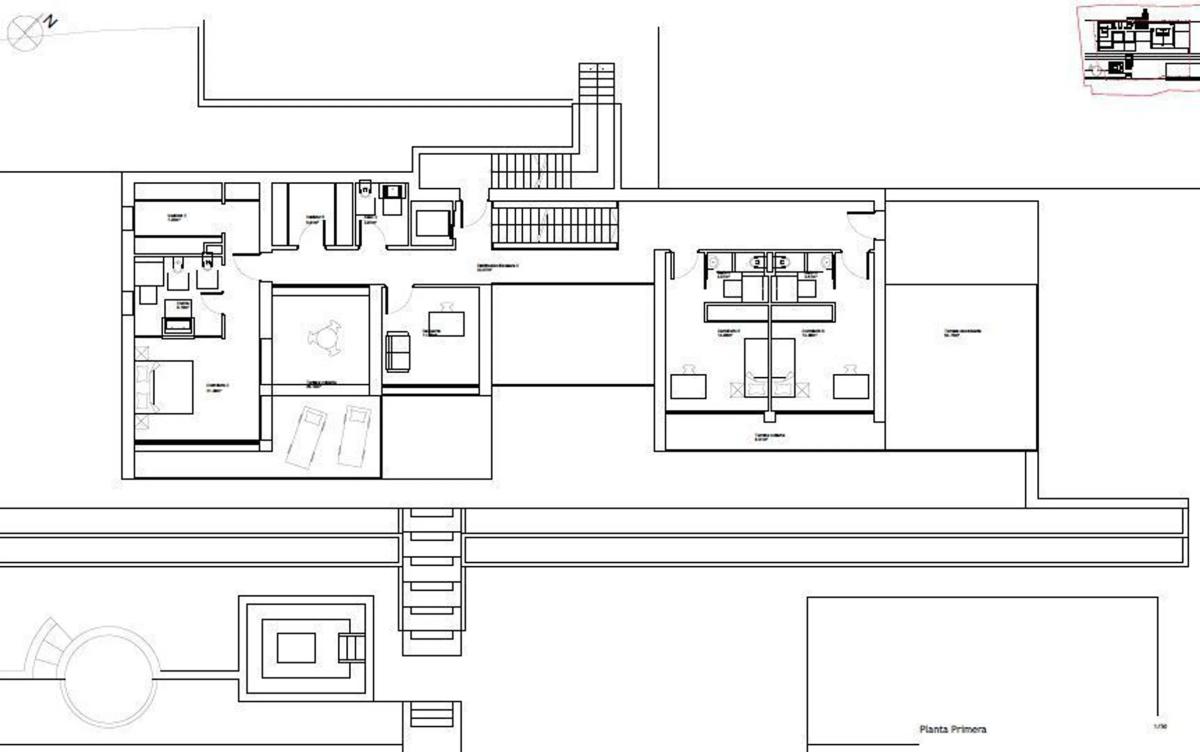
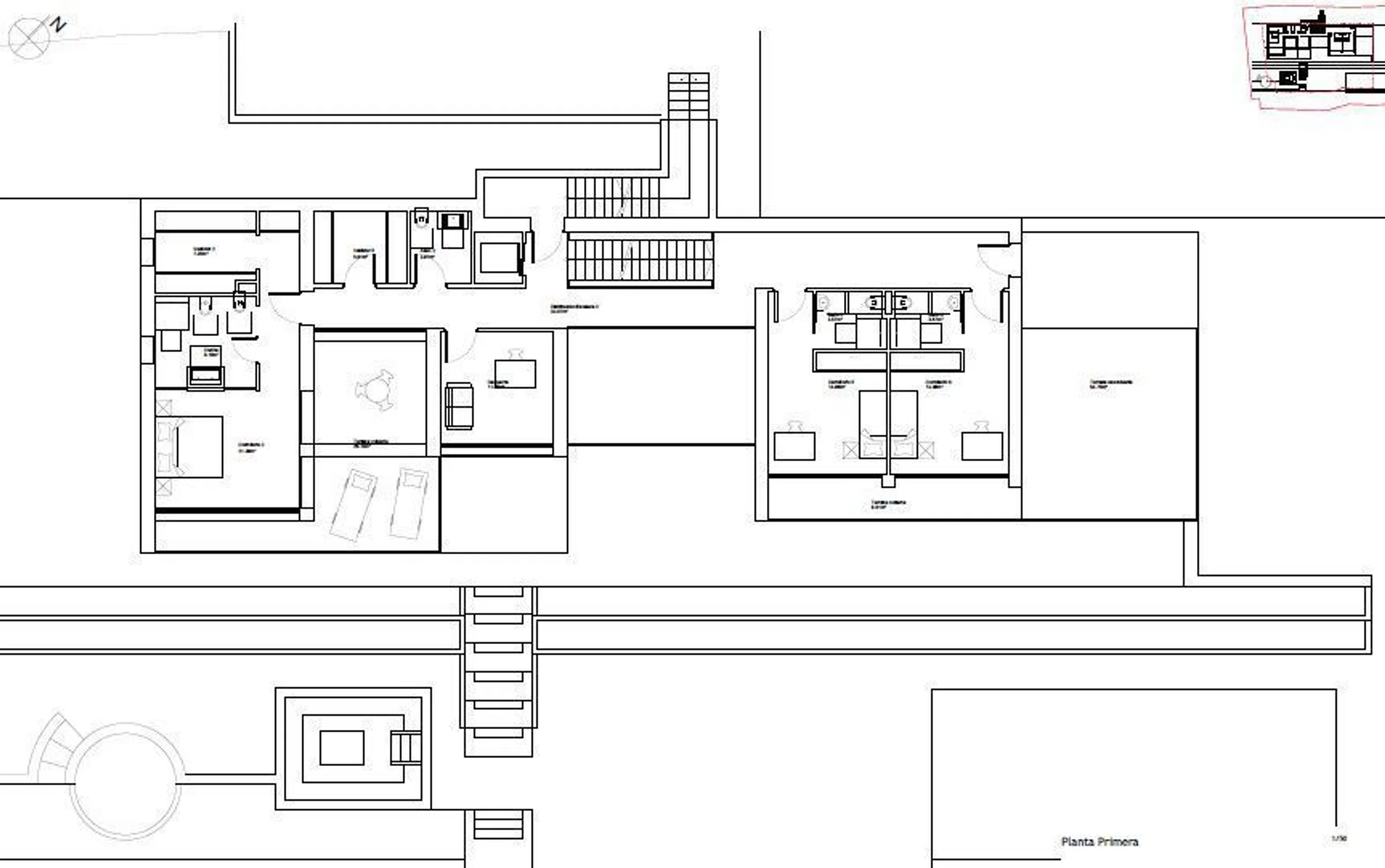
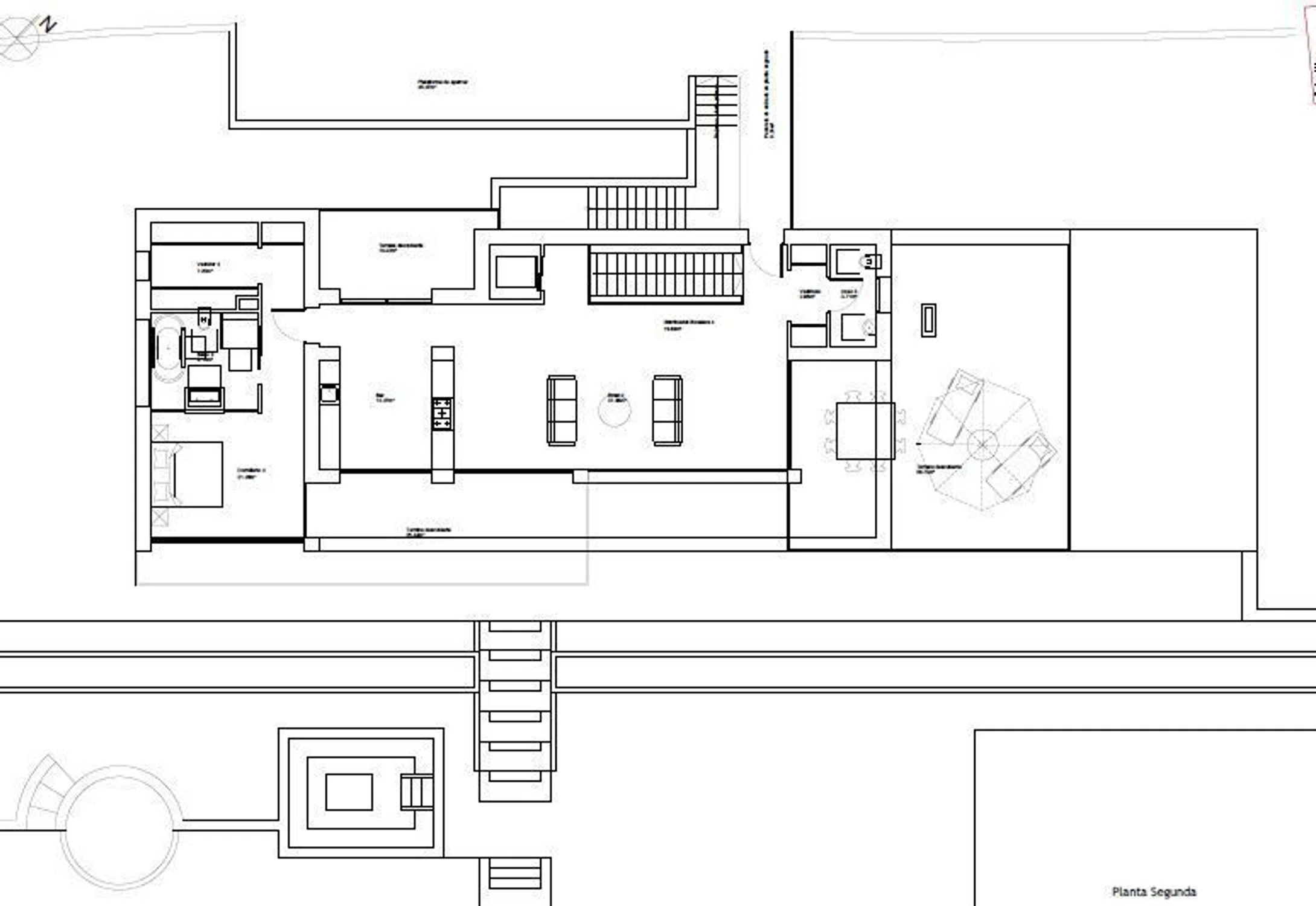
Sensacional parcela urbana con preciosas vistas en Coveta Fumá (El Campello). Se ubica en una de las zonas más tranquilas y privilegiadas el término de El Campello. Disfruta de unas excelentes vistas y con un buen vecindario La parcela consta de 1.283 m2. La edificabilidad es del 25 %, es decir, un techo máximo de 320,99 m2. El terreno al estar en pendiente ascendente permite, desde la planta baja disfrutar de unas bonitas vistas al mar. La parcela tendría una orientación sur, lo que le dota de una gran luz natural durante todo el día. La edificabilidad permitida sería de sótano + planta baja + 2 plantas superiores. En el reportaje fotográfico aportamos unas imágenes sobre un posible proyecto en el resultado de la edificación. Además planos y cuadros de superficies. Se trataría de un chalet moderno, funcional y con el máximo aprovechamiento de la parcela. No te pierdas el video que añadimos para apreciar las vistas! Disponemos también del Informe de Viabilidad Urbanísticas completo. El presente documento tiene carácter meramente informativo, orientativo y no vinculante, por lo que no supone información contractual alguna, siendo su uso estrictamente comercial. [IW].

Property characteristics

Complex information

  • Property type
    Urban

Property data

  • Property type
    Second hand

Surfaces

  • Land area
    1 284 m²

Base

Facilities

Views:

Sea Views

Additional Features:

Building plot

Market price statistics for Terreno en calle Marbella

Map

Alicante, El Campello, Spanish Town - Coveta Fumá, Calle Marbella Going to this location!
Leave a review about Terreno en calle Marbella
0
0 reviews
1
0% (0)
2
0% (0)
3
0% (0)
4
0% (0)
5
0% (0)
Albertus Real Estate
388 000 €
Contact advertiser

For more information contact the platform

REF: 235336

Reviews about Terreno en calle Marbella
Loading...

No reviews have been left for this object yet

Nearest properties

Explore nearby properties we've discovered in close proximity to this location

Terreno en venta en Pueblo Español - Coveta Fumá

Alicante, El Campello, Spanish Town - Coveta Fumá
249 000 €

En la Costa Blanca Norte, en la cotizada zona residencial de Coveta Fuma, se enc...

0
0 reviews

Terreno en calle del Convent

Alicante, El Campello, Campello Pueblo, Calle del Convent
185 000 €

Se vende un espectacular solar urbano en el encantador pueblo costero de El Camp...

0
0 reviews

Terreno en calle de I'Aigualera

Alicante, Mutxamel, Bonalba-Cotoveta, Calle de I'Aigualera
224 300 €

Parcela HT-2, de uso hotelero situada en la Urbz. Bonalba, provincia de Alicante...

0
0 reviews

Terreno en calle de I'Aigualera

Alicante, Mutxamel, Bonalba-Cotoveta, Calle de I'Aigualera
175 800 €

Parcela HT-2, de uso hotelero situada en la Urbz. Bonalba, provincia de Alicante...

0
0 reviews

Terreno en calle del Convent

Alicante, El Campello, Campello Pueblo, Calle del Convent
110 000 €

Solar urbano en venta en Campello, con una superficie de 300 m2 con fachada a do...

0
0 reviews

Terreno en calle Benimantell

Alicante, El Campello, Cliff Town - Lanuza, Calle Benimantell
280 000 €

En El Campello Norte, a solo 10 minutos en coche del pueblo de El Campello, a 30...

0
0 reviews

Terreno en calle de Torrent

Alicante, El Campello, Spanish Town - Coveta Fumá, Calle de Torrent
249 000 €

En la Costa Blanca Norte, en la cotizada zona residencial de Coveta Fuma, se enc...

0
0 reviews

Terreno en calle Sant Bartomeu

Alicante, El Campello, Campello Playa, Calle Sant Bartomeu
1 350 000 €

Solar para desarrollar una promocion inmobiliaria al lado del paseo maritimo de...

0
0 reviews

Terreno en calle de la Parra

Alicante, Busot
13 800 €

OPORTUNIDAD DE INVERSIÓN: El Inmueble se encuentra en estado de ruina, no siendo...

0
0 reviews
Call

We use our own and third-party cookies to analyze website usage and show you advertisements related to your preferences based on a profile created from your browsing habits (e.g., pages visited). More information. Do you accept cookies?