Spain Flats Spain Flats Alicante Flats Gran Alacant Piso en calle de Xipre, 70

Sale of apartment in Calle de Xipre, 70, Gran Alacant

Alicante, Gran Alacant, Mountain and Sea, Calle de Xipre, 70
229 000 €
3 053 € / m2
Leave review
Flats Property type
75 m² built square meters
2 Bathrooms
2 Bedrooms
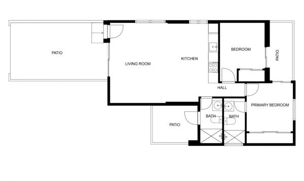
Te presentamos esta luminosa y moderna vivienda de obra nueva entregada en 2024, ubicada en planta baja dentro de un residencial privado con piscina comunitaria y zonas verdes. Un entorno ideal para disfrutar del buen clima y la tranquilidad de la zona. Con una superficie construida de 75,85 m², la propiedad se distribuye de forma muy funcional: amplio salón-comedor con cocina integrada, dos dormitorios y dos baños completos. El dormitorio principal cuenta con baño en suite, mientras que el segundo dormitorio tiene acceso directo a un patio trasero privado de 5,07 m², perfecto como espacio de descanso o zona exterior adicional. Además, dispone de un jardín/aparcamiento privado de 22,09 m² en la parte delantera y un acogedor patio de acceso de 5,39 m². Equipada con aire acondicionado por conductos, la vivienda garantiza confort durante todo el año. Situada en Gran Alacant, Santa Pola, cerca de las playas de Arenales del Sol y Carabassí, y rodeada de todos los servicios necesarios: supermercados, centro comercial, colegios, centros sanitarios, transporte público y zonas deportivas.

Property characteristics

Complex information

  • Property type
    Flats

Property data

  • Bedrooms
    2
  • Bathrooms
    2
  • built square meters
    75 m²
  • Property type
    Second hand

Plans

Market price statistics for Piso en calle de Xipre, 70

Map

Alicante, Gran Alacant, Mountain and Sea, Calle de Xipre, 70 Going to this location!
Leave a review about Piso en calle de Xipre, 70
0
0 reviews
1
0% (0)
2
0% (0)
3
0% (0)
4
0% (0)
5
0% (0)
Costa Blanca Bolig
229 000 €
from 3 053 € / m2
Contact advertiser

For more information contact the platform

REF: 241322

Reviews about Piso en calle de Xipre, 70
Loading...

No reviews have been left for this object yet

Nearest properties

Explore nearby properties we've discovered in close proximity to this location

Apartamentos en Venta en Calle C/ Bahía, 65 y Avda. Costa Blanca, 22, Elche / Elx

Alicante, Elche / Elx, Arenales del Sol, Calle C/ Bahía, 65 y Avda. Costa Blanca, 22
280 000 €

Arenales es una de las mejores playas de la Costa Blanca. en sus aguas azules y...

0
0 reviews

Apartamentos en Venta en Calle C/ Bahía, 65 y Avda. Costa Blanca, 22, Elche / Elx

Alicante, Elche / Elx, Arenales del Sol, Calle C/ Bahía, 65 y Avda. Costa Blanca, 22
285 000 €

Arenales es una de las mejores playas de la Costa Blanca. en sus aguas azules y...

0
0 reviews

Apartamentos en Venta en Calle C/ Bahía, 65 y Avda. Costa Blanca, 22, Elche / Elx

Alicante, Elche / Elx, Arenales del Sol, Calle C/ Bahía, 65 y Avda. Costa Blanca, 22
290 000 €

Arenales es una de las mejores playas de la Costa Blanca. en sus aguas azules y...

0
0 reviews

Apartamentos en Venta en Calle C/ Bahía, 65 y Avda. Costa Blanca, 22, Elche / Elx

Alicante, Elche / Elx, Arenales del Sol, Calle C/ Bahía, 65 y Avda. Costa Blanca, 22
299 000 €

Arenales es una de las mejores playas de la Costa Blanca. en sus aguas azules y...

0
0 reviews

Apartamentos en Venta en Calle C/ Bahía, 65 y Avda. Costa Blanca, 22, Elche / Elx

Alicante, Elche / Elx, Arenales del Sol, Calle C/ Bahía, 65 y Avda. Costa Blanca, 22
299 000 €

Arenales es una de las mejores playas de la Costa Blanca. en sus aguas azules y...

0
0 reviews

Apartamentos en Venta en Calle C/ Bahía, 65 y Avda. Costa Blanca, 22, Elche / Elx

Alicante, Elche / Elx, Arenales del Sol, Calle C/ Bahía, 65 y Avda. Costa Blanca, 22
292 000 €

Arenales es una de las mejores playas de la Costa Blanca. en sus aguas azules y...

0
0 reviews

Apartamentos en Venta en Calle C/ Bahía, 65 y Avda. Costa Blanca, 22, Elche / Elx

Alicante, Elche / Elx, Arenales del Sol, Calle C/ Bahía, 65 y Avda. Costa Blanca, 22
360 000 €

Arenales es una de las mejores playas de la Costa Blanca. en sus aguas azules y...

0
0 reviews

Apartamentos en Venta en Calle C/ Bahía, 65 y Avda. Costa Blanca, 22, Elche / Elx

Alicante, Elche / Elx, Arenales del Sol, Calle C/ Bahía, 65 y Avda. Costa Blanca, 22
290 000 €

Arenales es una de las mejores playas de la Costa Blanca. en sus aguas azules y...

0
0 reviews

Apartamentos en Venta en Calle C/ Bahía, 65 y Avda. Costa Blanca, 22, Elche / Elx

Alicante, Elche / Elx, Arenales del Sol, Calle C/ Bahía, 65 y Avda. Costa Blanca, 22
295 000 €

Arenales es una de las mejores playas de la Costa Blanca. en sus aguas azules y...

0
0 reviews
Call

We use our own and third-party cookies to analyze website usage and show you advertisements related to your preferences based on a profile created from your browsing habits (e.g., pages visited). More information. Do you accept cookies?