Spain Urban Spain Urban Alicante Urban Jávea/Xàbia Terreno en Montañar-El Arenal

Terreno en Montañar-El Arenal

Alicante, Jávea/Xàbia, Montañar-El Arenal, Montañar-El Arenal
395 000 €
Leave review
Urban Property type
1 195 m² Land area
Fruit trees Crops
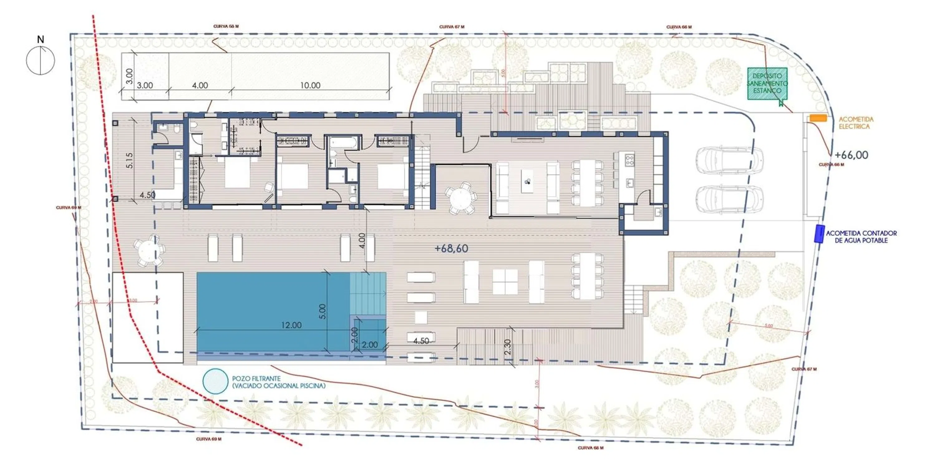
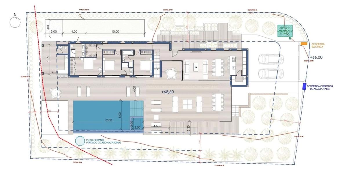
Ubicada en el tranquilo corazón de Jávea, esta impresionante parcela plana de 1.200 m² presenta una oportunidad única para dar vida a la villa de sus sueños en una de las zonas más deseables de la Costa Blanca. Rodeado de un hermoso campo y a pocos pasos de la nueva escuela primaria internacional, esta ubicación combina perfectamente la tranquilidad con la comodidad. Lo que realmente distingue a esta propiedad es la licencia de construcción totalmente aprobada y el proyecto de villa diseñado por un arquitecto incluido en la venta. Sin esperas, sin trámites burocráticos, solo un comienzo de construcción sin problemas. Puede comenzar a construir de inmediato y concentrarse en personalizar su futura casa según su gusto y estilo de vida. El diseño de la villa planeado es tan impresionante como el entorno. La planta baja cuenta con: Tres amplios dormitorios Una sala de estar, comedor y cocina de planta abierta que desemboca en una gran terraza Una piscina privada ideal para relajarse o entretenerse El nivel inferior ofrece un toque de lujo y practicidad: Dos dormitorios con baño privado Un salón acogedor Un cine en casa Una bodega, perfecta para entretenerse o relajarse con estilo Ya sea que esté buscando una casa familiar para siempre o una inversión sólida en bienes raíces de alta gama, esta parcela cumple en todos los frentes: ubicación privilegiada, construcción lista para usar y un estilo de vida de elegancia mediterránea. Póngase en contacto con nosotros para obtener más información y planos de diseño detallados.

Property characteristics

Complex information

  • Property type
    Urban

Property data

  • Property type
    Second hand

Surfaces

  • Land area
    1 195 m²

Base

  • Crops
    Fruit trees

Facilities

Cultivation:

Food cultivation

Market price statistics for Terreno en Montañar-El Arenal

Map

Alicante, Jávea/Xàbia, Montañar-El Arenal, Montañar-El Arenal Going to this location!
Leave a review about Terreno en Montañar-El Arenal
0
0 reviews
1
0% (0)
2
0% (0)
3
0% (0)
4
0% (0)
5
0% (0)
Dimora Javea Real Estate
395 000 €
Contact advertiser

For more information contact the platform

REF: 234631

Reviews about Terreno en Montañar-El Arenal
Loading...

No reviews have been left for this object yet

Nearest properties

Explore nearby properties we've discovered in close proximity to this location

Terreno en venta en calle del Mar de Bering s/n

Alicante, Jávea/Xàbia, Comunes-Adsubia Partida, Calle del Mar de Bering s/n
280 000 €

Esta descripción ha sido traducida automáticamente y puede que no sea muy precis...

0
0 reviews

Urban land For sell in Javea in Alicante

Alicante, Jávea/Xàbia
1 089 000 €

This villa with modern architecture will be built by a French developer with qua...

0
0 reviews

Urban land For sell in Denia in Alicante

Alicante, Denia
175 000 €

The plot for sale is located in a quiet area about 2km from the beaches of Las R...

0
0 reviews

Terreno en calle Vicent Boix, 333

Alicante, Jávea/Xàbia, La Granadella - Costa Nova, Calle Vicent Boix, 333
145 000 €

Parcela en venta en Javea Costa Nova. Esta parcela plana de 1.000m2 se encuentra...

0
0 reviews

Terreno en El Montgó

Alicante, Denia, The Montgó, El Montgó
212 000 €

Parcela de 844m2 con muy buenas vistas a el mar y al paisaje montañoso de él Mon...

0
0 reviews

Terreno en Cap Martí - Pinomar

Alicante, Jávea/Xàbia, Cap Martí - Pinomar, Cap Martí - Pinomar
269 000 €

Parcela de 1000 m2 para construir un chalet de lujo de 190 m2 Posible con proyec...

0
0 reviews

Terreno en La Granadella - Costa Nova

Alicante, Jávea/Xàbia, La Granadella - Costa Nova, La Granadella - Costa Nova
157 500 €

RANDOF Real Estate con oficinas ubicadas en Dénia, Jávea y Moraira le ofrece una...

0
0 reviews

Terreno en Partida Comunes-Adsubia

Alicante, Jávea/Xàbia, Comunes-Adsubia Partida, Partida Comunes-Adsubia
240 000 €

RANDOF Real Estate con oficinas ubicadas en Dénia, Jávea y Moraira le ofrece est...

0
0 reviews

Terreno en La Granadella - Costa Nova

Alicante, Jávea/Xàbia, La Granadella - Costa Nova, La Granadella - Costa Nova
2 000 000 €

Parcela con orientación sur en venta junto a la playa de la Granadella. Esta par...

0
0 reviews
Call

We use our own and third-party cookies to analyze website usage and show you advertisements related to your preferences based on a profile created from your browsing habits (e.g., pages visited). More information. Do you accept cookies?