Spain Urban Spain Urban Alicante Urban Jávea/Xàbia Terreno en Urbanizacion Corona la 4

Terreno en Urbanizacion Corona la 4

Alicante, Jávea/Xàbia, Port, Urbanizacion Corona la 4
1 200 000 €
Leave review
Urban Property type
932 m² Land area
Residential Use of lot
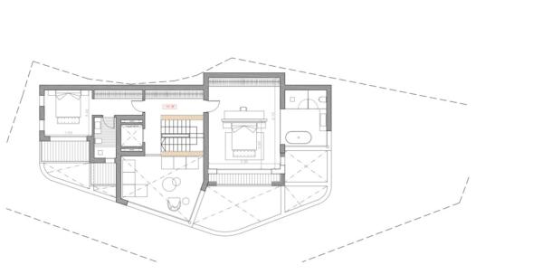
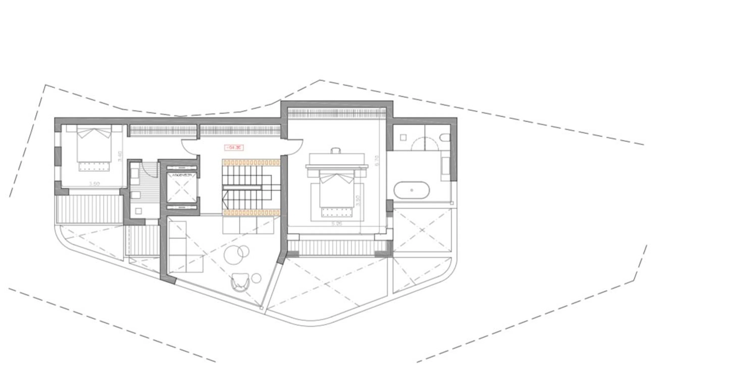
Parcela exclusiva en Urbanización ´´ La Corona´´ en Jávea: vistas al mar, orientación sur y licencia lista para construirDescubre una de las últimas oportunidades de inversión en La Corona, la zona residencial más prestigiosa y demandada de Jávea. Esta amplia parcela de 885 m² destaca por su orientación sur, lo que garantiza luz natural durante todo el día, así como unas impresionantes vistas panorámicas al mar y a toda Jávea. Esta parcela ofrece la posibilidad de construir una espectacular vivienda unifamiliar de dos alturas con una superficie total de 247 m², perfectamente integrada en su entorno natural y diseñada para aprovechar al máximo la orientación y las vistas. Una de sus grandes ventajas es que ya dispone de licencia de construcción concedida, lo que permite empezar la obra de inmediato, ahorrando tiempo y trámites. Además, se incluye un proyecto básico, flexible y abierto a modificaciones según los deseos y necesidades del comprador. Situada al final de una tranquila calle sin salida, esta parcela garantiza máxima privacidad y cero tráfico, ofreciendo un entorno exclusivo, silencioso y seguro, ideal para una residencia familiar o una villa de lujo para disfrutar todo el año. En Jávea cada vez quedan menos parcelas disponibles, especialmente en ubicaciones privilegiadas como esta. La Corona es una zona consolidada, altamente valorada por su cercanía al puerto, restaurantes, playas y todos los servicios, sin renunciar a la paz y la exclusividad que demandan los compradores más exigentes. ✨ Características clave: Parcela de 885 m² con licencia concedidaProyecto básico incluido y modificableVivienda de 2 alturas y 247 m² construidosOrientación sur y vistas panorámicas al mar y JáveaUbicación privilegiada y sin tráfico: Final de calle sin salidaUna de las zonas más cotizadas de la Costa BlancaNo dejes escapar esta oportunidad única de construir la casa de tus sueños en uno de los rincones más codiciados del Mediterráneo.

Property characteristics

Complex information

  • Property type
    Urban

Property data

  • Property type
    Second hand

Surfaces

  • Land area
    932 m²

Base

  • Use of lot
    Residential

Facilities

Views:

Sea Views

Plans

Market price statistics for Terreno en Urbanizacion Corona la 4

Map

Alicante, Jávea/Xàbia, Port, Urbanizacion Corona la 4 Going to this location!
Leave a review about Terreno en Urbanizacion Corona la 4
0
0 reviews
1
0% (0)
2
0% (0)
3
0% (0)
4
0% (0)
5
0% (0)
Crown Properties
1 200 000 €
Contact advertiser

For more information contact the platform

REF: 335420

Reviews about Terreno en Urbanizacion Corona la 4
Loading...

No reviews have been left for this object yet

Nearest properties

Explore nearby properties we've discovered in close proximity to this location

Terreno en venta en calle del Mar de Bering s/n

Alicante, Jávea/Xàbia, Comunes-Adsubia Partida, Calle del Mar de Bering s/n
280 000 €

Esta descripción ha sido traducida automáticamente y puede que no sea muy precis...

0
0 reviews

Urban land For sell in Javea in Alicante

Alicante, Jávea/Xàbia
1 089 000 €

This villa with modern architecture will be built by a French developer with qua...

0
0 reviews

Urban land For sell in Denia in Alicante

Alicante, Denia
175 000 €

The plot for sale is located in a quiet area about 2km from the beaches of Las R...

0
0 reviews

Terreno en c Llorer 3 - 5, 3

Alicante, Denia, The Montgó, C Llorer 3 - 5, 3
395 000 €

Parcela incl. licencia de obra y tasas - ¡puede empezar a construir la casa de s...

0
0 reviews

Terreno en calle Vicent Boix, 333

Alicante, Jávea/Xàbia, La Granadella - Costa Nova, Calle Vicent Boix, 333
145 000 €

Parcela en venta en Javea Costa Nova. Esta parcela plana de 1.000m2 se encuentra...

0
0 reviews

Terreno en El Montgó

Alicante, Denia, The Montgó, El Montgó
212 000 €

Parcela de 844m2 con muy buenas vistas a el mar y al paisaje montañoso de él Mon...

0
0 reviews

Terreno en Cap Martí - Pinomar

Alicante, Jávea/Xàbia, Cap Martí - Pinomar, Cap Martí - Pinomar
269 000 €

Parcela de 1000 m2 para construir un chalet de lujo de 190 m2 Posible con proyec...

0
0 reviews

Terreno en La Granadella - Costa Nova

Alicante, Jávea/Xàbia, La Granadella - Costa Nova, La Granadella - Costa Nova
157 500 €

RANDOF Real Estate con oficinas ubicadas en Dénia, Jávea y Moraira le ofrece una...

0
0 reviews

Terreno en Partida Comunes-Adsubia

Alicante, Jávea/Xàbia, Comunes-Adsubia Partida, Partida Comunes-Adsubia
240 000 €

RANDOF Real Estate con oficinas ubicadas en Dénia, Jávea y Moraira le ofrece est...

0
0 reviews
Call

We use our own and third-party cookies to analyze website usage and show you advertisements related to your preferences based on a profile created from your browsing habits (e.g., pages visited). More information. Do you accept cookies?