Spain Urban Spain Urban Alicante Urban Jávea/Xàbia Terreno en Urbanizacion Pino Sol

Terreno en Urbanizacion Pino Sol

Alicante, Jávea/Xàbia, Cap Martí - Pinomar, Urbanizacion Pino Sol
360 000 €
Leave review
Urban Property type
889 m² Land area
2 Buildable plots
178 m² Buildability
Urban access Access type
Yes Electricity supply
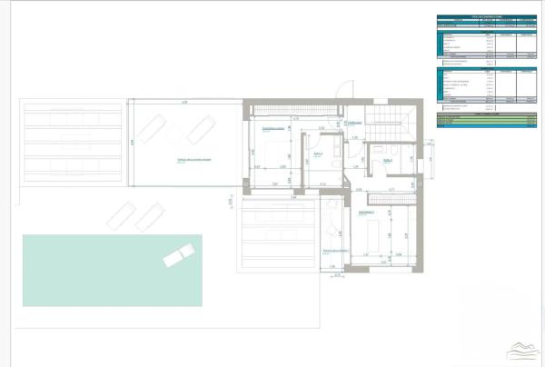
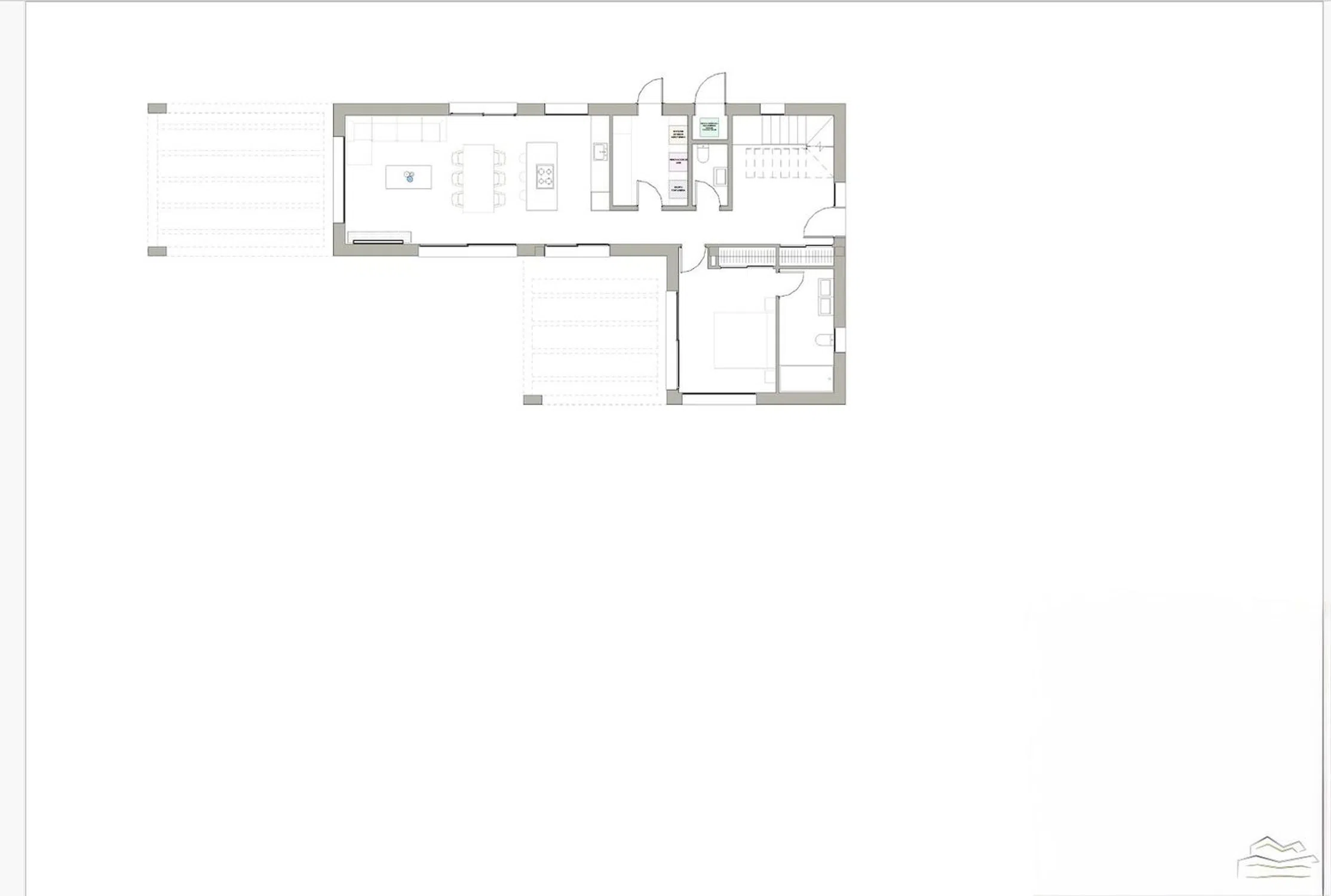
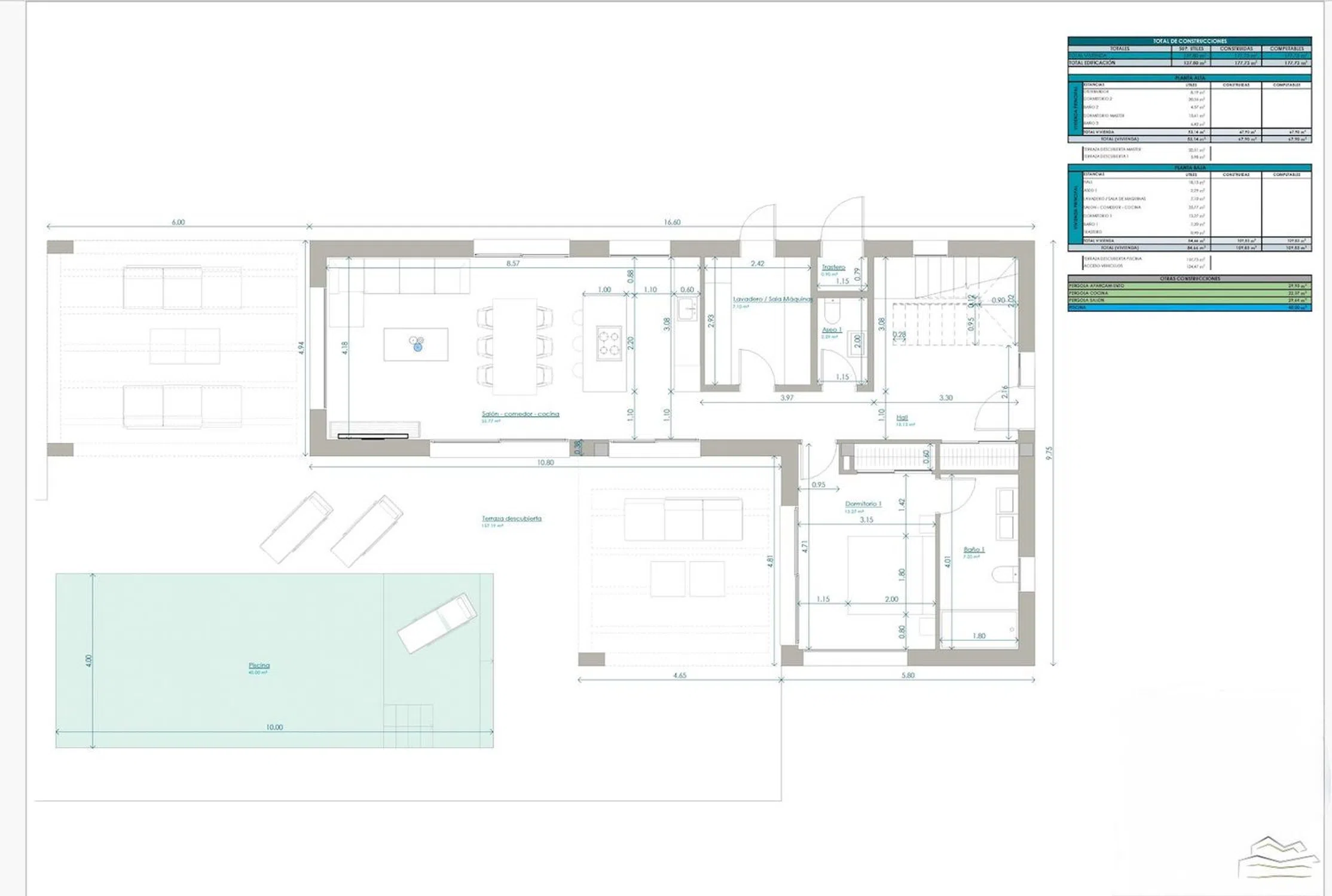
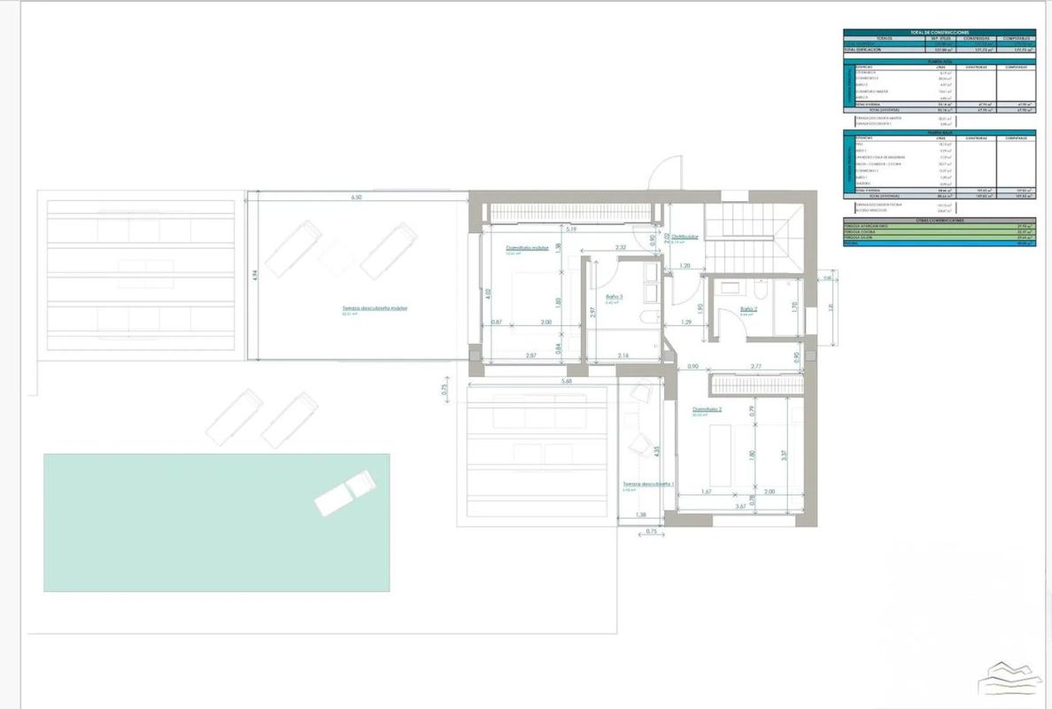
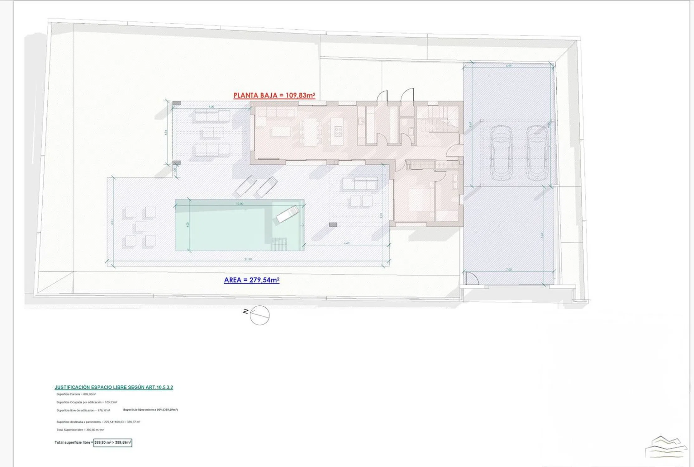
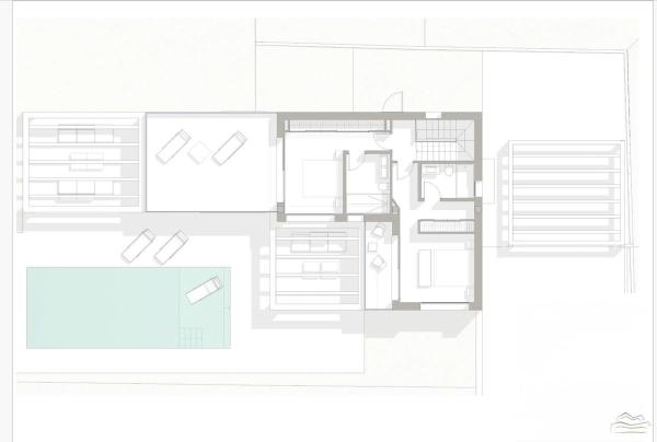
Parcela en venta en Pinosol Javea - Costa Blana Norte (Sin Edificacion) Proyecto diseñado por el estudio de arquitectos Nao ya aprobado y listo para construir la villa de tus sueños. Se trata de una oportunidad fantástica para comprar una parcela totalmente llana, orientada al oeste, con licencia de edificación aprobada en la exclusiva zona residencial de Pinosol, Jávea. La parcela tiene una extension de 889 m² y ofrece unas vistas a la montaña del Montgó y unas puestas de sol de ensueño. Situada en un barrio tranquilo y bien establecido, a tan sólo 3 minutos en coche de la playa del Arenal y a un corto paseo de varios restaurantes de gran calidad. El proyecto es de una moderna villa de dos plantas con piscina. La villa tendrá 3 amplios dormitorios, todos con baños en suite, un gran salón comedor con cocina abierta y acceso directo a la terraza, un aseo de invitados, un lavadero y un trastero. La vivienda también contará con amplias terrazas, una piscina privada de 40 m² y una pérgola con espacio para dos coches. Además, la villa estará rodeada por un jardín mediterráneo con árboles autóctonos. Existe la posibilidad de añadir un sótano a la casa con una simple modificación de la licencia en el ayuntamiento. Este espacio podría utilizarse como trastero, gimnasio, sala de cine o dormitorio adicional. Con una superficie edificable de 177,73 m² en dos plantas (más un sótano opcional por modificación), la villa ha sido cuidadosamente diseñada para integrarse en su entorno natural y maximizar su orientación oeste, ubicación: Pinosol, Jávea (Costa Blanca Norte), Superficie de la parcela: 889 m² Superficie edificable: 177,73 m² (licencia aprobada) Los precios no incluyen los impuestos del IVA y gastos de notario, registro y los costos de conexión para agua y electricidad Esta es una oportunidad que no querrás dejar pasar. Adentrarte en la vida en Javea significa abrir la puerta a un estilo de vida marcado por la tranquilidad, la belleza natural y un clima envidiable. Es el momento perfecto para dar el paso hacia una nueva aventura. ¡Crea el hogar de tus sueños en este exclusivo rincón de la Costa Blanca!

Property characteristics

Complex information

  • Property type
    Urban

Property data

  • Property type
    Second hand

Surfaces

  • Land area
    889 m²

Base

  • Minimum sale plot
    889 m²
  • Buildable plots
    2
  • Buildability
    178 m²
  • Access type
    Urban access
  • Electricity supply
    Yes

Facilities

Supply:

With electricity

In building:

Basement

Market price statistics for Terreno en Urbanizacion Pino Sol

Map

Alicante, Jávea/Xàbia, Cap Martí - Pinomar, Urbanizacion Pino Sol Going to this location!
Leave a review about Terreno en Urbanizacion Pino Sol
0
0 reviews
1
0% (0)
2
0% (0)
3
0% (0)
4
0% (0)
5
0% (0)
MG Villas Luxury Property
360 000 €
Contact advertiser

For more information contact the platform

REF: 400494

Reviews about Terreno en Urbanizacion Pino Sol
Loading...

No reviews have been left for this object yet

Nearest properties

Explore nearby properties we've discovered in close proximity to this location

Terreno en venta en calle del Mar de Bering s/n

Alicante, Jávea/Xàbia, Comunes-Adsubia Partida, Calle del Mar de Bering s/n
280 000 €

Esta descripción ha sido traducida automáticamente y puede que no sea muy precis...

0
0 reviews

Urban land For sell in Javea in Alicante

Alicante, Jávea/Xàbia
1 089 000 €

This villa with modern architecture will be built by a French developer with qua...

0
0 reviews

Terreno en calle Vicent Boix, 333

Alicante, Jávea/Xàbia, La Granadella - Costa Nova, Calle Vicent Boix, 333
145 000 €

Parcela en venta en Javea Costa Nova. Esta parcela plana de 1.000m2 se encuentra...

0
0 reviews

Terreno en Cap Martí - Pinomar

Alicante, Jávea/Xàbia, Cap Martí - Pinomar, Cap Martí - Pinomar
269 000 €

Parcela de 1000 m2 para construir un chalet de lujo de 190 m2 Posible con proyec...

0
0 reviews

Terreno en La Granadella - Costa Nova

Alicante, Jávea/Xàbia, La Granadella - Costa Nova, La Granadella - Costa Nova
157 500 €

RANDOF Real Estate con oficinas ubicadas en Dénia, Jávea y Moraira le ofrece una...

0
0 reviews

Terreno en Partida Comunes-Adsubia

Alicante, Jávea/Xàbia, Comunes-Adsubia Partida, Partida Comunes-Adsubia
240 000 €

RANDOF Real Estate con oficinas ubicadas en Dénia, Jávea y Moraira le ofrece est...

0
0 reviews

Terreno en La Granadella - Costa Nova

Alicante, Jávea/Xàbia, La Granadella - Costa Nova, La Granadella - Costa Nova
2 000 000 €

Parcela con orientación sur en venta junto a la playa de la Granadella. Esta par...

0
0 reviews

Terreno en Portichol - Balcón al Mar

Alicante, Jávea/Xàbia, Portichol - Balcony to the Sea, Portichol - Balcón al Mar
300 000 €

Parcela con una bonita vista y con posibilidad de comprar la parcela colindante.

0
0 reviews

Terreno en calle de la Violeta

Alicante, Jávea/Xàbia, Cap Martí - Pinomar, Calle de la Violeta
220 000 €

Parcela Urbana en Venta en Tosalet III, Jávea, Costa Blanca. Esta bonita parcela...

0
0 reviews
Call

We use our own and third-party cookies to analyze website usage and show you advertisements related to your preferences based on a profile created from your browsing habits (e.g., pages visited). More information. Do you accept cookies?