Hotel, centro de fitness en calle Roques

Alicante, Jávea/Xàbia, City Center, Calle Roques
995 000 €
3 713 € / m2
Leave review
Commercial premises Property type
6 Bathrooms
268 m² built square meters
Good condition Property status
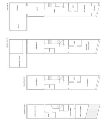
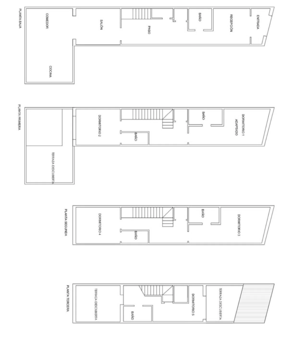
Descubre una joya arquitectónica en el corazón de Javea, un impresionante hotel con acceso directo desde la emblemática Calle Roques. Este establecimiento combina a la perfección elegancia y funcionalidad, ofreciendo una experiencia inigualable tanto para huéspedes como para inversores. Al entrar, serás recibido por un hall en planta baja que cuenta con una acogedora zona de estar y recepción, ideal para dar la bienvenida a los visitantes. La zona de espera, definida por arcos embebidos en la medianería, añade un toque de sofisticación al espacio. Distribuido en tres plantas cuidadosamente diseñadas, este hotel ofrece un dormitorio tipo suite con baño incorporado en la primera planta, y otra suite con terraza descubierta en la segunda planta. En la planta bajo cubierta, un espacio diáfano con baño exclusivo para el gerente asegura privacidad y comodidad. Además, el hotel cuenta con un centro fitness completamente equipado, calefacción, aire acondicionado, jacuzzi, ascensor, sistemas de alarma y salida de humos, todo pensado para garantizar una experiencia única. Con 268 m² construidos y 250 m² útiles, este hotel es una oportunidad excepcional para invertir en un magnífico establecimiento hotelero. La venta incluye tanto el inmueble como el negocio, ofreciendo un potencial de rentabilidad increíble. Con cinco dormitorios y seis baños, algunos adaptados para personas con discapacidad, este hotel está listo para recibir a sus nuevos propietarios e invitados. No pierdas la oportunidad de ser parte de esta exclusiva propiedad a pie de calle. El negocio actual tiene un volumen de negocios anual de 270.000 euros, que se puede asumir al comprar la propiedad absoluta.

Property characteristics

Complex information

  • Property type
    Commercial premises

Project information / Work status

  • Property status
    Good condition

Property data

  • Bathrooms
    6
  • built square meters
    268 m²
  • Property type
    Second hand

Facilities

Housing Amenities:

Air conditioning

State:

Good condition

Plans

Market price statistics for Hotel, centro de fitness en calle Roques

Map

Alicante, Jávea/Xàbia, City Center, Calle Roques Going to this location!
Leave a review about Hotel, centro de fitness en calle Roques
0
0 reviews
1
0% (0)
2
0% (0)
3
0% (0)
4
0% (0)
5
0% (0)
Plots and Villas Javea
995 000 €
from 3 713 € / m2
Contact advertiser

For more information contact the platform

REF: 324203

Reviews about Hotel, centro de fitness en calle Roques
Loading...

No reviews have been left for this object yet

Nearest properties

Explore nearby properties we've discovered in close proximity to this location

Local en Calistros

Alicante, Benitachell, Calistros, Calistros
590 000 €

Esta oportunidad única surge de la venta de este negocio de gatería establecido...

0
0 reviews

Restaurante en Denia s/n

Alicante, Denia, Les Rotes/Las Rotas, Denia s/n
65 000 €

Restaurante listo para empezar a trabajar, situado en pleno centro de Dénia, con...

0
0 reviews

Local en Saladar

Alicante, Denia, Saladar, Saladar
126 000 €

En venta amplio local en bruto de 81m², situado a pie de calle en una ubicación...

0
0 reviews

Local en Les Rotes/Las Rotas

Alicante, Denia, Les Rotes/Las Rotas, Les Rotes/Las Rotas
550 000 €

SYBARIS HOMES tiene a la venta un restaurante emblemático en venta, con una tray...

0
0 reviews

Local en camino Badía, 1

Alicante, Denia, Les Rotes/Las Rotas, Camino Badía, 1
550 000 €

Vendo chalet-restaurante en la exclusiva playa de las Rotas a 200 metros del mar...

0
0 reviews

Local en Montañar-El Arenal

Alicante, Jávea/Xàbia, Montañar-El Arenal, Montañar-El Arenal
13 500 000 €

Se vende negocio en funcionamiento - lujoso hotel 4 en primera línea del mar Med...

0
0 reviews

Local en calle Thiviers, 7

Alicante, Jávea/Xàbia, City Center, Calle Thiviers, 7
349 000 €

Local en Venta en Jávea: Oportunidad Única de Inversión Descubre este amplio loc...

0
0 reviews

Local en Centro Ciudad

Alicante, Jávea/Xàbia, City Center, Centro Ciudad
159 000 €

Local comercial en Arenal, con 58 m² construidos, 1 estancias, 1 baños, buen est...

0
0 reviews

Local en Cap Martí - Pinomar

Alicante, Jávea/Xàbia, Cap Martí - Pinomar, Cap Martí - Pinomar
1 250 000 €

DV304XL Sólo encontrará esta propiedad única una vez en toda Jávea, una espacios...

0
0 reviews
Call

We use our own and third-party cookies to analyze website usage and show you advertisements related to your preferences based on a profile created from your browsing habits (e.g., pages visited). More information. Do you accept cookies?