Terreno en avenida de Finestrat, 15

Alicante, La Villajoyosa / Vila Joiosa, El Secanet - Hacienda del Sol, Avenida de Finestrat, 15
126 000 €
Leave review
Urban Property type
167 m² Land area
Residential Use of lot
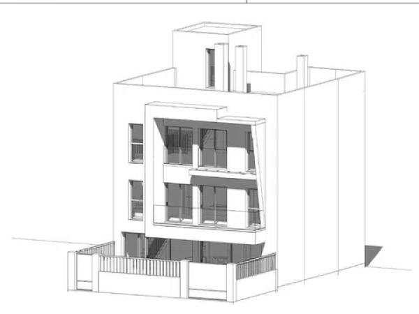
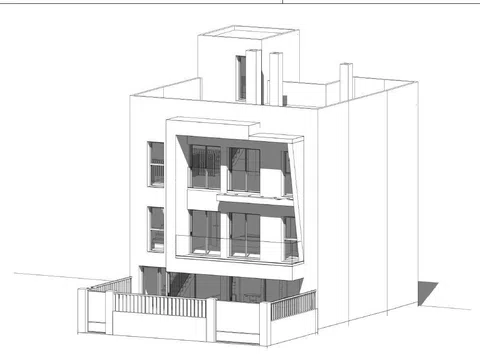
¡Excelente oportunidad en Villajoyosa! � Presentamos un suelo urbano único en Villa Joyosa, con una superficie de 163 m². Este solar está situado en una zona consolidada de la ciudad, rodeado de viviendas unifamiliares y plurifamiliares de baja altura (Planta Baja + 2 alturas máximo). Ubicado a solo 750 metros del mar, es el único terreno urbano disponible en la zona. Características del Terreno: Superficie: 163 m² (según datos registrales y topográficos) Ubicación: Zona consolidada con viviendas de baja altura Entorno: A 750 metros del mar, ideal para disfrutar todo el año de una ciudad turística Detalles Adicionales: Configuración: Aproximadamente rectangular Estado Actual: Solar exento, sin edificación Lindero: Colinda lateralmente y en su extremo posterior con edificaciones residenciales de tres alturas Proyecto Aprobado: Cuenta con un proyecto aprobado para la construcción de una vivienda unifamiliar de 317 m² construidos (248 m² útiles), distribuidos en tres alturas, con 4 habitaciones y 3 baños. ¡Construye la casa de tus sueños! No dudes en contactar por cualquier duda o consulta. También podemos ayudarte a gestionar la financiación para la construcción. ¡No dejes pasar esta oportunidad única! ��.

Property characteristics

Complex information

  • Property type
    Urban

Property data

  • Property type
    Second hand

Surfaces

  • Land area
    167 m²

Base

  • Use of lot
    Residential

Facilities

Cultivation:

Fruit Trees

Plans

Market price statistics for Terreno en avenida de Finestrat, 15

Map

Alicante, La Villajoyosa / Vila Joiosa, El Secanet - Hacienda del Sol, Avenida de Finestrat, 15 Going to this location!
Leave a review about Terreno en avenida de Finestrat, 15
0
0 reviews
1
0% (0)
2
0% (0)
3
0% (0)
4
0% (0)
5
0% (0)
L´ARIMAR HOME
126 000 €
Contact advertiser

For more information contact the platform

REF: 207588

Reviews about Terreno en avenida de Finestrat, 15
Loading...

No reviews have been left for this object yet

Nearest properties

Explore nearby properties we've discovered in close proximity to this location

Terreno en venta en calle Beniarres

Alicante, Finestrat, Cala de Finestrat, Calle Beniarres
400 000 €

Solar en venta situado en el Sector 27 de Finestrat, Alicante. La parcela posee...

0
0 reviews

Terreno en venta en calle Rei Jaume I

Alicante, Finestrat, Cala de Finestrat, Calle Rei Jaume I
1 000 100 €

Solar en venta situado en el Sector 27 de Finestrat, Alicante. La parcela posee...

0
0 reviews

Terreno en venta en calle Sella

Alicante, Finestrat, Cala de Finestrat, Calle Sella
1 450 000 €

Solar en venta con una superficie de 18620 m² en la localidad de Finestrat, en l...

0
0 reviews

Terreno en venta en calle Jaime Soler Urriós

Alicante, La Villajoyosa / Vila Joiosa, Urban center, Calle Jaime Soler Urriós
147 000 €

Suelo en venta en C/ Jaime Soler Urrios. Suelo Urbano de uso residencial con edi...

0
0 reviews

Terreno en venta en calle Jaime Soler Urriós

Alicante, La Villajoyosa / Vila Joiosa, Urban center, Calle Jaime Soler Urriós
134 000 €

Suelo urbanizable sectorizado de uso residencial y comercial situado en Villajoy...

0
0 reviews

Terreno en venta en calle Jaime Soler Urriós

Alicante, La Villajoyosa / Vila Joiosa, Urban center, Calle Jaime Soler Urriós
1 190 000 €

Terreno urbano situado en PP26 Casino Parcela A4-1, en la localidad de Villajoyo...

0
0 reviews

Terreno en venta en Urbanizacion Charco

Alicante, La Villajoyosa / Vila Joiosa, Poble Nou - Montiboli, Urbanizacion Charco
118 000 €

Suelo - Terreno urbanizable ubicado en la Urbanización Montíboli de Villajoyosa...

0
0 reviews

Terreno en avenida Joan Carles i

Alicante, La Villajoyosa / Vila Joiosa, Urban center, Avenida Joan Carles I
3 023 000 €

¡OPORTUNIDAD LIBRE DE COMISIÓN! Parcela de terreno con una superficie de 20465 m...

0
0 reviews

Terreno en Playa de Poniente

Alicante, Benidorm, Poniente Beach, Playa de Poniente
1 000 000 €

Terreno de unos 1272 m2 para construir con un proyecto del edificio situado en e...

0
0 reviews
Call

We use our own and third-party cookies to analyze website usage and show you advertisements related to your preferences based on a profile created from your browsing habits (e.g., pages visited). More information. Do you accept cookies?