Spain Urban Spain Urban Alicante Urban La Villajoyosa / Vila Joiosa Terreno en El Secanet - Hacienda del Sol

Terreno en El Secanet - Hacienda del Sol

Alicante, La Villajoyosa / Vila Joiosa, El Secanet - Hacienda del Sol, El Secanet - Hacienda del Sol
153 000 €
Leave review
Urban Property type
163 m² Land area
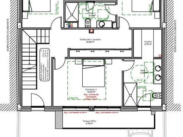
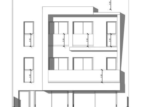
Ubicada en una zona consolidada y rodeada de servicios esenciales: centro de salud, colegios, mercado, farmacias y supermercados. Toda la infraestructura de la ciudad está a solo unos pasos, ofreciéndole comodidad y practicidad en su día a día. La parcela cuenta con una superficie de 163 m² y está destinada a uso urbano, con un proyecto aprobado por el Ayuntamiento para la construcción de una vivienda unifamiliar de ensueño. Según el proyecto, la vivienda tendrá una superficie total de 317 m², de los cuales 248 m² son útiles, distribuidos en 3 plantas, con 4 dormitorios, 3 baños y un amplio salón lleno de luz. Además, incluye una terraza perfecta para disfrutar del clima mediterráneo y un espacio privado de estacionamiento. Este terreno es la oportunidad perfecta para construir la casa de sus sueños, adaptada a todas sus necesidades. No deje pasar esta ocasión única de hacer realidad su proyecto de vida en un entorno privilegiado y con todas las comodidades al alcance. ¡Contacte con nosotros y convierta este terreno en su nuevo hogar! [IW].

Property characteristics

Complex information

  • Property type
    Urban

Property data

  • Property type
    Second hand

Surfaces

  • Land area
    163 m²

Facilities

Cultivation:

Fruit Trees

Market price statistics for Terreno en El Secanet - Hacienda del Sol

Map

Alicante, La Villajoyosa / Vila Joiosa, El Secanet - Hacienda del Sol, El Secanet - Hacienda del Sol Going to this location!
Leave a review about Terreno en El Secanet - Hacienda del Sol
0
0 reviews
1
0% (0)
2
0% (0)
3
0% (0)
4
0% (0)
5
0% (0)
MÓNICA HOUSES Mónica
153 000 €
Contact advertiser

For more information contact the platform

REF: 178254

Reviews about Terreno en El Secanet - Hacienda del Sol
Loading...

No reviews have been left for this object yet

Nearest properties

Explore nearby properties we've discovered in close proximity to this location

Terreno en venta en calle Beniarres

Alicante, Finestrat, Cala de Finestrat, Calle Beniarres
400 000 €

Solar en venta situado en el Sector 27 de Finestrat, Alicante. La parcela posee...

0
0 reviews

Terreno en venta en calle Rei Jaume I

Alicante, Finestrat, Cala de Finestrat, Calle Rei Jaume I
1 000 100 €

Solar en venta situado en el Sector 27 de Finestrat, Alicante. La parcela posee...

0
0 reviews

Terreno en venta en calle Sella

Alicante, Finestrat, Cala de Finestrat, Calle Sella
1 450 000 €

Solar en venta con una superficie de 18620 m² en la localidad de Finestrat, en l...

0
0 reviews

Terreno en venta en calle Jaime Soler Urriós

Alicante, La Villajoyosa / Vila Joiosa, Urban center, Calle Jaime Soler Urriós
147 000 €

Suelo en venta en C/ Jaime Soler Urrios. Suelo Urbano de uso residencial con edi...

0
0 reviews

Terreno en venta en calle Jaime Soler Urriós

Alicante, La Villajoyosa / Vila Joiosa, Urban center, Calle Jaime Soler Urriós
134 000 €

Suelo urbanizable sectorizado de uso residencial y comercial situado en Villajoy...

0
0 reviews

Terreno en venta en calle Jaime Soler Urriós

Alicante, La Villajoyosa / Vila Joiosa, Urban center, Calle Jaime Soler Urriós
1 190 000 €

Terreno urbano situado en PP26 Casino Parcela A4-1, en la localidad de Villajoyo...

0
0 reviews

Terreno en venta en Urbanizacion Charco

Alicante, La Villajoyosa / Vila Joiosa, Poble Nou - Montiboli, Urbanizacion Charco
118 000 €

Suelo - Terreno urbanizable ubicado en la Urbanización Montíboli de Villajoyosa...

0
0 reviews

Terreno en avenida Joan Carles i

Alicante, La Villajoyosa / Vila Joiosa, Urban center, Avenida Joan Carles I
3 023 000 €

¡OPORTUNIDAD LIBRE DE COMISIÓN! Parcela de terreno con una superficie de 20465 m...

0
0 reviews

Terreno en Playa de Poniente

Alicante, Benidorm, Poniente Beach, Playa de Poniente
1 000 000 €

Terreno de unos 1272 m2 para construir con un proyecto del edificio situado en e...

0
0 reviews
Call

We use our own and third-party cookies to analyze website usage and show you advertisements related to your preferences based on a profile created from your browsing habits (e.g., pages visited). More information. Do you accept cookies?