Sale of apartment in Calle Cinta, 61, Orihuela

Alicante, Orihuela, Orihuela Costa, Calle Cinta, 61
179 500 €
3 452 € / m2
Leave review
Flats Property type
52 m² built square meters
1 Bathrooms
2 Bedrooms
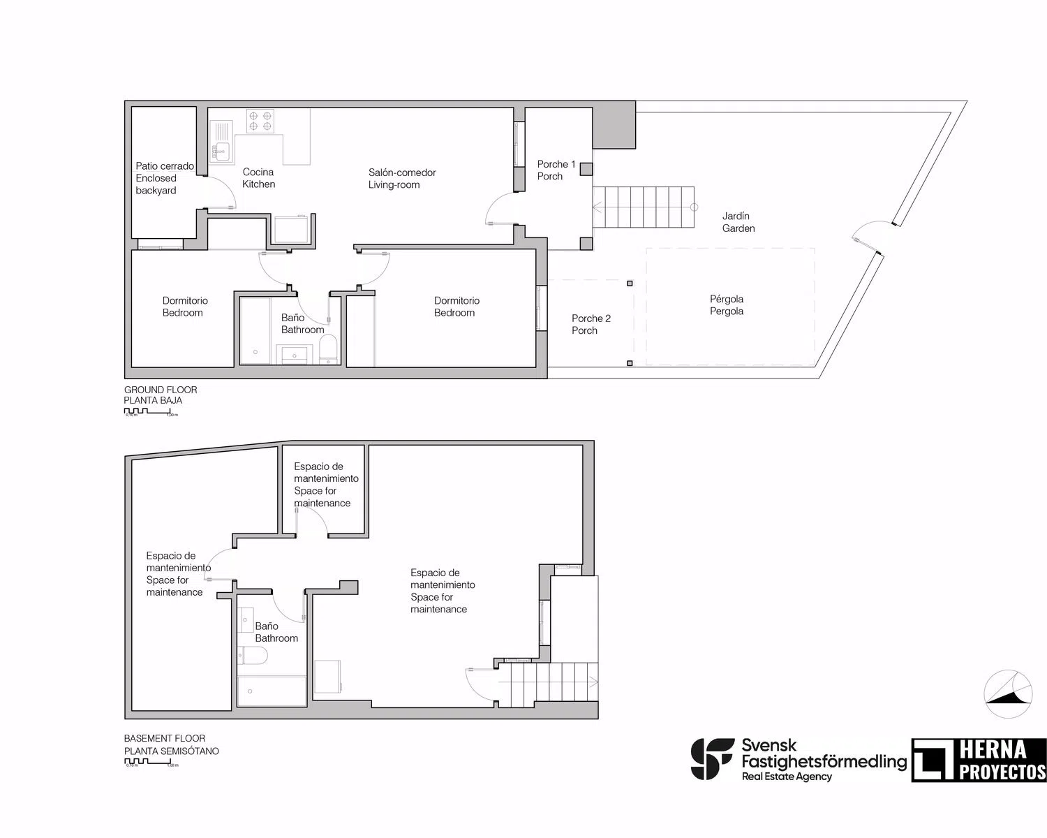
Bienvenido a una oportunidad única en La Zenia, Torrevieja: un apartamento en planta baja con una gran parcela esquinera que ofrece comodidad y conveniencia. Este alojamiento es perfecto para aquellos que buscan una casa de vacaciones en España o un encantador alojamiento durante todo el año. La piscina comunitaria en el lugar le invita a refrescarse en los días calurosos, y la ubicación es inmejorable, con proximidad a todo lo que pueda desear: tiendas, restaurantes, pistas de pádel y golf. A menos de 2 kilómetros se puede llegar a la hermosa costa y sus playas. El apartamento está cuidadosamente planificado con un total de 5 habitaciones, incluyendo un sótano amueblado que ofrece dos dormitorios, una cocina y un baño. Hay espacio para toda la familia o para recibir invitados en un ambiente acogedor. Con este apartamento, usted obtiene no solo un hogar, sino un estilo de vida donde cada día es una aventura. Explore los campos de golf cercanos o dé un corto paseo a la vibrante vida local. Impuesto sobre bienes inmuebles (IBI): 140 euros/año Impuesto de comunidad (Comunidad): 250 euros/año Contáctenos para más información o para reservar una visita. Número de propiedad: 419277 Una cálida bienvenida a Svensk Fastighetsförmedling en Torrevieja.

Property characteristics

Complex information

  • Property type
    Flats

Property data

  • Bedrooms
    2
  • Bathrooms
    1
  • built square meters
    52 m²
  • Property type
    Second hand

Facilities

Housing Amenities:

Air conditioning
Terrace

In building:

Swimming Pool

Plans

Market price statistics for Piso en calle Cinta, 61

299 758 € (2 992 €/m2)
Average price of primary Flats in city Orihuela
220 732 € (2 576 €/m2)
Average price of secondary Flats in city Orihuela
234 154 € (3 135 €/m2)
Average price of primary Flats in district Orihuela Costa
235 346 € (2 854 €/m2)
Average price of secondary Flats in district Orihuela Costa

Map

Alicante, Orihuela, Orihuela Costa, Calle Cinta, 61 Going to this location!
Leave a review about Piso en calle Cinta, 61
0
0 reviews
1
0% (0)
2
0% (0)
3
0% (0)
4
0% (0)
5
0% (0)
Svensk Fastighetsförmedling, Svensk Fast
179 500 €
from 3 452 € / m2
Contact advertiser

For more information contact the platform

REF: 173258

Reviews about Piso en calle Cinta, 61
Loading...

No reviews have been left for this object yet

Nearest properties

Explore nearby properties we've discovered in close proximity to this location

Apartamentos en Venta en Calle Pleamar, 22, Torrevieja

Alicante, Torrevieja, The Acequión - The Shipwrecked, Calle Pleamar, 22
393 000 €

Un sueño, el mar, tu hogar Ocean Dream by TM se encuentra en la privilegiada zon...

0
0 reviews

Apartamentos en Venta en Calle Pleamar, 22, Torrevieja

Alicante, Torrevieja, The Acequión - The Shipwrecked, Calle Pleamar, 22
246 000 €

Un sueño, el mar, tu hogar Ocean Dream by TM se encuentra en la privilegiada zon...

0
0 reviews

Apartamentos en Venta en Calle Pleamar, 22, Torrevieja

Alicante, Torrevieja, The Acequión - The Shipwrecked, Calle Pleamar, 22
336 000 €

Un sueño, el mar, tu hogar Ocean Dream by TM se encuentra en la privilegiada zon...

0
0 reviews

Apartamentos en Venta en Calle Pleamar, 22, Torrevieja

Alicante, Torrevieja, The Acequión - The Shipwrecked, Calle Pleamar, 22
260 000 €

Un sueño, el mar, tu hogar Ocean Dream by TM se encuentra en la privilegiada zon...

0
0 reviews

Apartamentos en Venta en Calle Pleamar, 22, Torrevieja

Alicante, Torrevieja, The Acequión - The Shipwrecked, Calle Pleamar, 22
407 000 €

Un sueño, el mar, tu hogar Ocean Dream by TM se encuentra en la privilegiada zon...

0
0 reviews

Apartamentos en Venta en Calle Pleamar, 22, Torrevieja

Alicante, Torrevieja, The Acequión - The Shipwrecked, Calle Pleamar, 22
310 000 €

Un sueño, el mar, tu hogar Ocean Dream by TM se encuentra en la privilegiada zon...

0
0 reviews

Apartamentos en Venta en Calle Pleamar, 22, Torrevieja

Alicante, Torrevieja, The Acequión - The Shipwrecked, Calle Pleamar, 22
303 000 €

Un sueño, el mar, tu hogar Ocean Dream by TM se encuentra en la privilegiada zon...

0
0 reviews

Apartamentos en Venta en Calle Pleamar, 22, Torrevieja

Alicante, Torrevieja, The Acequión - The Shipwrecked, Calle Pleamar, 22
280 000 €

Un sueño, el mar, tu hogar Ocean Dream by TM se encuentra en la privilegiada zon...

0
0 reviews

Apartamentos en Venta en Calle Pleamar, 22, Torrevieja

Alicante, Torrevieja, The Acequión - The Shipwrecked, Calle Pleamar, 22
293 000 €

Un sueño, el mar, tu hogar Ocean Dream by TM se encuentra en la privilegiada zon...

0
0 reviews

We use our own and third-party cookies to analyze website usage and show you advertisements related to your preferences based on a profile created from your browsing habits (e.g., pages visited). More information. Do you accept cookies?