Sale of independent chalet in Ciudad Quesada, Rojales

Alicante, Rojales, Quesada City, Ciudad Quesada
500 000 €
3 846 € / m2
Leave review
Detached chalet Property type
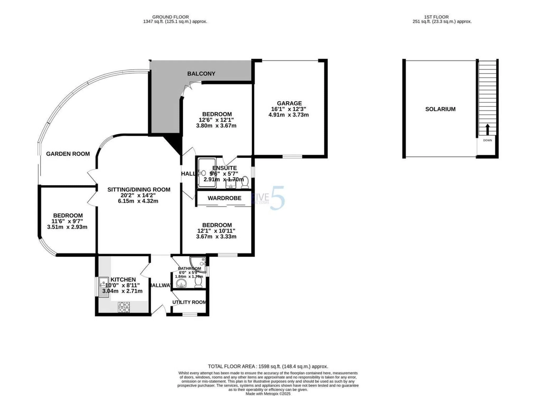
130 m² built square meters
870 m² Land area
2 Bathrooms
3 Bedrooms
Included in the price Garage
Good condition Property status
¡Nos complace presentar esta villa independiente de 3 dormitorios bellamente renovada con piscina privada y garaje, cerca de la calle principal de Quesada! Ubicada en una generosa parcela de 870 m² orientada al sur, esta impresionante villa independiente de 3 dormitorios y 2 baños ofrece el equilibrio perfecto entre comodidad, privacidad y ubicación, a pocos pasos de la vibrante calle principal de Quesada. Recientemente renovada por los propietarios actuales, la propiedad cuenta con un nuevo enlucido exterior, una elegante cocina moderna, interiores actualizados y numerosos extras en todas partes. En el corazón del espacio al aire libre hay una piscina privada, complementada con una cocina al aire libre, ideal para entretenerse bajo el sol mediterráneo. La entrada conduce a través de una terraza bellamente cerrada con cortinas de cristal, que ofrece uso durante todo el año y vistas tranquilas sobre la piscina. En el interior, la villa cuenta con un luminoso y espacioso salón-comedor con estufa de leña, perfectamente conectado a la cocina contemporánea con lavadero oposite. Un moderno cuarto de baño familiar sirve a las 2 habitaciones, y el dormitorio principal cuenta con un baño privado y una terraza privada. Mientras que las áreas de jardín adicionales envuelven la casa, mostrando árboles maduros y lugares para sentarse con sombra, esto conduce al garaje privado y al camino de entrada, con escaleras que conducen al solárium. Con un tamaño de construcción de 130m² y renovaciones cuidadosas en todas partes, esta propiedad está lista para entrar a vivir, perfecta para vivir permanentemente, una escapada de vacaciones o una inversión inteligente en uno de los lugares más deseables de la zona. 5 Real Estate es la agencia inmobiliaria internacional de servicio completo y tarifa fija de más rápido crecimiento en España, con numerosas oficinas en el norte y sur de la Costa Blanca, así como en la región de Murcia. Estamos comprometidos a brindar un servicio transparente y de primera clase a todos nuestros clientes, ya sean compradores o vendedores. Desde el momento en que se ponga en contacto con nosotros por primera vez, se dará cuenta de la diferencia que ofrecemos y promovemos como estándar. Puede estar seguro de que está tratando con profesionales eficientes y confiables con muchos años de experiencia en bienes raíces españoles. En 5 Real Estate, solo vendemos propiedades que están listadas directamente con nosotros, lo que significa que conocemos personalmente a cada uno de los vendedores, sus hogares y las áreas en las que se encuentran. Dada nuestra amplia cartera de propiedades listadas directamente, estamos seguros de que podemos encontrar la propiedad adecuada para satisfacer sus necesidades. Por lo tanto, haga una consulta hoy y descubra por qué somos tan diferentes y por qué nos estamos convirtiendo en el agente elegido tanto por compradores como por vendedores.

Property characteristics

Complex information

  • Property type
    Detached chalet

Project information / Work status

  • Property status
    Good condition

Property data

  • Garage
    Included in the price
  • Bedrooms
    3
  • Bathrooms
    2
  • built square meters
    130 m²
  • Property type
    Second hand

Surfaces

  • Land area
    870 m²

Base

Energy certification

  • Energy certificate status
    Not indicated

Facilities

Housing Amenities:

Air conditioning
Storage room
Terrace

In building:

Garden
Private parking

State:

Good condition

Market price statistics for Chalet en Ciudad Quesada

Map

Alicante, Rojales, Quesada City, Ciudad Quesada Going to this location!
Leave a review about Chalet en Ciudad Quesada
0
0 reviews
1
0% (0)
2
0% (0)
3
0% (0)
4
0% (0)
5
0% (0)
5 Real Estate
500 000 €
from 3 846 € / m2
Contact advertiser

For more information contact the platform

REF: 441124

Reviews about Chalet en Ciudad Quesada
Loading...

No reviews have been left for this object yet

Nearest properties

Explore nearby properties we've discovered in close proximity to this location

Independent chalet for sale in a charming location, offering a serene and private living experience.

Alicante, Los Montesinos
399 900 €

This villa is nestled in a well-known residential area, characterized by its mod...

0
0 reviews

Independent chalet for sale in a picturesque area of Los Montesinos. This charming property offers a unique opportunity to enjoy a tranquil lifestyle surrounded by nature.

Alicante, Los Montesinos
419 900 €

This exceptional residential villa is situated in a well-known urbanization, boa...

0
0 reviews

Stylish independent chalet for sale in a serene location, perfect for those seeking a peaceful retreat surrounded by natural beauty.

Alicante, Los Montesinos
389 900 €

Situated in a well-known residential area, this modern single-story villa offers...

0
0 reviews

Independent chalet for sale in a picturesque area, perfect for those seeking tranquility and natural beauty.

Alicante, Los Montesinos
439 900 €

This stunning villa is located in a well-known residential area, offering a mode...

0
0 reviews
Call

We use our own and third-party cookies to analyze website usage and show you advertisements related to your preferences based on a profile created from your browsing habits (e.g., pages visited). More information. Do you accept cookies?