Spain Urban Spain Urban Alicante Urban San Fulgencio Terreno en calle Pío Xii, 13

Terreno en calle Pío Xii, 13

Alicante, San Fulgencio, Calle Pío XII, 13
31 000 €
Leave review
Urban Property type
63 m² Land area
Electrical Heating
Yes Water supply
2 Buildable plots
63 Buildability
Urban access Access type
Yes Electricity supply
Residential Use of lot
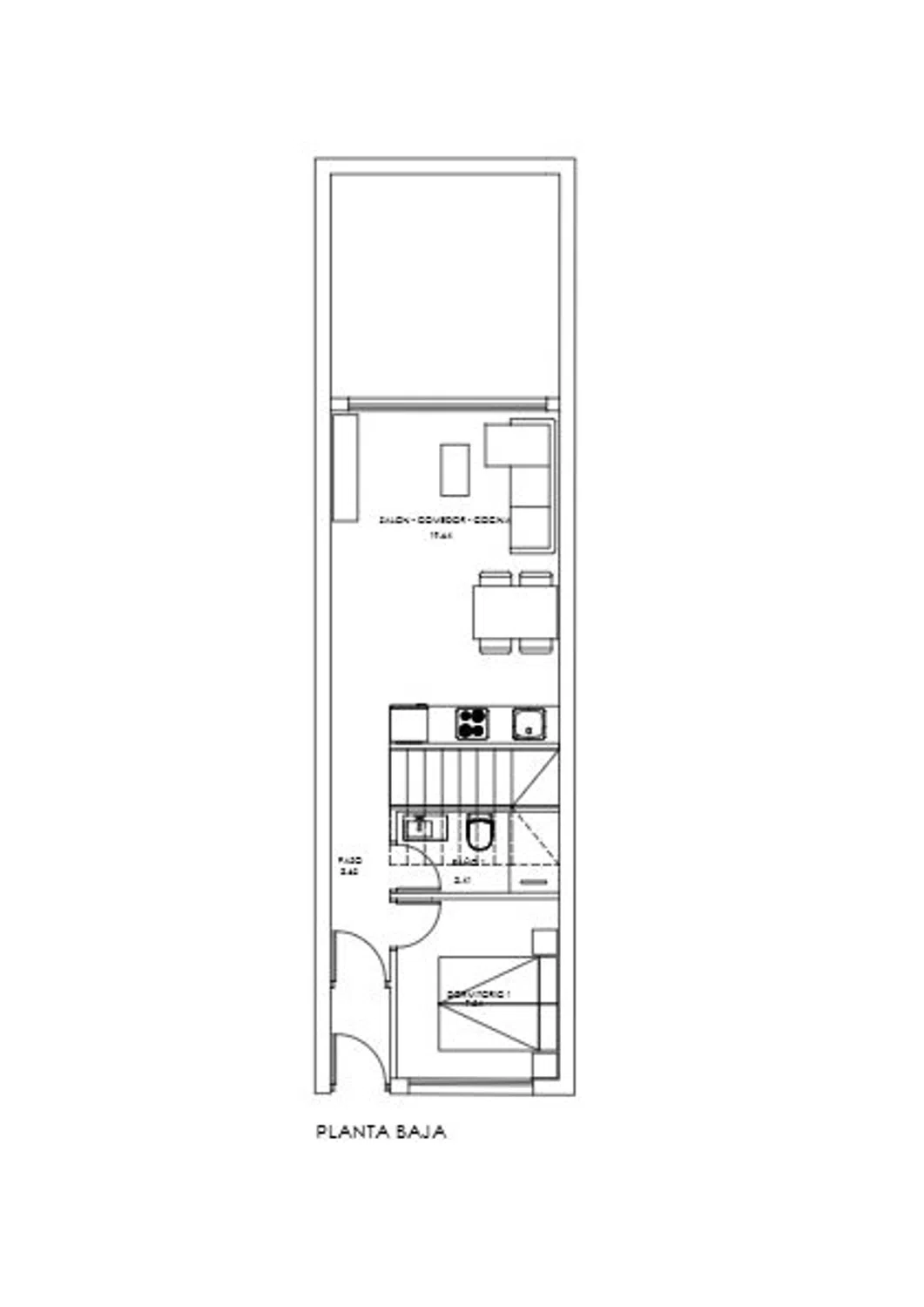
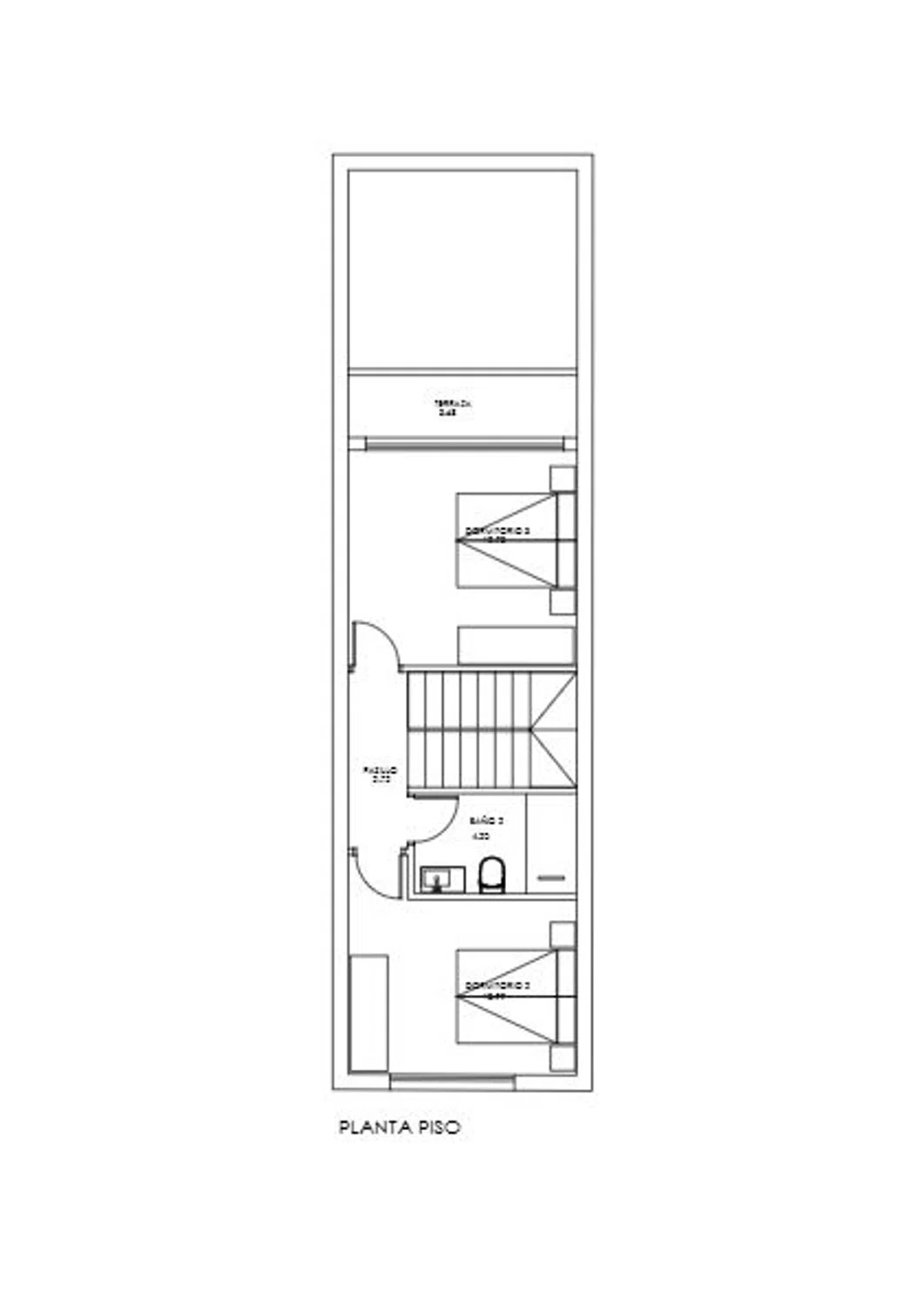
Solar urbano en el centro de San Fulgencio – 63 m² para construir la casa de tus sueños Se vende solar urbano de 63 m² en el centro de San Fulgencio, en una zona tranquila y bien comunicada, con todos los servicios esenciales a pocos minutos a pie: tiendas, bares, centro médico, colegios y transporte público. El terreno cuenta con orientación levante, ideal para disfrutar de buena luz natural durante gran parte del día. Se trata de una parcela urbanizable con posibilidad de construir una vivienda unifamiliar de hasta dos alturas. Es posible proyectar una casa de 2 o 3 habitaciones, con diseño personalizado, distribución funcional y adaptada a tus gustos y necesidades. Ideal tanto para residencia habitual como para inversión. Incluye certificado de edificabilidad y se entregan propuestas de encajes arquitectónicos, lo que facilita el inicio del proyecto con seguridad jurídica y técnica. Características destacadas: Superficie: 63 m² Orientación: Este (levante) Uso permitido: Residencial unifamiliar Altura máxima: Planta baja + 1 Certificado de edificabilidad incluido Propuestas de encaje disponibles Una oportunidad única para construir desde cero una vivienda a tu estilo, en una ubicación inmejorable. ¡Contacta para más información! *El precio no incluye el pago de impuestos de transmisiones patrimoniales, los gastos notariales e inscripción en el registro de la propiedad. *El presente documento tiene carácter meramente informativo, orientativo y no vinculante por lo que no supone información contractual alguna, siendo su uso estrictamente comercial.

Property characteristics

Complex information

  • Property type
    Urban

Quality Report

  • Heating
    Electrical

Property data

  • Property type
    Second hand

Surfaces

  • Land area
    63 m²

Base

  • Minimum sale plot
    63 m²
  • Possibility of building
    Single family home (houses)
  • Water supply
    Yes
  • Urban land
    Consolidated (Land)
  • Buildable plots
    2
  • Buildability
    63
  • Access type
    Urban access
  • Electricity supply
    Yes
  • Use of lot
    Residential

Facilities

Supply:

With Water
Sewage System

Additional Features:

Building plot
Public lighting
Aceras

Market price statistics for Terreno en calle Pío Xii, 13

Map

Alicante, San Fulgencio, Calle Pío XII, 13 Going to this location!
Leave a review about Terreno en calle Pío Xii, 13
0
0 reviews
1
0% (0)
2
0% (0)
3
0% (0)
4
0% (0)
5
0% (0)
RE/MAX Glorieta
31 000 €
Contact advertiser

For more information contact the platform

REF: 365926

Reviews about Terreno en calle Pío Xii, 13
Loading...

No reviews have been left for this object yet

Nearest properties

Explore nearby properties we've discovered in close proximity to this location

Terreno en venta en Zona Pueblo

Alicante, Guardamar del Segura, Pueblo Zone
240 000 €

Gran oportunidad para construir un edificio o una casa unifamiliar con garaje y...

0
0 reviews

Terreno en Zona Pueblo

Alicante, Guardamar del Segura, Pueblo Zone, Zona Pueblo
45 000 €

Se vende Solar. 44 m2 Posibilidad de hacer 3 alturas + atico. Ideal para proyect...

0
0 reviews

Terreno en calle Nueve de Octubre, 29

Alicante, Almoradí
150 000 €

Parcela edificable en casco urbano de Almoradí. 339 metros cuadrados. Abstenerse...

0
0 reviews

Terreno en Lugar Sector 3, 3 s

Alicante, Dolores
94 500 €

Oportunidad única para construir la casa de tus sueños o desarrollar tu proyecto...

0
0 reviews

Terreno en Puebla de Rocamora, 1 a

Alicante, Daya Nueva
62 000 €

Terreno en Daya Nueva, en Puebla de Rocamora. Totalmente urbano, se puede edific...

0
0 reviews

Terreno en N-332a

Alicante, Guardamar del Segura, Buenavista, N-332a
85 300 €

Suelos rústicos en venta en Guardamar del Segura, Alicante.Parcelas con unas sup...

0
0 reviews

Terreno en calle Concepción Mora Caravaca, 6

Alicante, Formentera del Segura
95 000 €

Solar urbano situado frente a un colegio y una guardería, zona muy tranquila y c...

0
0 reviews

Terreno en San Fulgencio

Alicante, San Fulgencio
5 000 €

Nuda Propiedad de Suelo rústico situado en partida de los Martinez, número 2, de...

0
0 reviews

Terreno en calle la Bodega, 39

Alicante, Daya Nueva
36 750 €

Solar Urbano en Venta en Daya Nueva, Alicante – Excelente Ubicación Superficie T...

0
0 reviews
Call

We use our own and third-party cookies to analyze website usage and show you advertisements related to your preferences based on a profile created from your browsing habits (e.g., pages visited). More information. Do you accept cookies?