New construction Casa independiente in Teulada

Alicante, Teulada, Teulada
1 795 000 €
5 188 € / m2
Leave review
346 m² built square meters
4 Bathrooms
4 Bedrooms
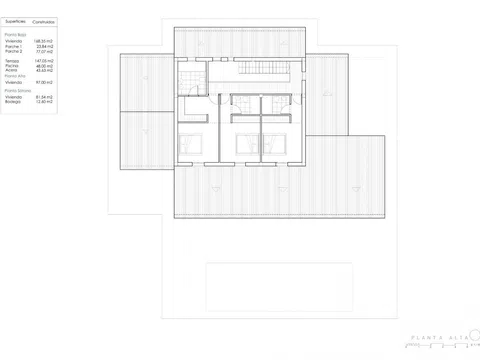
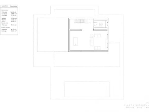
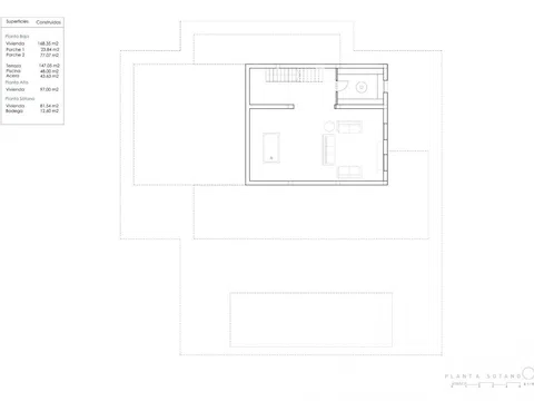
Magnífica villa de 4 dormitorios con piscina privada a la venta en Teulada Esta vivienda de nueva construcción con vitas a la montaña consta de 4 dormitorios. En la planta baja encontramos un amplio salón-comedor y cocina abierta, dormitorio principal con armario empotrado y baño, terraza delantera con acceso a la piscina. En la primera planta hay 3 dormitorios con armarios empotrados, 3 baños en suite. Además la vivienda cuenta con un sótano de 81m2 con bodega. La villa se construirá con materiales de alta calidad. La cocina será elegida por el cliente, armarios de cocina, encimera y electrodomésticos. Aire acondicionado con sistema de climatización (condensado) en los salones y dormitorios. Marca Mitsubishi. La piscina se construirá con una ducha exterior ducha exterior (conexión de agua caliente/fría). Puerta de entrada automática para los coches con mando a distancia y puerta peatonal automática. Jardín a elegir por el cliente. Moraira es un pequeño pueblo con buenos restaurantes, bares y muchos supermercados alrededor. Hay una playa muy agradable justo al lado del pueblo que es ideal para las familias. El paseo marítimo ofrece unas vistas tremendas del Peñón de Ifach al otro lado de la bahía de Calpe. El camino de la costa de llegar allí es bien vale la pena hacer con algunas vistas espectaculares. Moraira situado a 1 hora 15 minutos al norte de la A7 desde el aeropuerto de Alicante es bastante fácil de llegar. Es aproximadamente la misma distancia o un poco menos al sur del aeropuerto de Valencia.

Featured promotions in Spain

10 units

Nature Views 2

Alicante, Torrevieja, Los Balcones - The Heights of Eden, Denia s/n
310 000 € - 379 000 €
1 units

Hotel en venta en Benidorm centro

Alicante, Benidorm, Poniente Beach
2 250 000 € - 2 250 000 €
32 units

Residencial Los Balcones De Calpe

Alicante, Calpe, Calpe Town, Avenida de Madrid, 1
299 000 € - 892 125 €
7 units

Nature Views

Alicante, Torrevieja, Lago Jardín II, Avenida Denia s/n
305 000 € - 330 000 €
5 units

ALONIS VILLAS

Alicante, La Villajoyosa / Vila Joiosa, Torres Beach, Partida Torres s/n
675 000 € - 775 000 €
2 units

Residencial Royal Beach

Alicante, Guardamar del Segura, town, Miguel Hernández 102
339 500 € - 345 500 €
8 units

Royal Star

Alicante, Guardamar del Segura
224 500 € - 264 500 €

Property characteristics

Complex information

Property data

  • Type of kitchen
    Open kitchen
  • Bedrooms
    4
  • Bathrooms
    4
  • built square meters
    346 m²
  • Property type
    Second hand

Facilities

Housing Amenities:

Terrace

In building:

Swimming Pool
Garden
Private parking

Plans

Market price statistics for Casa independiente

Map

Alicante, Teulada, Teulada Going to this location!
Leave a review about Casa independiente
0
0 reviews
1
0% (0)
2
0% (0)
3
0% (0)
4
0% (0)
5
0% (0)
sundream properties
1 795 000 €
from 5 188 € / m2
Contact advertiser

For more information contact the platform

REF: 202977

Reviews about Casa independiente
Loading...

No reviews have been left for this object yet

Nearest properties

Explore nearby properties we've discovered in close proximity to this location

Pareados en Venta en Calle Enchinent s/n, Calpe

Alicante, Calpe, Cometa-Carrió, Calle Enchinent s/n
445 000 €

17 chalets adosados y pareados en urbanización privada en Calpe, a tan sólo 1 km...

0
0 reviews

Adosados en Venta en Calle Enchinent s/n, Calpe

Alicante, Calpe, Cometa-Carrió, Calle Enchinent s/n
435 000 €

17 chalets adosados y pareados en urbanización privada en Calpe, a tan sólo 1 km...

0
0 reviews

Pareados en Venta en Calle Enchinent s/n, Calpe

Alicante, Calpe, Cometa-Carrió, Calle Enchinent s/n
475 000 €

17 chalets adosados y pareados en urbanización privada en Calpe, a tan sólo 1 km...

0
0 reviews

Pareados en Venta en Calle Enchinent s/n, Calpe

Alicante, Calpe, Cometa-Carrió, Calle Enchinent s/n
475 000 €

17 chalets adosados y pareados en urbanización privada en Calpe, a tan sólo 1 km...

0
0 reviews

Adosados en Venta en Calle Enchinent s/n, Calpe

Alicante, Calpe, Cometa-Carrió, Calle Enchinent s/n
465 000 €

17 chalets adosados y pareados en urbanización privada en Calpe, a tan sólo 1 km...

0
0 reviews

Adosados en Venta en Calle Enchinent s/n, Calpe

Alicante, Calpe, Cometa-Carrió, Calle Enchinent s/n
435 000 €

17 chalets adosados y pareados en urbanización privada en Calpe, a tan sólo 1 km...

0
0 reviews

Pareados en Venta en Calle Enchinent s/n, Calpe

Alicante, Calpe, Cometa-Carrió, Calle Enchinent s/n
470 000 €

17 chalets adosados y pareados en urbanización privada en Calpe, a tan sólo 1 km...

0
0 reviews

Pareados en Venta en Calle Enchinent s/n, Calpe

Alicante, Calpe, Cometa-Carrió, Calle Enchinent s/n
675 000 €

17 chalets adosados y pareados en urbanización privada en Calpe, a tan sólo 1 km...

0
0 reviews

Chalet independiente en Venta en Calle Los molinos, 98, Benitachell

Alicante, Benitachell, Les Fonts, Calle Los molinos, 98
895 000 €

Actualmente en construcción una nueva villa exclusiva de 4 dormitorios con una p...

0
0 reviews
Call

We use our own and third-party cookies to analyze website usage and show you advertisements related to your preferences based on a profile created from your browsing habits (e.g., pages visited). More information. Do you accept cookies?