Spain Houses Spain Houses Asturias Houses Cangas de Onís Casa rural en Corao Castillo s/n Calleprincipalsn

New construction Casa rural en Corao Castillo s/n Calleprincipalsn in Cangas de Onís

Asturias, Cangas de Onís, Corao Castillo s/n Calleprincipalsn
180 000 €
500 € / m2
Leave review
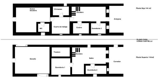
360 m² built square meters
1 Bathrooms
4 Bedrooms
To be renovated Property status
Se vende casona tradicional asturiana de piedra con corredor de madera y hórreo en finca de 2140 metros cuadrados, en el centro del pueblo de Corao-Castiellu. Cangas de Onís. Para restaurar según necesidades. Cubierta nueva del año 2019. Muros arreglados y parte de la carpintería de ventanas nuevas. Construcción fechada en 1794. Buen estado de conservación. Hórreo restaurado de 30 m2. (24 x 5,5) Ideal para vivienda y negocio. Dimensiones: Total longitud casa 24 metros x 7metros - 5,50 de altura. 160 m2 de planta. Dos plantas. La cuadra está anexada a la vivienda. Finca rodeada de muro de piedra. Anexas a la casa dos parcelas urbanizables de 600 m cada una que la normativa permite construir (600 metros para cada construcción) Hórreo restaurado de 30 m2. (24 x 5,5). SITUACIÓN: Ubicada en Corao-Castiello (Cangas de Onís – Asturias) Una aldea de pocos habitantes con varias casas del siglo XVIII blasonadas, que linda con el Parque Nacional de Picos de Europa. Situada en un alto, aislado de carreteras y tranquilo, que mira a las cumbres de Peña Santa y dista 7 kilómetros del Santuario de Covadonga. Situada a 500 metros del pueblo de Corao (70 habitantes) y a 7 km de la capital del Concejo (Cangas de Onís, 3.530 habitantes, dotado de todo tipo de servicios, instituto, restaurantes de calidad, tiendas y su famoso mercado). Descripción arquitectónica: Más que la casona tradicional asturiana que es más cuadrada, es de tipología típica de Cantabria, según los expertos, construida entre dos muros de carga laterales, generalmente ciegos, que se llaman cortafuegos, y que sobresalen en la fachadas, sobre todo en la sur, cerrando lateralmente la solana en planta primera, y un pequeño porche en planta baja. Corredor de madera muy bien conservado en la fachada principal. Fue la Casa del Cura.

Featured promotions in Spain

10 units

Nature Views 2

Alicante, Torrevieja, Los Balcones - The Heights of Eden, Denia s/n
310 000 € - 379 000 €
1 units

Hotel en venta en Benidorm centro

Alicante, Benidorm, Poniente Beach
2 250 000 € - 2 250 000 €
32 units

Residencial Los Balcones De Calpe

Alicante, Calpe, Calpe Town, Avenida de Madrid, 1
299 000 € - 892 125 €
7 units

Nature Views

Alicante, Torrevieja, Lago Jardín II, Avenida Denia s/n
305 000 € - 330 000 €
5 units

ALONIS VILLAS

Alicante, La Villajoyosa / Vila Joiosa, Torres Beach, Partida Torres s/n
675 000 € - 775 000 €
1 units

Residencial Royal Beach

Alicante, Guardamar del Segura, town, Miguel Hernández 102
349 500 € - 349 500 €
8 units

Royal Star

Alicante, Guardamar del Segura
224 500 € - 264 500 €

Property characteristics

Complex information

Project information / Work status

  • Property status
    To be renovated

Property data

  • Bedrooms
    4
  • Bathrooms
    1
  • built square meters
    360 m²
  • Property type
    Second hand

Facilities

State:

To be remodeled

Market price statistics for Casa rural en Corao Castillo s/n Calleprincipalsn

Map

Asturias, Cangas de Onís, Corao Castillo s/n Calleprincipalsn Going to this location!
Leave a review about Casa rural en Corao Castillo s/n Calleprincipalsn
0
0 reviews
1
0% (0)
2
0% (0)
3
0% (0)
4
0% (0)
5
0% (0)
180 000 €
from 500 € / m2
Contact advertiser

For more information contact the platform

REF: 377553

Reviews about Casa rural en Corao Castillo s/n Calleprincipalsn
Loading...

No reviews have been left for this object yet

Nearest properties

Explore nearby properties we've discovered in close proximity to this location

Casa independiente en calle Mestas de Con, 30

Asturias, Cangas de Onís, Calle Mestas de Con, 30
320 000 €

Si buscas tranquilidad, aquí la tendrás. Podrás vivir en un barrio del pueblo co...

0
0 reviews

Casa independiente

Asturias, Cangas de Onís, Cangas de Onís
450 000 €

Venta de vivienda unifamiliar en perfecto estado, situada en pueblo con servicio...

0
0 reviews

Finca rústica en Lugar Covadonga s/n

Asturias, Cangas de Onís, Lugar Covadonga s/n
56 000 €

Finca a rustica a prado y bravio que mide 22.000 m con una cuadra y cabaña encla...

0
0 reviews

Casa independiente en Lugar de Parres, San Juan, 17

Asturias, Parres, Lugar de Parres, San Juan, 17
89 500 €

Se vende finca urbana a 1,2 kms de Cangas de Onis. La finca cuenta con una caba...

0
0 reviews

Casa independiente en Gamonedo de Cangas de Onis s/n

Asturias, Cangas de Onís, Gamonedo de Cangas de Onis s/n
155 000 €

Tiene delante de sus ojos la propiedad que estaba buscando casa totalmente rehab...

0
0 reviews

Casa independiente en avenida Covadonga, 50

Asturias, Cangas de Onís, Avenida Covadonga, 50
100 000 €

¡Oportunidad única de inversión en el centro de Cangas de Onís! Cangas de Onís e...

0
0 reviews

Casa independiente en Cangas de Onís - Panes

Asturias, Onís, Cangas de Onís - Panes
179 000 €

Inmueble alquilado y sin acceso al interior. Las fotografías del interior pueden...

0
0 reviews

Casa independiente en Lugar San martin de Grazanes, 23, Mestas s/n

Asturias, Cangas de Onís, Lugar San martin de Grazanes, 23, MESTAS s/n
540 000 €

� Oportunidad de Inversión en el Corazón de los Picos de Europa � Vivienda + Neg...

0
0 reviews

Casa independiente en calle Calzada de Ponga, 15

Asturias, Cangas de Onís, Calle Calzada de Ponga, 15
850 000 €

Exclusivo chalet independiente con casita de invitados y amplísimo garaje en ple...

0
0 reviews

We use our own and third-party cookies to analyze website usage and show you advertisements related to your preferences based on a profile created from your browsing habits (e.g., pages visited). More information. Do you accept cookies?