Terreno en avenida de Roma

Barcelona, Badalona, La Morera, Avenida de Roma
325 000 €
Leave review
Urbanizable Property type
117 m² Land area
4 Buildable plots
565 m² Buildability
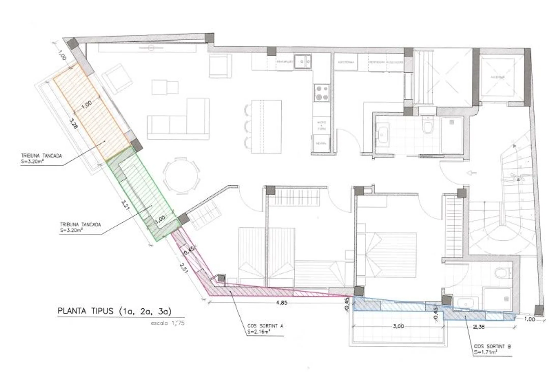
Ref. 2023-0053 FABRA CONSULTORS les presenta este estupendo solar en venta, en una ubicación excelente en una de las mejores zonas de Badalona, el barrio de la Morera, rodeado de todos los servicios: mercados, farmacias, centros médicos, colegios, paradas de autobuses y a muy pocos minutos de la playa, el metro de la L2 Pompeu Fabra y el centro de la ciudad. Consta de una superficie de 117m2, 11m2 de fachada. Dispone de calificación urbanística 13B, por lo que es posible edificar vivienda plurifamiliar de 4 plantas, distribuidas en: planta baja, planta primera, planta segunda, planta tercera tipo dúplex y cubierta con zona comunitaria y piscina. Según ante proyecto podría construirse de la siguiente forma: - PLANTA BAJA con buhardilla - 99m2. Distribuidor, salón comedor cocina en espacio abierto, 2 habitaciones amplias, 2 baños, patio y terraza Buhardilla 57m2 - En habitación, baño y trastero o cuarto polivalente - PLANTA PRIMERA Y SEGUNDA de aprox. 116m2 cada una. Distribuidor, salón comedor cocina en espacio abierto, balcón, cuarto de lavabo y 3 habitaciones, una tipo suite con baño y balcón. - PLANTA TERCERA (DUPLEX)- 116m2 Distribuidor, salón comedor cocina en espacio abierto, balcón, cuarto de lavabo y 3 habitaciones, una tipo suite con baño y balcón. Terraza en cubierta (zona no habitable) con baño - PLANTA CUBIERTA con zona comunitaria y piscina. ¿Interesante? Contáctenos para más información.

Property characteristics

Complex information

  • Property type
    Urbanizable

Property data

  • Property type
    Second hand

Surfaces

  • Land area
    117 m²

Base

  • Minimum sale plot
    117 m²
  • Buildable plots
    4
  • Buildability
    565 m²

Market price statistics for Terreno en avenida de Roma

Map

Barcelona, Badalona, La Morera, Avenida de Roma Going to this location!
Leave a review about Terreno en avenida de Roma
0
0 reviews
1
0% (0)
2
0% (0)
3
0% (0)
4
0% (0)
5
0% (0)
Fabra Consultors
325 000 €
Contact advertiser

For more information contact the platform

REF: 374879

Reviews about Terreno en avenida de Roma
Loading...

No reviews have been left for this object yet

Nearest properties

Explore nearby properties we've discovered in close proximity to this location

Terreno en calle de Joaquim Valls

Barcelona, Barcelona, Nou Barris, Calle de Joaquim Valls
199 500 €

Suelo urbano de 150 m² ubicado en Barcelona. Se trata de un suelo urbano de 150...

0
0 reviews

Terreno en calle de Llerona, 125

Barcelona, Barcelona, Nou Barris, Calle de Llerona, 125
135 000 €

Se vende terreno en calle Llerona 125 Superficie aprox 630metros, edificables 63...

0
0 reviews

Terreno en calle de Llerona, 155

Barcelona, Barcelona, Nou Barris, Calle de Llerona, 155
110 000 €

Oportunidad: Suelo urbanizable de 480m² con Frente de 16mts y 30mts de fondo. En...

0
0 reviews

Terreno en calle de Ripollet, 2

Barcelona, Barcelona, Nou Barris, Calle de Ripollet, 2
50 000 €

Se vende terreno en Torre Baró de 400m2 edificable planta baja más dos plantas....

0
0 reviews

Terreno en cantera, 57

Barcelona, Barcelona, Nou Barris, Cantera, 57
650 000 €

Solar ubicado en el barrio de Roquetas (distrito de Nou Barris en Barcelona) aho...

0
0 reviews

Terreno en calle Joaquim Valls, 137

Barcelona, Barcelona, Nou Barris, Calle Joaquim Valls, 137
185 000 €

SOLAR EDIFICABLE PARA 3 VIVIENDAS -Planta baja dúplex con terraza posterior -2 v...

0
0 reviews

Terreno en calle de Llerona, 35

Barcelona, Barcelona, Nou Barris, Calle de Llerona, 35
125 000 €

Vendemos terreno en Ciudad Meridiana / Torre Baró. Muy buenas vistas y muy bien...

0
0 reviews

Terreno en calle Gran de Sant Andreu

Barcelona, Barcelona, Saint Andrew, Calle Gran de Sant Andreu
400 000 €

¡Terreno edificable en una ubicación inmejorable! Se vende solar urbano edificab...

0
0 reviews

Terreno en calle d'Ausona

Barcelona, Barcelona, Saint Andrew, Calle d'Ausona
212 000 €

SE VENDEN 2 PARCELAS JUNTAS • Situado en la Calle Ausona, en el corazón del Barr...

0
0 reviews

We use our own and third-party cookies to analyze website usage and show you advertisements related to your preferences based on a profile created from your browsing habits (e.g., pages visited). More information. Do you accept cookies?