New construction Encarnació 106 in Barcelona

Barcelona, Barcelona, Gracia, Calle Encarnació, 106
from 360 000 €
3 871 € / m2
Leave review
2025 Year of delivery
72 m² - 154 m² Property surfaces
2 Number of bedrooms
1 - 2 Bathrooms
## Real Estate in Encarnació 106

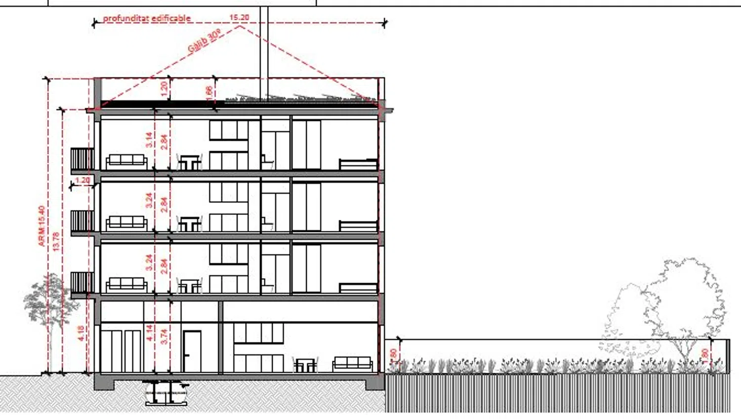
In the heart of Barcelona, Gràcia, a new development is emerging on Calle Encarnació. This project presents a beautifully integrated building with a street-facing façade. Constructed with a ground floor and three additional levels, it combines modern design with practical functionality. The entrance to the residences and a private studio is situated on the ground floor, where the studio enjoys exclusive access to the courtyard. The entrance, accessible from Calle Encarnació, includes essential spaces such as centralized meters, mailboxes, a designated area for bicycle parking, and the vertical circulation core.

The vertical connection within the building is facilitated by a staircase and a functional elevator, ensuring accessibility across all levels, from the ground floor to the rooftop. Each of the three residential floors features a single dwelling per landing, providing privacy and exclusivity to its residents. The rooftop, home to the community staircase enclosure, is divided into two sections: a communal green rooftop featuring extensive vegetation, photovoltaic panels, and thermal compressors that supply hot water using renewable energy.

## Advantages of a New Building Encarnació 106

This building is quite impressive in its sustainability efforts. The rooftop is dedicated both to energy generation and private paved areas for residents. Solar panels are projected to produce approximately 4994 kWh annually, supporting a self-consumption model. The courtyard, measuring 107 m², is a blend of semi-porous surface, herby terrain, and gardens with shrubbery, adding a touch of nature. Incorporating two trees, the core area of this garden complements the environmentally conscious design.

The energy efficiency of the building is highlighted by an A rating for CO2 emissions and a minimum B rating for heating and cooling demands. A rainwater collection system is in place to irrigate the rooftop and courtyard. Inside the apartments, the living areas, kitchens, and rooms boast a minimum height of 2.50m, while bathrooms and circulation spaces maintain a minimum of 2.20m.

Each apartment occupies an entire floor, providing two bedrooms, two bathrooms, a kitchen, and a balcony, along with private access to part of the community rooftop. A ground-floor studio accommodates private use of the rear courtyard. The façade retains the traditional charm of the area with carefully chosen color schemes that blend seamlessly into the surroundings.

## Life in the City Barcelona

Living in this part of Barcelona offers a unique combination of vibrant city life and serene residential community. Gràcia is known for its lively atmosphere, characterized by charming streets, vibrant cultural events, and a sense of community. The location on Calle Encarnació provides easy access to an array of local amenities, including shops, cafes, and public transportation. Whether you're seeking cultural experiences or peaceful living, this location perfectly balances urban convenience with a touch of traditional beauty.

Featured promotions in Spain

10 units

Nature Views 2

Alicante, Torrevieja, Los Balcones - The Heights of Eden, Denia s/n
310 000 € - 379 000 €
1 units

Hotel en venta en Benidorm centro

Alicante, Benidorm, Poniente Beach
2 250 000 € - 2 250 000 €
28 units

Residencial Los Balcones De Calpe

Alicante, Calpe, Calpe Town, Avenida de Madrid, 1
299 000 € - 892 125 €
4 units

Nature Views

Alicante, Torrevieja, Lago Jardín II, Avenida Denia s/n
309 000 € - 330 000 €
5 units

ALONIS VILLAS

Alicante, La Villajoyosa / Vila Joiosa, Torres Beach, Partida Torres s/n
675 000 € - 775 000 €
1 units

Residencial Royal Beach

Alicante, Guardamar del Segura, town, Miguel Hernández 102
349 500 € - 349 500 €
7 units

Royal Star

Alicante, Guardamar del Segura
229 500 € - 269 500 €

Properties in this complex

The information provided about prices, specifications, and details of this promotion is subject to possible variations and changes depending on the source. Therefore, it does not have commercial value in itself but is purely informative and indicative. This website does not market this project or property.

Name
Bedrooms
Bathrooms
Surface square
Floor
Category
Price
1 154 m² Flats 360 000 € Visit
2 2 73 m² 1 Flats 550 000 € Visit
2 2 73 m² 2 Flats 565 000 € Visit
2 2 72 m² 3 Flats 580 000 € Visit
This information has been obtained from public sources and may not be up to date. It does not represent a link with the developer.

Property characteristics

Complex information

  • Number of units
    4
  • Price range
    360 000 € - 580 000 €
  • Number of bedrooms
    2
  • Property surfaces
    72 m² - 154 m²
  • Types of properties
    Flats

Project information / Work status

  • Delivery year
    2025
  • Delivery date
    IV Quarter
  • Promotion format
    Free

Property data

  • Medium square meters
    93 m²
  • Property type
    New construction

Base

Energy certification

  • Energy certificate
    B

Facilities

In building:

Elevator
Green Areas
Garden

Market price statistics for Encarnació 106

513 750 € (5 524 €/m2)
Average price in complex
565 000 € (7 777 €/m2)
Average price of 2-bedroom
1 815 854 € (6 646 €/m2)
Average price of primary Houses in city Barcelona
858 904 € (8 156 €/m2)
Average price of primary Apartments in city Barcelona
1 828 217 € (14 850 €/m2)
Average price of primary Apartments in district Gracia

Map

Barcelona, Barcelona, Gracia, Calle Encarnació, 106 Going to this location!
Leave a review about Encarnació 106
0
0 reviews
1
0% (0)
2
0% (0)
3
0% (0)
4
0% (0)
5
0% (0)
- AFB Grup
360 000 €
from 3 871 € / m2
Contact advertiser

For more information contact the platform

REF: 177261

Reviews about Encarnació 106
Loading...

No reviews have been left for this object yet

Nearest properties

Explore nearby properties we've discovered in close proximity to this location

Brand new construction located on Carrer Vinya 28 in Barcelona.

Barcelona, Barcelona, Horta Guinardó, Calle Vinya , 28
-

Real estate in Carrer Vinya 28 This new development offers an opportunity to ow...

0
0 reviews

Newly constructed residential development located in a prominent area of Barcelona.

Barcelona, Barcelona, Eixample, Calle Villarroel
-

Real Estate in Villarroel Located in the vibrant heart of Barcelona's Eixample...

0
0 reviews

Introducing the newly developed Sagrera Privilege in the heart of Barcelona.

Barcelona, Barcelona, Saint Andrew, Calle Berenguer de Palou, 58
-

Real Estate in Sagrera Privilege Tucked away in the prestigious neighborhood of...

0
0 reviews

New development situated on one of the most prestigious streets in Barcelona.

Barcelona, Barcelona, Eixample
-

Real estate in Passeig de Gràcia In the vibrant area of Eixample, a new resident...

0
0 reviews
8 units

Newly constructed modern lofts available in a dynamic Barcelona district.

Barcelona, Barcelona, Saint Martin, Calle Emilia Coranty, 33
760 000 € - 1 395 000 €

Real estate in Can Ricart Lofts Experience the unique charm of Barcelona with t...

0
0 reviews
3 units

New residential development on Pg. Maragall, 368 in Barcelona.

Barcelona, Barcelona, Nou Barris, Paseo de Maragall, 368
400 000 € - 468 000 €

Real estate in Pg. Maragall, 368 Discover a new real estate project nestled in t...

0
0 reviews

Brand new residential development at Colombia 1-5 in the heart of Barcelona.

Barcelona, Barcelona, Saint Andrew, Calle Colombia s/n
-

Real estate in Residencial Colombia 1-5 Discover a new residential development n...

0
0 reviews

Newly constructed residential property located at Doctor Trueta in the vibrant city of Barcelona.

Barcelona, Barcelona, Saint Martin, Calle Dr. Trueta , 138
-

Real estate in Doctor trueta 138 This modern residential development offers a to...

0
0 reviews
1 units

New residential development in Hospitalet de Llobregat.

Barcelona, Hospitalet de Llobregat, Center, Carre Canigó, 11
410 000 € - 410 000 €

Real estate in Residencial La Bòbila Residencial La Bòbila offers an exceptional...

0
0 reviews

We use our own and third-party cookies to analyze website usage and show you advertisements related to your preferences based on a profile created from your browsing habits (e.g., pages visited). More information. Do you accept cookies?