Spain Houses Spain Houses Barcelona Houses Cerdanyola del Vallès Casa independiente en calle d'Apel·les Mestres, 30

New construction Casa independiente en calle d'Apel·les Mestres, 30 in Cerdanyola del Vallès

Barcelona, Cerdanyola del Vallès, Bellaterra, Calle d'Apel·les Mestres, 30
1 100 000 €
4 681 € / m2
Leave review
235 m² built square meters
4 Bathrooms
4 Bedrooms
Included in the price Garage
New construction Property status
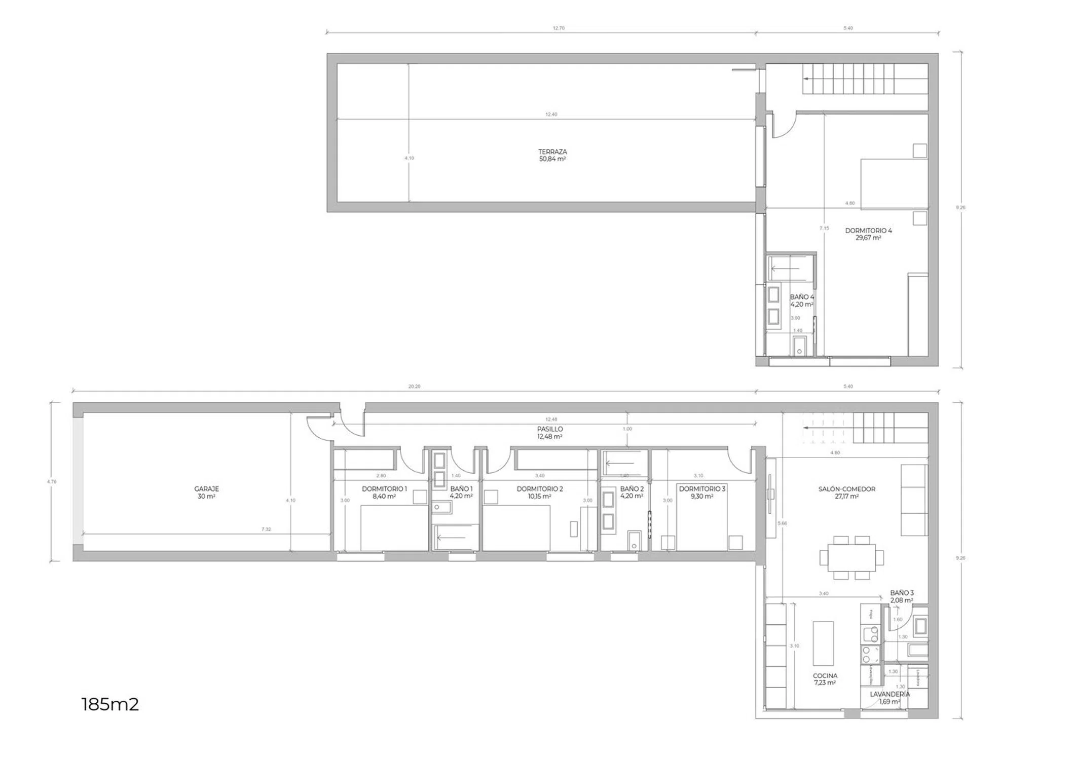
Desde Elysiam Real Estate le presentamos en exclusiva esta promoción con proyecto a medida, ubicada en Calle Apeles Mestres 30, Bellaterra, dentro del término municipal de Cerdanyola del Vallès. El proyecto se desarrolla sobre una parcela urbana de 911 m², situada en la zona alta de Bellaterra, un entorno residencial consolidado, tranquilo y rodeado de naturaleza. La ubicación ofrece un equilibrio perfecto entre privacidad, proximidad a los principales servicios y una excelente conexión con las principales vías y localidades del Vallès y Barcelona. Esta vivienda ha sido concebida bajo criterios de diseño contemporáneo, funcionalidad y eficiencia energética, ofreciendo espacios amplios, luminosos y adaptados a las necesidades de la vida moderna. CARACTERISTICAS: - Superficie total construida: 235 m² - Vivienda: 155 m² - Garaje privado: 30 m² - Terraza principal: 50 m² en la planta superior - Parcela: 911 m² con posibilidad de jardín paisajístico y piscina opcional Distribución en dos plantas: - Planta baja: Amplio salón-comedor con ventanales de suelo a techo y acceso directo al jardín. Cocina independiente de gran tamaño, con opción a diseño abierto. Tres habitaciones, una de ellas tipo suite con baño y vestidor. Tres baños completos, todos con acabados de alta gama. Garaje privado con acceso directo al interior de la vivienda. - Planta superior: Una habitación adicional (ideal como dormitorio principal, despacho o zona de invitados). Un baño completo. Espectacular terraza de 50 m², con vistas despejadas y orientación sur, perfecta para disfrutar del sol y del entorno natural. Orientación: Sur, garantizando iluminación natural durante todo el día. Eficiencia energética: Vivienda diseñada bajo estándares de sostenibilidad y bajo consumo. Acabados de primera calidad en pavimentos, carpinterías, cerrajería y sistemas de climatización. Proyecto personalizable, con posibilidad de adaptar distribución, materiales y equipamientos según las preferencias del comprador. ENTORNO: La propiedad se encuentra en una ubicación privilegiada dentro de Bellaterra, una de las zonas residenciales más exclusivas del Vallès Occidental. Distancias clave: Barcelona a 20 km Sant Cugat del Vallès a 5 km Sabadell y Terrassa a pocos minutos Accesos rápidos: AP-7 / B-30 C-58 y C-16 Transporte público: A menos de 15 minutos a pie de la estación de FGC Bellaterra, con conexión directa a Barcelona y Sant Cugat. Servicios cercanos: Supermercado, farmacia, panadería, entidad bancaria y restaurantes a pocos minutos. Club deportivo y zonas verdes en el entorno inmediato. Centros educativos de prestigio: Escuela Waldorf a 1 minuto Escuela Ramón Fuster a 6 minutos Ágora Sant Cugat International School a 5 minutos en coche Universidad Autónoma de Barcelona a escasos kilómetros DOCUMENTACIÓN: La parcela dispone de toda la documentación técnica y urbanística necesaria para el desarrollo inmediato del proyecto: Certificado Urbanístico vigente Estudio Geotécnico Estudio Topográfico Toda esta documentación está disponible para su consulta por parte de los interesados y garantiza la viabilidad técnica y legal de la promoción. Esta promoción en Bellaterra ofrece la oportunidad de disfrutar de un hogar único, con amplias zonas interiores y exteriores, privacidad, confort y una ubicación excepcional. Una vivienda pensada para quienes buscan la tranquilidad de un entorno natural sin renunciar a la proximidad de los servicios, la educación de calidad y la conexión directa con Barcelona. Contáctenos para más información, planos y opciones de personalización. Elysiam Real Estate – Creamos hogares a la altura de sus expectativas. ¡ACEPTAMOS SU VIVIENDA A CAMBIO!

Featured promotions in Spain

10 units

Nature Views 2

Alicante, Torrevieja, Los Balcones - The Heights of Eden, Denia s/n
310 000 € - 379 000 €
1 units

Hotel en venta en Benidorm centro

Alicante, Benidorm, Poniente Beach
2 250 000 € - 2 250 000 €
28 units

Residencial Los Balcones De Calpe

Alicante, Calpe, Calpe Town, Avenida de Madrid, 1
299 000 € - 892 125 €
4 units

Nature Views

Alicante, Torrevieja, Lago Jardín II, Avenida Denia s/n
309 000 € - 330 000 €
5 units

ALONIS VILLAS

Alicante, La Villajoyosa / Vila Joiosa, Torres Beach, Partida Torres s/n
675 000 € - 775 000 €
1 units

Residencial Royal Beach

Alicante, Guardamar del Segura, town, Miguel Hernández 102
349 500 € - 349 500 €
7 units

Royal Star

Alicante, Guardamar del Segura
229 500 € - 269 500 €

Property characteristics

Complex information

  • Residential complex
    en Bellaterra

Project information / Work status

  • Property status
    New construction

Property data

  • Garage
    Included in the price
  • Bedrooms
    4
  • Bathrooms
    4
  • built square meters
    235 m²
  • Property type
    New construction

Market price statistics for Casa independiente en calle d'Apel·les Mestres, 30

Map

Barcelona, Cerdanyola del Vallès, Bellaterra, Calle d'Apel·les Mestres, 30 Going to this location!
Leave a review about Casa independiente en calle d'Apel·les Mestres, 30
0
0 reviews
1
0% (0)
2
0% (0)
3
0% (0)
4
0% (0)
5
0% (0)
ELYSIAM REAL ESTATE
en Bellaterra
Residential complex
1 100 000 €
from 4 681 € / m2
Contact advertiser

For more information contact the platform

REF: 448355

Reviews about Casa independiente en calle d'Apel·les Mestres, 30
Loading...

No reviews have been left for this object yet

Nearest properties

Explore nearby properties we've discovered in close proximity to this location

Adosados en Venta en Calle Pin i Soler, 2, Cerdanyola del Vallès

Barcelona, Cerdanyola del Vallès, Bellaterra, Calle Pin i Soler, 2
1 660 000 €

Promoción de pisos y casas adosadas de nueva construcción en Bellaterra ubicada...

0
0 reviews

Adosados en Venta en Calle Pin i Soler, 2, Cerdanyola del Vallès

Barcelona, Cerdanyola del Vallès, Bellaterra, Calle Pin i Soler, 2
1 570 000 €

Promoción de pisos y casas adosadas de nueva construcción en Bellaterra ubicada...

0
0 reviews

Adosados en Venta en Calle Pin i Soler, 2, Cerdanyola del Vallès

Barcelona, Cerdanyola del Vallès, Bellaterra, Calle Pin i Soler, 2
1 570 000 €

Promoción de pisos y casas adosadas de nueva construcción en Bellaterra ubicada...

0
0 reviews

Adosados en Venta en Calle Pin i Soler, 2, Cerdanyola del Vallès

Barcelona, Cerdanyola del Vallès, Bellaterra, Calle Pin i Soler, 2
1 660 000 €

Promoción de pisos y casas adosadas de nueva construcción en Bellaterra ubicada...

0
0 reviews

Adosados en Venta en Calle Pin i Soler, 2, Cerdanyola del Vallès

Barcelona, Cerdanyola del Vallès, Bellaterra, Calle Pin i Soler, 2
1 630 000 €

Promoción de pisos y casas adosadas de nueva construcción en Bellaterra ubicada...

0
0 reviews

Adosados en Venta en Calle Pin i Soler, 2, Cerdanyola del Vallès

Barcelona, Cerdanyola del Vallès, Bellaterra, Calle Pin i Soler, 2
1 660 000 €

Promoción de pisos y casas adosadas de nueva construcción en Bellaterra ubicada...

0
0 reviews

Adosados en Venta en Calle Pin i Soler, 2, Cerdanyola del Vallès

Barcelona, Cerdanyola del Vallès, Bellaterra, Calle Pin i Soler, 2
1 640 000 €

Promoción de pisos y casas adosadas de nueva construcción en Bellaterra ubicada...

0
0 reviews

Adosados en Venta en Calle Pin i Soler, 2, Cerdanyola del Vallès

Barcelona, Cerdanyola del Vallès, Bellaterra, Calle Pin i Soler, 2
1 630 000 €

Promoción de pisos y casas adosadas de nueva construcción en Bellaterra ubicada...

0
0 reviews

Chalet independiente en Venta en Calle Rosás, 2, Sant Cugat del Vallès

Barcelona, Sant Cugat del Vallès, Valldoreix, Calle Rosás, 2
2 150 000 €

Exclusiva construcción de luminosa y moderna casa aislada de obra nueva situada...

0
0 reviews

We use our own and third-party cookies to analyze website usage and show you advertisements related to your preferences based on a profile created from your browsing habits (e.g., pages visited). More information. Do you accept cookies?