Sale of townhouse in , Ajalvir

Sold out
Leave review
Terraced houses Property type
211 m² built square meters
3 Bathrooms
4 Bedrooms
Radiant Floor Heating
2 Floor
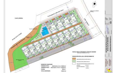
CHALETS DE OBRA NUEVA CON JARDÍN Y GARAJE PRIVADO. URBANIZACIÓN PRIVADA CON PISCINA.NUEVOS PLANOS PUBLICADOS CON SUPERFICIES ACTUALIZADAS. PLACAS SOLARES EN CUBIERTA Y AEROTERMIA CON SUELO RADIANTE Y REFRESCANTE. CERTIFICACIÓN ENERGÉTICA A. AHORRO APROXIMADO del 80% EN LOS COSTES DE SUMINISTROS ANUALES, EN LUZ Y GAS!Diseño cálido y familiar.Ajalvir es una zona muy bien comunicada por M-50, con la carretera A-2 y la A-1, así como el Aeropuerto de Madrid, Torrejón, Alcalá de Henares y con la autovía M-40. La promoción a su vez, se encuentra en una zona tranquila, a 100 metros de la parada de autobús a Madrid, Paracuellos y Daganzo.La promoción consta de 14 chalets, con piscina comunitaria y zonas comunesUbicación: Calle Huelga 6. Ajalvir. MadridLa urbanización está integrada por 14 chalets en urbanización cerrada con control de acceso automático, todos ellos de 4 dormitorios (si bien, pudieran adaptarse a 3 según necesidades de cada familia). Cada chalet está distribuido en 2 alturas más terraza-solárium, donde también se ubicarán las placas solares. Este diseño ha sido pensado con el objetivo primordial de procurar el máximo confort y calidad de vida, teniendo en cuenta, para ello, el aprovechamiento de la luz y el calor solar.La planta calle se distribuye en un amplio salón con cocina abierta a modo isla, baño, jardín privado, porche y parking junto a la entrada. En la primera planta se distribuye con 4 dormitorios y 2 baños. El dormitorio principal a modo suite, con su baño dentro y terraza y en planta segunda zona de terraza-solárium, instalaciones y otros usos.Garaje privado dentro del chalet.300 metros cuadrados de zonas comunes con piscina y zona de solárium.Solicite su cita previa y visítenos en nuestra oficina de ventas instalada en Ajalvir. Calle Atlántico nº 1.CP. 28864 Madrid. ( cerca de gasolineras Repsol y Plenoil ).*Precios sin IVA.

Property characteristics

Complex information

  • Residential complex
    Aqua Dorf M-50
  • Property type
    Terraced houses

Quality Report

  • Heating
    Radiant Floor

Property data

  • Type of kitchen
    Open kitchen
  • Floor
    2
  • Bedrooms
    4
  • Bathrooms
    3
  • built square meters
    211 m²
  • Property type
    New construction

Facilities

Housing Amenities:

Terrace

In building:

Swimming Pool
Garden Zones
Green Areas
Garden

State:

New construction

Market price statistics for Chalet adosado en venta en calle Huelga, 6

Map

Leave a review about Chalet adosado en venta en calle Huelga, 6
0
0 reviews
1
0% (0)
2
0% (0)
3
0% (0)
4
0% (0)
5
0% (0)
Aqua Dorf M-50
Residential complex
Sold out
Contact advertiser

For more information contact the platform

REF: 3274

Reviews about Chalet adosado en venta en calle Huelga, 6
Loading...

No reviews have been left for this object yet

Nearest properties

Explore nearby properties we've discovered in close proximity to this location

Pareados en Venta en Calle Río Guadiana s/n, Paracuellos de Jarama

Madrid, Paracuellos de Jarama, Miramadrid, Calle Río Guadiana s/n
779 900 €

·26 chalets en Paracuellos de Jarama, Miramadrid. A 15 minutos en coche de Madri...

0
0 reviews

Pareados en Venta en Calle Río Guadiana s/n, Paracuellos de Jarama

Madrid, Paracuellos de Jarama, Miramadrid, Calle Río Guadiana s/n
799 900 €

·26 chalets en Paracuellos de Jarama, Miramadrid. A 15 minutos en coche de Madri...

0
0 reviews

Pareados en Venta en Calle Río Guadiana s/n, Paracuellos de Jarama

Madrid, Paracuellos de Jarama, Miramadrid, Calle Río Guadiana s/n
799 900 €

·26 chalets en Paracuellos de Jarama, Miramadrid. A 15 minutos en coche de Madri...

0
0 reviews

Pareados en Venta en Calle Río Guadiana s/n, Paracuellos de Jarama

Madrid, Paracuellos de Jarama, Miramadrid, Calle Río Guadiana s/n
819 900 €

·26 chalets en Paracuellos de Jarama, Miramadrid. A 15 minutos en coche de Madri...

0
0 reviews

Pareados en Venta en Calle Río Guadiana s/n, Paracuellos de Jarama

Madrid, Paracuellos de Jarama, Miramadrid, Calle Río Guadiana s/n
799 900 €

·26 chalets en Paracuellos de Jarama, Miramadrid. A 15 minutos en coche de Madri...

0
0 reviews

Pareados en Venta en Calle Río Guadiana s/n, Paracuellos de Jarama

Madrid, Paracuellos de Jarama, Miramadrid, Calle Río Guadiana s/n
784 900 €

·26 chalets en Paracuellos de Jarama, Miramadrid. A 15 minutos en coche de Madri...

0
0 reviews

Pareados en Venta en Calle Río Guadiana s/n, Paracuellos de Jarama

Madrid, Paracuellos de Jarama, Miramadrid, Calle Río Guadiana s/n
784 900 €

·26 chalets en Paracuellos de Jarama, Miramadrid. A 15 minutos en coche de Madri...

0
0 reviews

Adosados en Venta, Ajalvir

Madrid, Ajalvir
405 000 €

CHALETS DE OBRA NUEVA CON JARDÍN Y GARAJE PRIVADO. URBANIZACIÓN PRIVADA CON PISC...

0
0 reviews

Adosados en Venta, Ajalvir

Madrid, Ajalvir
415 000 €

CHALETS DE OBRA NUEVA CON JARDÍN Y GARAJE PRIVADO. URBANIZACIÓN PRIVADA CON PISC...

0
0 reviews

We use our own and third-party cookies to analyze website usage and show you advertisements related to your preferences based on a profile created from your browsing habits (e.g., pages visited). More information. Do you accept cookies?