Sale of apartment in Camino de la Corredera, 3, Colmenar Viejo

Madrid, Colmenar Viejo, The Lookout, Camino de la Corredera, 3
Sold out
Leave review
Flats Property type
2 Bedrooms
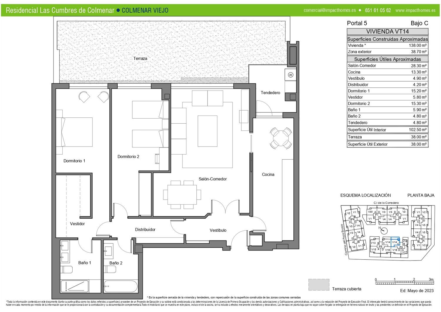
138 m² built square meters
3 Bathrooms
Under construction Building State
Radiant Floor Heating
OBRAS INICIADAS.¿Te gustaría vivir en el centro de Colmenar Viejo, con todos los servicios a tu alcance?Estamos construyendo tu nuevo hogar, LAS CUMBRES DE COLMENAR, a solo cinco minutos caminando del centro.Una promoción única por su ubicación, su diseño y sus magníficas vistas. Y a tan solo 30 minutos de Madrid.LAS CUMBRES DE COLMENAR es una urbanización de 110 viviendas, con 1, 2, 3 y 4 dormitorios, plaza de garaje y trastero.Bajos con jardín, áticos y dúplex, con zonas comunes y piscina.Disfruta de las extraordinarias vistas que ofrecen sus terrazas y del entorno de naturaleza de los alrededores de Colmenar Viejo.Promoción promovida por GRUPO INMOBILIARIO FERROCARRIL y gestionada por IMPACT HOMES.Teniendo en cuenta el compromiso de sostenibilidad de Impact Homes, las viviendas vienen equipadas con Aerotermia colectiva para suelo radiante y refrescante, un sistema de alta eficiencia, sostenible y de energía renovable.No lo dudes y llámanos. Estaremos encantados de informarte.Promueve Grupo Ferrocarril.

Property characteristics

Complex information

  • Residential complex
    Las Cumbres de Colmenar
  • Property type
    Flats

Project information / Work status

  • Building State
    Under construction

Quality Report

  • Heating
    Radiant Floor

Property data

  • Bedrooms
    2
  • Bathrooms
    3
  • built square meters
    138 m²
  • Property type
    New construction

Facilities

Housing Amenities:

Storage room
Terrace

In building:

Swimming Pool
Garage
Elevator
Garden Zones
Storage unit
Green Areas
Garden

Market price statistics for Piso en venta en camino de la Corredera, 3

281 581 € (3 418 €/m2)
Average price of primary Flats in city Colmenar Viejo

Map

Madrid, Colmenar Viejo, The Lookout, Camino de la Corredera, 3 Going to this location!
Leave a review about Piso en venta en camino de la Corredera, 3
0
0 reviews
1
0% (0)
2
0% (0)
3
0% (0)
4
0% (0)
5
0% (0)
Las Cumbres de Colmenar
Residential complex
Sold out
Contact advertiser

For more information contact the platform

REF: 22852

Reviews about Piso en venta en camino de la Corredera, 3
Loading...

No reviews have been left for this object yet

Nearest properties

Explore nearby properties we've discovered in close proximity to this location

Obra nueva Mendoza en Colmenar Viejo

Madrid, Colmenar Viejo, San Crispín - The Consortium Station, Calle Orient Express, 12
423 100 €

es una magnífica promoción de viviendas de 2, 3 y 4 dormitorios. Ubicada en la...

0
0 reviews

Apartamentos en Venta en Calle del Orient Express, Colmenar Viejo

Madrid, Colmenar Viejo, San Crispín - The Consortium Station, Calle del Orient Express
439 900 €

La promoción se encuentra en la zona de la Estación de Colmenar Viejo. Considera...

0
0 reviews

Apartamentos en Venta en Calle del Orient Express, Colmenar Viejo

Madrid, Colmenar Viejo, San Crispín - The Consortium Station, Calle del Orient Express
423 100 €

La promoción se encuentra en la zona de la Estación de Colmenar Viejo. Considera...

0
0 reviews

Obra nueva Suelo,CL Orient Express 10-colmenar Viej en Colmenar Viejo

Madrid, Colmenar Viejo, San Crispín - The Consortium Station, Calle del Orient Express
432 100 €

La promoción se encuentra en la zona de la Estación de Colmenar Viejo. Considera...

0
0 reviews

Obra nueva Suelo,CL Orient Express 10-colmenar Viej en Colmenar Viejo

Madrid, Colmenar Viejo, San Crispín - The Consortium Station, Calle del Orient Express
423 100 €

La promoción se encuentra en la zona de la Estación de Colmenar Viejo. Considera...

0
0 reviews

Obra nueva Suelo,CL Orient Express 10-colmenar Viej en Colmenar Viejo

Madrid, Colmenar Viejo, San Crispín - The Consortium Station, Calle del Orient Express
498 200 €

La promoción se encuentra en la zona de la Estación de Colmenar Viejo. Considera...

0
0 reviews

Obra nueva Colmenar Class I en Colmenar Viejo

Madrid, Colmenar Viejo, San Crispín - The Consortium Station, Avenida Severo Ochoa, 4
350 000 €

ÚLTIMA VIVIENDA DISPONIBLELa promoción se sitúa en el sector de la estación, un...

3
0 reviews

Obra nueva Las Terrazas de Colmenar Green en Colmenar Viejo

Madrid, Colmenar Viejo, San Crispín - The Consortium Station, Calle Ave, 2
367 284 €

ÚLTIMA VIVIENDA DISPONIBLE. Obras iniciadas., vive como siempre habías soñado.Si...

0
0 reviews

Obra nueva El Viso de Colmenar en Colmenar Viejo

Madrid, Colmenar Viejo, San Crispín - The Consortium Station, Calle del Ave, 2
360 500 €

OBRAS INICIADAS¡Nueva promoción de viviendas! Excelente complejo residencial sit...

0
0 reviews

We use our own and third-party cookies to analyze website usage and show you advertisements related to your preferences based on a profile created from your browsing habits (e.g., pages visited). More information. Do you accept cookies?