Sale of apartment in , Daganzo de Arriba

Sold out
Leave review
Flats Property type
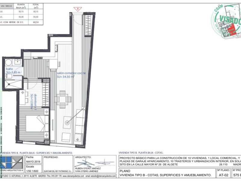
80 m² built square meters
2 Bathrooms
2 Bedrooms
In process Construction license
Radiant Floor Heating
Included in the price Garage
Villa Daganzo 64, es una nueva promoción de 24 viviendas de renta libre, ubicada en el casco urbano en la calle Constitución, 64, a 3 minutos andando del Ayuntamiento.Cuenta con todos los servicios, zona comercial, colegios, parques, restauración, transporte público…La promoción consta de viviendas de 1, 2 y 3 dormitorios con bajos con jardín y áticos con amplias terrazas. Todas las viviendas disponen de terraza, plaza de garaje y trastero.Se trata de un edificio singular de tres alturas con fachada mixta compuesta por placas de piedra artificial y/o ladrillo visto en planta baja y SATE | ETICS en el resto del edificio.Proyecto con calificación energética AProducción de calefacción y refrigeración mediante sistema de Aerotermia con instalación de suelo radiante-refrescante de baja temperatura, repartiendo de manera uniforme calor en invierno y frescor en verano con los más altos niveles de eficiencia y confort. Al no necesitar radiadores, entre otras grandes ventajas, se consigue maximizar el espacio útil en la vivienda. El control de la temperatura se regulará mediante termostato situado en el salón. Vidrios bajo emisivos (ATR) en todos los huecos de fachada. Gran ahorro económico en la factura energética mensual con el máximo confort. Cocinas equipadas con muebles altos y bajos. Sistema de alarma individual con servicio de aviso a la policía. Pintura lisa, carpintería interior lacada en blanco.. .Promovido por Villa Daganzo, S. Coop. Mad. , una sociedad cooperativa en constitución, gestionada por Ksanet, empresa de gestión con la que Factory Casas está colaborando en la estructuración de demanda. La promoción actualmente se encuentra en fase de captación de socios.Villa Daganzo 64, se convierte en la mejor opción para estrenar vivienda moderna y de calidad en uno de los pueblos que mejor conjuga tradición y modernidad de la Comunidad de Madrid.

Property characteristics

Complex information

  • Residential complex
    Villa Daganzo 64
  • Property type
    Flats

Project information / Work status

  • Construction license
    In process

Quality Report

  • Heating
    Radiant Floor

Property data

  • Garage
    Included in the price
  • Bedrooms
    2
  • Bathrooms
    2
  • built square meters
    80 m²
  • Property type
    New construction

Energy certification

  • Energy certificate
    A

Facilities

Housing Amenities:

Furniture
Storage room
Heating
Interior Windows
Terrace

In building:

Garage
Elevator
Storage unit
Garden

Market price statistics for Piso en venta en calle Constitución, 64

Map

Madrid, Daganzo de Arriba Going to this location!
Leave a review about Piso en venta en calle Constitución, 64
0
0 reviews
1
0% (0)
2
0% (0)
3
0% (0)
4
0% (0)
5
0% (0)
Factory Casas
Villa Daganzo 64
Residential complex
Sold out
Contact advertiser

For more information contact the platform

REF: 205114

Reviews about Piso en venta en calle Constitución, 64
Loading...

No reviews have been left for this object yet

Nearest properties

Explore nearby properties we've discovered in close proximity to this location

Apartamentos en Venta, Cobeña

Madrid, Cobeña
225 741 €

La promoción Cobeña Sky cuenta con 25 viviendas en altura VPPL en una amplia urb...

0
0 reviews

Apartamentos en Venta, Cobeña

Madrid, Cobeña
289 240 €

La promoción Cobeña Sky cuenta con 25 viviendas en altura VPPL en una amplia urb...

0
0 reviews

Apartamentos en Venta, Cobeña

Madrid, Cobeña
319 590 €

La promoción Cobeña Sky cuenta con 25 viviendas en altura VPPL en una amplia urb...

0
0 reviews

Obra nueva Residencial Qdr Algete en Algete

Madrid, Algete
162 000 €

Nueva comercialización de 10 viviendas en la localidad de Algete, en la zona cen...

0
0 reviews

Piso en venta en calle Constitución, 64

Madrid, Daganzo de Arriba
194 404 €

, es una nueva promoción de 24 viviendas de renta libre, ubicada en el casco urb...

0
0 reviews

Estudio en venta en calle Limon verde, 29

Madrid, Algete
137 000 €

26 viviendasEstudios, 1, 2 y 3 dormitorios.Incluyen trasteroPiscinaGaraje opcion...

0
0 reviews

Obra nueva Cobeña Sky en Cobeña

Madrid, Cobeña
226 257 €

La promoción Cobeña Sky cuenta con 25 viviendas en altura VPPL en una amplia urb...

0
0 reviews

Piso en venta en calle Real s/n

Madrid, Ajalvir
175 700 €

THE HOMIE CONCEPT“Asómate a tu sueño y hazlo realidad”Si eres de los que buscas...

0
0 reviews

Piso en venta en calle Fresno, 28

Madrid, Camarma de Esteruelas
205 000 €

Alcala inmobiliaria presenta esta magnifica obra nueva en Camarma: Residencial F...

0
0 reviews
Call

We use our own and third-party cookies to analyze website usage and show you advertisements related to your preferences based on a profile created from your browsing habits (e.g., pages visited). More information. Do you accept cookies?