Sale of independent chalet in Calle Grama, 25, Madrid

Madrid, Madrid, Hortaleza, Calle Grama, 25
Sold out
Leave review
Detached chalet Property type
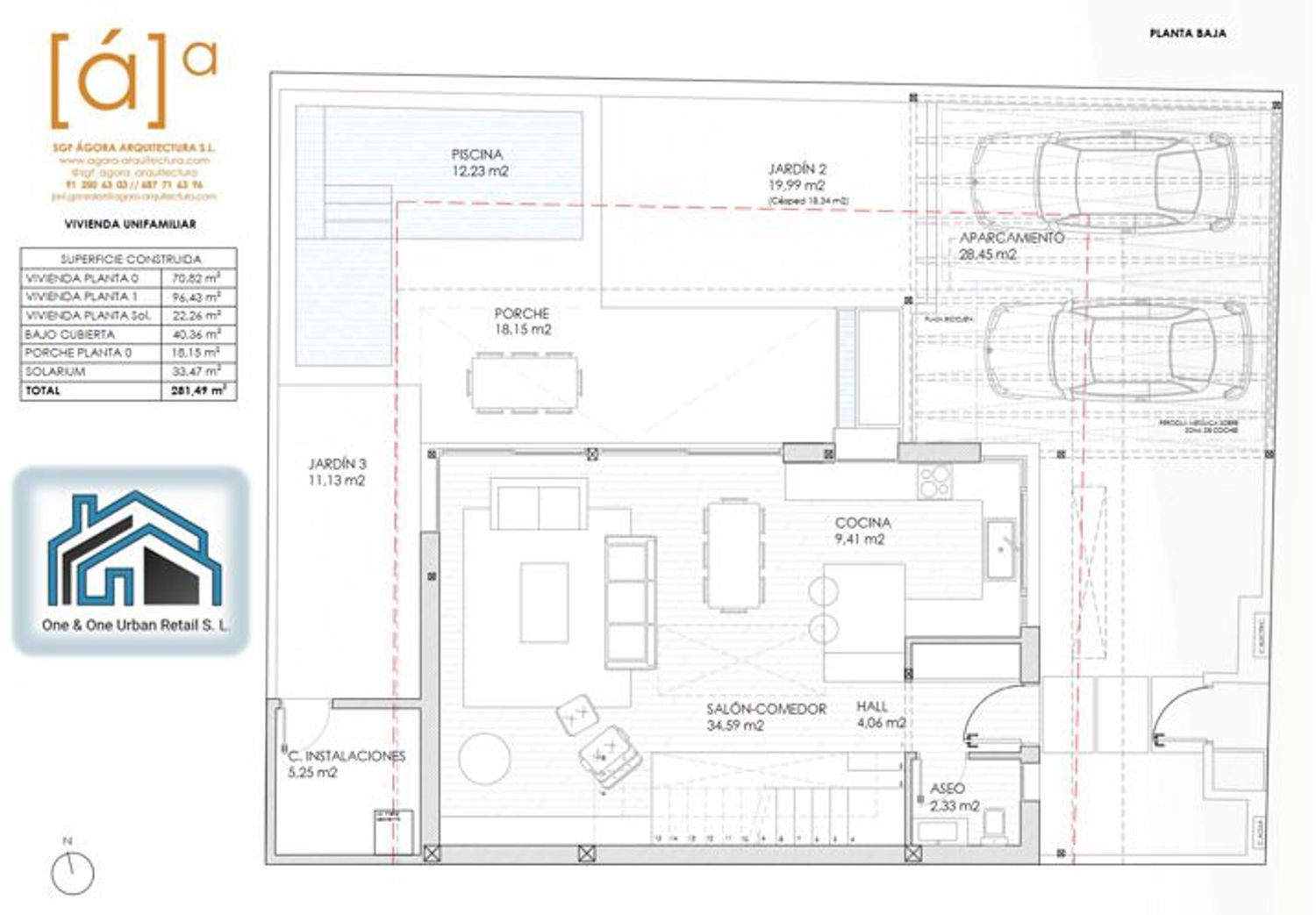
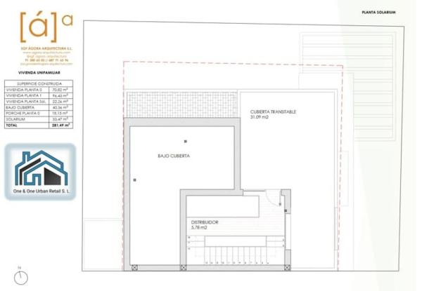
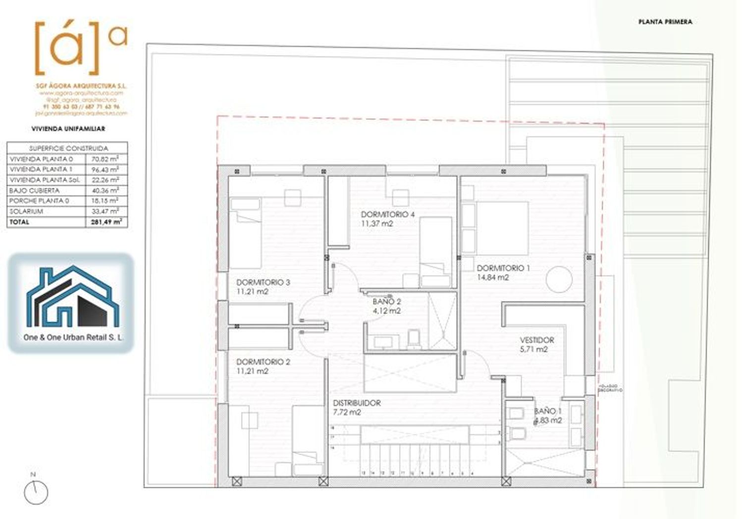
281 m² built square meters
4 Bathrooms
5 Bedrooms
2025 Year of delivery
Included in the price Garage
3 Floor
LE´CORBUSIER VENDE UNA CASA DE ENSUEÑO DE OBRA NUEVA.La vivienda es completamente independiente, y se entrega en Octubre de 2025.Primeras calidades tanto en la construcción como en los acabados.La vivienda se distribuye en tres plantas y consta de los siguientes elementos:PLANTA BAJA: Amplia cocina americana con salón comedor integrado, para disfrutar con la familia y amigos de un ambiente acogedor y exclusivo. Aseo para dar servicio a la planta, garaje con capacidad para dos coches, piscina privada de 13m2, y varios jardines como aledaños que harán que disfrutes de momentos inolvidables.PLANTA PRIMERA: 4 Dormitorios, uno de ellos (el principal) con baño en suite y vestidor de, y 5,71m2, amplio hall distribuidor y baño completo que da servicio al resto de planta.PLANTA SEGUNDA: Buhardilla diáfana, y amplia terraza transitable.En cuanto a los materiales son de calidad PREMIUM: aerotermia, puertas de diseño, cocina de materiales alemanes, ventanas de PVC con rotura de puente térmico.Si quieres vivir en la zona con más crecimiento y de más revalorización de Madrid, en una zona tan exclusiva como "las Cárcavas" en una casa premium esta es tu vivienda! Colegios, guarderías, zonas de ocio, m40, transporte, centros comerciales,PREGUNTA SIN COMPROMISO.

Property characteristics

Complex information

  • Residential complex
    Chalet En Las Cárcavas
  • Property type
    Detached chalet

Project information / Work status

  • Year of delivery
    2025

Property data

  • Type of kitchen
    Open kitchen
  • Garage
    Included in the price
  • Floor
    3
  • Bedrooms
    5
  • Bathrooms
    4
  • built square meters
    281 m²
  • Property type
    New construction

Energy certification

  • Energy certificate
    A

Facilities

Housing Amenities:

Private pool
Terrace

In building:

Swimming Pool
Garden
Private pool

Type of kitchen:

American kitchen

State:

New construction

Market price statistics for Casa o chalet independiente en venta en calle Grama, 25

2 721 154 € (7 822 €/m2)
Average price of primary Detached chalet in city Madrid

Map

Madrid, Madrid, Hortaleza, Calle Grama, 25 Going to this location!
Leave a review about Casa o chalet independiente en venta en calle Grama, 25
0
0 reviews
1
0% (0)
2
0% (0)
3
0% (0)
4
0% (0)
5
0% (0)
Le´Corbusier Real State
Chalet En Las Cárcavas
Residential complex
Sold out
Contact advertiser

For more information contact the platform

REF: 86045

Reviews about Casa o chalet independiente en venta en calle Grama, 25
Loading...

No reviews have been left for this object yet

Nearest properties

Explore nearby properties we've discovered in close proximity to this location

Obra nueva Faraday en Madrid

Madrid, Madrid, Hortaleza, Calle Elena Fortún, 10
965 000 €

pone a tu disposición 10 exclusivas viviendas unifamiliares de 3 y 4 dormitorio...

0
0 reviews

Obra nueva Faraday en Madrid

Madrid, Madrid, Hortaleza, Calle Elena Fortún, 10
1 075 000 €

pone a tu disposición 10 exclusivas viviendas unifamiliares de 3 y 4 dormitorio...

0
0 reviews

Obra nueva Faraday en Madrid

Madrid, Madrid, Hortaleza, Calle Elena Fortún, 10
925 000 €

pone a tu disposición 10 exclusivas viviendas unifamiliares de 3 y 4 dormitorio...

0
0 reviews

Casa o chalet independiente en venta en La Moraleja urbanización

Madrid, La Moraleja, La Moraleja urbanization
6 950 000 €

EXCLUSIVA VIVIENDA REFORMADA EN LA MEJOR ZONA DE LA MORALEJA, EN PARCELA PLANA,...

0
0 reviews

Casa o chalet independiente en venta en Urb. La Moraleja, La Moraleja urbanización

Madrid, La Moraleja, La Moraleja urbanization, Urb. La Moraleja
3 500 000 €

VILLAMORA les ofrece esta estupenda CASA de 540 m2 en la Moraleja. Situada sobre...

0
0 reviews

Casa o chalet independiente en venta en La Moraleja urbanización

Madrid, La Moraleja, La Moraleja urbanization
3 700 000 €

Gilmar Moraleja Consulting presenta esta preciosa propiedad unifamiliar en una d...

0
0 reviews

Casa o chalet independiente en venta en avenida de Alfonso XIII, 17

Madrid, Madrid, Chamartín, Avenida de Alfonso XIII, 17
4 300 000 €

PALACETE SINGULAR del año 1920 completamente rehabilitado. Situado en la colonia...

0
0 reviews

Casa en venta de 370 m² Calle de María Lombillo, 28027 Madrid

Madrid, Madrid
1 595 000 €

Venta exclusiva con Housell. De particular a particular. Llámanos y visita esta...

0
0 reviews

Casa o chalet independiente en venta en calle del camino ancho, 30

Madrid, La Moraleja, La Moraleja urbanization, Calle del camino ancho, 30
6 900 000 €

QLUJO ofrece en exclusiva la venta de una espectacular vivienda unifamiliar a es...

0
0 reviews
Call

We use our own and third-party cookies to analyze website usage and show you advertisements related to your preferences based on a profile created from your browsing habits (e.g., pages visited). More information. Do you accept cookies?