New construction 2 pareados en C/Nalón 4 in Pozuelo de Alarcón

Madrid, Pozuelo de Alarcón, Station Zone, Calle Nalón, 4
from 1 598 000 €
3 995 € / m2
Leave review
2025 Year of delivery
Property surfaces
Number of bedrooms
Bathrooms

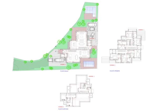
Located near the Renfe Station and close to the commercial area of Aravaca, these properties provide a serene environment. Distinct features of these homes include two independent entrances from separate streets. The residences are connected at the back and oriented in opposite directions, ensuring complete privacy with neighbors shielded from each other’s view. They are separated by a single wall with double soundproofing.

Each residence covers a built area of 400 m², featuring a terrace with lighting, water connections, and expansion potential. Residence 1, accessible through one street, offers 4 bedrooms on the first floor with 2 en-suite bathrooms and 1 shared bathroom. Residence 2, accessed via the other street, includes 3 bedrooms on the first floor, each with an en-suite bathroom. Both properties allow basement partitioning, which is naturally lit and climate-controlled.

The plot area measures 356 m² for Residence 1 and 390 m² for Residence 2. The aerothermal climate system is installed from the ground floor to the first floor and basement without extra cost. Additionally, each home features 4 solar panels on the roof to maximize energy efficiency.

Kitchens are fully equipped with BOSCH class A++ appliances or similar, including an integrable dishwasher, electric oven, and microwave integrated in a column, induction hob with an integrated extractor hood in a false ceiling, and a sink with monobloc faucet. Security motorized blinds are also featured.

Additional inclusions encompass home automation with a touchscreen for controlling lighting, motorized blinds, and alerts for floods, intrusions, and fires, manageable via mobile app. LED lighting is provided throughout, even on terraces featuring glass railings with horizon views. Alarm systems, garden landscaping including trees, fence concealment, automatic drip irrigation, and garden LED lighting are included. An external electric vehicle charging port and full aluminum-framed bathroom screens are provided. Swimming pools feature saline chlorination and climate control systems for extended seasonal use.

The design and quality are of high standard, luxurious in nature. The energy classification is rated A, with completion anticipated by the end of June or early July 2025. Payment structure includes a reservation of €20,000, followed by a deposit contract within 15 days, covering 20% (minus the reservation amount). The remaining 80% is due upon signing the purchase agreement. Direct inquiries only; agencies are requested to refrain.

Featured promotions in Spain

10 units

Nature Views 2

Alicante, Torrevieja, Los Balcones - The Heights of Eden, Denia s/n
310 000 € - 379 000 €
1 units

Hotel en venta en Benidorm centro

Alicante, Benidorm, Poniente Beach
2 250 000 € - 2 250 000 €
28 units

Residencial Los Balcones De Calpe

Alicante, Calpe, Calpe Town, Avenida de Madrid, 1
299 000 € - 892 125 €
4 units

Nature Views

Alicante, Torrevieja, Lago Jardín II, Avenida Denia s/n
309 000 € - 330 000 €
5 units

ALONIS VILLAS

Alicante, La Villajoyosa / Vila Joiosa, Torres Beach, Partida Torres s/n
675 000 € - 775 000 €
1 units

Residencial Royal Beach

Alicante, Guardamar del Segura, town, Miguel Hernández 102
349 500 € - 349 500 €
7 units

Royal Star

Alicante, Guardamar del Segura
229 500 € - 269 500 €
This information has been obtained from public sources and may not be up to date. It does not represent a link with the developer.

Property characteristics

Complex information

Project information / Work status

  • Delivery year
    2025
  • Promotion format
    Free

Property data

  • Medium square meters
    400 m²
  • Property type
    New construction

Energy certification

  • Energy certificate
    A
  • CEE Issuance
    A

Base

Facilities

In building:

Swimming Pool
Garden
Basement

Plans

Market price statistics for 2 pareados en C/Nalón 4

1 598 000 € (3 995 €/m2)
Average price in complex
1 598 000 € (3 995 €/m2)
Average price of 4+ bedroom
1 782 266 € (5 496 €/m2)
Average price of primary Houses in city Pozuelo de Alarcón
1 217 775 € (8 083 €/m2)
Average price of primary Apartments in city Pozuelo de Alarcón
1 458 400 € (4 480 €/m2)
Average price of primary Houses in district Station Zone

Map

Madrid, Pozuelo de Alarcón, Station Zone, Calle Nalón, 4 Going to this location!
Leave a review about 2 pareados en C/Nalón 4
0
0 reviews
1
0% (0)
2
0% (0)
3
0% (0)
4
0% (0)
5
0% (0)
1 598 000 €
from 3 995 € / m2
Contact advertiser

For more information contact the platform

REF: 237002

Reviews about 2 pareados en C/Nalón 4
Loading...

No reviews have been left for this object yet

Nearest properties

Explore nearby properties we've discovered in close proximity to this location

Newly constructed residences in an exclusive area of Madrid.

Madrid, Madrid, Moncloa, Calle Navalmanzano, 10
-

Real Estate in La Reserva de Puerta de Hierro Imagine a place that reflects the...

0
0 reviews
2 units

Obra nueva 3 viviendas exclusivas en Herrera Oria 318 en Madrid

Madrid, Madrid, Fuencarral, Calle Herrera Oria, 318
939 000 € - 1 076 000 €

Promoción ubicada en una de las mejores localizaciones dentro de Madrid, para di...

0
0 reviews
5 units

New residential development located in an emerging neighborhood of Madrid.

Madrid, Madrid, Moncloa, Calle Boyero, 4
353 192 € - 499 221 €

Real Estate in Residencial Boyero 4 Situated in a prime location, this new resi...

0
0 reviews
1 units

New residential development, Phase 3, in the heart of Madrid.

Madrid, Madrid, Moncloa, Calle Boyero, 3
700 128 € - 700 128 €

Real estate in Residencial Boyero 3 Discover an exceptional real estate opportu...

0
0 reviews
4 units

Obra nueva Residencial Bosque de Secuoyas en Pozuelo de Alarcón

Madrid, Pozuelo de Alarcón, ARPO, Polígono Dïez, 195
312 700 € - 441 000 €

ADQUIRIDO SUELO POR LA COOPERATIVA¡ÚLTIMAS VIVIENDAS DISPONIBLES!La Cooperativa...

0
0 reviews
3 units

Obra nueva Las 6 Villas en Las Rozas de Madrid

Madrid, Las Rozas de Madrid, Marazuela - The Tower, Camino Viejo de Madrid, 28
1 125 000 € - 1 393 000 €

OBRA INICIADA EN SEPTIEMBRE 2023 Y ENTREGA EN FEBRERO 2025Viviendas de lujo sing...

0
0 reviews

New development of beautiful villas located in the prestigious area of Pozuelo de Alarcón.

Madrid, Pozuelo de Alarcón, Station Zone, Calle Nalón, 4
-

Real Estate in Nalon Villas Discover the remarkable semi-detached homes at Nalon...

0
0 reviews
3 units

New residential development in a prime Madrid location.

Madrid, Madrid, Moncloa, Calle Alvaro Caballero, 9
947 565 € - 1 230 311 €

Real Estate in Residencial El Plantío Nestled in one of the most exclusive neigh...

0
0 reviews

We use our own and third-party cookies to analyze website usage and show you advertisements related to your preferences based on a profile created from your browsing habits (e.g., pages visited). More information. Do you accept cookies?