34 Land for sale in Pines de Alhaurín, Alhaurín de la Torre

List of parcel ads in Pines de Alhaurín for purchase, here you will find: urban land, buildable and non-buildable land as well as all types of soil, compare prices of the parcels according to the characteristics of your interest.

Lot area

-

Land Use

Popular crop

Price range

-

Type of access to the plot

Supply

Rational use of assets

Cultivation

Loading...
Terreno en Pinos de Alhaurín
1 050 000 €

Terreno en Pinos de Alhaurín

Land area: 12 160 m²

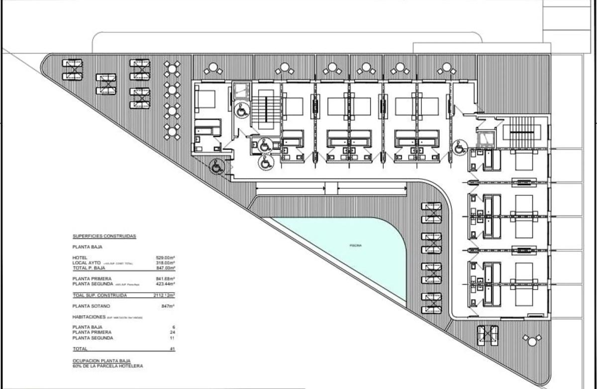
**¡Oportunidad Única para Inversores! Terreno en Venta en Alhaurín de la Torre, Málaga** Presentamos un terreno con proyecto para la edificación de un hotel de lujo. Este suelo, recalificado...

Terreno en Pinos de Alhaurín
105 000 €

Terreno en Pinos de Alhaurín

Land area: 1 000 m² Electricity supply: Yes

Parcela urbanizable a la venta en Alhaurín, concretamente en la zona Pinos de Alhaurín. Con una edificabilidad superior a la zona, consta con un 30% pudiendo construir una casa unifamiliar d...

Terreno en Pinos de Alhaurín
135 000 €

Terreno en Pinos de Alhaurín

Land area: 1 000 m²

Se vende parcela urbana en una bonita urbanización de chalets independientes con vistas a la montaña. Cuentan con una superficie de 1.000 m2 para edificar un chalet independiente de 2 planta...

Terreno en Pinos de Alhaurín
110 000 €

Terreno en Pinos de Alhaurín

Land area: 999 m² Electricity supply: Yes

Parcela urbanizable a la venta en Alhaurín, concretamente en la zona Pinos de Alhaurín. Con una edificabilidad superior a la zona, cuenta con un 30%. Cuenta con conexión para agua y electric...

Terreno en Pinos de Alhaurín
115 000 €

Terreno en Pinos de Alhaurín

Land area: 948 m² Electricity supply: Yes

Parcela urbanizable a la venta en Alhaurín, concretamente en la zona Pinos de Alhaurín. Con una edificabilidad superior a la zona, consta con un 30%. Cuenta con conexión para agua y electric...

Terreno en Pinos de Alhaurín
110 000 €

Terreno en Pinos de Alhaurín

Land area: 1 000 m² Electricity supply: Yes

Parcela urbanizable a la venta en Alhaurín, concretamente en la zona Pinos de Alhaurín. Con una edificabilidad superior a la zona, cuenta con un 30%. Cuenta con conexión para agua y electric...

Terreno en Pinos de Alhaurín
110 000 €

Terreno en Pinos de Alhaurín

Land area: 1 000 m² Electricity supply: Yes

Parcela urbanizable a la venta en Alhaurín, concretamente en la zona Pinos de Alhaurín. Con una edificabilidad superior a la zona, cuenta con un 30%. Cuenta con conexión para agua y electric...

Terreno en Pinos de Alhaurín
220 000 €

Terreno en Pinos de Alhaurín

Land area: 2 608 m²

Parcela urbanística en la bonita urbanización de Pinos de Alhaurín, en la parte más arriba, en c/ Arroyo de la Miel, al final de la calle sin salida. Desde ahí se tiene unas vistas increíble...

Terreno en calle Cañete la Real
220 000 €

Terreno en calle Cañete la Real

Land area: 1 124 m²

Gran terreno en Pinos de alhaurin que cuenta con 1124 metros cuadrados de parcela con capacidad de edificabilidad de un 0,30% (337 metros). Proyecto Realizado con topógrafo y licencias conce...

Terreno en Pinos de Alhaurín
225 000 €

Terreno en Pinos de Alhaurín

Land area: 1 350 m² Crops: Fruit trees

Si quieres iniciar ya la construcción de tu chalé independiente en Alhaurín de la Torre aqui dispones de esta parcela en venta completamente llana en Pinos de Alhaurín, con agua contratada y...

Terreno en calle Algarrobo s/n
10 000 €

Terreno en calle Algarrobo s/n

Land area: 26 000 m²

Disponible suelo urbano de 25870m2 en Pinos de Alhaurín. UE PN-90, ordenanza aplicada N-64. Parcela mínima 1000m2. Urbanización Pinos de Alhaurín, zona baja. A 500 metros del nuevo centro co...

Terreno en Pinos de Alhaurín
275 000 €

Terreno en Pinos de Alhaurín

Land area: 280 m² Use of lot: Residential

Se vende PARCELA con licencia de obra y proyecto, construida un 40% la parcela cuenta con 280m2 El proyecto de obra cuenta con dos dormitorios dos baños, amplio salón cocina, cochera con c...

155 625 € (0/m2)
Average price of secondary Urbanizable Pines de Alhaurín

Areas to sell properties in Spain

Areas of higher popularity and number of houses, apartments, and commercial spaces available for you to sell.

We use our own and third-party cookies to analyze website usage and show you advertisements related to your preferences based on a profile created from your browsing habits (e.g., pages visited). More information. Do you accept cookies?