Terreno en calle David Bowie, 13

Malaga, Alhaurín de la Torre, Capellanía - Retamar, Calle David Bowie, 13
178 000 €
Leave review
Urbanizable Property type
257 m² Land area
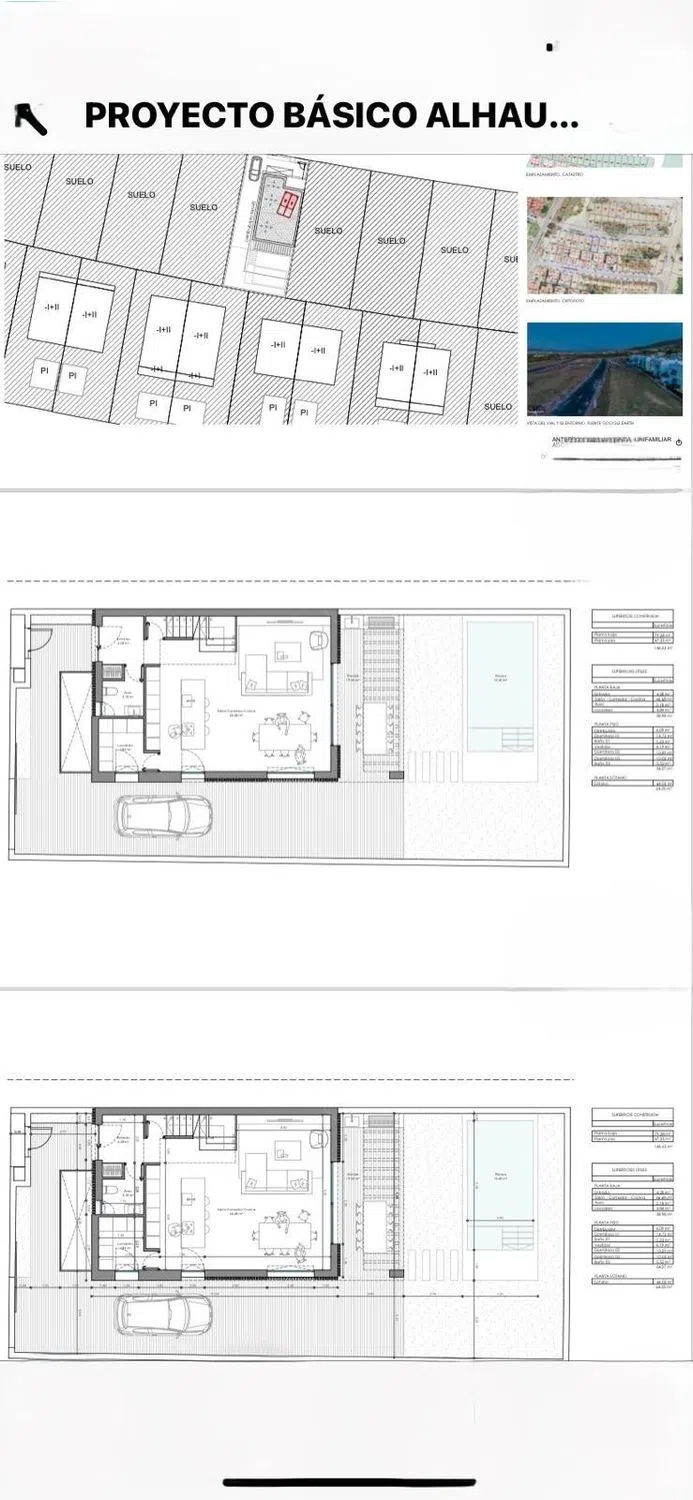
En venta terreno urbanizable de 257 metros cuadrados ubicado en la prestigiosa zona de Capellanía – Retamar, Alhaurín de la Torre. La propiedad se vende con un proyecto aprobado para la construcción de una residencia unifamiliar distribuida en tres niveles: •Planta semisótano: 64,03 metros cuadrados, ideal para garaje, trastero o zona de ocio. •Planta baja: 79.28 metros cuadrados, diseñada para albergar un amplio espacio de estar, una cocina moderna y los servicios. •Planta piso: 77.35 metros cuadrados, destinada a dormitorios amplios y un baño. El proyecto ha sido cuidadosamente planificado para maximizar el uso del espacio y garantizar comodidad y funcionalidad. La zona de Capellanía – Retamar es reconocida por su tranquilidad, infraestructuras de alta calidad y la proximidad a servicios esenciales como escuelas, supermercados y áreas recreativas. Además, su ubicación estratégica ofrece fácil acceso a las principales vías de comunicación, facilitando los desplazamientos hacia el centro de Alhaurín de la Torre y ciudades cercanas. Esta es una oportunidad única para construir la casa de tus sueños sin las complicaciones de obtener los permisos de construcción, ya que el proyecto ya está aprobado. No pierdas la ocasión de invertir en una propiedad con alto potencial de desarrollo en una zona en constante crecimiento. Para más información o para organizar una visita, no dudes en contactarnos.

Property characteristics

Complex information

  • Property type
    Urbanizable

Property data

  • Property type
    Second hand

Surfaces

  • Land area
    257 m²

Plans

Market price statistics for Terreno en calle David Bowie, 13

Map

Malaga, Alhaurín de la Torre, Capellanía - Retamar, Calle David Bowie, 13 Going to this location!
Leave a review about Terreno en calle David Bowie, 13
0
0 reviews
1
0% (0)
2
0% (0)
3
0% (0)
4
0% (0)
5
0% (0)
Benalcostahome Sl
178 000 €
Contact advertiser

For more information contact the platform

REF: 243075

Reviews about Terreno en calle David Bowie, 13
Loading...

No reviews have been left for this object yet

Nearest properties

Explore nearby properties we've discovered in close proximity to this location

Terreno en calle Lima, 62

Malaga, Alhaurín de la Torre, Platero - The Lemon, Calle Lima, 62
185 000 €

Se ofrece solar urbano de 148 m² ideal para la construcción de vivienda unifamil...

0
0 reviews

Terreno en Pinos de Alhaurín

Malaga, Alhaurín de la Torre, Pines de Alhaurín, Pinos de Alhaurín
275 000 €

Se vende PARCELA con licencia de obra y proyecto, construida un 40% la parcela...

0
0 reviews

Terreno en calle Algarrobo s/n

Malaga, Alhaurín de la Torre, Pines de Alhaurín, Calle Algarrobo s/n
10 000 €

Disponible suelo urbano de 25870m2 en Pinos de Alhaurín. UE PN-90, ordenanza apl...

0
0 reviews

Terreno en calle Huelva s/n

Malaga, Alhaurín de la Torre, Center, Calle Huelva s/n
138 000 €

Novedad! En venta solar en esquina en pleno centro de Alhaurín de la Torre, cerc...

0
0 reviews

Terreno en Pinos de Alhaurín

Malaga, Alhaurín de la Torre, Pines de Alhaurín, Pinos de Alhaurín
225 000 €

Si quieres iniciar ya la construcción de tu chalé independiente en Alhaurín de l...

0
0 reviews

Terreno en calle Rafael Quintana Rosado, 39

Malaga, Torremolinos, Center, Calle Rafael Quintana Rosado, 39
740 000 €

Se vende solar urbano en el centro de Torremolinos – Calle Rafael Quintana Rosad...

0
0 reviews

Terreno en Barrio Ayuntamiento

Malaga, Torremolinos, Center, Barrio Ayuntamiento
405 000 €

Oportunidad. Inversión de futuro. Parcela de terreno en el centro de torremolino...

0
0 reviews

Terreno en El Romeral-Peñón de Zapata

Malaga, Alhaurín de la Torre, El Romeral-Peñón de Zapata, El Romeral-Peñón de Zapata
512 995 €

¡Oportunidad única en El Romeral, Alhaurín de la Torre! ¿Estás buscando un terre...

0
0 reviews

Terreno en calle David Bowie s/n

Malaga, Alhaurín de la Torre, Capellanía - Retamar, Calle David Bowie s/n
178 000 €

En venta terreno urbanizable de 257 metros cuadrados ubicado en la prestigiosa z...

0
0 reviews
Call

We use our own and third-party cookies to analyze website usage and show you advertisements related to your preferences based on a profile created from your browsing habits (e.g., pages visited). More information. Do you accept cookies?