Spain Urban Spain Urban Malaga Urban Alhaurín de la Torre Terreno en Capellanía - Retamar

Terreno en Capellanía - Retamar

Malaga, Alhaurín de la Torre, Capellanía - Retamar, Capellanía - Retamar
245 000 €
Leave review
Urban Property type
351 m² Land area
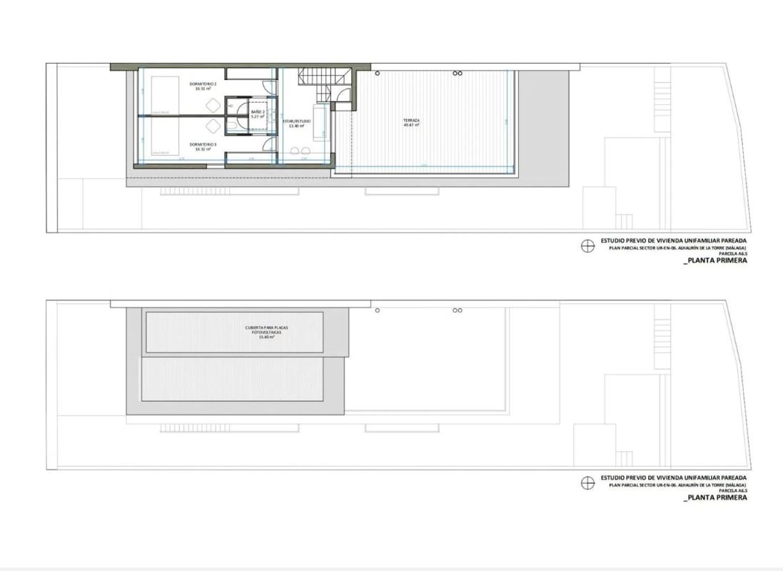
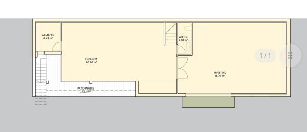
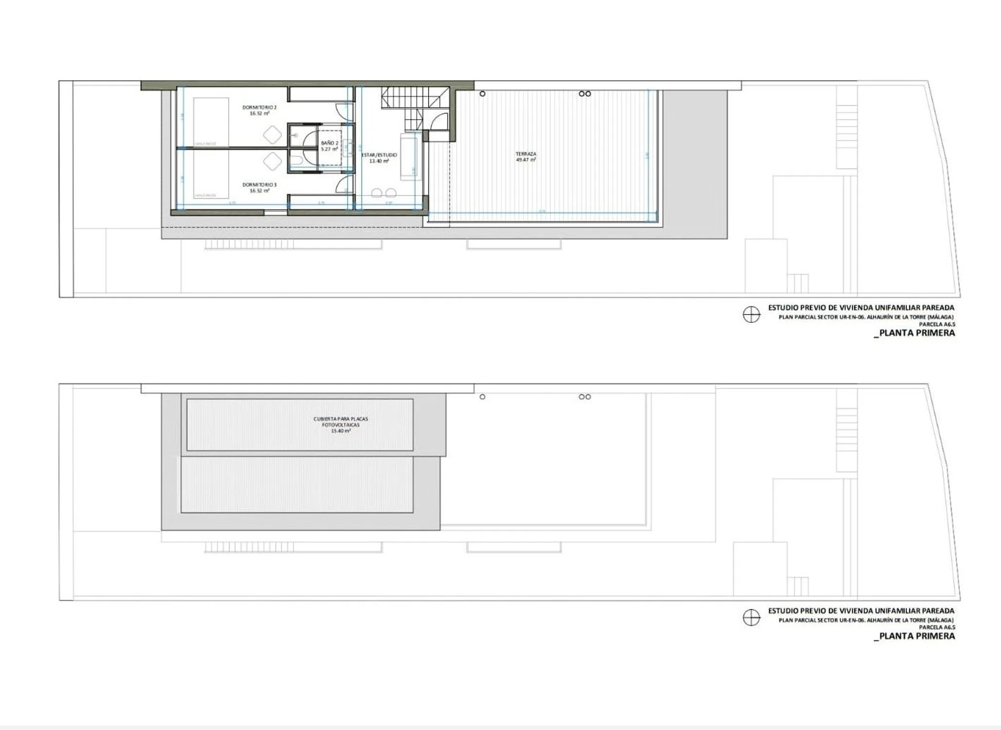
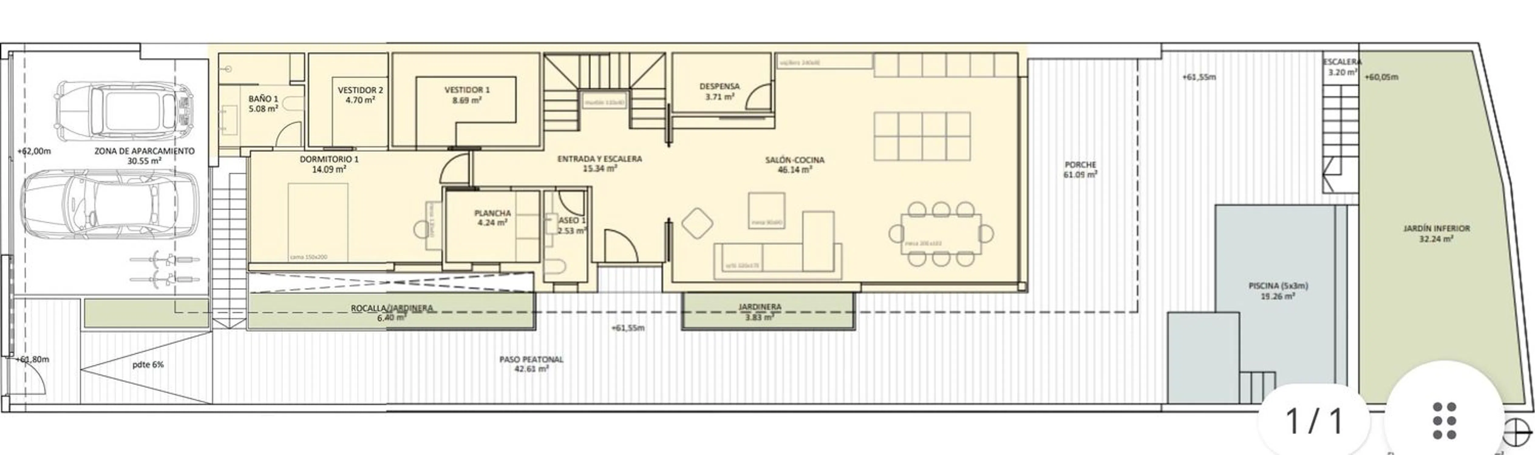
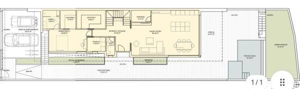
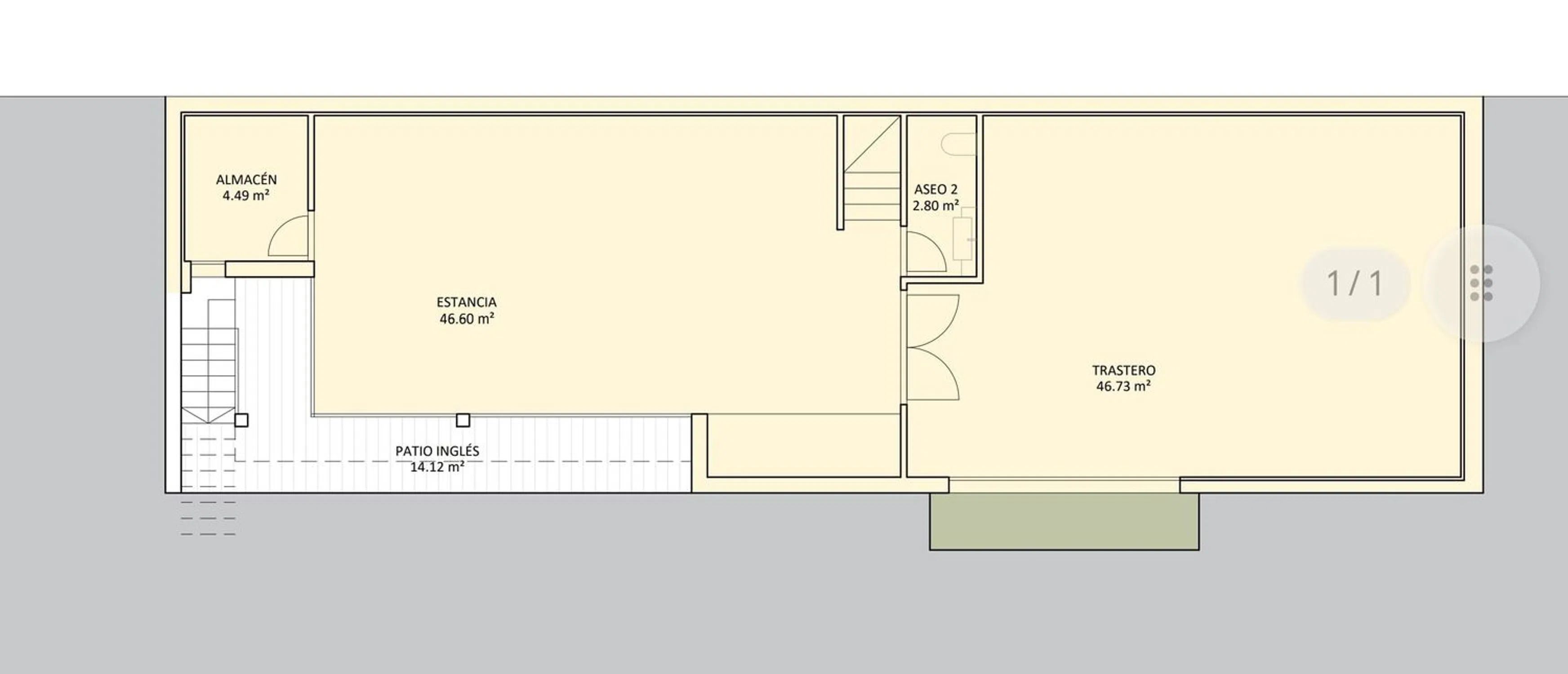
Descubre este magnífico solar urbanizable de 351 m², ideal para construir la casa de tus sueños. Con un proyecto de vivienda pareada ya aprobado y licencia abonada, puedes comenzar la construcción de inmediato. La superficie edificable de 280,58 m² permite un diseño contemporáneo que maximiza el confort y el uso del espacio. La parcela se orienta al sureste, lo que garantiza luminosidad durante todo el día. La fachada principal da a un parque, brindando un entorno natural y tranquilo, mientras que la parte trasera ofrece vistas despejadas que invitan a disfrutar del aire libre. El proyecto contempla una vivienda de salón, cocina y comedor de concepto integrado, 3 dormitorios y 4 baños, todo esto distribuidos en 207,67 m2 y además de un sótano con entrada independiente que contempla un área cerrada de 114,83 m2, ideal para personalizar según tus necesidades. Su zona exterior, se distribuye en aproximados 21,19 m2, incluyendo piscina, jardín, terraza y porche; es el lugar perfecto para disfrutar en familia. Cabe destacar, que a dicho proyecto aún le queda un restante edificable de: 34,90 m2. Ubicado en una zona en expansión, a solo 10 minutos del aeropuerto y 15 minutos del centro de Málaga, este terreno ofrece acceso a todos los servicios esenciales, comercios y vías de comunicación. ¡Comienza a construir el hogar de tus sueños!

Property characteristics

Complex information

  • Property type
    Urban

Property data

  • Property type
    Second hand

Surfaces

  • Land area
    351 m²

Facilities

Additional Features:

Building plot

Plans

Market price statistics for Terreno en Capellanía - Retamar

Map

Malaga, Alhaurín de la Torre, Capellanía - Retamar, Capellanía - Retamar Going to this location!
Leave a review about Terreno en Capellanía - Retamar
0
0 reviews
1
0% (0)
2
0% (0)
3
0% (0)
4
0% (0)
5
0% (0)
245 000 €
Contact advertiser

For more information contact the platform

REF: 241818

Reviews about Terreno en Capellanía - Retamar
Loading...

No reviews have been left for this object yet

Nearest properties

Explore nearby properties we've discovered in close proximity to this location

Terreno en venta en palo verde

Malaga, Alhaurín de la Torre, Pines de Alhaurín, palo verde
229 000 €

PRECIOSA FINCA de 8800m2 con casita y posibilidad de ampliación.Ubicada en Alhau...

0
0 reviews

Terreno en venta en calle Navío

Malaga, Alhaurín de la Torre, Capellanía - Retamar, Calle Navío
185 000 €

INMEJORABLE UBICACIÓN en la zona urbana de Retamar en Alhaurin de la torre.Cerca...

0
0 reviews

Terreno en venta en calle Mioporo s/n

Malaga, Málaga, Churriana, Calle Mioporo s/n
590 000 €

En venta en Málaga: una excelente parcela residencial de 756 m2 ubicada en un tr...

0
0 reviews

Terreno en venta en El Romeral-Peñón de Zapata

Malaga, Alhaurín de la Torre, El Romeral-Peñón de Zapata
40 000 €

Ubicados en una localidad con todos los servicios básicos necesarios, cerca de s...

0
0 reviews

Terreno en Platero - El Limón

Malaga, Alhaurín de la Torre, Platero - The Lemon, Platero - El Limón
350 000 €

**Terreno Urbano en Alhaurín de la Torre - ¡Tu Oportunidad de Construcción! ** D...

0
0 reviews

Terreno en El Romeral-Peñón de Zapata

Malaga, Alhaurín de la Torre, El Romeral-Peñón de Zapata, El Romeral-Peñón de Zapata
400 000 €

**Terreno Urbano en Alhaurín de la Torre - ¡Tu Oportunidad de Construcción! ** D...

0
0 reviews

Terreno en calle Timón

Malaga, Alhaurín de la Torre, Capellanía - Retamar, Calle Timón
169 680 €

Costa del Sol Building vende parcela de 256 m2 en Urbanización Retamar. Ideal pa...

0
0 reviews

Terreno en calle Argelia, 20

Malaga, Málaga, Churriana, Calle Argelia, 20
200 000 €

Particular vende parcela llana de 351 m2 con licencia de obra en trámite. Operac...

0
0 reviews

Terreno en pasaje General Duque de Aveiro, 7 -3

Malaga, Málaga, Churriana, Pasaje General Duque de Aveiro, 7 -3
350 000 €

¡Terreno urbano consolidado en venta en Churriana – Málaga! Ideal para construir...

0
0 reviews

We use our own and third-party cookies to analyze website usage and show you advertisements related to your preferences based on a profile created from your browsing habits (e.g., pages visited). More information. Do you accept cookies?