Spain Urbanizable Spain Urbanizable Malaga Urbanizable Benahavís Terreno en Los Arqueros-Puerto del Almendro

Terreno en Los Arqueros-Puerto del Almendro

Malaga, Benahavís, Los Arqueros-Port of the Almendro, Los Arqueros-Puerto del Almendro
799 000 €
Leave review
Urbanizable Property type
1 000 m² Land area
Almond Trees Crops
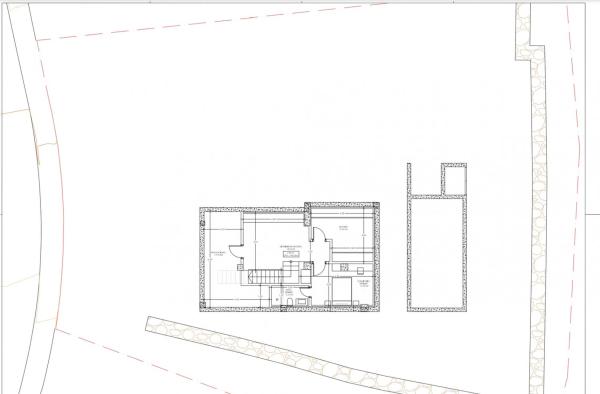
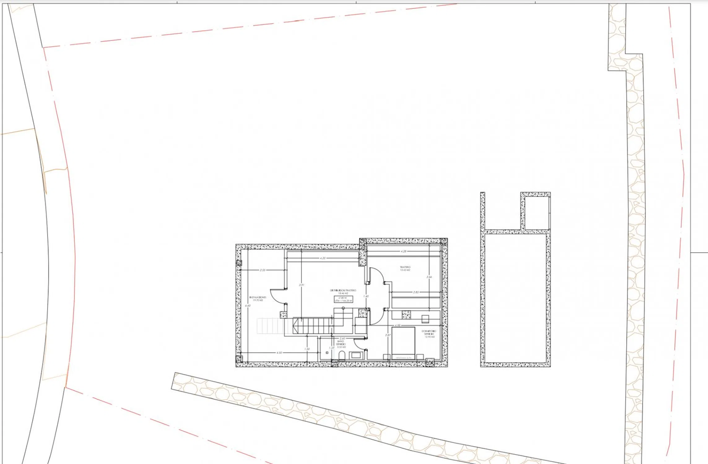
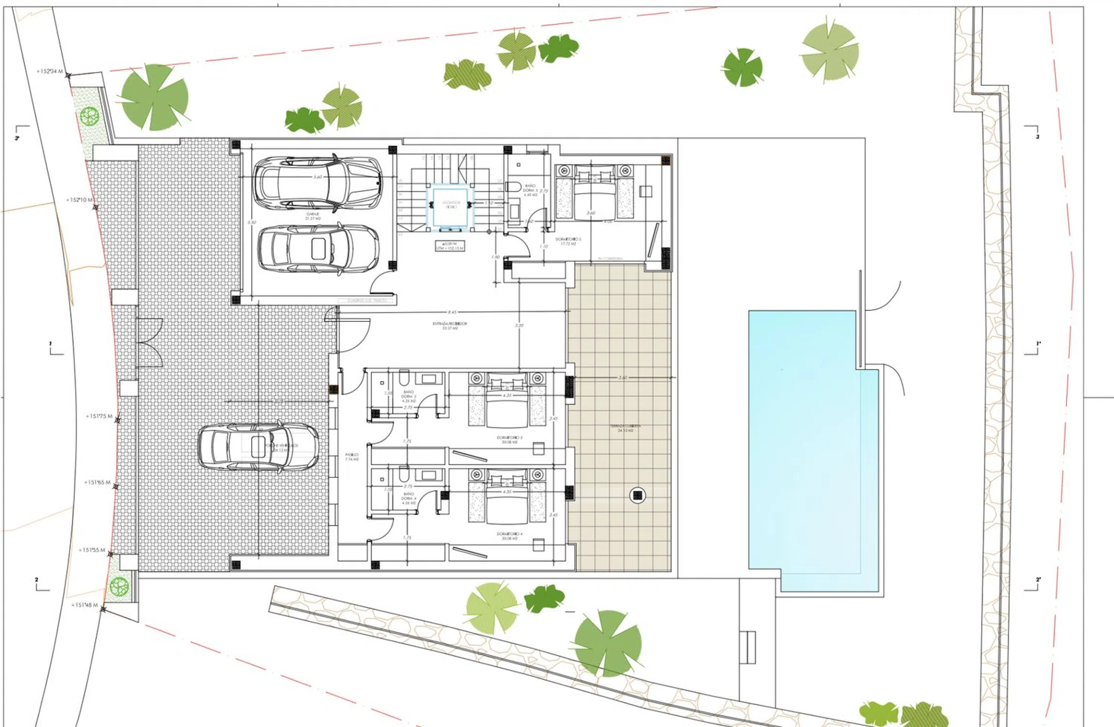
Terreno Urbano en la Prestigiosa Comunidad Cerrada de Los Arqueros, Benahavís! Ubicado en una de las zonas más exclusivas de la Costa del Sol, este terreno de 1.000 m² ofrece una oportunidad única para construir la casa de tus sueños, incluyendo un proyecto moderno en el precio. Características principales: Ubicación: Benahavís es conocido por su impresionante entorno natural, su proximidad a campos de golf de renombre mundial y su fácil acceso a Marbella y Puerto Banús, a solo 15 minutos en coche. Entorno natural: Rodeado de montañas, este terreno ofrece vistas espectaculares, atardeceres impresionantes, privacidad y un ambiente exclusivo y seguro. Calidad de vida: Benahavís es famoso por sus restaurantes de alta gama y su vibrante comunidad internacional. Potencial del terreno: El terreno está clasificado como urbano, con todos los servicios necesarios (agua, electricidad y alcantarillado) disponibles, junto con permisos de construcción y un proyecto existente. Perfecto para construir una casa de lujo con piscina y terrazas panorámicas. Este terreno es una verdadera joya para aquellos que buscan una vida de calidad en una ubicación prestigiosa de la Costa del Sol.

Property characteristics

Complex information

  • Property type
    Urbanizable

Property data

  • Property type
    Second hand

Surfaces

  • Land area
    1 000 m²

Base

  • Crops
    Almond Trees

Facilities

Supply:

Sewage System

Cultivation:

Food cultivation

Plans

Market price statistics for Terreno en Los Arqueros-Puerto del Almendro

Map

Malaga, Benahavís, Los Arqueros-Port of the Almendro, Los Arqueros-Puerto del Almendro Going to this location!
Leave a review about Terreno en Los Arqueros-Puerto del Almendro
0
0 reviews
1
0% (0)
2
0% (0)
3
0% (0)
4
0% (0)
5
0% (0)
Marbella Homes To Love
799 000 €
Contact advertiser

For more information contact the platform

REF: 242374

Reviews about Terreno en Los Arqueros-Puerto del Almendro
Loading...

No reviews have been left for this object yet

Nearest properties

Explore nearby properties we've discovered in close proximity to this location

Terreno en venta en San Pedro Pueblo

Malaga, Marbella, San Pedro de Alcántara
975 000 €

Nueva parcela de 1.300m2 a la venta en la cotizada zona de Altavista Baja, cerca...

0
0 reviews

Terreno en La Zagaleta

Malaga, Benahavís, La Zagaleta, La Zagaleta
3 500 000 €

Presentamos este enorme terreno en La Zagaleta, con un proyecto que refleja una...

0
0 reviews

Terreno en La Zagaleta

Malaga, Benahavís, La Zagaleta, La Zagaleta
5 500 000 €

Esta es una excelente oportunidad para adquirir una parcela verdaderamente espec...

0
0 reviews

Terreno en Barrio Guadalmina Alta

Malaga, Marbella, San Pedro de Alcántara, Barrio Guadalmina Alta
3 150 000 €

Se pone a la venta una amplia parcela urbana de 15,000 m² ubicada en la exclusiv...

0
0 reviews

Terreno en calle Isabel Allende

Malaga, Benahavís, Montemayor-Marbella Club, Calle Isabel Allende
295 000 €

Una oportunidad excepcional para adquirir una amplia parcela residencial en la p...

0
0 reviews

Terreno en calle Gladiolo, 19 -1

Malaga, Estepona, Benamara - Atalaya, Calle Gladiolo, 19 -1
3 150 000 €

Se trata de dos parcelas localizadas en segunda línea de playa, en el Paraiso Ba...

0
0 reviews

Terreno en calle Toledo, 132

Malaga, Marbella, San Pedro de Alcántara, Calle Toledo, 132
400 000 €

Parcela urbanizable, localizada en zona tranquila de SanPedro de alcantara, cerc...

0
0 reviews

Terreno en C. Clarin

Malaga, Estepona, Benamara - Atalaya, C. Clarin
550 000 €

Parcela prestigiosa Con una ubicación excepcional, la parcela de 822.13m2 está b...

0
0 reviews

Terreno en Montemayor-Marbella Club

Malaga, Benahavís, Montemayor-Marbella Club, Montemayor-Marbella Club
6 400 000 €

Una oportunidad única de poseer una villa de lujo totalmente terminada en una pa...

0
0 reviews
Call

We use our own and third-party cookies to analyze website usage and show you advertisements related to your preferences based on a profile created from your browsing habits (e.g., pages visited). More information. Do you accept cookies?