Terreno en calle el Olmedo, 30 p

Malaga, Benalmádena, El Higuerón - Capellanía, Calle el Olmedo, 30 P
1 147 000 €
Leave review
Urbanizable Property type
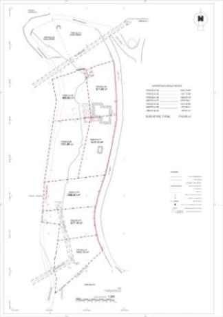
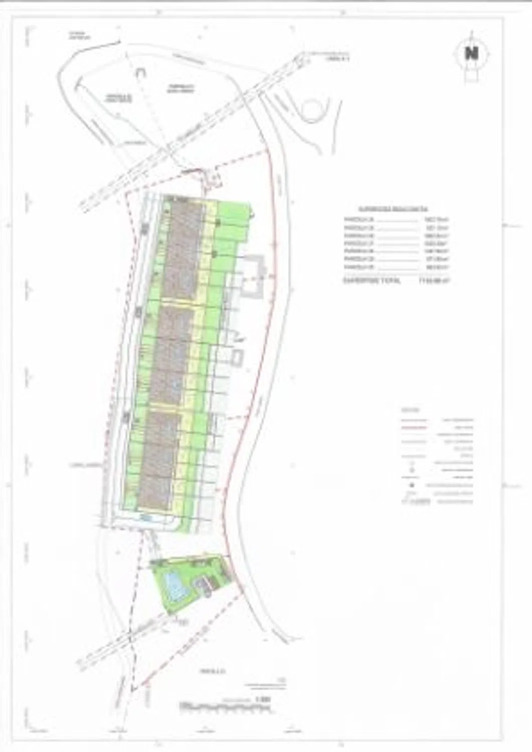
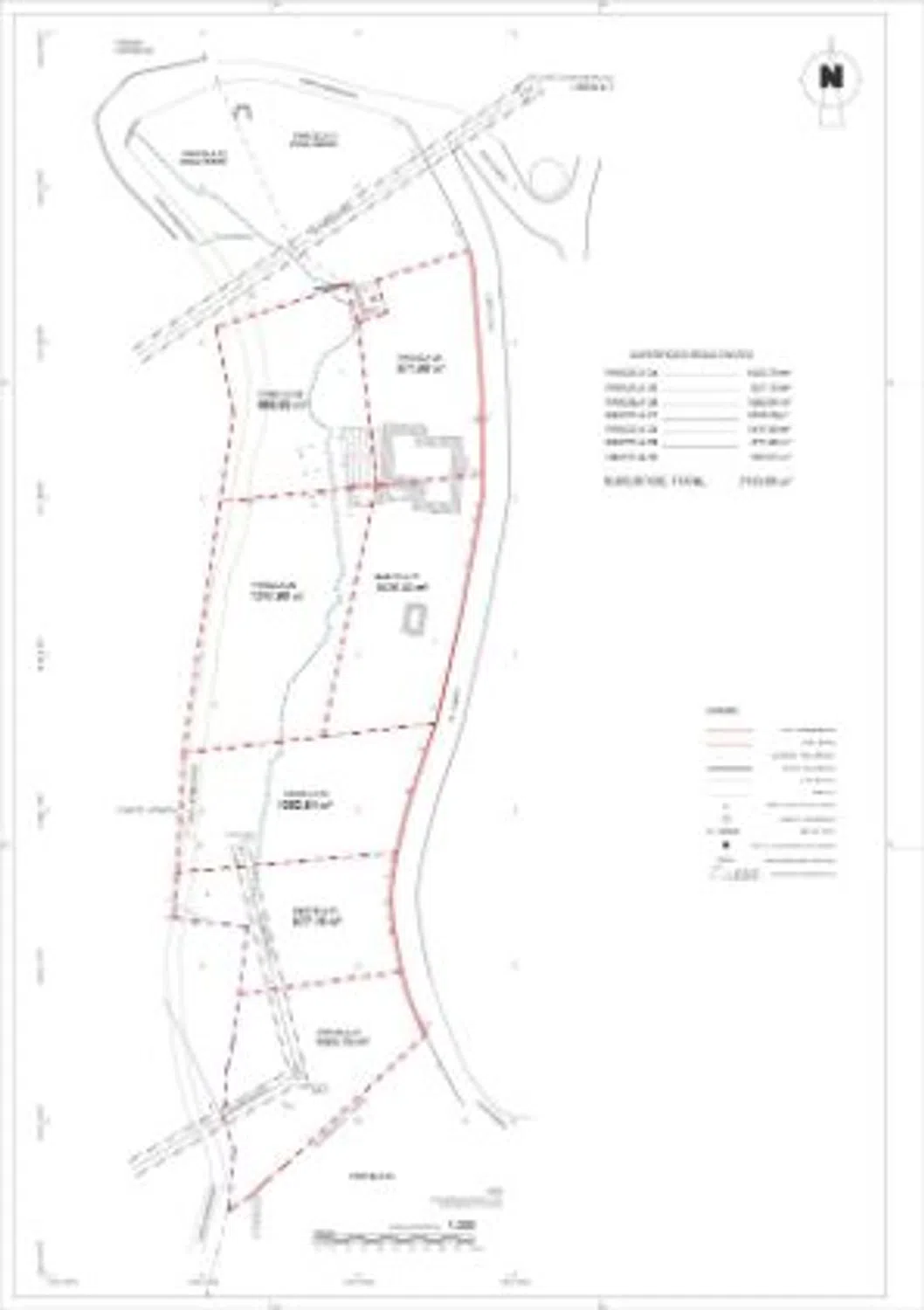
7 133 m² Land area
2 Buildable plots
2618 Buildability
Gilmar Real Estate le ofrece esta magnífica oportunidad de inversión en el corazón de Benalmádena Pueblo, una de las zonas más exclusivas y demandadas de la Costa del Sol. Este solar urbano de 7.133 m², ofrece una edificabilidad de 2.618 m², con capacidad para desarrollar 18 chalets adosados y pareados. Su ubicación privilegiada garantiza unas vistas espectaculares al mar y un entorno de tranquilidad incomparable. Ideal para promotores y constructores que buscan un proyecto único y con gran potencial de rentabilidad. Benalmádena Pueblo es una de las tres áreas principales que componen el municipio de Benalmádena, junto con Arroyo de la Miel y Benalmádena Costa. Este encantador enclave combina el encanto de un pueblo andaluz tradicional con una oferta de servicios moderna y de calidad. Calles empedradas, fachadas blancas y balcones llenos de flores conforman un entorno pintoresco y acogedor. La zona es conocida por su tranquilidad, pero también por su cercanía a las mejores playas, campos de golf y el animado Puerto Marina. Con más de 40 años de experiencia, GILMAR es líder en el sector inmobiliario, ayudando a miles de clientes desde 1983 a encontrar la casa de sus sueños o la inversión perfecta. Nuestra dedicación, profesionalidad y conocimiento del mercado nos convierten en el socio ideal para cualquier operación inmobiliaria. Si deseas más información sobre este solar urbano, no dudes en ponerte en contacto con nuestro equipo en la oficina de Benalmádena, ubicada en Calle los Girasoles, 4.

Property characteristics

Complex information

  • Property type
    Urbanizable

Property data

  • Property type
    Second hand

Surfaces

  • Land area
    7 133 m²

Base

  • Minimum sale plot
    7 133 m²
  • Urban land
    Consolidated (Land)
  • Buildable plots
    2
  • Buildability
    2618

Facilities

Additional Features:

Building plot

Market price statistics for Terreno en calle el Olmedo, 30 p

Map

Malaga, Benalmádena, El Higuerón - Capellanía, Calle el Olmedo, 30 P Going to this location!
Leave a review about Terreno en calle el Olmedo, 30 p
0
0 reviews
1
0% (0)
2
0% (0)
3
0% (0)
4
0% (0)
5
0% (0)
Gilmar Benálmadena
1 147 000 €
Contact advertiser

For more information contact the platform

REF: 366653

Reviews about Terreno en calle el Olmedo, 30 p
Loading...

No reviews have been left for this object yet

Nearest properties

Explore nearby properties we've discovered in close proximity to this location

Terreno en venta en La Cala Golf - Lagar Martell

Malaga, Mijas, La Cala Golf - Lagar Martell
300 000 €

Oportunidad única en La Cala Golf: ¡Construya la casa de sus sueños en el paraís...

0
0 reviews

Terreno en Tn Ur-9

Malaga, Fuengirola, Torreblanca del Sol, TN UR-9
165 000 €

UBICACIÓN PRIVILEGIADA EN UNA ZONA TRANQUILA, PRIVADA Y EN PLENO DESARROLLO URBA...

0
0 reviews

Terreno en la alqueria

Malaga, Mijas, Mijas Village, La Alquería
162 000 €

¡ OPORTUNIDAD ÚNICA INVERSORES – VENTA URGENTE POR MOTIVOS DE SALUD ! EN VENTA:...

0
0 reviews

Terreno en Pinos de Alhaurín

Malaga, Alhaurín de la Torre, Pines de Alhaurín, Pinos de Alhaurín
225 000 €

Si quieres iniciar ya la construcción de tu chalé independiente en Alhaurín de l...

0
0 reviews

Terreno en calle Robledo s/n

Malaga, Benalmádena, Torrequebrada, Calle Robledo s/n
450 000 €

¡Oportunidad única de adquirir un terreno en venta, ideal para construir la vill...

0
0 reviews

Terreno en avenida Rocas Blancas

Malaga, Benalmádena, Montealto, Avenida Rocas Blancas
895 000 €

Se presenta una oportunidad única para invertir en un terreno privilegiado en el...

0
0 reviews

Terreno en Barrio Mijas Pueblo

Malaga, Mijas, Mijas Village, Barrio Mijas Pueblo
165 000 €

Este terreno urbano se encuentra ubicado dentro de una urbanización privada en M...

0
0 reviews

Terreno en calle Alcaparras

Malaga, Mijas, Mijas Village, Calle Alcaparras
1 700 000 €

Se vende Parcela en Mijas, el suelo esta ubicado en el termino municipal de Mija...

0
0 reviews

Terreno en calle los Bancales

Malaga, Benalmádena, Stream of Honey, Calle los Bancales
2 100 000 €

Perfecto terreno de 1403 metros con diversas opciones de construcción que van de...

0
0 reviews

We use our own and third-party cookies to analyze website usage and show you advertisements related to your preferences based on a profile created from your browsing habits (e.g., pages visited). More information. Do you accept cookies?