Terreno en Torremuelle

Malaga, Benalmádena, Torremuelle, Torremuelle
325 000 €
Leave review
Urbanizable Property type
1 000 m² Land area
Residential Use of lot
En la residencial y tranquila zona de La Perla, en Benalmádena costa, puedes tener la casa que siempre has querido, ya que esta magnifica parcela se vende con licencia y proyecto de una maravillosa villa independiente de concepto moderno, con todas las comodidades que puedes imaginar. Además la propiedad posee los permisos para la quita de algunos arboles, para abrir las vistas al mar. Puede consultarnos cualquier duda o solicitar una visita. En cumplimiento del Decreto de la Junta de Andalucía 21/2005 del 11 de octubre, informamos al cliente que los gastos notariales, registrales, itp y otros inherentes a la compra no están incluidos en el precio. El consumidor tiene derecho a recibir una copia del correspondiente documento informativo abreviado de la vivienda.

Property characteristics

Complex information

  • Property type
    Urbanizable

Property data

  • Property type
    Second hand

Surfaces

  • Land area
    1 000 m²

Base

  • Use of lot
    Residential

Facilities

Views:

Sea Views

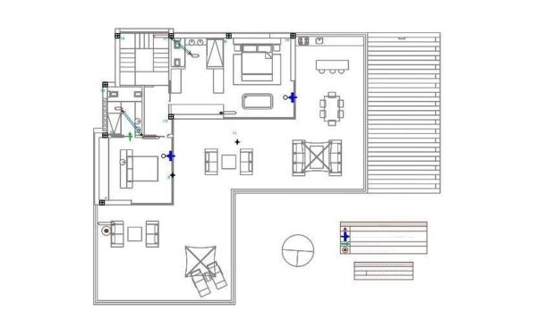
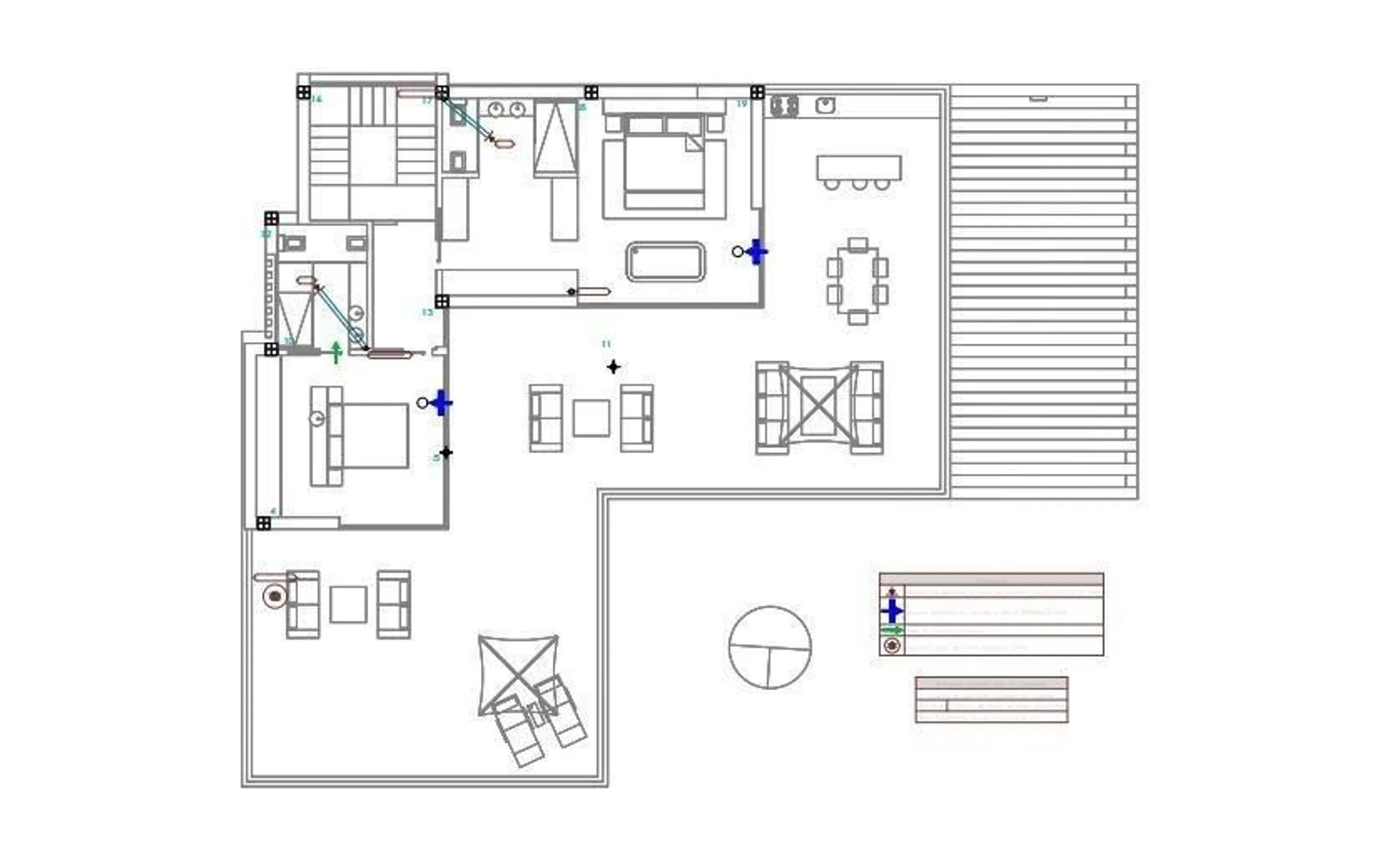
Plans

Market price statistics for Terreno en Torremuelle

Map

Malaga, Benalmádena, Torremuelle, Torremuelle Going to this location!
Leave a review about Terreno en Torremuelle
0
0 reviews
1
0% (0)
2
0% (0)
3
0% (0)
4
0% (0)
5
0% (0)
MAR REAL ESTATE BENALMÁDENA
325 000 €
Contact advertiser

For more information contact the platform

REF: 245217

Reviews about Terreno en Torremuelle
Loading...

No reviews have been left for this object yet

Nearest properties

Explore nearby properties we've discovered in close proximity to this location

Terreno en venta en La Cala Golf - Lagar Martell

Malaga, Mijas, La Cala Golf - Lagar Martell
300 000 €

Oportunidad única en La Cala Golf: ¡Construya la casa de sus sueños en el paraís...

0
0 reviews

Terreno en Tn Ur-9

Malaga, Fuengirola, Torreblanca del Sol, TN UR-9
165 000 €

UBICACIÓN PRIVILEGIADA EN UNA ZONA TRANQUILA, PRIVADA Y EN PLENO DESARROLLO URBA...

0
0 reviews

Terreno en la alqueria

Malaga, Mijas, Mijas Village, La Alquería
162 000 €

¡ OPORTUNIDAD ÚNICA INVERSORES – VENTA URGENTE POR MOTIVOS DE SALUD ! EN VENTA:...

0
0 reviews

Terreno en calle Robledo s/n

Malaga, Benalmádena, Torrequebrada, Calle Robledo s/n
450 000 €

¡Oportunidad única de adquirir un terreno en venta, ideal para construir la vill...

0
0 reviews

Terreno en avenida Rocas Blancas

Malaga, Benalmádena, Montealto, Avenida Rocas Blancas
895 000 €

Se presenta una oportunidad única para invertir en un terreno privilegiado en el...

0
0 reviews

Terreno en Barrio Mijas Pueblo

Malaga, Mijas, Mijas Village, Barrio Mijas Pueblo
165 000 €

Este terreno urbano se encuentra ubicado dentro de una urbanización privada en M...

0
0 reviews

Terreno en calle Alcaparras

Malaga, Mijas, Mijas Village, Calle Alcaparras
1 700 000 €

Se vende Parcela en Mijas, el suelo esta ubicado en el termino municipal de Mija...

0
0 reviews

Terreno en calle los Bancales

Malaga, Benalmádena, Stream of Honey, Calle los Bancales
2 100 000 €

Perfecto terreno de 1403 metros con diversas opciones de construcción que van de...

0
0 reviews

Terreno en calle Estocolmo, 2 -4

Malaga, Benalmádena, El Higuerón - Capellanía, Calle Estocolmo, 2 -4
650 000 €

OPORTUNIDAD DE INVERSIÓN ÚNICA en Benalmádena Costa. SITUADA en La Capellanía j...

0
0 reviews

We use our own and third-party cookies to analyze website usage and show you advertisements related to your preferences based on a profile created from your browsing habits (e.g., pages visited). More information. Do you accept cookies?