Spain Urban Spain Urban Malaga Urban Benalmádena Terreno en avenida del Bierzo s/n

Terreno en avenida del Bierzo s/n

Malaga, Benalmádena, Santangelo, Avenida del Bierzo s/n
312 500 €
Leave review
Urban Property type
463 m² Land area
2 Buildable plots
201 Buildability
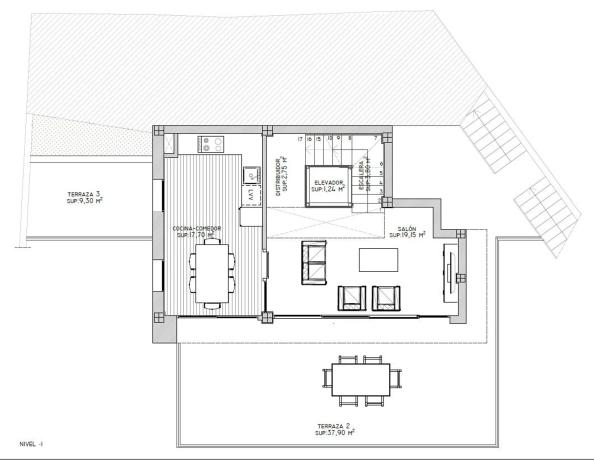
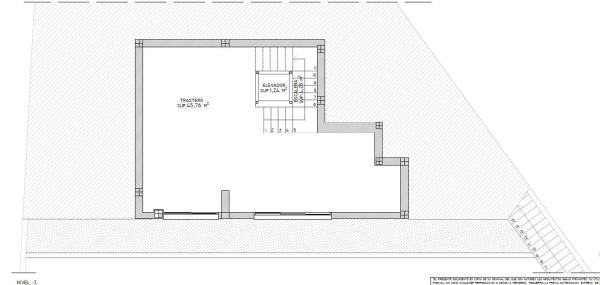
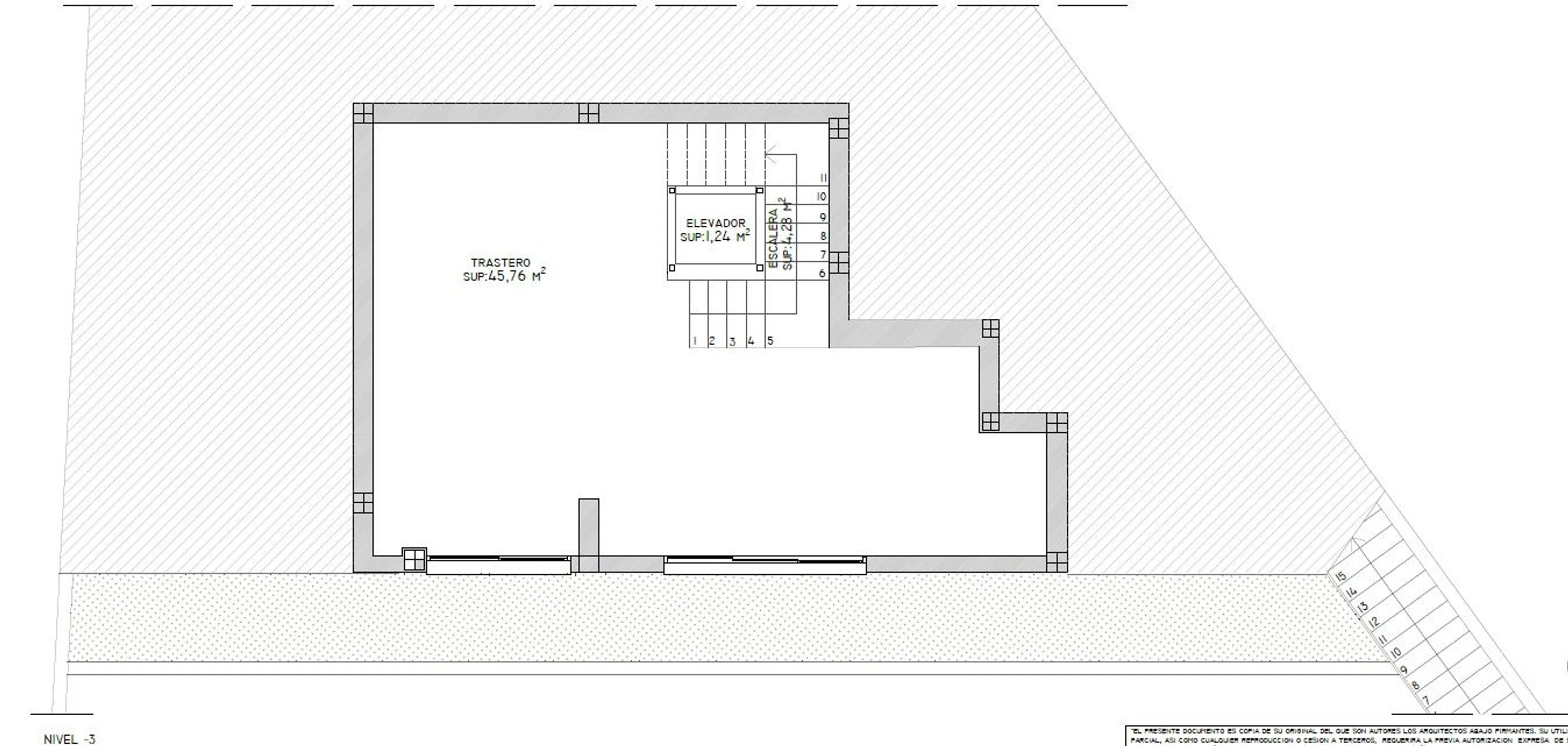
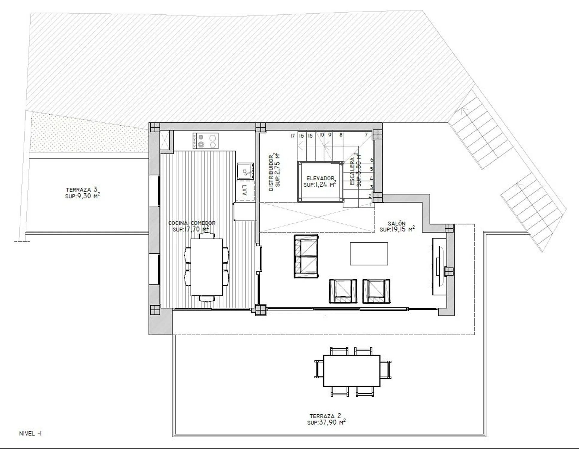
Parcela de 463m2 en Benalmádena, frontal al mar con vistas abiertas y despejadas con orientación sureste. Esta oportunidad es muy interesante ya que la parcela al este no tiene vecino, es decir no colinda con ninguna otra parcela, además cuenta con licencia de obra y proyecto listo para empezar a construir una villa totalmente independiente de 201m2 + 94m2 de terrazas. El diseño del proyecto ha sido muy pensado y estudiado para maximizar los espacios, distribución, ubicación de la parcela, vistas, orientación etc. (mejor ver proyecto). Les informamos que nuestros honorarios de agencia ya están incluidos en el precio de venta, por lo cual no debe abonar ningún tipo de gasto por gestión ni asesoramiento inmobiliario. No están incluidos en el precio publicitado los gastos de notaria y registro, los impuestos sujetos a la transmisión como el ITP para propiedades de segunda mano o si es obra nueva, IVA y AJD. Los datos expuestos son meramente informativos y no tienen valor contractual, la oferta queda sujeta a errores, cambios de precio, disponibilidad y/o retirada del mercado sin aviso previo.

Property characteristics

Complex information

  • Property type
    Urban

Property data

  • Property type
    Second hand

Surfaces

  • Land area
    463 m²

Base

  • Minimum sale plot
    463 m²
  • Buildable plots
    2
  • Buildability
    201

Market price statistics for Terreno en avenida del Bierzo s/n

Map

Malaga, Benalmádena, Santangelo, Avenida del Bierzo s/n Going to this location!
Leave a review about Terreno en avenida del Bierzo s/n
0
0 reviews
1
0% (0)
2
0% (0)
3
0% (0)
4
0% (0)
5
0% (0)
INMOBILIARIA ACM
312 500 €
Contact advertiser

For more information contact the platform

REF: 242149

Reviews about Terreno en avenida del Bierzo s/n
Loading...

No reviews have been left for this object yet

Nearest properties

Explore nearby properties we've discovered in close proximity to this location

Terreno en venta en Urbanizacion Torreblanca del Sol

Malaga, Fuengirola, Los Pacos, Urbanizacion Torreblanca del Sol
175 000 €

¡Oportunidad única de inversión en la Costa del Sol! Se venden 6 Terrenos ubicad...

0
0 reviews

Terreno en venta en calle Navío

Malaga, Alhaurín de la Torre, Capellanía - Retamar, Calle Navío
185 000 €

INMEJORABLE UBICACIÓN en la zona urbana de Retamar en Alhaurin de la torre.Cerca...

0
0 reviews

Terreno en venta en calle Mioporo s/n

Malaga, Málaga, Churriana, Calle Mioporo s/n
590 000 €

En venta en Málaga: una excelente parcela residencial de 756 m2 ubicada en un tr...

0
0 reviews

Terreno en venta en calle Veleta s/n

Malaga, Benalmádena, Montealto, Calle Veleta s/n
3 000 000 €

Este terreno se encuentra en Calle Veleta, 29631, Benalmádena, Málaga. Es un sol...

0
0 reviews

Terreno en Platero - El Limón

Malaga, Alhaurín de la Torre, Platero - The Lemon, Platero - El Limón
350 000 €

**Terreno Urbano en Alhaurín de la Torre - ¡Tu Oportunidad de Construcción! ** D...

0
0 reviews

Terreno en avenida Esmeralda, 14

Malaga, Benalmádena, Stream of Honey, Avenida Esmeralda, 14
420 000 €

SOLAR CON PROYECTO Y LICENCIA EN TRAMITE Si quieres construir tu casa a pocos me...

0
0 reviews

Terreno en calle las Palomas, 11

Malaga, Fuengirola, Torreblanca del Sol, Calle las Palomas, 11
185 000 €

Espectacular solar de 436 m2 con vista lateral al mar.

0
0 reviews

Terreno en calle Pensamiento, 3

Malaga, Benalmádena, Benalmádena Village, Calle Pensamiento, 3
1 530 000 €

Oportunidad Exclusiva para Inversores en la Costa del Sol. Descubre una oportuni...

0
0 reviews

Terreno en calle Jilguero

Malaga, Fuengirola, Torreblanca del Sol, Calle Jilguero
2 150 000 €

Parcela urbana en venta en Urb. Torreblanca del Sol, Fuengirola (Málaga). Tiene...

0
0 reviews
Call

We use our own and third-party cookies to analyze website usage and show you advertisements related to your preferences based on a profile created from your browsing habits (e.g., pages visited). More information. Do you accept cookies?