Terreno en calle Jabea

Malaga, Benalmádena, Torrequebrada, Calle Jabea
305 263 €
Leave review
Urban Property type
603 m² Land area
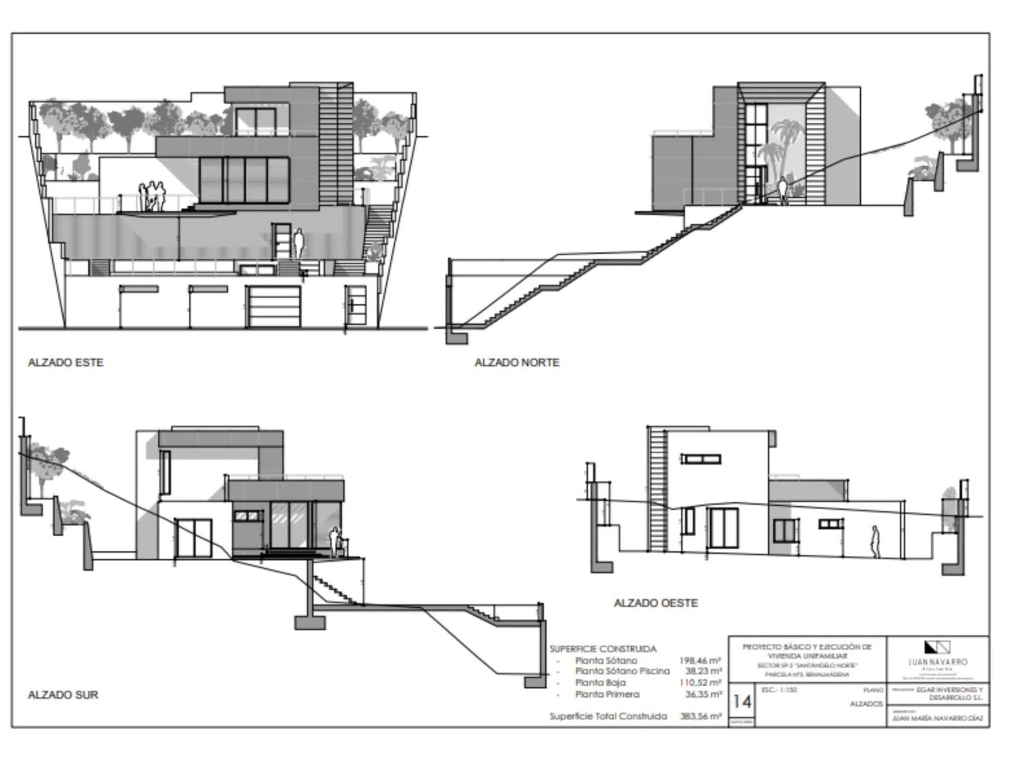
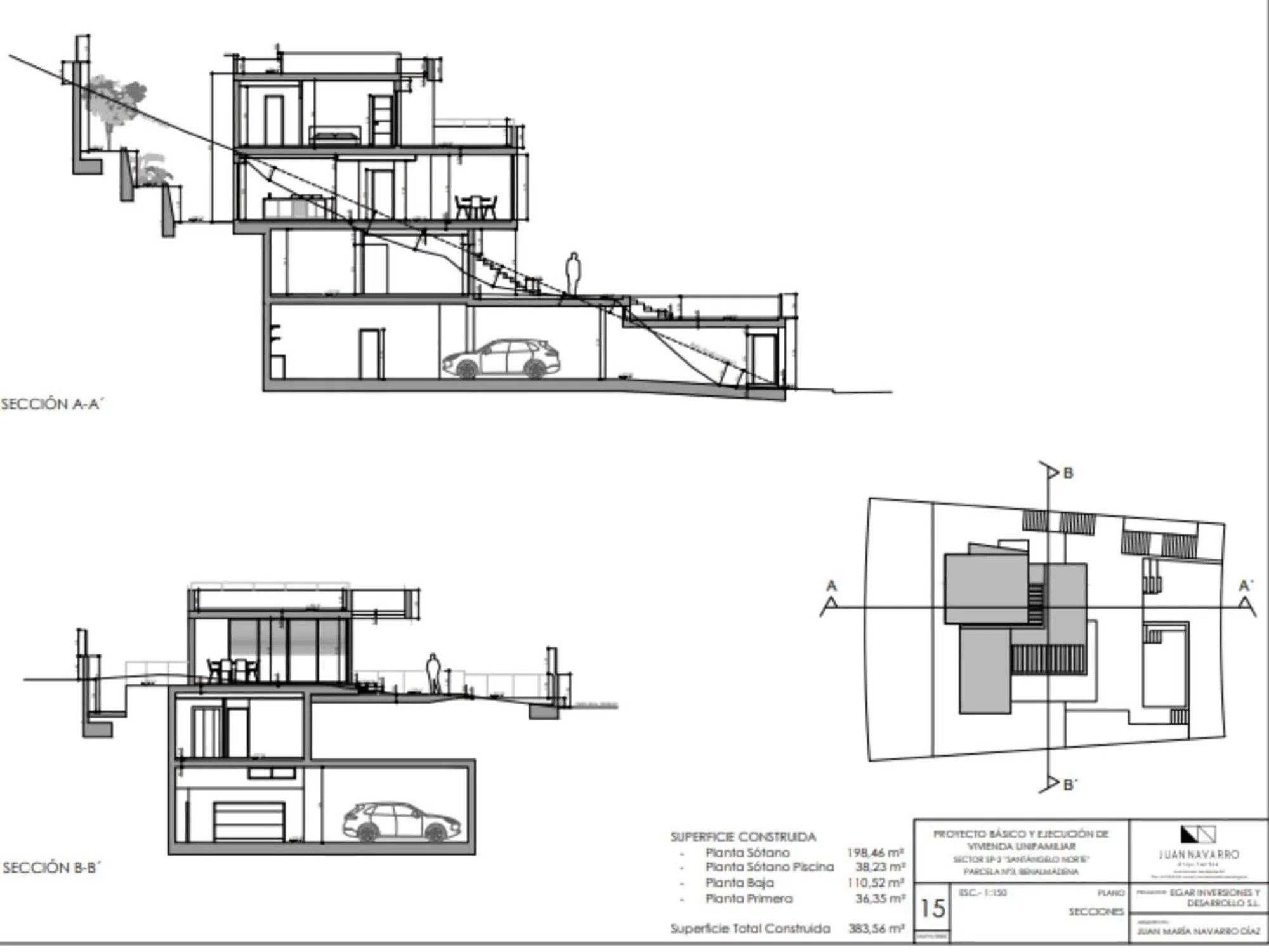
¡Oportunidad única! Se vende parcela urbanizable de 603 m² en Benalmádena, Santangelo, con orientación sureste que garantiza una excelente iluminación natural durante todo el día. La parcela cuenta con proyecto arquitectónico y licencia urbanística aprobada, lo que permite comenzar la construcción de forma inmediata. La superficie edificable es de 390 m², ideal para una vivienda unifamiliar de alto standing. Uno de sus mayores atractivos es que detrás de la parcela no se puede construir, lo que ofrece una conexión directa con la naturaleza, tranquilidad absoluta y privacidad. Además, las impresionantes vistas al mar convierten este terreno en una joya difícil de igualar. Dispone de acceso por vía urbana, lo que facilita todas las gestiones y el día a día una vez construida la vivienda. Una oportunidad perfecta tanto para promotores como para particulares que sueñan con construir su hogar en un entorno privilegiado. Si desea más información o concertar una visita no dude en contactarnos. Le informamos que los horarios profesionales de nuestra agencia ya están incluidos en el precio de la venta, por lo que no debe pagar ningún tipo de gastos de gestión o asesoramiento inmobiliario. En cumplimiento del decreto de la Junta de Andalucía 218-2005 del 11 de octubre, se informa a los clientes que los gastos notariales, registrales e IVA. , no están incluidos en el precio. Le recordamos que como consumidor tiene derecho a que se le informe y entregue la documentación informativa que corresponda, según el caso, en base a lo dispuesto en el " Decreto 218/05 de 11 de octubre que regula el Reglamento de Información al Consumidor en la compra-venta y arrendamiento de viviendas en Andalucía. " La información proporcionada es orientativa, no vinculante y no tiene valor contractual. Dicha información puede haber sufrido modificaciones que aún no se han incorporado. Le sugerimos que se ponga en contacto con nosotros para obtener la información más reciente y/ o confirmar la información aquí expuesta.

Property characteristics

Complex information

  • Property type
    Urban

Property data

  • Property type
    Second hand

Surfaces

  • Land area
    603 m²

Base

Facilities

Views:

Sea Views

Additional Features:

Building plot

Plans

Market price statistics for Terreno en calle Jabea

Map

Malaga, Benalmádena, Torrequebrada, Calle Jabea Going to this location!
Leave a review about Terreno en calle Jabea
0
0 reviews
1
0% (0)
2
0% (0)
3
0% (0)
4
0% (0)
5
0% (0)
Esfera Estates
305 263 €
Contact advertiser

For more information contact the platform

REF: 242213

Reviews about Terreno en calle Jabea
Loading...

No reviews have been left for this object yet

Nearest properties

Explore nearby properties we've discovered in close proximity to this location

Terreno en venta en calle Navío

Malaga, Alhaurín de la Torre, Capellanía - Retamar, Calle Navío
185 000 €

INMEJORABLE UBICACIÓN en la zona urbana de Retamar en Alhaurin de la torre.Cerca...

0
0 reviews

Terreno en venta en calle Mioporo s/n

Malaga, Málaga, Churriana, Calle Mioporo s/n
590 000 €

En venta en Málaga: una excelente parcela residencial de 756 m2 ubicada en un tr...

0
0 reviews

Terreno en venta en calle Veleta s/n

Malaga, Benalmádena, Montealto, Calle Veleta s/n
3 000 000 €

Este terreno se encuentra en Calle Veleta, 29631, Benalmádena, Málaga. Es un sol...

0
0 reviews

Terreno en Platero - El Limón

Malaga, Alhaurín de la Torre, Platero - The Lemon, Platero - El Limón
350 000 €

**Terreno Urbano en Alhaurín de la Torre - ¡Tu Oportunidad de Construcción! ** D...

0
0 reviews

Terreno en avenida Esmeralda, 14

Malaga, Benalmádena, Stream of Honey, Avenida Esmeralda, 14
420 000 €

SOLAR CON PROYECTO Y LICENCIA EN TRAMITE Si quieres construir tu casa a pocos me...

0
0 reviews

Terreno en calle las Palomas, 11

Malaga, Fuengirola, Torreblanca del Sol, Calle las Palomas, 11
185 000 €

Espectacular solar de 436 m2 con vista lateral al mar.

0
0 reviews

Terreno en calle Timón

Malaga, Alhaurín de la Torre, Capellanía - Retamar, Calle Timón
169 680 €

Costa del Sol Building vende parcela de 256 m2 en Urbanización Retamar. Ideal pa...

0
0 reviews

Terreno en calle Argelia, 20

Malaga, Málaga, Churriana, Calle Argelia, 20
200 000 €

Particular vende parcela llana de 351 m2 con licencia de obra en trámite. Operac...

0
0 reviews

Terreno en calle Pensamiento, 3

Malaga, Benalmádena, Benalmádena Village, Calle Pensamiento, 3
1 530 000 €

Oportunidad Exclusiva para Inversores en la Costa del Sol. Descubre una oportuni...

0
0 reviews
Call

We use our own and third-party cookies to analyze website usage and show you advertisements related to your preferences based on a profile created from your browsing habits (e.g., pages visited). More information. Do you accept cookies?