Terreno en calle Velarde

Malaga, Benalmádena, Stream of Honey, Calle Velarde
600 000 €
Leave review
Urban Property type
394 m² Land area
Residential Use of lot
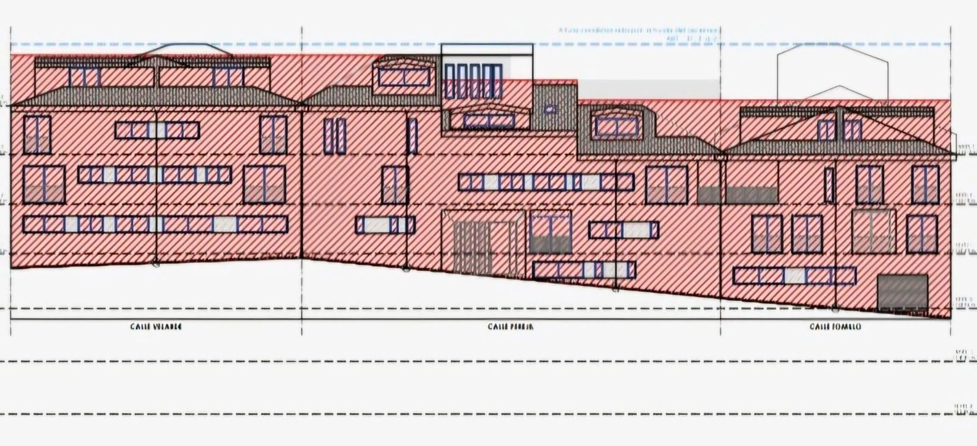
¡Oportunidad única de inversión en Benalmádena! Te presentamos este suelo urbano con un enorme potencial en la zona residencial de Arroyo de la Miel, Benalmádena. Con una superficie de 394,72 m2 y fachadas a varias calles, este terreno ofrece un lienzo en blanco para desarrollar un proyecto inmobiliario de gran éxito. Características destacadas: Ubicación privilegiada: Situado en una zona residencial consolidada de Benalmádena, con todos los servicios a su alcance y a poca distancia de la playa. Proyecto avanzado: Cuenta con un proyecto preliminar que agilizará significativamente el proceso de obtención de la licencia de obras, reduciendo tiempos y costes. Alta rentabilidad: La posibilidad de construir 12 viviendas con una superficie construida de aproximadamente 2.208, 89 m2 garantiza una alta rentabilidad de la inversión. Variedad de viviendas: La distribución propuesta incluye viviendas de 1, 2 y 3 dormitorios, así como áticos dúplex, para adaptarse a las necesidades de diferentes tipos de compradores. Complementos: Además de las viviendas, el proyecto contempla la construcción de 16 plazas de garaje y 16 trasteros, aumentando el atractivo de la promoción. ¡No pierdas esta oportunidad de invertir en un proyecto inmobiliario con un futuro prometedor" Las 12 viviendas podrian construir de la siguiente forma con un total de 2.220, 89 metros construidos, aproximadamente: 1 vivienda de 1 dormitorio 7 viviendas de 2 dormitorios 4 Aticos dúplex de 3 dormitorios 16 plazas de garaje 16 trasteros. "Un proyecto llave en mano para empezar a construir de inmediato. " Nota informativa: No están incluidos en el precio publicitado los gastos de notaria y registro, los impuestos sujetos a la transmisión como el ITP para propiedades de segunda mano o si es obra nueva, IVA y AJD. Los datos expuestos son meramente informativos y no tienen valor contractual, la oferta queda sujeta a errores, cambios de precio, disponibilidad y/o retirada del mercado sin aviso previo. Somos la agencia que buscas en la Costa del Sol, con muchos años de experiencia en el sector, nuestros clientes nos avalan, confían en nosotros y repiten, encontraremos la casa de tus sueños o te venderemos tu vivienda. Especialistas en segunda mano y obra nueva, tenemos promociones por todo el ámbito Malagueño. Encuéntranos en las redes sociales y visita nuestra web Para cualquier información adicional o para concertar una visita, contáctanos, estaremos encantados de atenderte.

Property characteristics

Complex information

  • Property type
    Urban

Property data

  • Property type
    Second hand

Surfaces

  • Land area
    394 m²

Base

  • Use of lot
    Residential

Market price statistics for Terreno en calle Velarde

Map

Malaga, Benalmádena, Stream of Honey, Calle Velarde Going to this location!
Leave a review about Terreno en calle Velarde
0
0 reviews
1
0% (0)
2
0% (0)
3
0% (0)
4
0% (0)
5
0% (0)
STENBERG PROPERTIES
600 000 €
Contact advertiser

For more information contact the platform

REF: 243640

Reviews about Terreno en calle Velarde
Loading...

No reviews have been left for this object yet

Nearest properties

Explore nearby properties we've discovered in close proximity to this location

Terreno en venta en calle Navío

Malaga, Alhaurín de la Torre, Capellanía - Retamar, Calle Navío
185 000 €

INMEJORABLE UBICACIÓN en la zona urbana de Retamar en Alhaurin de la torre.Cerca...

0
0 reviews

Terreno en venta en calle Mioporo s/n

Malaga, Málaga, Churriana, Calle Mioporo s/n
590 000 €

En venta en Málaga: una excelente parcela residencial de 756 m2 ubicada en un tr...

0
0 reviews

Terreno en venta en calle Veleta s/n

Malaga, Benalmádena, Montealto, Calle Veleta s/n
3 000 000 €

Este terreno se encuentra en Calle Veleta, 29631, Benalmádena, Málaga. Es un sol...

0
0 reviews

Terreno en Platero - El Limón

Malaga, Alhaurín de la Torre, Platero - The Lemon, Platero - El Limón
350 000 €

**Terreno Urbano en Alhaurín de la Torre - ¡Tu Oportunidad de Construcción! ** D...

0
0 reviews

Terreno en avenida Esmeralda, 14

Malaga, Benalmádena, Stream of Honey, Avenida Esmeralda, 14
420 000 €

SOLAR CON PROYECTO Y LICENCIA EN TRAMITE Si quieres construir tu casa a pocos me...

0
0 reviews

Terreno en calle Argelia, 20

Malaga, Málaga, Churriana, Calle Argelia, 20
200 000 €

Particular vende parcela llana de 351 m2 con licencia de obra en trámite. Operac...

0
0 reviews

Terreno en calle Pensamiento, 3

Malaga, Benalmádena, Benalmádena Village, Calle Pensamiento, 3
1 530 000 €

Oportunidad Exclusiva para Inversores en la Costa del Sol. Descubre una oportuni...

0
0 reviews

Terreno en calle Jilguero

Malaga, Fuengirola, Torreblanca del Sol, Calle Jilguero
2 150 000 €

Parcela urbana en venta en Urb. Torreblanca del Sol, Fuengirola (Málaga). Tiene...

0
0 reviews

Terreno en Pinos de Alhaurín

Malaga, Alhaurín de la Torre, Pines de Alhaurín, Pinos de Alhaurín
169 500 €

Solar a la venta para la construcción de un unifamiliar, tipo Chalet, situado en...

0
0 reviews
Call

We use our own and third-party cookies to analyze website usage and show you advertisements related to your preferences based on a profile created from your browsing habits (e.g., pages visited). More information. Do you accept cookies?