Spain Urban Spain Urban Malaga Urban Benalmádena Terreno en El Higuerón - Capellanía

Terreno en El Higuerón - Capellanía

Malaga, Benalmádena, El Higuerón - Capellanía, El Higuerón - Capellanía
700 000 €
Leave review
Urban Property type
1 441 m² Land area
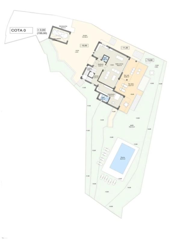
Enclavada en un entorno sereno y elevado, esta magnífica parcela edificable de 1.441 metros cuadrados ofrece una oportunidad única y tentadora de crear una obra maestra de la arquitectura moderna. Con impresionantes vistas ininterrumpidas que se extienden más allá del horizonte, enmarcando amplios paisajes, colinas ondulantes o tal vez el suave resplandor del agua, esta parcela de tierra no es simplemente una parcela, sino un lienzo sobre el que se puede realizar un gran sueño. Ya se ha concedido la licencia de obras para construir una residencia contemporánea de tres plantas exquisitamente diseñada, un faro de vida sofisticada que armoniza a la perfección con su entorno natural. Esta futura casa, una vez hecha realidad, encarnará el pináculo de la elegancia y la funcionalidad, con cada metro cuadrado cuidadosamente concebido para combinar una vida lujosa con una audaz visión arquitectónica. La residencia propuesta cuenta con cinco amplios dormitorios, cada uno de ellos un santuario privado, cuidadosamente situados para captar tanto la luz como el majestuoso paisaje. Cada dormitorio cuenta con su propio cuarto de baño, que ofrece el máximo nivel de privacidad y comodidad, mientras que tres armarios de agua adicionales proporcionan comodidad en toda la casa. Los planos arquitectónicos prevén espacios fluidos y abiertos que invitan a la luz natural a bailar por los techos altos y las superficies brillantes, creando una sensación de opulencia aérea. Paneles de cristal de suelo a techo y amplias terrazas enmarcarán las impresionantes vistas, convirtiendo la belleza circundante en parte integrante de la vida cotidiana. Ya sea disfrutando de un desayuno al amanecer en el balcón o celebrando elegantes reuniones nocturnas bajo el cielo estrellado, el entorno nunca dejará de inspirar asombro. Una característica destacada de este diseño es el aparcamiento subterráneo, que no sólo preserva la pureza estética de la fachada de la propiedad, sino que también ofrece un almacenamiento seguro y discreto para varios vehículos. Este espacio subterráneo personifica la meditada planificación que define todo el proyecto: elegancia sin concesiones, lujo sin ostentación. No se trata simplemente de una oportunidad de desarrollo, sino de una invitación a construir un legado. Aquí, en esta excepcional parcela de tierra, se encuentra el potencial para crear una residencia que es tan notable como su entorno: una casa de estilo, sustancia y belleza sublime.

Property characteristics

Complex information

  • Property type
    Urban

Property data

  • Property type
    Second hand

Surfaces

  • Land area
    1 441 m²

Base

Facilities

Additional Features:

Building plot

Market price statistics for Terreno en El Higuerón - Capellanía

Map

Malaga, Benalmádena, El Higuerón - Capellanía, El Higuerón - Capellanía Going to this location!
Leave a review about Terreno en El Higuerón - Capellanía
0
0 reviews
1
0% (0)
2
0% (0)
3
0% (0)
4
0% (0)
5
0% (0)
Propertissimo
700 000 €
Contact advertiser

For more information contact the platform

REF: 366660

Reviews about Terreno en El Higuerón - Capellanía
Loading...

No reviews have been left for this object yet

Nearest properties

Explore nearby properties we've discovered in close proximity to this location

Terreno en venta en Urbanizacion Torreblanca del Sol

Malaga, Fuengirola, Los Pacos, Urbanizacion Torreblanca del Sol
175 000 €

¡Oportunidad única de inversión en la Costa del Sol! Se venden 6 Terrenos ubicad...

0
0 reviews

Terreno en venta en calle Veleta s/n

Malaga, Benalmádena, Montealto, Calle Veleta s/n
3 000 000 €

Este terreno se encuentra en Calle Veleta, 29631, Benalmádena, Málaga. Es un sol...

0
0 reviews

Terreno en Valtocado - La Alquería - La Atalaya

Malaga, Mijas, Valtocado - La Alquería - La Atalaya, Valtocado - La Alquería - La Atalaya
185 000 €

Parcela Rústica en El Hornillo Parcela rústica de aproximadamente 13.000 m2, muy...

0
0 reviews

Terreno en avenida Esmeralda, 14

Malaga, Benalmádena, Stream of Honey, Avenida Esmeralda, 14
420 000 €

SOLAR CON PROYECTO Y LICENCIA EN TRAMITE Si quieres construir tu casa a pocos me...

0
0 reviews

Terreno en calle las Palomas, 11

Malaga, Fuengirola, Torreblanca del Sol, Calle las Palomas, 11
185 000 €

Espectacular solar de 436 m2 con vista lateral al mar.

0
0 reviews

Terreno en Los Pacos

Malaga, Fuengirola, Los Pacos, Los Pacos
4 500 000 €

Parcela Edificable en Venta en Los Pacos (Fuengirola) ¡Oportunidad única para pr...

0
0 reviews

Terreno en calle Pensamiento, 3

Malaga, Benalmádena, Benalmádena Village, Calle Pensamiento, 3
1 530 000 €

Oportunidad Exclusiva para Inversores en la Costa del Sol. Descubre una oportuni...

0
0 reviews

Terreno en calle Jilguero

Malaga, Fuengirola, Torreblanca del Sol, Calle Jilguero
2 150 000 €

Parcela urbana en venta en Urb. Torreblanca del Sol, Fuengirola (Málaga). Tiene...

0
0 reviews

Terreno en Mijas s/n

Malaga, Mijas, Mijas Village, Mijas s/n
250 000 €

Oportunidad Única de TERRENO con Proyecto Aprobado en la Prestigiosa Zona de Mij...

0
0 reviews
Call

We use our own and third-party cookies to analyze website usage and show you advertisements related to your preferences based on a profile created from your browsing habits (e.g., pages visited). More information. Do you accept cookies?