Terreno en Coin

Malaga, Coin, Coin
115 000 €
Leave review
Urban Property type
676 m² Land area
Residential Use of lot
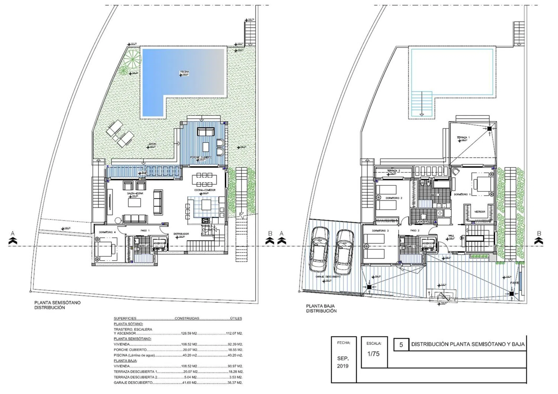
P3720593: Parcela urbana con proyecto en venta en Coín Parcela residencial con un anteproyecto informativo que indica que se puede construir en la parcela, ubicada en una urbanización popular en Coín. Esta parcela orientada al sur tiene unas vistas magníficas del campo y las montañas de Mijas. La parcela es ligeramente pendiente, con zonas verdes al frente y al costado. El anteproyecto es para un chalet moderno de 2 plantas de 218m² más un sótano de 129m², con 4 dormitorios, 3 baños y una piscina. Contáctenos para más información.

Property characteristics

Complex information

  • Property type
    Urban

Property data

  • Property type
    Second hand

Surfaces

  • Land area
    676 m²

Base

  • Use of lot
    Residential

Facilities

Land use:

Residential

Plans

Market price statistics for Terreno en Coin

Map

Malaga, Coin, Coin Going to this location!
Leave a review about Terreno en Coin
0
0 reviews
1
0% (0)
2
0% (0)
3
0% (0)
4
0% (0)
5
0% (0)
115 000 €
Contact advertiser

For more information contact the platform

REF: 245167

Reviews about Terreno en Coin
Loading...

No reviews have been left for this object yet

Nearest properties

Explore nearby properties we've discovered in close proximity to this location

Terreno en Vía

Malaga, Coin, Vía
1 042 000 €

Urbanización Viña Borrego en Coín (Málaga). Disponibles magníficos terrenos dest...

0
0 reviews

Terreno en Coin

Malaga, Coin, Coin
95 000 €

¡Increíble oportunidad de inversión de un solar urbano en unas de las mejores zo...

0
0 reviews

Terreno en calle Antonio Machado, 7

Malaga, Alhaurín el Grande, Center, Calle Antonio Machado, 7
80 000 €

Solar en el centro de Alhaurin el Grande perfecto para construir tu vivienda. No...

0
0 reviews

Terreno en calle Rocio, 15

Malaga, Coin, Calle Rocio, 15
285 000 €

ATENCIÓN INVERSORES Y PROMOTORES! ¡OPORTUNIDAD ÚNICA EN EL CORAZÓN DE COÍN! Desc...

0
0 reviews

Terreno en Coin

Malaga, Coin, Coin
185 000 €

Norando Homes presenta para sus clientes esta excelente oportunidad de inversión...

0
0 reviews

Terreno en calle el Algibe

Malaga, Coin, Calle el Algibe
57 500 €

¡Oportunidad única! Se venden dos terrenos indivisibles entre Monda y Coín, con...

0
0 reviews

Terreno en camino de Ardalejos

Malaga, Alhaurín el Grande, Ardelejos - Cuesta de la Palma - Buenavista, Camino de Ardalejos
149 000 €

Parcela con vistas en urbanización exclusiva – San Jorge, Alhaurín el Grande Se...

0
0 reviews

Terreno en Coin

Malaga, Coin, Coin
160 000 €

P5009152: Parcela rústica en venta en Coín Se ofrece en venta una bonita parcela...

0
0 reviews

Terreno en Las Lomas - Las Torres - Terrazas de Alhaurín

Malaga, Alhaurín el Grande, Las Lomas - Las Torres - Terrazas de Alhaurín, Las Lomas - Las Torres - Terrazas de Alhaurín
349 000 €

Impresionante parcela de 81,000 m² en venta entre Alhaurín el Grande y Coín. Est...

0
0 reviews

We use our own and third-party cookies to analyze website usage and show you advertisements related to your preferences based on a profile created from your browsing habits (e.g., pages visited). More information. Do you accept cookies?