Sale of apartment in Calle Hinojo, Estepona

Malaga, Estepona, Benamara - Atalaya, Calle Hinojo
95 000 €
1 667 € / m2
Leave review
Flats Property type
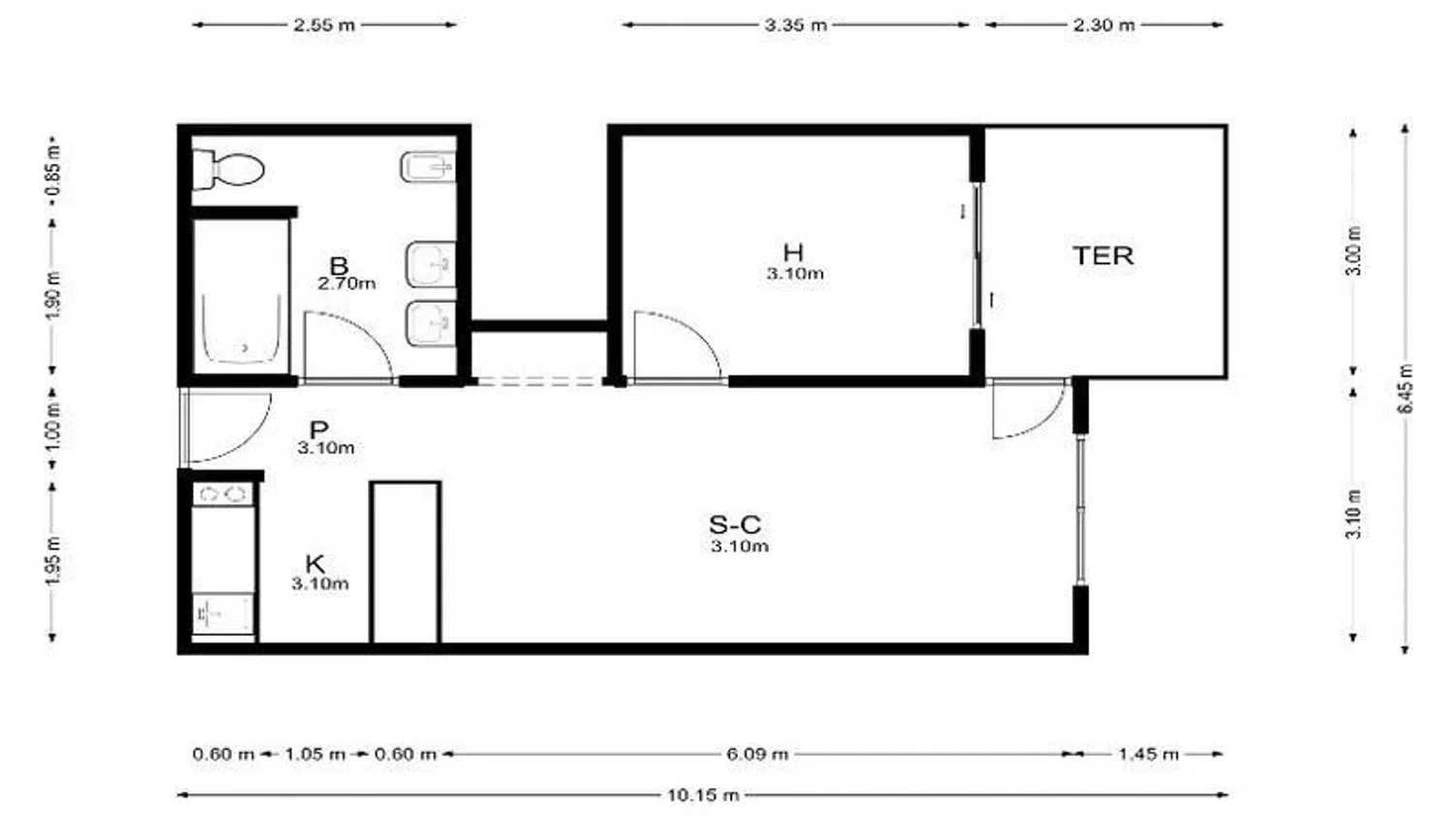
57 m² built square meters
1 Bathrooms
1 Bedrooms
4 Floor
OPORTUNIDAD INVERSORES Apartamento acogido al régimen de APARTAMENTOS TURÍSTICOS. Os presentamos este funcional piso ubicado en Benahavís, Málaga. El inmueble se distribuye en una habitación, salón-comedor, cocina y un baño. Situado en la 4a planta del edificio. En términos de accesibilidad, la propiedad dispone de múltiples conexiones y cuenta con fácil acceso a la carretera de Benahavís. En cumplimiento del Decreto de la Junta de Andalucía 218/2005 del 11 de Octubre, se informa a los clientes que los gastos notariales, registrales, los de gestoría, los impuestos (ITP, AJD o IVA) y otros gastos inherentes a la compra, no están incluidos en el precio..

Property characteristics

Complex information

  • Property type
    Flats

Property data

  • Floor
    4
  • Bedrooms
    1
  • Bathrooms
    1
  • built square meters
    57 m²
  • Property type
    Second hand

Facilities

Housing Amenities:

Terrace

In building:

Swimming Pool

Market price statistics for Piso en calle Hinojo

592 925 € (4 382 €/m2)
Average price of primary Flats in city Estepona
731 863 € (5 624 €/m2)
Average price of secondary Flats in city Estepona
618 125 € (4 128 €/m2)
Average price of primary Flats in district Benamara - Atalaya
810 115 € (6 058 €/m2)
Average price of secondary Flats in district Benamara - Atalaya

Map

Malaga, Estepona, Benamara - Atalaya, Calle Hinojo Going to this location!
Leave a review about Piso en calle Hinojo
0
0 reviews
1
0% (0)
2
0% (0)
3
0% (0)
4
0% (0)
5
0% (0)
MALAGA UNO REAL ESTATE
95 000 €
from 1 667 € / m2
Contact advertiser

For more information contact the platform

REF: 148621

Reviews about Piso en calle Hinojo
Loading...

No reviews have been left for this object yet

Nearest properties

Explore nearby properties we've discovered in close proximity to this location

Apartamentos en Venta en Calle pico Alcazaba s/n, Estepona

Malaga, Estepona, Benamara - Atalaya, Calle pico Alcazaba s/n
535 000 €

Embark on a new life full of emotions. This impressive residential complex featu...

0
0 reviews

Apartamentos en Venta en Calle pico Alcazaba s/n, Estepona

Malaga, Estepona, Benamara - Atalaya, Calle pico Alcazaba s/n
512 000 €

Embark on a new life full of emotions. This impressive residential complex featu...

0
0 reviews

Apartamentos en Venta en Calle pico Alcazaba s/n, Estepona

Malaga, Estepona, Benamara - Atalaya, Calle pico Alcazaba s/n
695 000 €

Embark on a new life full of emotions. This impressive residential complex featu...

0
0 reviews

Apartamentos en Venta en Calle pico Alcazaba s/n, Estepona

Malaga, Estepona, Benamara - Atalaya, Calle pico Alcazaba s/n
716 000 €

Embark on a new life full of emotions. This impressive residential complex featu...

0
0 reviews

Apartamentos en Venta en Calle pico Alcazaba s/n, Estepona

Malaga, Estepona, Benamara - Atalaya, Calle pico Alcazaba s/n
570 000 €

Embark on a new life full of emotions. This impressive residential complex featu...

0
0 reviews

Apartamentos en Venta en Calle pico Alcazaba s/n, Estepona

Malaga, Estepona, Benamara - Atalaya, Calle pico Alcazaba s/n
791 000 €

Embark on a new life full of emotions. This impressive residential complex featu...

0
0 reviews

Apartamentos en Venta en Calle pico Alcazaba s/n, Estepona

Malaga, Estepona, Benamara - Atalaya, Calle pico Alcazaba s/n
514 000 €

Embark on a new life full of emotions. This impressive residential complex featu...

0
0 reviews

Apartamentos en Venta en Calle pico Alcazaba s/n, Estepona

Malaga, Estepona, Benamara - Atalaya, Calle pico Alcazaba s/n
552 000 €

Embark on a new life full of emotions. This impressive residential complex featu...

0
0 reviews

Newly developed residences by Tm in Estepona.

Malaga, Estepona, Benamara - Atalaya, Calle pico Alcazaba s/n
767 000 €

Immerse yourself in this stunning residential complex, offering lavish apartme...

0
0 reviews
Call

We use our own and third-party cookies to analyze website usage and show you advertisements related to your preferences based on a profile created from your browsing habits (e.g., pages visited). More information. Do you accept cookies?