Spain Urban Spain Urban Malaga Urban Estepona Terreno en calle Huerto, 35

Terreno en calle Huerto, 35

Malaga, Estepona, Estepona Town, Calle Huerto, 35
149 000 €
Leave review
Urban Property type
29 m² Land area
Residential Use of lot
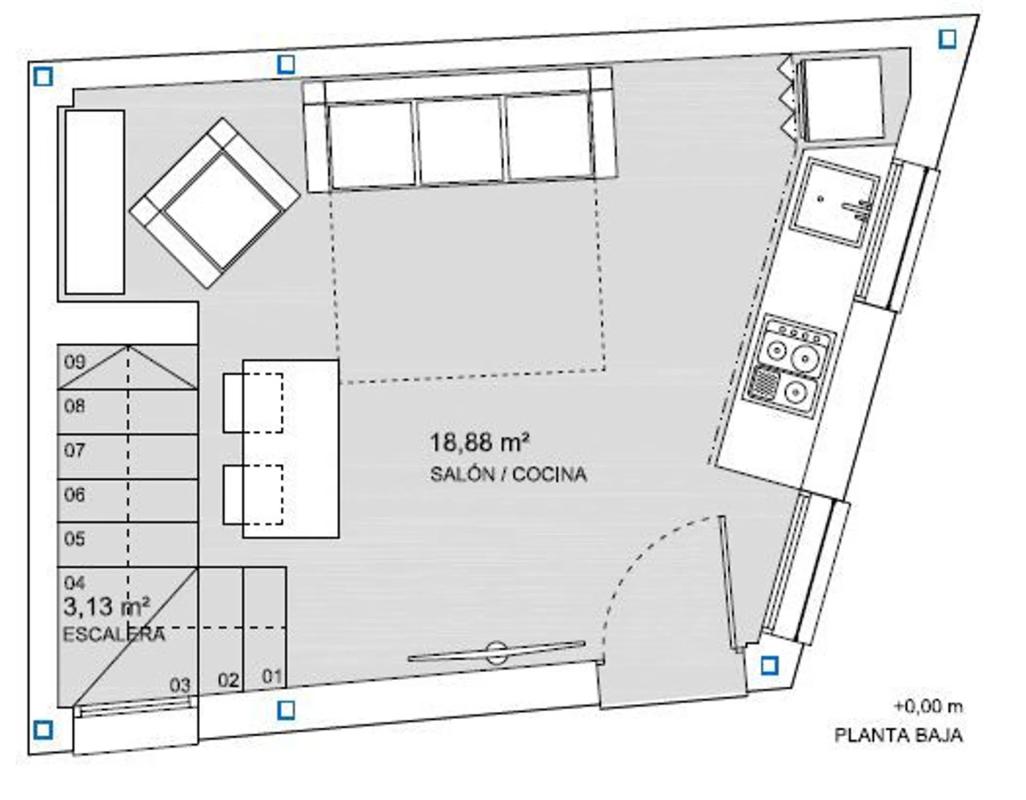
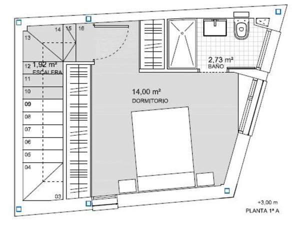
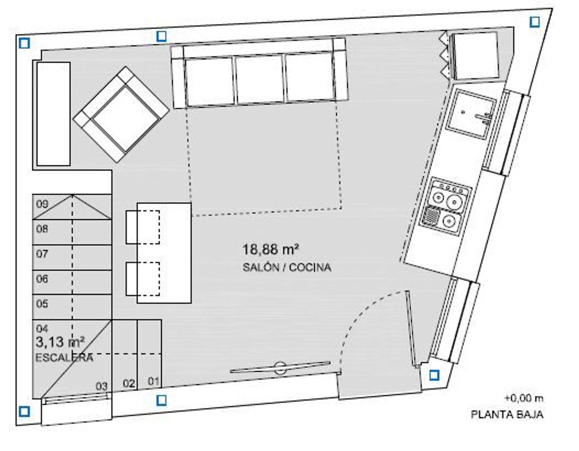
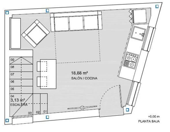
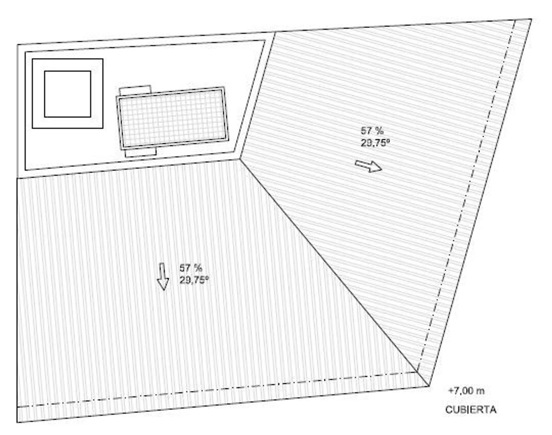
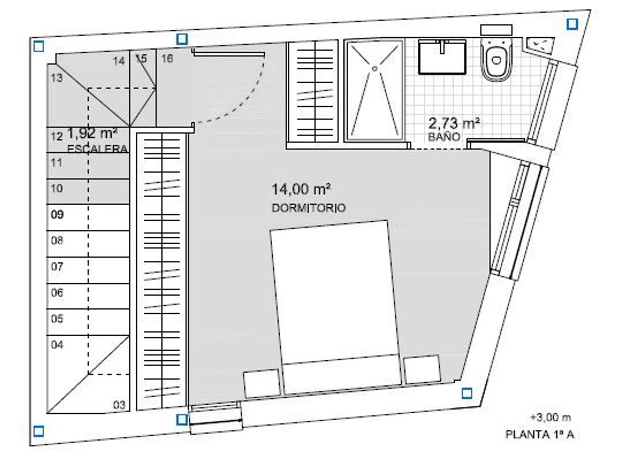
Inmueble/solar en pleno centro histórico de Estepona. El uso característico del solar es RESIDENCIAL con planta baja + 1ª. Situado a 300 metros de la playa de la Rada. El inmueble está situado dentro del plan especial sin protección de fachada. Calificación UG-B con los usos permitidos de residencial, hotelero, restauración y comercio al por menor. Dispone de estudio geotécnico y proyecto arquitectónico de demolición y ejecución para inmueble que se desarrolla en dos plantas, planta baja y planta primera. En la planta baja se ubican las dependencias propias de la actividad diurna, tales como el salón, comedor y la cocina. En la planta primera se desarrollan las dependencias con actividad nocturna, tales como el dormitorio y el baño. La planta baja se desarrolla de una forma compacta, sin elementos verticales de separación de estancias, a modo de LOFT, comunicándose espacialmente el salón con la cocina. La planta primera se aprovecha de las posibilidades de la normativa, generándose el techo con el forjado inclinado de cubierta, para ganar en amplitud espacial. Siguiendo con el cumplimiento de la normativa se restringe la altura del alero de cubierta a 6,10 metros desde la acera, así como se respetan las alineaciones de la calle evitando retranqueos en fachada en planta baja y primera. PLANTA BAJA - Salón - Cocina. - Comedor - Escaleras PLANTA PRIMERA - Dormitorio Principal - Baño.

Property characteristics

Complex information

  • Property type
    Urban

Property data

  • Property type
    Second hand

Surfaces

  • Land area
    29 m²

Base

  • Use of lot
    Residential

Market price statistics for Terreno en calle Huerto, 35

Map

Malaga, Estepona, Estepona Town, Calle Huerto, 35 Going to this location!
Leave a review about Terreno en calle Huerto, 35
0
0 reviews
1
0% (0)
2
0% (0)
3
0% (0)
4
0% (0)
5
0% (0)
149 000 €
Contact advertiser

For more information contact the platform

REF: 245099

Reviews about Terreno en calle Huerto, 35
Loading...

No reviews have been left for this object yet

Nearest properties

Explore nearby properties we've discovered in close proximity to this location

Terreno en venta en calle Roberto Montanari s/n

Malaga, Estepona, Golden Bay Beach, Calle Roberto Montanari s/n
4 620 000 €

Este terreno se encuentra en Calle Roberto Montanari, 0, 29680, Estepona, Málaga...

0
0 reviews

Terreno en calle París, 2

Malaga, Estepona, Altos de Estepona, Calle París, 2
908 585 €

Inmueble Urbano clasificado como Solar en C/ Paris 2 Estepona (Málaga) de 823 m2...

0
0 reviews

Terreno en Barrio Puerto de Estepona

Malaga, Estepona, Estepona Town, Barrio Puerto de Estepona
1 500 000 €

�️ Terreno en Venta en el Centro de Estepona – Inversión Ideal a 50 m de la Play...

0
0 reviews

Terreno en calle de la Siesta

Malaga, Estepona, Golden Bay Beach, Calle de la Siesta
265 000 €

Parcela en Estepona zona de URB BUENAS NOCHES, con orientación sur con vista al...

0
0 reviews

Terreno en calle Cuba Bajo

Malaga, Estepona, Costa Natura, Calle Cuba Bajo
450 000 €

Excepcional oportunidad para construir la villa de tus sueños en Valle Romano De...

0
0 reviews

Terreno en calle San Roque, 48

Malaga, Estepona, Estepona Town, Calle San Roque, 48
1 300 000 €

"Increíble oportunidad para construir un edificio de apartamentos de seis planta...

0
0 reviews

Terreno en calle de la Siesta

Malaga, Estepona, Golden Bay Beach, Calle de la Siesta
265 000 €

Magnifica parcela parcela muy bien comunicada en segunda linea de playa y con ac...

0
0 reviews

Terreno en calle Jesús Cautivo s/n

Malaga, Estepona, Estepona Town, Calle Jesús Cautivo s/n
670 000 €

**Solar Urbano en el Centro de Estepona (Málaga) – Con Licencia y Proyecto Inclu...

0
0 reviews

Terreno en Barrio El Velerín

Malaga, Estepona, Selwo, Barrio El Velerín
1 065 000 €

Preciosa parcela de 15.000m2, rustica para uso agrario, con antigua casa en ruin...

0
0 reviews

We use our own and third-party cookies to analyze website usage and show you advertisements related to your preferences based on a profile created from your browsing habits (e.g., pages visited). More information. Do you accept cookies?