Spain Houses Spain Houses Malaga Houses Marbella Casa independiente en Urbanización Hacienda las Chapas, 144

New construction Casa independiente en Urbanización Hacienda las Chapas, 144 in Marbella

Malaga, Marbella, Elviria-Cabopino, Urbanización Hacienda las Chapas, 144
8 900 000 €
11 125 € / m2
Leave review
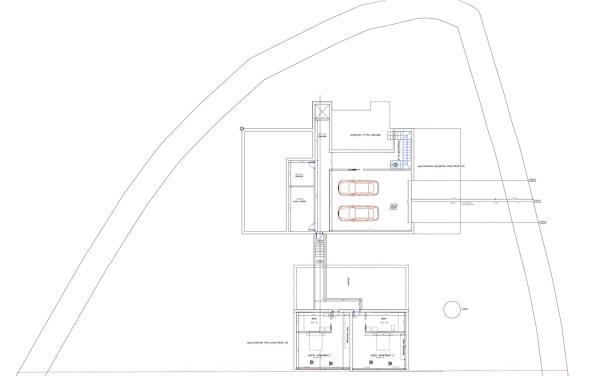
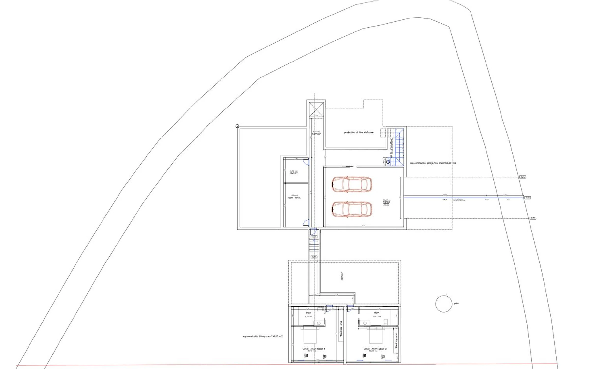
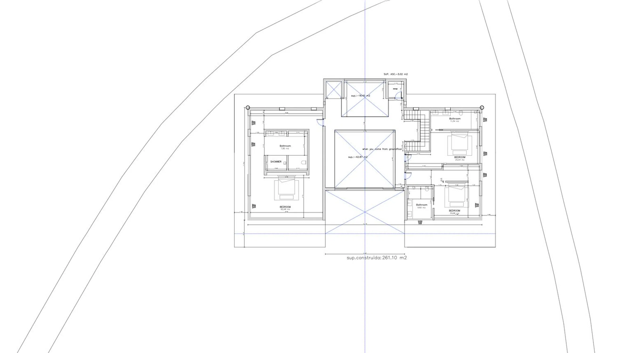
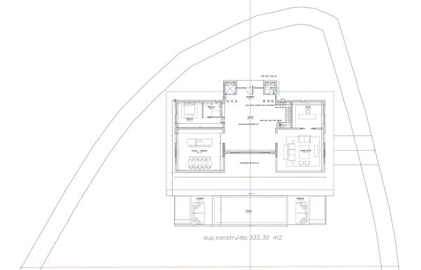
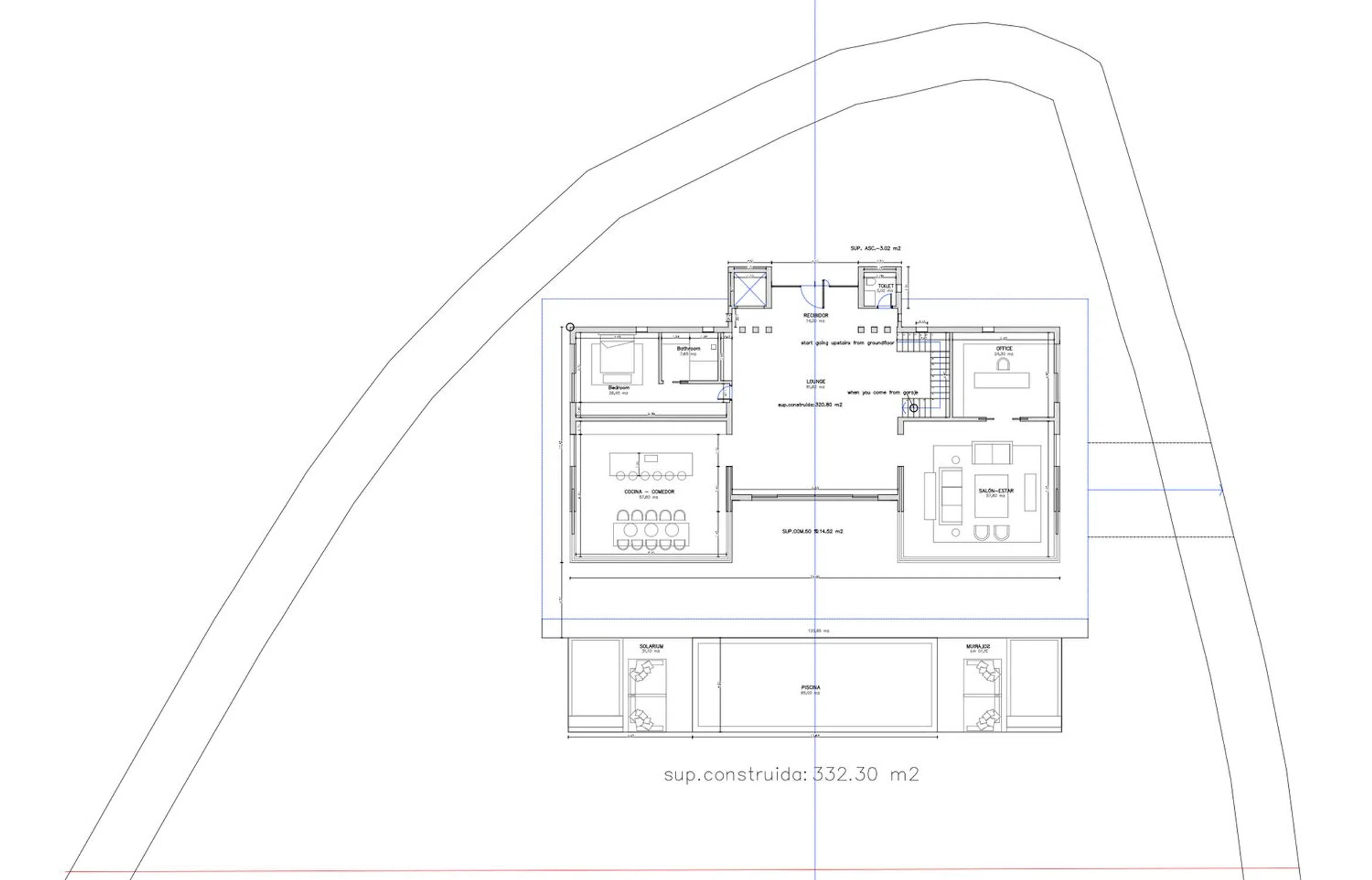
800 m² built square meters
4 600 m² Land area
7 Bathrooms
7 Bedrooms
Included in the price Garage
Good condition Property status
En la exclusiva zona de Las Chapas se presenta una oportunidad única: una villa off-plan de lujo proyectada sobre una impresionante parcela de 4.600 m², donde la privacidad, la amplitud y las vistas panorámicas al mar se unen para crear un concepto residencial inigualable. El proyecto contempla una vivienda de aproximadamente 800 m² distribuidos en tres plantas, incluyendo un elegante sótano con un garaje de gran capacidad. Cada espacio ha sido diseñado con calidades superiores, materiales de primer nivel y una arquitectura contemporánea que fusiona luz, diseño y naturaleza. La licencia de obras ya está presentada y en dos meses contaría con la aprobación del ayuntamiento de Marbella, lo que permite empezar la construcción rapidamente. Existe la posibilidad de adquirir la villa en modalidad off-plan, con libertad para personalizar acabados, o bien comprar únicamente el terreno con el proyecto ya presentado, una opción ideal para quienes buscan invertir o desarrollar su propio concepto dentro de un marco arquitectónico aprobado. Una propiedad exclusiva en una de las ubicaciones más demandadas de Marbella.

Featured promotions in Spain

10 units

Nature Views 2

Alicante, Torrevieja, Los Balcones - The Heights of Eden, Denia s/n
310 000 € - 379 000 €
1 units

Hotel en venta en Benidorm centro

Alicante, Benidorm, Poniente Beach
2 250 000 € - 2 250 000 €
28 units

Residencial Los Balcones De Calpe

Alicante, Calpe, Calpe Town, Avenida de Madrid, 1
299 000 € - 892 125 €
4 units

Nature Views

Alicante, Torrevieja, Lago Jardín II, Avenida Denia s/n
309 000 € - 330 000 €
5 units

ALONIS VILLAS

Alicante, La Villajoyosa / Vila Joiosa, Torres Beach, Partida Torres s/n
675 000 € - 775 000 €
1 units

Residencial Royal Beach

Alicante, Guardamar del Segura, town, Miguel Hernández 102
349 500 € - 349 500 €
7 units

Royal Star

Alicante, Guardamar del Segura
229 500 € - 269 500 €

Property characteristics

Complex information

Project information / Work status

  • Property status
    Good condition

Property data

  • Garage
    Included in the price
  • Bedrooms
    7
  • Bathrooms
    7
  • built square meters
    800 m²
  • Property type
    Second hand

Surfaces

  • Land area
    4 600 m²

Base

Energy certification

  • Energy certificate
    B
  • Issuances
    20 kg CO2/m² year
  • Energy consumption
    60 kwh/m² year

Facilities

Housing Amenities:

Air conditioning
Storage room
Terrace

In building:

Swimming Pool
Garden
Private parking

State:

Good condition

Market price statistics for Casa independiente en Urbanización Hacienda las Chapas, 144

3 814 213 € (7 123 €/m2)
Average price of primary in city Marbella
3 587 203 € (7 374 €/m2)
Average price of secondary in city Marbella

Map

Malaga, Marbella, Elviria-Cabopino, Urbanización Hacienda las Chapas, 144 Going to this location!
Leave a review about Casa independiente en Urbanización Hacienda las Chapas, 144
0
0 reviews
1
0% (0)
2
0% (0)
3
0% (0)
4
0% (0)
5
0% (0)
Newbery Real Estate
8 900 000 €
from 11 125 € / m2
Contact advertiser

For more information contact the platform

REF: 455287

Reviews about Casa independiente en Urbanización Hacienda las Chapas, 144
Loading...

No reviews have been left for this object yet

Nearest properties

Explore nearby properties we've discovered in close proximity to this location

Pareados en Venta en Avenida Playas Andaluzas, 2, Marbella

Malaga, Marbella, Las Chapas-El Rosario, Avenida Playas Andaluzas, 2
2 950 000 €

The fame of Marbella is well known and hardly needs an introduction. For decades...

0
0 reviews

Pareados en Venta en Avenida Playas Andaluzas, 2, Marbella

Malaga, Marbella, Las Chapas-El Rosario, Avenida Playas Andaluzas, 2
3 200 000 €

The fame of Marbella is well known and hardly needs an introduction. For decades...

0
0 reviews

Pareados en Venta en Avenida Playas Andaluzas, 2, Marbella

Malaga, Marbella, Las Chapas-El Rosario, Avenida Playas Andaluzas, 2
3 100 000 €

The fame of Marbella is well known and hardly needs an introduction. For decades...

0
0 reviews

Pareados en Venta en Avenida Playas Andaluzas, 2, Marbella

Malaga, Marbella, Las Chapas-El Rosario, Avenida Playas Andaluzas, 2
3 050 000 €

The fame of Marbella is well known and hardly needs an introduction. For decades...

0
0 reviews

Pareados en Venta en Avenida Playas Andaluzas, 2, Marbella

Malaga, Marbella, Las Chapas-El Rosario, Avenida Playas Andaluzas, 2
3 100 000 €

The fame of Marbella is well known and hardly needs an introduction. For decades...

0
0 reviews

Pareados en Venta en Avenida Playas Andaluzas, 2, Marbella

Malaga, Marbella, Las Chapas-El Rosario, Avenida Playas Andaluzas, 2
3 050 000 €

The fame of Marbella is well known and hardly needs an introduction. For decades...

0
0 reviews

Chalet independiente en Venta en Calle de Málaga, 8, Mijas

Malaga, Mijas, Calahonda Site, Calle de Málaga, 8
1 180 000 €

Melissa es una exclusiva promoción de Obra Nueva que cuenta con 7 villas indepen...

0
0 reviews

Chalet independiente en Venta en Calle de Málaga, 8, Mijas

Malaga, Mijas, Calahonda Site, Calle de Málaga, 8
1 180 000 €

Melissa es una exclusiva promoción de Obra Nueva que cuenta con 7 villas indepen...

0
0 reviews

Chalet independiente en Venta en Calle de Málaga, 8, Mijas

Malaga, Mijas, Calahonda Site, Calle de Málaga, 8
1 130 000 €

Melissa es una exclusiva promoción de Obra Nueva que cuenta con 7 villas indepen...

0
0 reviews
Call

We use our own and third-party cookies to analyze website usage and show you advertisements related to your preferences based on a profile created from your browsing habits (e.g., pages visited). More information. Do you accept cookies?