Spain Urban Spain Urban Malaga Urban Marbella Terreno en Urbanizacion n Andalucia 8h

Terreno en Urbanizacion n Andalucia 8h

Malaga, Marbella, New Andalusia, Urbanizacion N Andalucia 8H
1 090 000 €
Leave review
Urban Property type
802 m² Land area
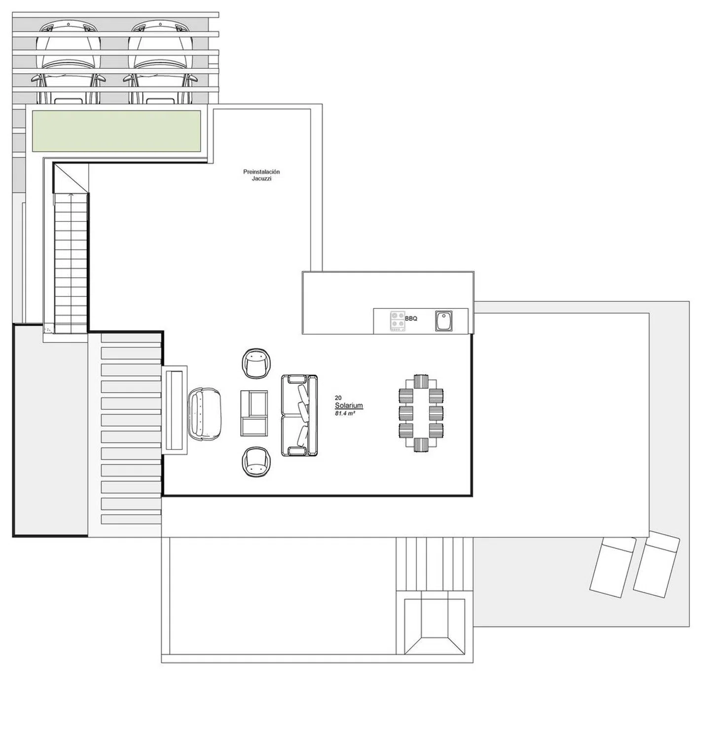
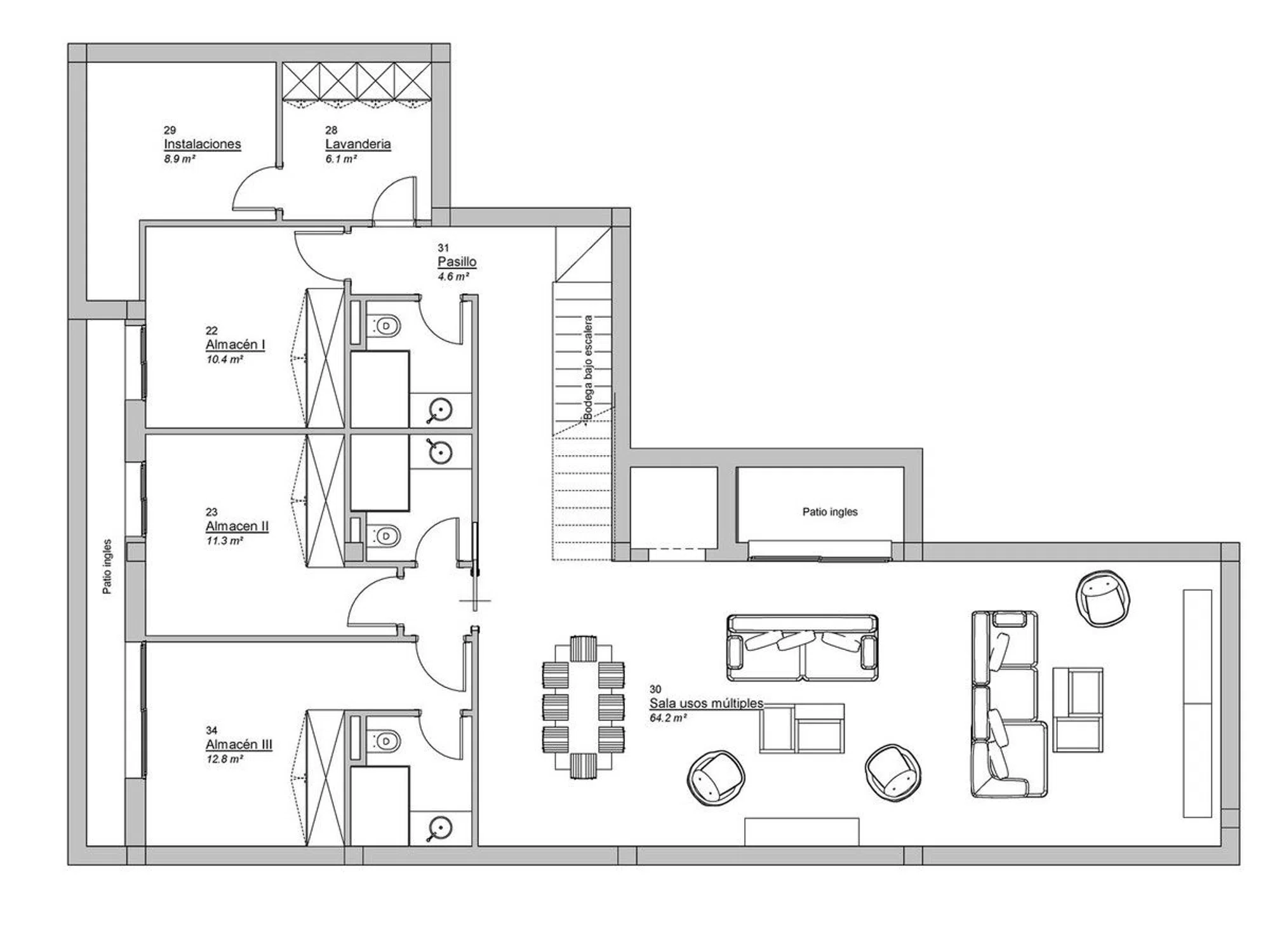
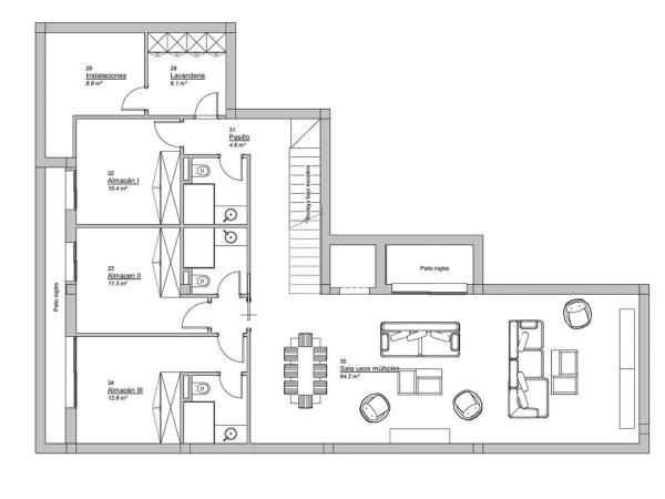
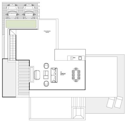
Parcela orientada al sur en una prestigiosa comunidad cerrada en el Valle del Golf de Nueva Andalucía, que ofrece privacidad, seguridad y proximidad a campos de golf de clase mundial. La parcela está regulada por la normativa UE-3, permitiendo un volumen de construcción del 20% y una ocupación del terreno del 25%, ideal para construir una espaciosa villa con áreas exteriores. Un proyecto básico y la licencia de construcción están ya en proceso, proponiendo una villa moderna de 317 m² con dos niveles, un sótano, terraza en la azotea y 100 m² de terrazas exteriores. Los planes incluyen amplios espacios interiores, un aparcamiento cubierto para dos coches y vistas impresionantes. Esta es una oportunidad única para construir la casa de tus sueños o realizar una sólida inversión en una de las zonas más codiciadas de Marbella. Contáctanos para obtener los planos completos y detalles del proyecto.

Property characteristics

Complex information

  • Property type
    Urban

Property data

  • Property type
    Second hand

Surfaces

  • Land area
    802 m²

Base

Plans

Market price statistics for Terreno en Urbanizacion n Andalucia 8h

Map

Malaga, Marbella, New Andalusia, Urbanizacion N Andalucia 8H Going to this location!
Leave a review about Terreno en Urbanizacion n Andalucia 8h
0
0 reviews
1
0% (0)
2
0% (0)
3
0% (0)
4
0% (0)
5
0% (0)
Marbella Estates SL. marbella
1 090 000 €
Contact advertiser

For more information contact the platform

REF: 243214

Reviews about Terreno en Urbanizacion n Andalucia 8h
Loading...

No reviews have been left for this object yet

Nearest properties

Explore nearby properties we've discovered in close proximity to this location

Terreno en venta en Gaucín s/n

Malaga, Benahavís, Los Arqueros-Port of the Almendro, Gaucín s/n
3 600 000 €

Este terreno se encuentra en Gaucín, 0, 29679, Benahavís, Málaga. Es un solar qu...

0
0 reviews

Terreno en calle Teba s/n

Malaga, Marbella, Nagüeles-Milla de Oro, Calle Teba s/n
3 700 000 €

"Discover an exclusive opportunity on Marbella's prestigious Golden Mile with th...

0
0 reviews

Terreno en avenida del Norte

Malaga, Marbella, New Andalusia, Avenida del Norte
2 800 000 €

Ubicación Prime | Vistas al Mar | Listas para Construir | Lujo en Estado Puro Pr...

0
0 reviews

Terreno en benahavis, costa del sol, malaga

Malaga, Benahavís, Benahavís, Benahavis, costa del sol, malaga
450 000 €

Descubra esta excepcional parcela de terreno urbano, con una generosa extensión...

0
0 reviews

Terreno en El Madroñal, 137

Malaga, Benahavís, El Madroñal, El Madroñal, 137
1 500 000 €

PARCELA EN VENTA CON PROYECTO Y LICENCIA EN LA PRESTIGIOSA URBANIZACIÓN EL MADRO...

0
0 reviews

Terreno en Urbanizacion Real de la Quinta

Malaga, Benahavís, El Madroñal, Urbanizacion Real de la Quinta
1 350 000 €

Terreno Urbano, La Quinta, Costa del Sol. Jardin/Terreno 2103 m². Posición: Cerc...

0
0 reviews

Terreno en calle Endrinas

Malaga, Benahavís, The Alquería, Calle Endrinas
700 000 €

¡Parcela con proyecto y licencia aprobada — lista para construir en La Alquería,...

0
0 reviews

Terreno en calle del Almendro, 21

Malaga, Benahavís, Benahavís, Calle del Almendro, 21
450 000 €

**Terreno en Venta en Benahavís Pueblo ** Descubre esta magnífica parcela de 308...

0
0 reviews

Terreno en calle Montemayor

Malaga, Benahavís, Benahavís, Calle Montemayor
850 000 €

Descubre esta magnífica parcela ubicada en la prestigiosa Urbanización Montemayo...

0
0 reviews
Call

We use our own and third-party cookies to analyze website usage and show you advertisements related to your preferences based on a profile created from your browsing habits (e.g., pages visited). More information. Do you accept cookies?