Terreno en calle Luxemburgo s/n

Malaga, Rincón de la Victoria, Great Sun - Mountain Sun, Calle Luxemburgo s/n
1 590 000 €
Leave review
Urbanizable Property type
10 957 m² Land area
Residential Use of lot
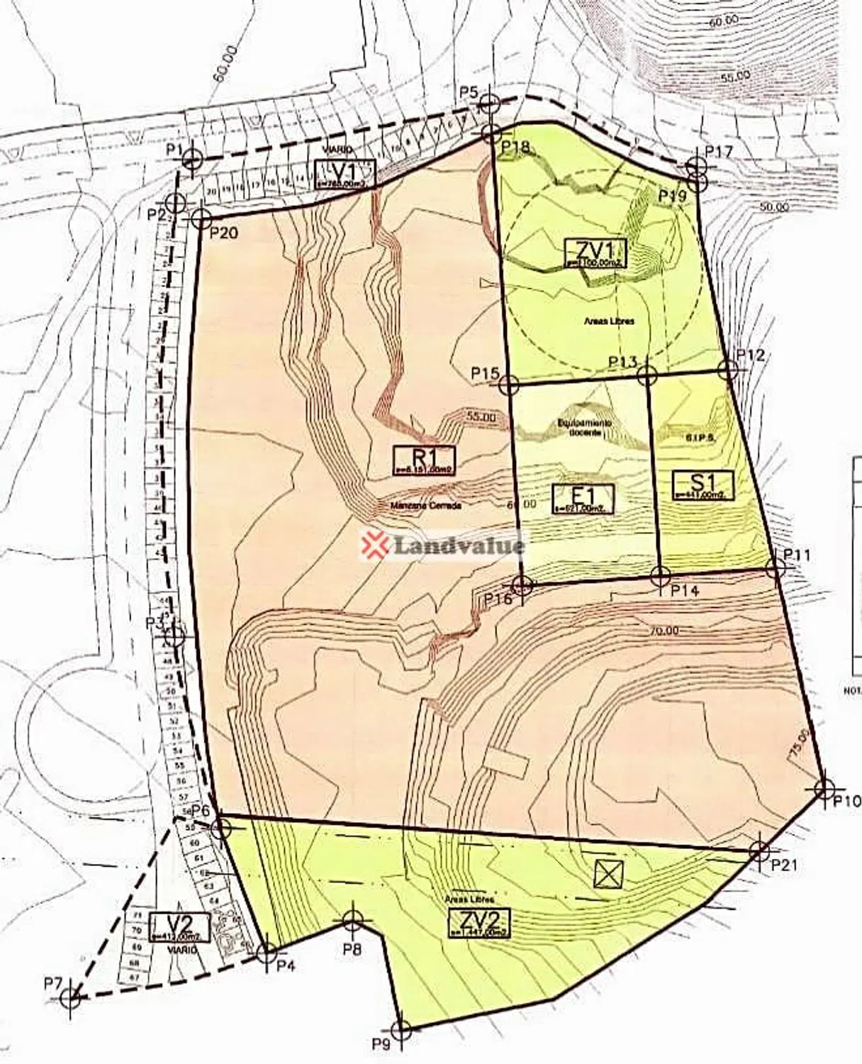
Este terreno se encuentra dando fachada a las calles Mónaco y Luxemburgo, S/N, 29730, Rincón de la Victoria, Málaga. Suelo de uso Residencial Plurifamiliar, con una superficie de 10.957 m²/s y edificabilidad estimada de 12.721, 5 m²/e. Se trata de la Parcela 72 del P. E. R. I. UE-R3A, con aprobación definitiva el 30 de septiembre de 2008. Dicha parcela es la única finca que integra el ámbito urbanístico mencionado, lo que le otorga a la propiedad un % de participación en el sector de 100%. Suelo clasificado como urbano no consolidado, queda pendiente la redacción del Proyecto de Urbanización, Proyecto de Reparcelación y la consiguiente ejecución de las obras de urbanización. Su Referencia Catastral es 5147982UF8654N0001OR.

Property characteristics

Complex information

  • Property type
    Urbanizable

Property data

  • Property type
    Second hand

Surfaces

  • Land area
    10 957 m²

Base

  • Urban land
    Not consolidated
  • Use of lot
    Residential

Facilities

Additional Features:

Building plot

Market price statistics for Terreno en calle Luxemburgo s/n

Map

Malaga, Rincón de la Victoria, Great Sun - Mountain Sun, Calle Luxemburgo s/n Going to this location!
Leave a review about Terreno en calle Luxemburgo s/n
0
0 reviews
1
0% (0)
2
0% (0)
3
0% (0)
4
0% (0)
5
0% (0)
Landvalue
1 590 000 €
Contact advertiser

For more information contact the platform

REF: 367263

Reviews about Terreno en calle Luxemburgo s/n
Loading...

No reviews have been left for this object yet

Nearest properties

Explore nearby properties we've discovered in close proximity to this location

Terreno en venta en Pinares de San Antón

Malaga, Málaga, Este
289 000 €

Fabulosa Parcela de 825m2 en Pinares de San Antón en zona baja, en un enclaje tr...

0
0 reviews

Terreno en calle de Stradivarius, 56

Malaga, Málaga, Este, Calle de Stradivarius, 56
253 000 €

Finca al lado pinares san anton con espectaculares vistas bahia malaga, permiten...

0
0 reviews

Terreno en Cotomar - Urbanizaciones

Malaga, Rincón de la Victoria, Cotomar - Urbanizations, Cotomar - Urbanizaciones
390 000 €

Parcela en la zona de Cotomar en Rincón de la Victoria. Suelo urbano consolidado...

0
0 reviews

Terreno en calle 10

Malaga, Málaga, Este, Calle 10
30 000 €

Solar urbano, situado en la barriada de Olías, que pertenece al municipio de Mál...

0
0 reviews

Terreno en Barrio Jarazmín

Malaga, Málaga, Este, Barrio Jarazmín
155 000 €

Dos terrenos que se venden juntos o por separado. De las pocas parcelas donde p...

0
0 reviews

Terreno en calle Pez Limón

Malaga, Málaga, Este, Calle Pez Limón
1 500 000 €

¡Oportunidad única en Málaga! Este terreno en venta, con una superficie total de...

0
0 reviews

Terreno en calle Acebuche, 25

Malaga, Rincón de la Victoria, Rincón Beach, Calle Acebuche, 25
155 000 €

Vendo terreno urbanizable para vivienda unifamiliar a menos de 5 minutos del Lid...

0
0 reviews

Terreno en Urbanizacion Añoreta, 2 g

Malaga, Rincón de la Victoria, Añoreta Golf - Paradise of the Sun, Urbanizacion Añoreta, 2 G
4 950 000 €

Ubicación privilegiada en la prestigiosa urbanización Añoreta Golf de Rincón de...

0
0 reviews

Terreno en Añoreta Golf - Paraíso del Sol

Malaga, Rincón de la Victoria, Añoreta Golf - Paradise of the Sun, Añoreta Golf - Paraíso del Sol
1 200 000 €

Magnifica oportunidad de adquirir una gran parcela para EQUIPAMIENTO PRIVADO con...

0
0 reviews
Call

We use our own and third-party cookies to analyze website usage and show you advertisements related to your preferences based on a profile created from your browsing habits (e.g., pages visited). More information. Do you accept cookies?